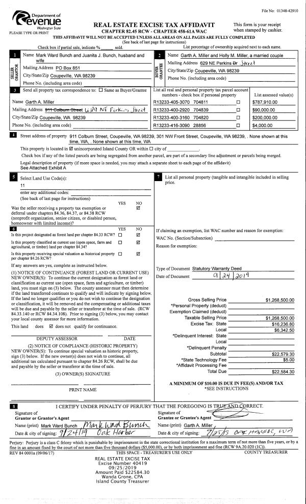
Property
Account |
| Property ID: | 28856 | Abbreviated Legal Description: | 75 ALEX DC - TRACT LY BTWN ML & WLY PT TL13 & 121 DESC: BG PT INTER ML SD DC & NELY EXT OF NWLY LN OF |
| Geographic ID: | R13233-416-3090 | Agent Code: | |
| Type: | Real | | |
| Tax Area: | 300 - APPRAISER-Cpvl Schl Dist, in Cpvl | Land Use Code | 91 |
| Open Space: | N | DFL | N |
| Historic Property: | N | Remodel Property: | N |
| Multi-Family Redevelopment: | N | | |
| Township: | 32 | Section: | 33 |
| Range: | R1 |
Location |
| Address: | | Mapsco: | |
| Neighborhood: | 2 Front Street Comercial | Map ID: | 175 |
| Neighborhood CD: | 21cCPfront |
Owner |
| Name: | MILLER, GARTH A | Owner ID: | 285853 |
| Mailing Address: | HOLLY M MILLER PO BOX 744 COUPEVILLE, WA 98239 | % Ownership: | 100.0000000000% |
| | | Exemptions: | |
Taxes and Assessment Details
Values
| (+) Improvement Homesite Value: | + | N/A | |
| (+) Improvement Non-Homesite Value: | + | N/A | |
| (+) Land Homesite Value: | + | N/A | |
| (+) Land Non-Homesite Value: | + | N/A | Ag / Timber Use Value |
| (+) Curr Use (HS): | + | N/A | N/A |
| (+) Curr Use (NHS): | + | N/A | N/A |
| | | -------------------------- | |
| (=) Market Value: | = | N/A | |
| (–) Productivity Loss: | – | N/A | |
| | | -------------------------- | |
| (=) Subtotal: | = | N/A | |
| (+) Senior Appraised Value: | + | N/A | |
| (+) Non-Senior Appraised Value: | + | N/A | |
| | | -------------------------- | |
| (=) Total Appraised Value: | = | N/A | |
| (–) Senior Exemption Loss: | – | N/A | |
| (–) Exemption Loss: | – | N/A | |
| | | -------------------------- | |
| (=) Taxable Value: | = | N/A | |
Taxing Jurisdiction
| Owner: | MILLER, GARTH A | | |
| % Ownership: | 100.0000000000% | | |
| Total Value: | N/A | | |
| Tax Area: | 300 - APPRAISER-Cpvl Schl Dist, in Cpvl |
| CF | Conservation Futures | N/A | N/A | N/A | N/A | | |
| WCD | Whidbey Conservation District | N/A | N/A | N/A | N/A | | |
| CEM2 | Cemetery #2 | N/A | N/A | N/A | N/A | | |
| COUP | City: Town of Coupeville | N/A | N/A | N/A | N/A | | |
| FIRE5 | Fire & Rescue Dist #5 C Whidbey GEN | N/A | N/A | N/A | N/A | | |
| FIRE5BOND | Fire & Rescue Dist #5 C Whidbey BOND | N/A | N/A | N/A | N/A | | |
| HOBOND | Hospital BOND | N/A | N/A | N/A | N/A | | |
| HOGEN | Hospital GEN | N/A | N/A | N/A | N/A | | |
| CE | County Current Expense | N/A | N/A | N/A | N/A | | |
| ISLANDEMS | Hospital GEN (EMS) | N/A | N/A | N/A | N/A | | |
| LIB | Library Sno-Isle GEN | N/A | N/A | N/A | N/A | | |
| LIBCAP | Library Sno-Isle BOND (Cap Fac Imp Area) | N/A | N/A | N/A | N/A | | |
| POCOUP | Port of Coupeville GEN | N/A | N/A | N/A | N/A | | |
| COUPSDTECH | School 204 CP (TECH) | N/A | N/A | N/A | N/A | | |
| SCH204MO | School 204 Enrichment | N/A | N/A | N/A | N/A | | |
| ST | State School | N/A | N/A | N/A | N/A | | |
| ST2 | State School Part 2 | N/A | N/A | N/A | N/A | | |
| | Total Tax Rate: | N/A | | | | | |
| | | | | Taxes w/Current Exemptions: | N/A | | |
| | | | | Taxes w/o Exemptions: | N/A | | |
Improvement / Building
Sketch
| No sketches available for this property. |
Property Image
Land
| 1 | 53 | CRITICAL AREAS | 0.2500 | 10890.00 | 0.00 | 0.00 | 1.00 | N/A | N/A |
Roll Value History
| 2026 | N/A | N/A | N/A | N/A | N/A |
| 2025 | $0 | $12,000 | $0 | $12,000 | $12,000 |
| 2024 | $0 | $4,000 | $0 | $4,000 | $4,000 |
| 2023 | $0 | $4,000 | $0 | $4,000 | $4,000 |
| 2022 | $0 | $4,000 | $0 | $4,000 | $4,000 |
| 2021 | $0 | $4,000 | $0 | $4,000 | $4,000 |
| 2020 | $0 | $4,000 | $0 | $4,000 | $4,000 |
| 2019 | $0 | $4,000 | $0 | $4,000 | $4,000 |
| 2018 | $0 | $4,000 | $0 | $4,000 | $4,000 |
| 2017 | $0 | $4,000 | $0 | $4,000 | $4,000 |
| 2016 | $0 | $4,000 | $0 | $4,000 | $4,000 |
| 2015 | $0 | $3,480 | $0 | $3,480 | $3,480 |
| 2014 | $0 | $3,480 | $0 | $3,480 | $3,480 |
| 2013 | $0 | $3,480 | $0 | $3,480 | $3,480 |
| 2012 | $0 | $3,480 | $0 | $3,480 | $3,480 |
| 2011 | $0 | $3,480 | $0 | $3,480 | $3,480 |
| 2010 | $0 | $3,480 | $0 | $3,480 | $3,480 |
| 2009 | $0 | $3,480 | $0 | $3,480 | $3,480 |
| 2008 | $0 | $3,480 | $0 | $3,480 | $3,480 |
| 2007 | $0 | $3,480 | $0 | $3,480 | $3,480 |
Deed and Sales History
| 1 | 09/24/2019 | WD | Warranty Deed | BUNCH, MARK W | MILLER, GARTH A | | | $1,268,500.00 | 40419 | 4472079 |
|   | |
| 2 | 02/01/1993 | WD | Warranty Deed | THOMPSON, HARRIET J | BUNCH, MARK W | | | $2,250.00 | 30494 | 93002712 |
| 3 | 11/01/1991 | QCD | Quit Claim Deed | RACE, WM P | THOMPSON, HARRIET J | | | $0.00 | 14049 | 91017334 |
| 4 | 01/01/1900 | OTHER | Other - Misc. Documents | Unknown | RACE, WM P | | | $0.00 | 0 | 0 |
Payout Agreement
| No payout information available.. |