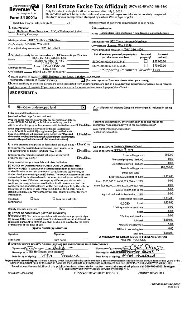
Property
Account |
| Property ID: | 288673 | Abbreviated Legal Description: | KOETJE 2ND REPLAT LOTS 38 & 39 EX W37.5' OF LOT 39 |
| Geographic ID: | S7285-21-00038-0 | Agent Code: | |
| Type: | Real | | |
| Tax Area: | 100 - APPRAISER-OH Schl Dist, in OH | Land Use Code | 11 |
| Open Space: | N | DFL | N |
| Historic Property: | N | Remodel Property: | N |
| Multi-Family Redevelopment: | N | | |
| Township: | | Section: | |
| Range: | |
Location |
| Address: | 671 NE 7TH AVE OAK HARBOR, WA 98277 | Mapsco: | |
| Neighborhood: | Cycle 1 | Map ID: | 256 |
| Neighborhood CD: | 1 |
Owner |
| Name: | LOCKNER, CHELSEY | Owner ID: | 283520 |
| Mailing Address: | 671 NE 7TH AVE OAK HARBOR, WA 98277 | % Ownership: | 100.0000000000% |
| | | Exemptions: | |
Taxes and Assessment Details
Values
| (+) Improvement Homesite Value: | + | $0 | |
| (+) Improvement Non-Homesite Value: | + | $238,377 | |
| (+) Land Homesite Value: | + | $0 | |
| (+) Land Non-Homesite Value: | + | $185,000 | |
| (+) Curr Use (HS): | + | $0 | $0 |
| (+) Curr Use (NHS): | + | $0 | $0 |
| | | -------------------------- | |
| (=) Market Value: | = | $423,377 | |
| (–) Productivity Loss: | – | $0 | |
| | | -------------------------- | |
| (=) Subtotal: | = | $423,377 | |
| (+) Senior Appraised Value: | + | $0 | |
| (+) Non-Senior Appraised Value: | + | $423,377 | |
| | | -------------------------- | |
| (=) Total Appraised Value: | = | $423,377 | |
| (–) Senior Exemption Loss: | – | $0 | |
| (–) Exemption Loss: | – | $0 | |
| | | -------------------------- | |
| (=) Taxable Value: | = | $423,377 | |
Taxing Jurisdiction
| Owner: | LOCKNER, CHELSEY | | |
| % Ownership: | 100.0000000000% | | |
| Total Value: | $423,377 | | |
| Tax Area: | 100 - APPRAISER-OH Schl Dist, in OH |
| CF | Conservation Futures | 0.0313996660 | $423,377 | $423,377 | $13.29 | | |
| CEM1 | Cemetery #1 | 0.0040018856 | $423,377 | $423,377 | $1.69 | | |
| COH | City of Oak Harbor | 2.3090730572 | $423,377 | $423,377 | $977.61 | | |
| OAKBOND | City of Oak Harbor BOND | 0.1902260131 | $423,377 | $423,377 | $80.54 | | |
| HOBOND | Hospital BOND | 0.1893405597 | $423,377 | $423,377 | $80.16 | | |
| HOGEN | Hospital GEN | 0.3848777722 | $423,377 | $423,377 | $162.95 | | |
| CE | County Current Expense | 0.3674210519 | $423,377 | $423,377 | $155.56 | | |
| ISLANDEMS | Hospital GEN (EMS) | 0.4952018576 | $423,377 | $423,377 | $209.66 | | |
| LIB | Library Sno-Isle GEN | 0.3039084203 | $423,377 | $423,377 | $128.67 | | |
| NWHIDPRMT | P & R N Whidbey GEN | 0.1990272349 | $423,377 | $423,377 | $84.26 | | |
| SCH201MO | School 201 Enrichment | 2.3851112745 | $423,377 | $423,377 | $1,009.80 | | |
| ST | State School | 1.4761226122 | $423,377 | $423,377 | $624.96 | | |
| ST2 | State School Part 2 | 0.7953803475 | $423,377 | $423,377 | $336.75 | | |
| | Total Tax Rate: | 9.1310917527 | | | | | |
| | | | | Taxes w/Current Exemptions: | $3,865.90 | | |
| | | | | Taxes w/o Exemptions: | $3,865.90 | | |
Improvement / Building
| Improvement #1: | RESIDENTIAL | State Code: | Y | 1351.0 sqft | Value: | $238,377 |
| Bathrooms: | 2 | Bedrooms: | 3 | | Ceiling: | DRYWALL PAINTED | Exterior Wall/Cover: | WOOD SIDING | | Floor Covering: | CARPET/VINYL 80-20 | Floor Structure: | WOOD W/SUBFLOOR | | Foundation: | CONCRETE | Heating: | BASEBOARD ELECTRIC | | Interior Finish: | DRYWALL PAINT | Plumbing Fixture Cnt: | 9 | | Roof Slope: | 4" IN 12" | Roof Structure/Cover: | CJ ASPHALT |
|
| | Type | Description | Class CD | Sub Class CD | Year Built | Area |
| | BAS | BASE/MAIN FLOOR | 3 | 0 | 1975 | 1351.0 |
| | OP3 | OPEN PORCH W/ROOF | 3 | 0 | 1975 | 126.1 |
| | AGR | ATTACHED GARAGE | 3 | 0 | 1975 | 660.0 |
Sketch
Property Image
Land
| 1 | 15 | SQ (12001-21780) | 0.0000 | 0.00 | 0.00 | 0.00 | 1.00 | $185,000 | $0 |
Roll Value History
| 2026 | N/A | N/A | N/A | N/A | N/A |
| 2025 | $238,377 | $185,000 | $0 | $423,377 | $423,377 |
| 2024 | $246,507 | $175,000 | $0 | $421,507 | $421,507 |
| 2023 | $243,357 | $180,000 | $0 | $423,357 | $423,357 |
| 2022 | $223,212 | $180,000 | $0 | $403,212 | $403,212 |
| 2021 | $196,582 | $125,000 | $0 | $321,582 | $321,582 |
| 2020 | $191,486 | $100,000 | $0 | $291,486 | $291,486 |
| 2019 | $137,741 | $140,000 | $0 | $277,741 | $277,741 |
| 2018 | $138,165 | $125,000 | $0 | $263,165 | $263,165 |
| 2017 | $119,320 | $110,000 | $0 | $229,320 | $229,320 |
| 2016 | $121,025 | $90,000 | $0 | $211,025 | $211,025 |
| 2015 | $122,730 | $70,000 | $0 | $192,730 | $192,730 |
| 2014 | $124,434 | $55,000 | $0 | $179,434 | $179,434 |
| 2013 | $107,499 | $55,000 | $0 | $162,499 | $162,499 |
| 2012 | $109,205 | $60,000 | $0 | $169,205 | $169,205 |
| 2011 | $113,214 | $50,000 | $0 | $163,214 | $163,214 |
| 2010 | $123,043 | $50,000 | $0 | $173,043 | $173,043 |
| 2009 | $128,473 | $75,000 | $0 | $203,473 | $203,473 |
| 2008 | $130,225 | $85,000 | $0 | $215,225 | $215,225 |
| 2007 | $131,999 | $75,000 | $0 | $206,999 | $206,999 |
Deed and Sales History
| 1 | 01/08/2018 | QCD | Quit Claim Deed | LOCKNER, DUSTAN D | LOCKNER, CHELSEY | | | $0.00 | 32543 | 4437122 |
| 2 | 12/06/2016 | QCD | Quit Claim Deed | LOCKNER, DUSTAN D | LOCKNER, DUSTAN D | | | $0.00 | 27235 | 4413031 |
| 3 | 08/15/2013 | WD | Warranty Deed | KOETJE, TODD A | LOCKNER, DUSTAN D | | | $189,900.00 | 12589 | 4347195 |
| 4 | 12/24/2012 | QCD | Quit Claim Deed | KOETJE, ARLENE J | KOETJE, TODD A | | | $0.00 | 9933 | 4330151 |
| 5 | 12/24/2012 | CCOMPROP | Create Community Property | KOETJE, EDWARD L | KOETJE, ARLENE J | | | $0.00 | 9932 | 4330150 |
| 6 | 12/10/2012 | WD | Warranty Deed | WELLS FARGO BANK N A | KOETJE, EDWARD L | | | $0.00 | 9891 | 4330022 |
| 7 | 12/10/1998 | OTHER | Other - Misc. Documents | FIRST, INTERSTATE B | WELLS FARGO BANK N A, | | | $0.00 | 68102 | 0 |
| 8 | 01/01/1996 | OTHER | Other - Misc. Documents | KOETJE, HAZEL A | FIRST, INTERSTATE B | | | $0.00 | 66765 | 0 |
| 9 | 11/01/1989 | PRD | Personal Representatives Deed | KOETJE, NEIL H | KOETJE, HAZEL A | | | $0.00 | 476 | 90001498 |
Payout Agreement
| No payout information available.. |