Property
Account |
| Property ID: | 289182 | Abbreviated Legal Description: | KOETJE 3RD LOT 15 BLK 3 |
| Geographic ID: | S7285-30-03015-0 | Agent Code: | |
| Type: | Real | | |
| Tax Area: | 100 - APPRAISER-OH Schl Dist, in OH | Land Use Code | 11 |
| Open Space: | N | DFL | N |
| Historic Property: | N | Remodel Property: | N |
| Multi-Family Redevelopment: | N | | |
| Township: | | Section: | |
| Range: | |
Location |
| Address: | 1682 NE 9TH AVE OAK HARBOR, WA 98277 | Mapsco: | |
| Neighborhood: | Cycle 1 | Map ID: | 259 |
| Neighborhood CD: | 1 |
Owner |
| Name: | LIU, CHENGLIN | Owner ID: | 312699 |
| Mailing Address: | 1462 CFENTRAL DR OAK HARBOR, WA 98277 | % Ownership: | 100.0000000000% |
| | | Exemptions: | |
Taxes and Assessment Details
Values
| (+) Improvement Homesite Value: | + | $0 | |
| (+) Improvement Non-Homesite Value: | + | $221,779 | |
| (+) Land Homesite Value: | + | $0 | |
| (+) Land Non-Homesite Value: | + | $180,000 | |
| (+) Curr Use (HS): | + | $0 | $0 |
| (+) Curr Use (NHS): | + | $0 | $0 |
| | | -------------------------- | |
| (=) Market Value: | = | $401,779 | |
| (–) Productivity Loss: | – | $0 | |
| | | -------------------------- | |
| (=) Subtotal: | = | $401,779 | |
| (+) Senior Appraised Value: | + | $0 | |
| (+) Non-Senior Appraised Value: | + | $401,779 | |
| | | -------------------------- | |
| (=) Total Appraised Value: | = | $401,779 | |
| (–) Senior Exemption Loss: | – | $0 | |
| (–) Exemption Loss: | – | $0 | |
| | | -------------------------- | |
| (=) Taxable Value: | = | $401,779 | |
Taxing Jurisdiction
| Owner: | LIU, CHENGLIN | | |
| % Ownership: | 100.0000000000% | | |
| Total Value: | $401,779 | | |
| Tax Area: | 100 - APPRAISER-OH Schl Dist, in OH |
| CF | Conservation Futures | 0.0313996660 | $401,779 | $401,779 | $12.62 | | |
| CEM1 | Cemetery #1 | 0.0040018856 | $401,779 | $401,779 | $1.61 | | |
| COH | City of Oak Harbor | 2.3090730572 | $401,779 | $401,779 | $927.74 | | |
| OAKBOND | City of Oak Harbor BOND | 0.1902260131 | $401,779 | $401,779 | $76.43 | | |
| HOBOND | Hospital BOND | 0.1893405597 | $401,779 | $401,779 | $76.07 | | |
| HOGEN | Hospital GEN | 0.3848777722 | $401,779 | $401,779 | $154.64 | | |
| CE | County Current Expense | 0.3674210519 | $401,779 | $401,779 | $147.62 | | |
| ISLANDEMS | Hospital GEN (EMS) | 0.4952018576 | $401,779 | $401,779 | $198.96 | | |
| LIB | Library Sno-Isle GEN | 0.3039084203 | $401,779 | $401,779 | $122.10 | | |
| NWHIDPRMT | P & R N Whidbey GEN | 0.1990272349 | $401,779 | $401,779 | $79.96 | | |
| SCH201MO | School 201 Enrichment | 2.3851112745 | $401,779 | $401,779 | $958.29 | | |
| ST | State School | 1.4761226122 | $401,779 | $401,779 | $593.08 | | |
| ST2 | State School Part 2 | 0.7953803475 | $401,779 | $401,779 | $319.57 | | |
| | Total Tax Rate: | 9.1310917527 | | | | | |
| | | | | Taxes w/Current Exemptions: | $3,668.69 | | |
| | | | | Taxes w/o Exemptions: | $3,668.69 | | |
Improvement / Building
| Improvement #1: | RESIDENTIAL | State Code: | Y | 1150.0 sqft | Value: | $221,779 |
| Bathrooms: | 1.5 | Bedrooms: | 3 | | Ceiling: | DRYWALL PAINTED | Exterior Wall/Cover: | VINYL | | Floor Covering: | HARDWOOD 100% | Floor Structure: | WOOD W/SUBFLOOR | | Foundation: | CONCRETE | Heating: | FHA GAS | | Interior Finish: | DRYWALL PAINT | Plumbing Fixture Cnt: | 8 | | Roof Slope: | 5" IN 12" | Roof Structure/Cover: | CJ ASPHALT |
|
| | Type | Description | Class CD | Sub Class CD | Year Built | Area |
| | BAS | BASE/MAIN FLOOR | 3 | 0 | 1959 | 1150.0 |
| | AGR | ATTACHED GARAGE | 3 | 0 | 1959 | 456.0 |
| | OP4 | OPEN PORCH W/CEILING-ROOF | 3 | 0 | 1959 | 16.0 |
Sketch
Property Image
Land
| 1 | 14 | SQ (08001-12000) | 0.0000 | 0.00 | 0.00 | 0.00 | 1.00 | $180,000 | $0 |
Roll Value History
| 2026 | N/A | N/A | N/A | N/A | N/A |
| 2025 | $221,779 | $180,000 | $0 | $401,779 | $401,779 |
| 2024 | $224,725 | $170,000 | $0 | $394,725 | $394,725 |
| 2023 | $218,248 | $170,000 | $0 | $388,248 | $388,248 |
| 2022 | $200,249 | $160,000 | $0 | $360,249 | $360,249 |
| 2021 | $176,417 | $125,000 | $0 | $301,417 | $301,417 |
| 2020 | $156,347 | $100,000 | $0 | $256,347 | $256,347 |
| 2019 | $111,646 | $140,000 | $0 | $251,646 | $251,646 |
| 2018 | $112,012 | $125,000 | $0 | $237,012 | $237,012 |
| 2017 | $81,443 | $110,000 | $0 | $191,443 | $191,443 |
| 2016 | $82,872 | $90,000 | $0 | $172,872 | $172,872 |
| 2015 | $84,300 | $70,000 | $0 | $154,300 | $154,300 |
| 2014 | $85,729 | $55,000 | $0 | $140,729 | $140,729 |
| 2013 | $87,158 | $55,000 | $0 | $142,158 | $142,158 |
| 2012 | $88,587 | $60,000 | $0 | $148,587 | $148,587 |
| 2011 | $88,587 | $50,000 | $0 | $138,587 | $138,587 |
| 2010 | $98,200 | $50,000 | $0 | $148,200 | $148,200 |
| 2009 | $102,590 | $118,000 | $0 | $220,590 | $220,590 |
| 2008 | $102,590 | $120,000 | $0 | $222,590 | $222,590 |
| 2007 | $104,035 | $108,750 | $0 | $212,785 | $212,785 |
Deed and Sales History
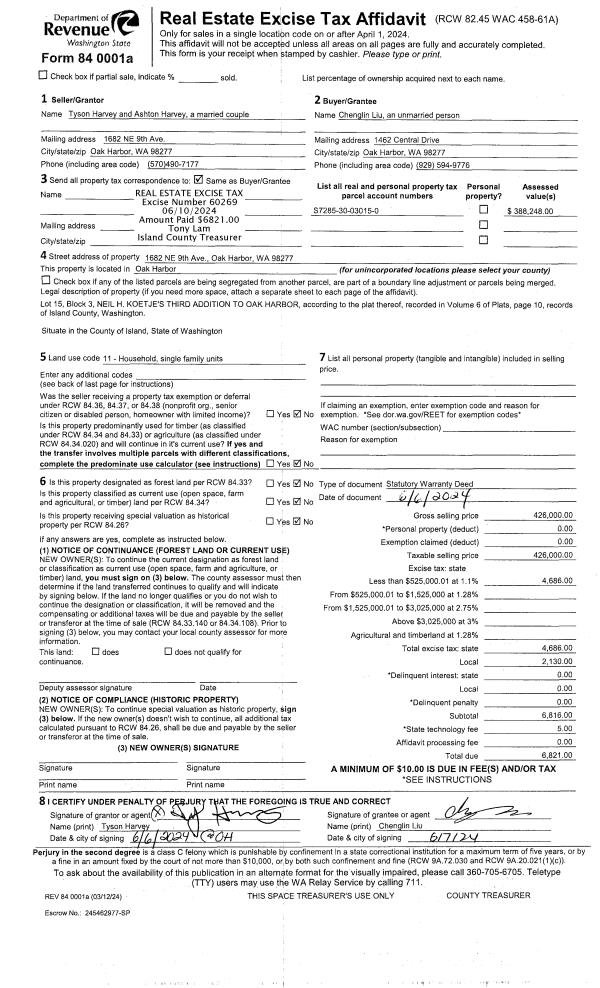
| 1 | 06/06/2024 | WD | Warranty Deed | HARVEY, TYSON | LIU, CHENGLIN | | | $426,000.00 | 60269 | 4573283 |
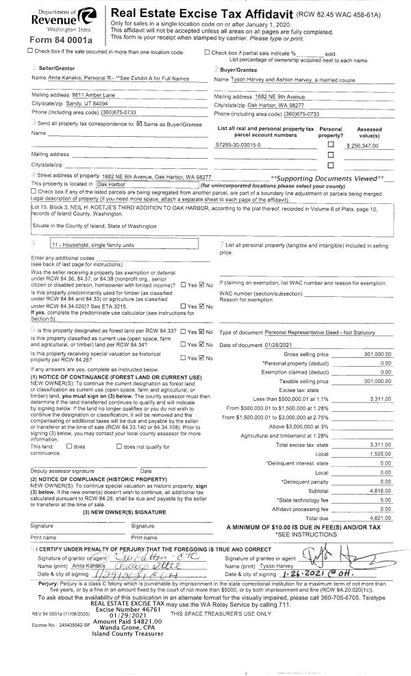
| 2 | 01/26/2021 | WD | Warranty Deed | WILLIS, JAMES M | HARVEY, TYSON | | | $301,000.00 | 46761 | 4509491 |
| 3 | 08/21/2003 | DECREE | Divorce Decree/Legal Separation | WILLIS, JAMES M | WILLIS, JAMES M | | | $0.00 | 40411 | 4090234 |
| 4 | 10/01/1995 | WD | Warranty Deed | MORRIS, KIMBERLEY A | WILLIS, JAMES M | | | $119,500.00 | 53498 | 95016021 |
| 5 | 09/01/1990 | QCD | Quit Claim Deed | MORRIS, KIMBERLEY A | MORRIS, KIMBERLEY A | | | $0.00 | 5076 | 90016848 |
| 6 | 07/01/1990 | WD | Warranty Deed | STOCKER, EDWARD A | MORRIS, KIMBERLEY A | | | $68,500.00 | 4243 | 90013988 |
| 7 | 01/01/1900 | OTHER | Other - Misc. Documents | Unknown | STOCKER, EDWARD A | | | $0.00 | 0 | 0 |
Payout Agreement
| No payout information available.. |