Property
Account |
| Property ID: | 289805 | Abbreviated Legal Description: | KOETJE 4TH LOT 1 |
| Geographic ID: | S7285-40-00001-0 | Agent Code: | |
| Type: | Real | | |
| Tax Area: | 100 - APPRAISER-OH Schl Dist, in OH | Land Use Code | 11 |
| Open Space: | N | DFL | N |
| Historic Property: | N | Remodel Property: | N |
| Multi-Family Redevelopment: | N | | |
| Township: | | Section: | |
| Range: | |
Location |
| Address: | 1471 NE 7TH PLACE OAK HARBOR, WA 98277 | Mapsco: | |
| Neighborhood: | Cycle 1 | Map ID: | 259 |
| Neighborhood CD: | 1 |
Owner |
| Name: | SANCHEZ, LUZ A | Owner ID: | 282584 |
| Mailing Address: | MARIA O SANCHEZ 1471 NE 7TH PLACE OAK HARBOR, WA 98277 | % Ownership: | 100.0000000000% |
| | | Exemptions: | |
Taxes and Assessment Details
Values
| (+) Improvement Homesite Value: | + | $0 | |
| (+) Improvement Non-Homesite Value: | + | $256,666 | |
| (+) Land Homesite Value: | + | $0 | |
| (+) Land Non-Homesite Value: | + | $185,000 | |
| (+) Curr Use (HS): | + | $0 | $0 |
| (+) Curr Use (NHS): | + | $0 | $0 |
| | | -------------------------- | |
| (=) Market Value: | = | $441,666 | |
| (–) Productivity Loss: | – | $0 | |
| | | -------------------------- | |
| (=) Subtotal: | = | $441,666 | |
| (+) Senior Appraised Value: | + | $0 | |
| (+) Non-Senior Appraised Value: | + | $441,666 | |
| | | -------------------------- | |
| (=) Total Appraised Value: | = | $441,666 | |
| (–) Senior Exemption Loss: | – | $0 | |
| (–) Exemption Loss: | – | $0 | |
| | | -------------------------- | |
| (=) Taxable Value: | = | $441,666 | |
Taxing Jurisdiction
| Owner: | SANCHEZ, LUZ A | | |
| % Ownership: | 100.0000000000% | | |
| Total Value: | $441,666 | | |
| Tax Area: | 100 - APPRAISER-OH Schl Dist, in OH |
| CF | Conservation Futures | 0.0313996660 | $441,666 | $441,666 | $13.87 | | |
| CEM1 | Cemetery #1 | 0.0040018856 | $441,666 | $441,666 | $1.77 | | |
| COH | City of Oak Harbor | 2.3090730572 | $441,666 | $441,666 | $1,019.84 | | |
| OAKBOND | City of Oak Harbor BOND | 0.1902260131 | $441,666 | $441,666 | $84.02 | | |
| HOBOND | Hospital BOND | 0.1893405597 | $441,666 | $441,666 | $83.63 | | |
| HOGEN | Hospital GEN | 0.3848777722 | $441,666 | $441,666 | $169.99 | | |
| CE | County Current Expense | 0.3674210519 | $441,666 | $441,666 | $162.28 | | |
| ISLANDEMS | Hospital GEN (EMS) | 0.4952018576 | $441,666 | $441,666 | $218.71 | | |
| LIB | Library Sno-Isle GEN | 0.3039084203 | $441,666 | $441,666 | $134.23 | | |
| NWHIDPRMT | P & R N Whidbey GEN | 0.1990272349 | $441,666 | $441,666 | $87.90 | | |
| SCH201MO | School 201 Enrichment | 2.3851112745 | $441,666 | $441,666 | $1,053.42 | | |
| ST | State School | 1.4761226122 | $441,666 | $441,666 | $651.95 | | |
| ST2 | State School Part 2 | 0.7953803475 | $441,666 | $441,666 | $351.29 | | |
| | Total Tax Rate: | 9.1310917527 | | | | | |
| | | | | Taxes w/Current Exemptions: | $4,032.90 | | |
| | | | | Taxes w/o Exemptions: | $4,032.90 | | |
Improvement / Building
| Improvement #1: | RESIDENTIAL | State Code: | Y | 2085.0 sqft | Value: | $256,666 |
| Bathrooms: | 2 | Bedrooms: | 4 | | Ceiling: | DRYWALL PAINTED | Exterior Wall/Cover: | WOOD SIDING | | Floor Covering: | CARPET/VINYL 60-40 | Floor Structure: | WOOD W/SUBFLOOR | | Foundation: | CONCRETE BLOCKS | Heating: | BASEBOARD ELECTRIC | | Interior Finish: | DRYWALL PAINT | Plumbing Fixture Cnt: | 9 | | Roof Slope: | 5" IN 12" | Roof Structure/Cover: | CJ ASPHALT |
|
| | Type | Description | Class CD | Sub Class CD | Year Built | Area |
| | BAS | BASE/MAIN FLOOR | 3 | 0 | 1959 | 2085.0 |
| | OP1 | OPEN PORCH SLAB | 3 | 0 | 1959 | 256.0 |
| | OP3 | OPEN PORCH W/ROOF | 3 | 0 | 1959 | 24.0 |
| | OCP | OPEN CARPORT | 3 | 0 | 1959 | 322.0 |
| | ENP | ENCLOSED PORCH | 3 | 0 | 1959 | 184.0 |
Sketch
Property Image
Land
| 1 | 15 | SQ (12001-21780) | 0.0000 | 0.00 | 0.00 | 0.00 | 1.00 | $185,000 | $0 |
Roll Value History
| 2026 | N/A | N/A | N/A | N/A | N/A |
| 2025 | $256,666 | $185,000 | $0 | $441,666 | $441,666 |
| 2024 | $266,149 | $175,000 | $0 | $441,149 | $441,149 |
| 2023 | $247,729 | $180,000 | $0 | $427,729 | $427,729 |
| 2022 | $227,653 | $180,000 | $0 | $407,653 | $407,653 |
| 2021 | $200,866 | $125,000 | $0 | $325,866 | $325,866 |
| 2020 | $196,573 | $100,000 | $0 | $296,573 | $296,573 |
| 2019 | $151,558 | $140,000 | $0 | $291,558 | $291,558 |
| 2018 | $152,089 | $125,000 | $0 | $277,089 | $277,089 |
| 2017 | $135,611 | $110,000 | $0 | $245,611 | $245,611 |
| 2016 | $137,797 | $90,000 | $0 | $227,797 | $227,797 |
| 2015 | $139,984 | $70,000 | $0 | $209,984 | $209,984 |
| 2014 | $142,172 | $55,000 | $0 | $197,172 | $197,172 |
| 2013 | $144,358 | $55,000 | $0 | $199,358 | $199,358 |
| 2012 | $146,547 | $60,000 | $0 | $206,547 | $206,547 |
| 2011 | $150,184 | $50,000 | $0 | $200,184 | $200,184 |
| 2010 | $164,112 | $50,000 | $0 | $214,112 | $214,112 |
| 2009 | $172,815 | $74,064 | $0 | $246,879 | $246,879 |
| 2008 | $174,098 | $75,000 | $0 | $249,098 | $249,098 |
| 2007 | $176,316 | $68,000 | $0 | $244,316 | $244,316 |
Deed and Sales History
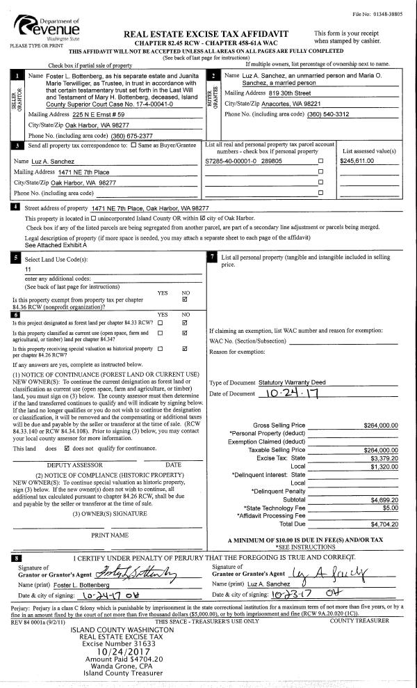
| 1 | 10/23/2017 | QCD | Quit Claim Deed | SANCHEZ, LUZ A | SANCHEZ, LUZ A | | | $0.00 | 31634 | 4432707 |
| 2 | 10/24/2017 | WD | Warranty Deed | BOTTENBERG, FOSTER L | SANCHEZ, LUZ A | | | $264,000.00 | 31633 | 4432706 |
| 3 | 03/31/2017 | PRD | Personal Representatives Deed | BOTTENBERG, FOSTER L | BOTTENBERG, FOSTER L | | | $0.00 | 28810 | 4420412 |
Payout Agreement
| No payout information available.. |