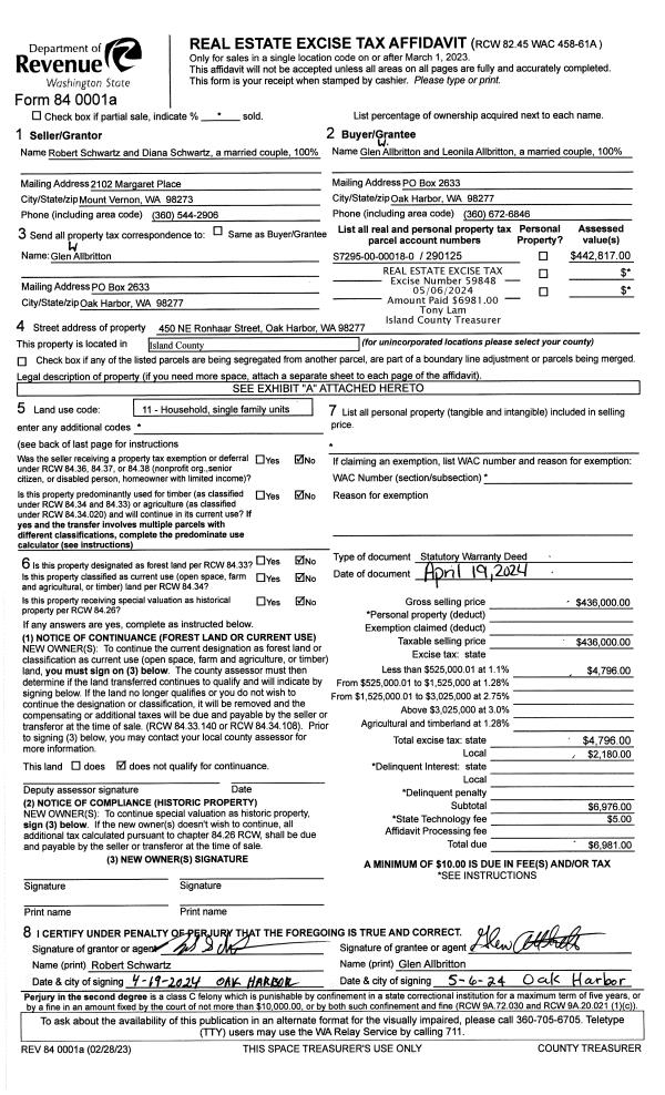
Property
Account |
| Property ID: | 290125 | Abbreviated Legal Description: | KOETJE EV ADD W90' OF LOTS 18 & 20 EX S40' SEG'D LOT 20 3/98 (LOT 1 OH-BLA 3/97 AF#98002996) |
| Geographic ID: | S7295-00-00018-0 | Agent Code: | |
| Type: | Real | | |
| Tax Area: | 100 - APPRAISER-OH Schl Dist, in OH | Land Use Code | 11 |
| Open Space: | N | DFL | N |
| Historic Property: | N | Remodel Property: | N |
| Multi-Family Redevelopment: | N | | |
| Township: | | Section: | |
| Range: | |
Location |
| Address: | 450 NE RONHAAR ST OAK HARBOR, WA 98277 | Mapsco: | |
| Neighborhood: | Cycle 1 | Map ID: | 260 |
| Neighborhood CD: | 1 |
Owner |
| Name: | ALLBRITTON, GLEN W | Owner ID: | 312223 |
| Mailing Address: | LEONILA ALLBRITTON 450 NE RONHAAR ST OAK HARBOR, WA 98277 | % Ownership: | 100.0000000000% |
| | | Exemptions: | |
Taxes and Assessment Details
Values
| (+) Improvement Homesite Value: | + | $0 | |
| (+) Improvement Non-Homesite Value: | + | $269,003 | |
| (+) Land Homesite Value: | + | $0 | |
| (+) Land Non-Homesite Value: | + | $180,000 | |
| (+) Curr Use (HS): | + | $0 | $0 |
| (+) Curr Use (NHS): | + | $0 | $0 |
| | | -------------------------- | |
| (=) Market Value: | = | $449,003 | |
| (–) Productivity Loss: | – | $0 | |
| | | -------------------------- | |
| (=) Subtotal: | = | $449,003 | |
| (+) Senior Appraised Value: | + | $0 | |
| (+) Non-Senior Appraised Value: | + | $449,003 | |
| | | -------------------------- | |
| (=) Total Appraised Value: | = | $449,003 | |
| (–) Senior Exemption Loss: | – | $0 | |
| (–) Exemption Loss: | – | $0 | |
| | | -------------------------- | |
| (=) Taxable Value: | = | $449,003 | |
Taxing Jurisdiction
| Owner: | ALLBRITTON, GLEN W | | |
| % Ownership: | 100.0000000000% | | |
| Total Value: | $449,003 | | |
| Tax Area: | 100 - APPRAISER-OH Schl Dist, in OH |
| CF | Conservation Futures | 0.0313996660 | $449,003 | $449,003 | $14.10 | | |
| CEM1 | Cemetery #1 | 0.0040018856 | $449,003 | $449,003 | $1.80 | | |
| COH | City of Oak Harbor | 2.3090730572 | $449,003 | $449,003 | $1,036.78 | | |
| OAKBOND | City of Oak Harbor BOND | 0.1902260131 | $449,003 | $449,003 | $85.41 | | |
| HOBOND | Hospital BOND | 0.1893405597 | $449,003 | $449,003 | $85.01 | | |
| HOGEN | Hospital GEN | 0.3848777722 | $449,003 | $449,003 | $172.81 | | |
| CE | County Current Expense | 0.3674210519 | $449,003 | $449,003 | $164.97 | | |
| ISLANDEMS | Hospital GEN (EMS) | 0.4952018576 | $449,003 | $449,003 | $222.35 | | |
| LIB | Library Sno-Isle GEN | 0.3039084203 | $449,003 | $449,003 | $136.46 | | |
| NWHIDPRMT | P & R N Whidbey GEN | 0.1990272349 | $449,003 | $449,003 | $89.36 | | |
| SCH201MO | School 201 Enrichment | 2.3851112745 | $449,003 | $449,003 | $1,070.92 | | |
| ST | State School | 1.4761226122 | $449,003 | $449,003 | $662.78 | | |
| ST2 | State School Part 2 | 0.7953803475 | $449,003 | $449,003 | $357.13 | | |
| | Total Tax Rate: | 9.1310917527 | | | | | |
| | | | | Taxes w/Current Exemptions: | $4,099.88 | | |
| | | | | Taxes w/o Exemptions: | $4,099.88 | | |
Improvement / Building
| Improvement #1: | RESIDENTIAL | State Code: | Y | 1263.0 sqft | Value: | $269,003 |
| Bathrooms: | 2 | Bedrooms: | 3 | | Ceiling: | DRY WALL SPRAYED | Exterior Wall/Cover: | COMMON BRICK VENEER | | Floor Covering: | VINYL/HARDWOOD 20-80 | Floor Structure: | WOOD W/SUBFLOOR | | Foundation: | CONCRETE BLOCKS | Heating: | FHA GAS | | Interior Finish: | DRYWALL PAINT | Plumbing Fixture Cnt: | 10 | | Roof Slope: | 5" IN 12" | Roof Structure/Cover: | CJ ASPHALT |
|
| | Type | Description | Class CD | Sub Class CD | Year Built | Area |
| | BAS | BASE/MAIN FLOOR | 3 | 0 | 1956 | 1263.0 |
| | OP1 | OPEN PORCH SLAB | 3 | 0 | 1956 | 420.0 |
| | OP3 | OPEN PORCH W/ROOF | 3 | 0 | 1956 | 35.0 |
| | AGR | ATTACHED GARAGE | 3 | 0 | 1956 | 300.0 |
Sketch
Property Image
Land
| 1 | 14 | SQ (08001-12000) | 0.0000 | 0.00 | 0.00 | 0.00 | 1.00 | $180,000 | $0 |
Roll Value History
| 2026 | N/A | N/A | N/A | N/A | N/A |
| 2025 | $269,003 | $180,000 | $0 | $449,003 | $449,003 |
| 2024 | $272,273 | $170,000 | $0 | $442,273 | $442,273 |
| 2023 | $272,817 | $170,000 | $0 | $442,817 | $442,817 |
| 2022 | $250,379 | $160,000 | $0 | $410,379 | $410,379 |
| 2021 | $220,816 | $125,000 | $0 | $345,816 | $345,816 |
| 2020 | $214,932 | $100,000 | $0 | $314,932 | $314,932 |
| 2019 | $154,499 | $140,000 | $0 | $294,499 | $294,499 |
| 2018 | $154,936 | $125,000 | $0 | $279,936 | $279,936 |
| 2017 | $155,809 | $110,000 | $0 | $265,809 | $265,809 |
| 2016 | $71,914 | $90,000 | $0 | $161,914 | $161,914 |
| 2015 | $73,490 | $70,000 | $0 | $143,490 | $143,490 |
| 2014 | $75,069 | $55,000 | $0 | $130,069 | $130,069 |
| 2013 | $76,644 | $55,000 | $0 | $131,644 | $131,644 |
| 2012 | $78,221 | $70,000 | $0 | $148,221 | $148,221 |
| 2011 | $79,796 | $80,000 | $0 | $159,796 | $159,796 |
| 2010 | $91,131 | $80,000 | $0 | $171,131 | $171,131 |
| 2009 | $95,464 | $97,000 | $0 | $192,464 | $192,464 |
| 2008 | $97,232 | $97,000 | $0 | $194,232 | $194,232 |
| 2007 | $99,059 | $97,000 | $0 | $196,059 | $196,059 |
Deed and Sales History
| 1 | 04/19/2024 | WD | Warranty Deed | SCHWARTZ, ROBERT | ALLBRITTON, GLEN W | | | $436,000.00 | 59848 | 4571964 |
| 2 | 11/07/2016 | WD | Warranty Deed | HYTTE HOMES LLC | SCHWARTZ, ROBERT | | | $267,000.00 | 26870 | 4411235 |
| 3 | 01/29/2016 | TRUSTEED | Trustee's Deed | NIXON, TROY | HYTTE HOMES LLC | | | $0.00 | 23035 | 4393548 |
| 4 | 04/03/2014 | PRD | Personal Representatives Deed | NIXON, O'DINA | NIXON, TROY | | | $0.00 | 14833 | 4357613 |
| 5 | 08/30/2006 | ESTSEPPROP | Establish Separate Property | NIXON, O'DINA | NIXON, O'DINA | | | $0.00 | 63975 | 4181745 |
| 6 | 08/30/2006 | WD | Warranty Deed | NIXON, DOUGLASS L | NIXON, O'DINA | | | $139,000.00 | 63974 | 4181744 |
| 7 | 01/31/2002 | WD | Warranty Deed | MALONEY, JAMES A | NIXON, DOUGLASS L | | | $135,000.00 | 20401 | 4010113 |
| 8 | 03/01/1998 | BLA | DNU - Boundary Line Adjustment | MALONEY, JAMES A | MALONEY, JAMES A | | | $0.00 | 67818 | 98002996 |
| 9 | 07/01/1997 | WD | Warranty Deed | WIRKMAN, STEVEN D | MALONEY, JAMES A | | | $118,000.00 | 72389 | 97011270 |
| 10 | 08/01/1993 | WD | Warranty Deed | BOILY, JOSEPH L | WIRKMAN, STEVEN D | | | $104,450.00 | 33263 | 93016940 |
| 11 | 10/01/1990 | WD | Warranty Deed | IVIE, HELEN A | BOILY, JOSEPH L | | | $80,000.00 | 6074 | 90020660 |
| 12 | 07/01/1979 | TRUSTEED | Trustee's Deed | IVIE, HELEN A | IVIE, HELEN A | | | $0.00 | 93515 | 355824 |
| 13 | 02/01/1979 | OTHER | Other - Misc. Documents | Unknown | IVIE, HELEN A | | | $0.00 | 585340 | 0 |
Payout Agreement
| No payout information available.. |