Property
Account |
| Property ID: | 290713 | Abbreviated Legal Description: | KOHLWES 1ST LOT 28 |
| Geographic ID: | S7300-00-00028-0 | Agent Code: | |
| Type: | Real | | |
| Tax Area: | 810 - APPRAISER-S Whid Schl Dist, Diking District#1, improved & 1 acre or less | Land Use Code | 11 |
| Open Space: | N | DFL | N |
| Historic Property: | N | Remodel Property: | N |
| Multi-Family Redevelopment: | N | | |
| Township: | | Section: | |
| Range: | |
Location |
| Address: | 2629 SUNLIGHT BEACH RD CLINTON, WA 98236 | Mapsco: | |
| Neighborhood: | Cycle 4 | Map ID: | 790 |
| Neighborhood CD: | 4 |
Owner |
| Name: | VALLENE TTEE, BRIAN E | Owner ID: | 303455 |
| Mailing Address: | MICHELLE M VALLENE TTEE 8331 NE 175TH STREET KENMORE, WA 98028 | % Ownership: | 100.0000000000% |
| | | Exemptions: | |
Taxes and Assessment Details
Values
| (+) Improvement Homesite Value: | + | $0 | |
| (+) Improvement Non-Homesite Value: | + | $198,798 | |
| (+) Land Homesite Value: | + | $0 | |
| (+) Land Non-Homesite Value: | + | $420,000 | |
| (+) Curr Use (HS): | + | $0 | $0 |
| (+) Curr Use (NHS): | + | $0 | $0 |
| | | -------------------------- | |
| (=) Market Value: | = | $618,798 | |
| (–) Productivity Loss: | – | $0 | |
| | | -------------------------- | |
| (=) Subtotal: | = | $618,798 | |
| (+) Senior Appraised Value: | + | $0 | |
| (+) Non-Senior Appraised Value: | + | $618,798 | |
| | | -------------------------- | |
| (=) Total Appraised Value: | = | $618,798 | |
| (–) Senior Exemption Loss: | – | $0 | |
| (–) Exemption Loss: | – | $0 | |
| | | -------------------------- | |
| (=) Taxable Value: | = | $618,798 | |
Taxing Jurisdiction
| Owner: | VALLENE TTEE, BRIAN E | | |
| % Ownership: | 100.0000000000% | | |
| Total Value: | $618,798 | | |
| Tax Area: | 810 - APPRAISER-S Whid Schl Dist, Diking District#1, improved & 1 acre or less |
| CF | Conservation Futures | 0.0313996660 | $618,798 | $618,798 | $19.43 | | |
| FIRE3 | Fire & Rescue Dist #3 S Whidbey GEN | 1.2130821753 | $618,798 | $618,798 | $750.65 | | |
| HOBOND | Hospital BOND | 0.1893405597 | $618,798 | $618,798 | $117.16 | | |
| HOGEN | Hospital GEN | 0.3848777722 | $618,798 | $618,798 | $238.16 | | |
| CE | County Current Expense | 0.3674210519 | $618,798 | $618,798 | $227.36 | | |
| CR | County Roads | 0.4614296361 | $618,798 | $618,798 | $285.53 | | |
| ISLANDEMS | Hospital GEN (EMS) | 0.4952018576 | $618,798 | $618,798 | $306.43 | | |
| LIB | Library Sno-Isle GEN | 0.3039084203 | $618,798 | $618,798 | $188.06 | | |
| PORTWHID | Port of S Whidbey GEN | 0.1086004714 | $618,798 | $618,798 | $67.20 | | |
| SCH206BOND | School 206 BOND | 0.5960237832 | $618,798 | $618,798 | $368.82 | | |
| SCH206CAP | School 206 CP | 0.3066144020 | $618,798 | $618,798 | $189.73 | | |
| SCH206MO | School 206 Enrichment | 0.4808755445 | $618,798 | $618,798 | $297.56 | | |
| ST | State School | 1.4761226122 | $618,798 | $618,798 | $913.42 | | |
| ST2 | State School Part 2 | 0.7953803475 | $618,798 | $618,798 | $492.18 | | |
| SWHIDPRBD | P & R S Whidbey BOND | 0.0144185398 | $618,798 | $618,798 | $8.92 | | |
| SWHIDPRBD3 | P & R S Whidbey BOND3 | 0.1483535547 | $618,798 | $618,798 | $91.80 | | |
| SWHIDPRMT | P & R S Whidbey GEN | 0.4600000000 | $618,798 | $618,798 | $284.65 | | |
| | Total Tax Rate: | 7.8330503944 | | | | | |
| | | | | Taxes w/Current Exemptions: | $4,847.06 | | |
| | | | | Taxes w/o Exemptions: | $4,847.06 | | |
Improvement / Building
| Improvement #1: | RESIDENTIAL | State Code: | Y | 1480.0 sqft | Value: | $198,798 |
| Bathrooms: | 2 | Bedrooms: | 2 | | Ceiling: | TONGUE & GROOVE | Exterior Wall/Cover: | WOOD SIDING | | Floor Covering: | CARPET/VINYL 80-20 | Floor Structure: | WOOD W/SUBFLOOR | | Foundation: | CONCRETE | Heating: | BASEBOARD ELECTRIC | | Interior Finish: | DRYWALL PAINT | Plumbing Fixture Cnt: | 9 | | Roof Slope: | 3" IN 12" | Roof Structure/Cover: | BEAM ASPHALT |
|
| | Type | Description | Class CD | Sub Class CD | Year Built | Area |
| | BAS | BASE/MAIN FLOOR | 3 | 0 | 1966 | 812.0 |
| | DWN | DOWNSTAIRS LIVING AREA | 3 | 0 | 1966 | 392.0 |
| | OP1 | OPEN PORCH SLAB | 3 | 0 | 1966 | 220.0 |
| | OWP | OPEN WOOD PORCH W/STEPS | 3 | 0 | 1966 | 590.0 |
| | DWN | DOWNSTAIRS LIVING AREA | 3 | 0 | 1966 | 276.0 |
Sketch
Property Image
Land
| 1 | 13 | SQ (06001-08000) | 0.0000 | 0.00 | 0.00 | 0.00 | 1.00 | $420,000 | $0 |
Roll Value History
| 2026 | N/A | N/A | N/A | N/A | N/A |
| 2025 | $198,798 | $420,000 | $0 | $618,798 | $618,798 |
| 2024 | $205,739 | $440,000 | $0 | $645,739 | $645,739 |
| 2023 | $208,626 | $430,000 | $0 | $638,626 | $638,626 |
| 2022 | $191,522 | $310,000 | $0 | $501,522 | $501,522 |
| 2021 | $171,460 | $280,000 | $0 | $451,460 | $451,460 |
| 2020 | $155,847 | $280,000 | $0 | $435,847 | $435,847 |
| 2019 | $110,514 | $280,000 | $0 | $390,514 | $390,514 |
| 2018 | $110,900 | $260,000 | $0 | $370,900 | $370,900 |
| 2017 | $111,677 | $220,000 | $0 | $331,677 | $331,677 |
| 2016 | $113,227 | $200,000 | $0 | $313,227 | $313,227 |
| 2015 | $114,780 | $200,000 | $0 | $314,780 | $314,780 |
| 2014 | $90,428 | $200,000 | $0 | $290,428 | $290,428 |
| 2013 | $91,910 | $200,000 | $0 | $291,910 | $291,910 |
| 2012 | $93,391 | $140,250 | $0 | $233,641 | $233,641 |
| 2011 | $94,874 | $165,000 | $0 | $259,874 | $259,874 |
| 2010 | $101,880 | $165,000 | $0 | $266,880 | $266,880 |
| 2009 | $106,385 | $180,000 | $0 | $286,385 | $286,385 |
| 2008 | $103,385 | $221,900 | $0 | $325,285 | $325,285 |
| 2007 | $104,869 | $221,900 | $0 | $326,769 | $326,769 |
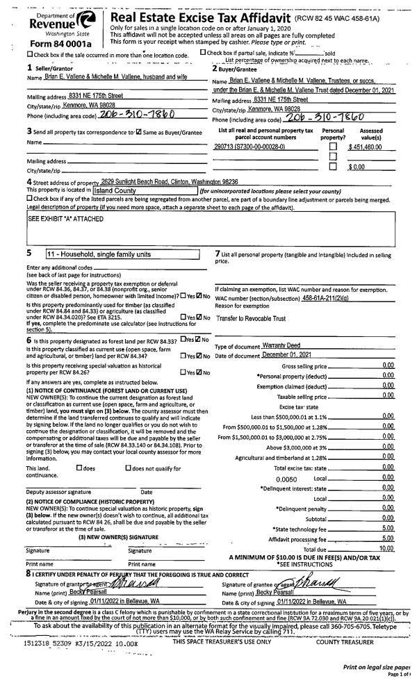
Deed and Sales History
| 1 | 12/01/2021 | WD | Warranty Deed | VALLENE, BRIAN E | VALLENE TTEE, BRIAN E | | | $0.00 | 52309 | 4541560 |
| 2 | 12/01/2021 | WD | Warranty Deed | VALLENE, BRIAN EMERY | VALLENE, BRIAN E | | | $0.00 | 52308 | 4541559 |
| 3 | 12/18/2020 | PRD | Personal Representatives Deed | VALLENE, ARLYN J | VALLENE, BRIAN EMERY | | | $0.00 | 46490 | 4507480 |
| 4 | 11/30/2018 | PRD | Personal Representatives Deed | VALLENE, LEONARD E | VALLENE, ARLYN J | | | $0.00 | 36910 | 4456165 |
Payout Agreement
| No payout information available.. |