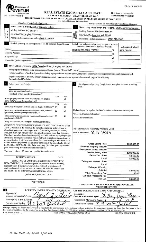
Property
Account |
| Property ID: | 291053 | Abbreviated Legal Description: | LA BELLA VTA LOTS 9 & 10 BLK 2 LOT 10 BLK 2 |
| Geographic ID: | S7305-00-02009-0 | Agent Code: | |
| Type: | Real | | |
| Tax Area: | 710 - APPRAISER-S Whid Schl Dist, outside Langley, improved & 1 acre or less | Land Use Code | 11 |
| Open Space: | N | DFL | N |
| Historic Property: | N | Remodel Property: | N |
| Multi-Family Redevelopment: | N | | |
| Township: | | Section: | |
| Range: | |
Location |
| Address: | 494 LA BELLA VISTA WAY FREELAND, WA 98249 | Mapsco: | |
| Neighborhood: | Cycle 3 | Map ID: | 303 |
| Neighborhood CD: | 3 |
Owner |
| Name: | DREES TTEE, KRISTIN DAWN | Owner ID: | 312041 |
| Mailing Address: | 494 LABELLA VISTA WAY FREELAND, WA 98249 | % Ownership: | 100.0000000000% |
| | | Exemptions: | |
Taxes and Assessment Details
Values
| (+) Improvement Homesite Value: | + | $0 | |
| (+) Improvement Non-Homesite Value: | + | $494,116 | |
| (+) Land Homesite Value: | + | $0 | |
| (+) Land Non-Homesite Value: | + | $530,000 | |
| (+) Curr Use (HS): | + | $0 | $0 |
| (+) Curr Use (NHS): | + | $0 | $0 |
| | | -------------------------- | |
| (=) Market Value: | = | $1,024,116 | |
| (–) Productivity Loss: | – | $0 | |
| | | -------------------------- | |
| (=) Subtotal: | = | $1,024,116 | |
| (+) Senior Appraised Value: | + | $0 | |
| (+) Non-Senior Appraised Value: | + | $1,024,116 | |
| | | -------------------------- | |
| (=) Total Appraised Value: | = | $1,024,116 | |
| (–) Senior Exemption Loss: | – | $0 | |
| (–) Exemption Loss: | – | $0 | |
| | | -------------------------- | |
| (=) Taxable Value: | = | $1,024,116 | |
Taxing Jurisdiction
| Owner: | DREES TTEE, KRISTIN DAWN | | |
| % Ownership: | 100.0000000000% | | |
| Total Value: | $1,024,116 | | |
| Tax Area: | 710 - APPRAISER-S Whid Schl Dist, outside Langley, improved & 1 acre or less |
| CF | Conservation Futures | 0.0313996660 | $1,024,116 | $1,024,116 | $32.16 | | |
| FIRE3 | Fire & Rescue Dist #3 S Whidbey GEN | 1.2130821753 | $1,024,116 | $1,024,116 | $1,242.34 | | |
| HOBOND | Hospital BOND | 0.1893405597 | $1,024,116 | $1,024,116 | $193.91 | | |
| HOGEN | Hospital GEN | 0.3848777722 | $1,024,116 | $1,024,116 | $394.16 | | |
| CE | County Current Expense | 0.3674210519 | $1,024,116 | $1,024,116 | $376.28 | | |
| CR | County Roads | 0.4614296361 | $1,024,116 | $1,024,116 | $472.56 | | |
| ISLANDEMS | Hospital GEN (EMS) | 0.4952018576 | $1,024,116 | $1,024,116 | $507.14 | | |
| LIB | Library Sno-Isle GEN | 0.3039084203 | $1,024,116 | $1,024,116 | $311.24 | | |
| PORTWHID | Port of S Whidbey GEN | 0.1086004714 | $1,024,116 | $1,024,116 | $111.22 | | |
| SCH206BOND | School 206 BOND | 0.5960237832 | $1,024,116 | $1,024,116 | $610.40 | | |
| SCH206CAP | School 206 CP | 0.3066144020 | $1,024,116 | $1,024,116 | $314.01 | | |
| SCH206MO | School 206 Enrichment | 0.4808755445 | $1,024,116 | $1,024,116 | $492.47 | | |
| ST | State School | 1.4761226122 | $1,024,116 | $1,024,116 | $1,511.72 | | |
| ST2 | State School Part 2 | 0.7953803475 | $1,024,116 | $1,024,116 | $814.56 | | |
| SWHIDPRBD | P & R S Whidbey BOND | 0.0144185398 | $1,024,116 | $1,024,116 | $14.77 | | |
| SWHIDPRBD3 | P & R S Whidbey BOND3 | 0.1483535547 | $1,024,116 | $1,024,116 | $151.93 | | |
| SWHIDPRMT | P & R S Whidbey GEN | 0.4600000000 | $1,024,116 | $1,024,116 | $471.09 | | |
| | Total Tax Rate: | 7.8330503944 | | | | | |
| | | | | Taxes w/Current Exemptions: | $8,021.96 | | |
| | | | | Taxes w/o Exemptions: | $8,021.96 | | |
Improvement / Building
| Improvement #1: | RESIDENTIAL | State Code: | Y | 2259.6 sqft | Value: | $494,116 |
| Bathrooms: | 2.5 | Bedrooms: | 2 | | Ceiling: | DRYWALL PAINTED | Cooling: | HEAT PUMP/CONV/V | | Exterior Wall/Cover: | PLY/HARDBOARD T-111 | Floor Covering: | VINYL/HARDWOOD 60-40 | | Floor Structure: | WOOD W/SUBFLOOR | Foundation: | CONCRETE | | Interior Finish: | DRYWALL PAINT | Plumbing Fixture Cnt: | 11 | | Roof Slope: | FLAT | Roof Structure/Cover: | BEAM ALUMINUM HEAVY |
|
| | Type | Description | Class CD | Sub Class CD | Year Built | Area |
| | BAS | BASE/MAIN FLOOR | 5 | 0 | 1962 | 1080.2 |
| | UTY | STORAGE/UTILITY | 5 | 0 | 1962 | 312.0 |
| | AGR | ATTACHED GARAGE | 5 | 0 | 1962 | 576.0 |
| | OWP | OPEN WOOD PORCH W/STEPS | 5 | 0 | 1962 | 717.2 |
| | OWP | OPEN WOOD PORCH W/STEPS | 5 | 0 | 1962 | 256.0 |
| | DWN | DOWNSTAIRS LIVING AREA | 5 | 0 | 1962 | 1179.4 |
| | ENP | ENCLOSED PORCH | 5 | 0 | 1962 | 227.2 |
| | OWP | OPEN WOOD PORCH W/STEPS | 5 | 0 | 1962 | 32.5 |
Sketch
Property Image
Land
| 1 | 15 | SQ (12001-21780) | 0.0000 | 0.00 | 0.00 | 0.00 | 1.00 | $530,000 | $0 |
Roll Value History
| 2026 | N/A | N/A | N/A | N/A | N/A |
| 2025 | $494,116 | $530,000 | $0 | $1,024,116 | $1,024,116 |
| 2024 | $500,513 | $400,000 | $0 | $900,513 | $900,513 |
| 2023 | $377,632 | $400,000 | $0 | $777,632 | $777,632 |
| 2022 | $346,618 | $385,000 | $0 | $731,618 | $731,618 |
| 2021 | $305,465 | $350,000 | $0 | $655,465 | $655,465 |
| 2020 | $298,367 | $350,000 | $0 | $648,367 | $648,367 |
| 2019 | $223,227 | $400,000 | $0 | $623,227 | $623,227 |
| 2018 | $214,296 | $250,000 | $0 | $464,296 | $464,296 |
| 2017 | $131,872 | $180,000 | $0 | $311,872 | $311,872 |
| 2016 | $133,998 | $180,000 | $0 | $313,998 | $313,998 |
| 2015 | $136,125 | $180,000 | $0 | $316,125 | $316,125 |
| 2014 | $138,252 | $187,000 | $0 | $325,252 | $325,252 |
| 2013 | $129,302 | $140,250 | $0 | $269,552 | $269,552 |
| 2012 | $131,448 | $140,250 | $0 | $271,698 | $271,698 |
| 2011 | $133,593 | $165,000 | $0 | $298,593 | $298,593 |
| 2010 | $146,198 | $165,000 | $0 | $311,198 | $311,198 |
| 2009 | $153,011 | $200,000 | $0 | $353,011 | $353,011 |
| 2008 | $153,255 | $223,000 | $0 | $376,255 | $376,255 |
| 2007 | $145,797 | $135,000 | $0 | $280,797 | $280,797 |
Deed and Sales History
| 1 | 08/18/2025 | OTHER | Other - Misc. Documents | DREES TTEE, KRISTIN DAWN | JOHNSON, KATHRYN HOPE | | | $0.00 | 64535 | 4589825 |
| 2 | 04/12/2024 | WD | Warranty Deed | SHEPPARD TTEE, SIM C | DREES TTEE, KRISTIN DAWN | | | $1,100,000.00 | 59706 | 4571477 |
| 3 | 03/07/2018 | WD | Warranty Deed | PENDERELL SOUND INVESTMENTS, LLC | SHEPPARD TTEE, SIM C | | | $619,000.00 | 33232 | 4440499 |
| 4 | 06/15/2017 | TRUSTEED | Trustee's Deed | CARSON, DONALD W | PENDERELL SOUND INVESTMENTS, LLC | | | $242,000.00 | 29830 | 4424622 |
| 5 | 10/01/1992 | QCD | Quit Claim Deed | CARSON, DONALD W | CARSON, DONALD W | | | $0.00 | 24283 | 92020877 |
| 6 | 06/01/1992 | WD | Warranty Deed | CARSON, DONALD W | CARSON, DONALD W | | | $0.00 | 22297 | 92011194 |
| 7 | 06/01/1990 | WD | Warranty Deed | VAN, DORN, M | CARSON, DONALD W | | | $115,000.00 | 3809 | 90012366 |
| 8 | 11/01/1988 | QCD | Quit Claim Deed | OLAVSEN, TRYGVE J | VAN, DORN, M | | | $0.00 | 83758 | 88013982 |
| 9 | 01/01/1900 | OTHER | Other - Misc. Documents | Unknown | OLAVSEN, TRYGVE J | | | $0.00 | 0 | 0 |
Payout Agreement
| No payout information available.. |