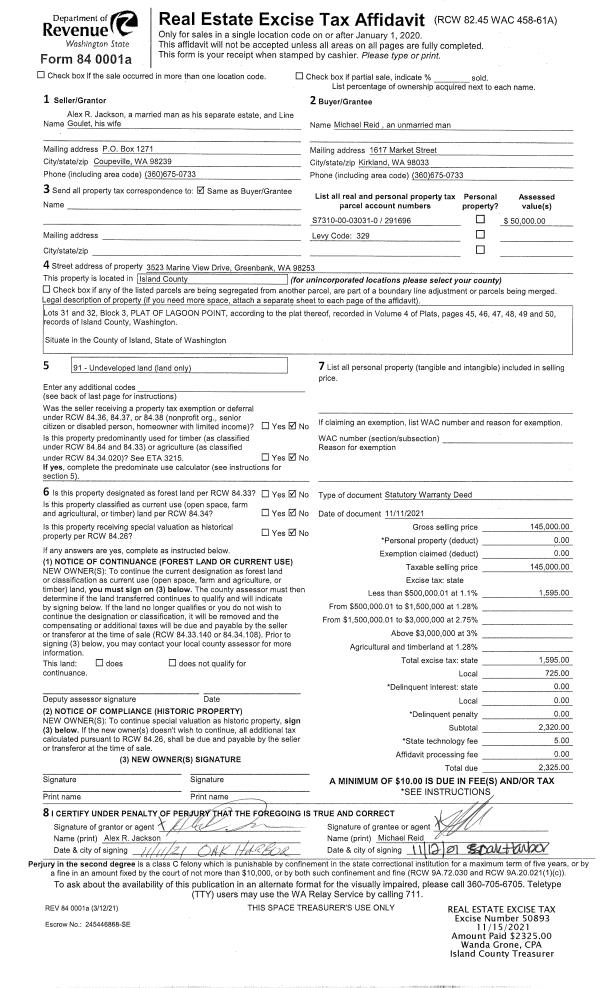
Property
Account |
| Property ID: | 291696 | Abbreviated Legal Description: | LAGOON PT LOTS 31 & 32 BLK 3 |
| Geographic ID: | S7310-00-03031-0 | Agent Code: | |
| Type: | Real | | |
| Tax Area: | 329 - APPRAISER-Cpvl Schl Dist, Special Dist, vacant & 50 acres or less | Land Use Code | 99 |
| Open Space: | N | DFL | N |
| Historic Property: | N | Remodel Property: | N |
| Multi-Family Redevelopment: | N | | |
| Township: | | Section: | |
| Range: | |
Location |
| Address: | | Mapsco: | |
| Neighborhood: | Cycle 3 | Map ID: | 388 |
| Neighborhood CD: | 3 |
Owner |
| Name: | REID, MICHAEL | Owner ID: | 301961 |
| Mailing Address: | 1617 MARKET ST KIRKLAND, WA 98033 | % Ownership: | 100.0000000000% |
| | | Exemptions: | |
Taxes and Assessment Details
Values
| (+) Improvement Homesite Value: | + | $0 | |
| (+) Improvement Non-Homesite Value: | + | $0 | |
| (+) Land Homesite Value: | + | $0 | |
| (+) Land Non-Homesite Value: | + | $70,000 | |
| (+) Curr Use (HS): | + | $0 | $0 |
| (+) Curr Use (NHS): | + | $0 | $0 |
| | | -------------------------- | |
| (=) Market Value: | = | $70,000 | |
| (–) Productivity Loss: | – | $0 | |
| | | -------------------------- | |
| (=) Subtotal: | = | $70,000 | |
| (+) Senior Appraised Value: | + | $0 | |
| (+) Non-Senior Appraised Value: | + | $70,000 | |
| | | -------------------------- | |
| (=) Total Appraised Value: | = | $70,000 | |
| (–) Senior Exemption Loss: | – | $0 | |
| (–) Exemption Loss: | – | $0 | |
| | | -------------------------- | |
| (=) Taxable Value: | = | $70,000 | |
Taxing Jurisdiction
| Owner: | REID, MICHAEL | | |
| % Ownership: | 100.0000000000% | | |
| Total Value: | $70,000 | | |
| Tax Area: | 329 - APPRAISER-Cpvl Schl Dist, Special Dist, vacant & 50 acres or less |
| CF | Conservation Futures | 0.0313996660 | $70,000 | $70,000 | $2.20 | | |
| CEM2 | Cemetery #2 | 0.0092609791 | $70,000 | $70,000 | $0.65 | | |
| HOBOND | Hospital BOND | 0.1893405597 | $70,000 | $70,000 | $13.25 | | |
| HOGEN | Hospital GEN | 0.3848777722 | $70,000 | $70,000 | $26.94 | | |
| CE | County Current Expense | 0.3674210519 | $70,000 | $70,000 | $25.72 | | |
| CR | County Roads | 0.4614296361 | $70,000 | $70,000 | $32.30 | | |
| ISLANDEMS | Hospital GEN (EMS) | 0.4952018576 | $70,000 | $70,000 | $34.66 | | |
| LIB | Library Sno-Isle GEN | 0.3039084203 | $70,000 | $70,000 | $21.27 | | |
| LIBCAP | Library Sno-Isle BOND (Cap Fac Imp Area) | 0.0528562629 | $70,000 | $70,000 | $3.70 | | |
| POCOUP | Port of Coupeville GEN | 0.1065226063 | $70,000 | $70,000 | $7.46 | | |
| POCOUPIDD | Port of Coupeville IDD | 0.3353038577 | $70,000 | $70,000 | $23.47 | | |
| COUPSDTECH | School 204 CP (TECH) | 0.1215123397 | $70,000 | $70,000 | $8.51 | | |
| SCH204MO | School 204 Enrichment | 0.6416662518 | $70,000 | $70,000 | $44.92 | | |
| ST | State School | 1.4761226122 | $70,000 | $70,000 | $103.33 | | |
| ST2 | State School Part 2 | 0.7953803475 | $70,000 | $70,000 | $55.68 | | |
| | Total Tax Rate: | 5.7722042210 | | | | | |
| | | | | Taxes w/Current Exemptions: | $404.06 | | |
| | | | | Taxes w/o Exemptions: | $404.06 | | |
Improvement / Building
Sketch
| No sketches available for this property. |
Property Image
Land
| 1 | 15 | SQ (12001-21780) | 0.0000 | 0.00 | 0.00 | 0.00 | 1.00 | $70,000 | $0 |
Roll Value History
| 2026 | N/A | N/A | N/A | N/A | N/A |
| 2025 | $0 | $70,000 | $0 | $70,000 | $70,000 |
| 2024 | $0 | $70,000 | $0 | $70,000 | $70,000 |
| 2023 | $0 | $70,000 | $0 | $70,000 | $70,000 |
| 2022 | $0 | $70,000 | $0 | $70,000 | $70,000 |
| 2021 | $0 | $50,000 | $0 | $50,000 | $50,000 |
| 2020 | $0 | $50,000 | $0 | $50,000 | $50,000 |
| 2019 | $0 | $50,000 | $0 | $50,000 | $50,000 |
| 2018 | $0 | $50,000 | $0 | $50,000 | $50,000 |
| 2017 | $0 | $50,000 | $0 | $50,000 | $50,000 |
| 2016 | $0 | $50,000 | $0 | $50,000 | $50,000 |
| 2015 | $0 | $50,000 | $0 | $50,000 | $50,000 |
| 2014 | $0 | $50,000 | $0 | $50,000 | $50,000 |
| 2013 | $0 | $50,000 | $0 | $50,000 | $50,000 |
| 2012 | $0 | $50,000 | $0 | $50,000 | $50,000 |
| 2011 | $0 | $50,000 | $0 | $50,000 | $50,000 |
| 2010 | $0 | $50,000 | $0 | $50,000 | $50,000 |
| 2009 | $0 | $55,000 | $0 | $55,000 | $55,000 |
| 2008 | $0 | $45,000 | $0 | $45,000 | $45,000 |
| 2007 | $0 | $45,000 | $0 | $45,000 | $45,000 |
Deed and Sales History
| 1 | 11/11/2021 | WD | Warranty Deed | JACKSON, ALEX R | REID, MICHAEL | | | $145,000.00 | 50893 | 4533778 |
| 2 | 06/01/1995 | DECREE | Divorce Decree/Legal Separation | JACKSON, ALEX R | JACKSON, ALEX R | | | $0.00 | 52207 | 95010148 |
| 3 | 09/01/1991 | WD | Warranty Deed | JOHNSON, DONALD R | JACKSON, ALEX R | | | $30,000.00 | 13447 | 91014736 |
| 4 | 09/01/1990 | OTHER | Other - Misc. Documents | JOHNSON, DONALD R | JOHNSON, DONALD R | | | $0.00 | 63822 | 90015625 |
| 5 | 07/01/1990 | WD | Warranty Deed | EASTMAN, LESLIE W | JOHNSON, DONALD R | | | $8,800.00 | 4300 | 90014152 |
| 6 | 01/01/1900 | OTHER | Other - Misc. Documents | Unknown | EASTMAN, LESLIE W | | | $0.00 | 0 | 0 |
Payout Agreement
| No payout information available.. |