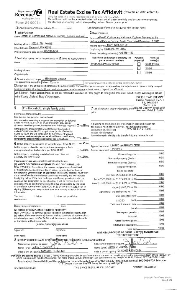
Property
Account |
| Property ID: | 291981 | Abbreviated Legal Description: | LAGOON PT LOT 9 BLK 4 |
| Geographic ID: | S7310-00-04009-0 | Agent Code: | |
| Type: | Real | | |
| Tax Area: | 320 - APPRAISER-Cpvl Schl Dist, Special Dist, improved & less than 1 acre | Land Use Code | 11 |
| Open Space: | N | DFL | N |
| Historic Property: | N | Remodel Property: | N |
| Multi-Family Redevelopment: | N | | |
| Township: | | Section: | |
| Range: | |
Location |
| Address: | 3586 MARINE VIEW DR GREENBANK, WA 98253 | Mapsco: | |
| Neighborhood: | Cycle 3 | Map ID: | 388 |
| Neighborhood CD: | 3 |
Owner |
| Name: | COCHRAN, KATHRYN ANN | Owner ID: | 298014 |
| Mailing Address: | JEFFREY DALE COCHRAN 10328 176TH AVE NE REDMOND, WA 89052 | % Ownership: | 100.0000000000% |
| | | Exemptions: | |
Taxes and Assessment Details
Values
| (+) Improvement Homesite Value: | + | $242,215 | |
| (+) Improvement Non-Homesite Value: | + | $0 | |
| (+) Land Homesite Value: | + | $570,000 | |
| (+) Land Non-Homesite Value: | + | $0 | |
| (+) Curr Use (HS): | + | $0 | $0 |
| (+) Curr Use (NHS): | + | $0 | $0 |
| | | -------------------------- | |
| (=) Market Value: | = | $812,215 | |
| (–) Productivity Loss: | – | $0 | |
| | | -------------------------- | |
| (=) Subtotal: | = | $812,215 | |
| (+) Senior Appraised Value: | + | $0 | |
| (+) Non-Senior Appraised Value: | + | $812,215 | |
| | | -------------------------- | |
| (=) Total Appraised Value: | = | $812,215 | |
| (–) Senior Exemption Loss: | – | $0 | |
| (–) Exemption Loss: | – | $0 | |
| | | -------------------------- | |
| (=) Taxable Value: | = | $812,215 | |
Taxing Jurisdiction
| Owner: | COCHRAN, KATHRYN ANN | | |
| % Ownership: | 100.0000000000% | | |
| Total Value: | $812,215 | | |
| Tax Area: | 320 - APPRAISER-Cpvl Schl Dist, Special Dist, improved & less than 1 acre |
| CF | Conservation Futures | 0.0313996660 | $812,215 | $812,215 | $25.50 | | |
| CEM2 | Cemetery #2 | 0.0092609791 | $812,215 | $812,215 | $7.52 | | |
| FIRE5 | Fire & Rescue Dist #5 C Whidbey GEN | 1.1892169230 | $812,215 | $812,215 | $965.90 | | |
| FIRE5BOND | Fire & Rescue Dist #5 C Whidbey BOND | 0.1394359503 | $812,215 | $812,215 | $113.25 | | |
| HOBOND | Hospital BOND | 0.1893405597 | $812,215 | $812,215 | $153.79 | | |
| HOGEN | Hospital GEN | 0.3848777722 | $812,215 | $812,215 | $312.60 | | |
| CE | County Current Expense | 0.3674210519 | $812,215 | $812,215 | $298.42 | | |
| CR | County Roads | 0.4614296361 | $812,215 | $812,215 | $374.78 | | |
| ISLANDEMS | Hospital GEN (EMS) | 0.4952018576 | $812,215 | $812,215 | $402.21 | | |
| LIB | Library Sno-Isle GEN | 0.3039084203 | $812,215 | $812,215 | $246.84 | | |
| LIBCAP | Library Sno-Isle BOND (Cap Fac Imp Area) | 0.0528562629 | $812,215 | $812,215 | $42.93 | | |
| POCOUP | Port of Coupeville GEN | 0.1065226063 | $812,215 | $812,215 | $86.52 | | |
| POCOUPIDD | Port of Coupeville IDD | 0.3353038577 | $812,215 | $812,215 | $272.34 | | |
| COUPSDTECH | School 204 CP (TECH) | 0.1215123397 | $812,215 | $812,215 | $98.69 | | |
| SCH204MO | School 204 Enrichment | 0.6416662518 | $812,215 | $812,215 | $521.17 | | |
| ST | State School | 1.4761226122 | $812,215 | $812,215 | $1,198.93 | | |
| ST2 | State School Part 2 | 0.7953803475 | $812,215 | $812,215 | $646.02 | | |
| | Total Tax Rate: | 7.1008570943 | | | | | |
| | | | | Taxes w/Current Exemptions: | $5,767.41 | | |
| | | | | Taxes w/o Exemptions: | $5,767.41 | | |
Improvement / Building
| Improvement #1: | RESIDENTIAL | State Code: | Y | 1204.0 sqft | Value: | $242,215 |
| Bathrooms: | 1.5 | Bedrooms: | 2 | | Ceiling: | DRY WALL SPRAYED | Exterior Wall/Cover: | SHINGLE | | Floor Covering: | HARDWOOD 100% | Floor Structure: | WOOD W/SUBFLOOR | | Foundation: | CONCRETE | Interior Finish: | DRYWALL PAINT | | Plumbing Fixture Cnt: | 9 | Roof Slope: | 4" IN 12" | | Roof Structure/Cover: | CJ ASPHALT |   |   |
|
| | Type | Description | Class CD | Sub Class CD | Year Built | Area |
| | BAS | BASE/MAIN FLOOR | 3 | 0 | 2000 | 1204.0 |
| | OP4 | OPEN PORCH W/CEILING-ROOF | 3 | 0 | 2000 | 49.0 |
| | OWP | OPEN WOOD PORCH W/STEPS | 3 | 0 | 2000 | 50.0 |
| | OWP | OPEN WOOD PORCH W/STEPS | 3 | 0 | 2000 | 156.0 |
| | OCP | OPEN CARPORT | 3 | 0 | 2000 | 200.0 |
Sketch
Property Image
Land
| 1 | 14 | SQ (08001-12000) | 0.0000 | 0.00 | 0.00 | 0.00 | 1.00 | $570,000 | $0 |
Roll Value History
| 2026 | N/A | N/A | N/A | N/A | N/A |
| 2025 | $242,215 | $570,000 | $0 | $812,215 | $812,215 |
| 2024 | $245,272 | $570,000 | $0 | $815,272 | $815,272 |
| 2023 | $248,328 | $570,000 | $0 | $818,328 | $818,328 |
| 2022 | $227,634 | $520,000 | $0 | $747,634 | $747,634 |
| 2021 | $200,342 | $260,000 | $0 | $460,342 | $460,342 |
| 2020 | $194,942 | $260,000 | $0 | $454,942 | $454,942 |
| 2019 | $169,097 | $220,000 | $0 | $389,097 | $254,697 |
| 2018 | $169,607 | $190,000 | $0 | $359,607 | $254,697 |
| 2017 | $170,624 | $150,000 | $0 | $320,624 | $250,624 |
| 2016 | $172,661 | $150,000 | $0 | $322,661 | $129,064 |
| 2015 | $174,697 | $150,000 | $0 | $324,697 | $254,697 |
| 2014 | $176,734 | $153,000 | $0 | $329,734 | $329,734 |
| 2013 | $180,326 | $153,000 | $0 | $333,326 | $333,326 |
| 2012 | $182,362 | $153,000 | $0 | $335,362 | $335,362 |
| 2011 | $184,399 | $180,000 | $0 | $364,399 | $364,399 |
| 2010 | $188,208 | $180,000 | $0 | $368,208 | $368,208 |
| 2009 | $196,179 | $240,000 | $0 | $436,179 | $436,179 |
| 2008 | $198,517 | $240,000 | $0 | $438,517 | $438,517 |
| 2007 | $192,913 | $230,000 | $0 | $422,913 | $422,913 |
Deed and Sales History
| 1 | 12/15/2025 | WD | Warranty Deed | COCHRAN, KATHRYN ANN | JEFFREY AND KATHRYN COCHRAN FAMILY TRUST | | | $0.00 | 65721 | 4594672 |
| 2 | 11/23/2020 | WD | Warranty Deed | SPENCER, GERRI | COCHRAN, KATHRYN ANN | | | $600,000.00 | 45915 | 4503698 |
| 3 | 05/15/1999 | WD | Warranty Deed | VOLLBRACHT, EULA P | SPENCER, GERRI | | | $100,000.00 | 92102 | 99013011 |
| 4 | 12/01/1995 | QCD | Quit Claim Deed | VOLLBRACHT, EULA P | VOLLBRACHT, EULA P | | | $0.00 | 54408 | 95020394 |
| 5 | 04/01/1983 | QCD | Quit Claim Deed | VOLLBRACHT, EDMUND R | VOLLBRACHT, EULA P | | | $0.00 | 31221 | 409323 |
| 6 | 01/01/1900 | OTHER | Other - Misc. Documents | Unknown | VOLLBRACHT, EDMUND R | | | $0.00 | 0 | 0 |
Payout Agreement
| No payout information available.. |