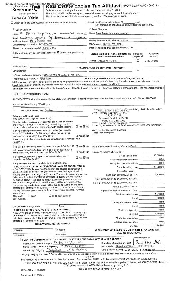
Property
Account |
| Property ID: | 293818 | Abbreviated Legal Description: | LAGOON PT LOT 14 BLK 12 INCL ADJ TIDES DRAINFIELD LOC 7310-02- 00049-0 AF#90010003 |
| Geographic ID: | S7310-00-12014-0 | Agent Code: | |
| Type: | Real | | |
| Tax Area: | 320 - APPRAISER-Cpvl Schl Dist, Special Dist, improved & less than 1 acre | Land Use Code | 11 |
| Open Space: | N | DFL | N |
| Historic Property: | N | Remodel Property: | N |
| Multi-Family Redevelopment: | N | | |
| Township: | | Section: | |
| Range: | |
Location |
| Address: | 3738 OCEANSIDE DR GREENBANK, WA 98253 | Mapsco: | |
| Neighborhood: | Cycle 3 | Map ID: | 394 |
| Neighborhood CD: | 3 |
Owner |
| Name: | SETTER, WILLIAM | Owner ID: | 299827 |
| Mailing Address: | KATHLEEN YAMAMOTO 3738 OCEANSIDE DR GREENBANK, WA 98253 | % Ownership: | 100.0000000000% |
| | | Exemptions: | |
Taxes and Assessment Details
Values
| (+) Improvement Homesite Value: | + | $0 | |
| (+) Improvement Non-Homesite Value: | + | $402,295 | |
| (+) Land Homesite Value: | + | $0 | |
| (+) Land Non-Homesite Value: | + | $690,600 | |
| (+) Curr Use (HS): | + | $0 | $0 |
| (+) Curr Use (NHS): | + | $0 | $0 |
| | | -------------------------- | |
| (=) Market Value: | = | $1,092,895 | |
| (–) Productivity Loss: | – | $0 | |
| | | -------------------------- | |
| (=) Subtotal: | = | $1,092,895 | |
| (+) Senior Appraised Value: | + | $0 | |
| (+) Non-Senior Appraised Value: | + | $1,092,895 | |
| | | -------------------------- | |
| (=) Total Appraised Value: | = | $1,092,895 | |
| (–) Senior Exemption Loss: | – | $0 | |
| (–) Exemption Loss: | – | $0 | |
| | | -------------------------- | |
| (=) Taxable Value: | = | $1,092,895 | |
Taxing Jurisdiction
| Owner: | SETTER, WILLIAM | | |
| % Ownership: | 100.0000000000% | | |
| Total Value: | $1,092,895 | | |
| Tax Area: | 320 - APPRAISER-Cpvl Schl Dist, Special Dist, improved & less than 1 acre |
| CF | Conservation Futures | 0.0313996660 | $1,092,895 | $1,092,895 | $34.32 | | |
| CEM2 | Cemetery #2 | 0.0092609791 | $1,092,895 | $1,092,895 | $10.12 | | |
| FIRE5 | Fire & Rescue Dist #5 C Whidbey GEN | 1.1892169230 | $1,092,895 | $1,092,895 | $1,299.69 | | |
| FIRE5BOND | Fire & Rescue Dist #5 C Whidbey BOND | 0.1394359503 | $1,092,895 | $1,092,895 | $152.39 | | |
| HOBOND | Hospital BOND | 0.1893405597 | $1,092,895 | $1,092,895 | $206.93 | | |
| HOGEN | Hospital GEN | 0.3848777722 | $1,092,895 | $1,092,895 | $420.63 | | |
| CE | County Current Expense | 0.3674210519 | $1,092,895 | $1,092,895 | $401.55 | | |
| CR | County Roads | 0.4614296361 | $1,092,895 | $1,092,895 | $504.29 | | |
| ISLANDEMS | Hospital GEN (EMS) | 0.4952018576 | $1,092,895 | $1,092,895 | $541.20 | | |
| LIB | Library Sno-Isle GEN | 0.3039084203 | $1,092,895 | $1,092,895 | $332.14 | | |
| LIBCAP | Library Sno-Isle BOND (Cap Fac Imp Area) | 0.0528562629 | $1,092,895 | $1,092,895 | $57.77 | | |
| POCOUP | Port of Coupeville GEN | 0.1065226063 | $1,092,895 | $1,092,895 | $116.42 | | |
| POCOUPIDD | Port of Coupeville IDD | 0.3353038577 | $1,092,895 | $1,092,895 | $366.45 | | |
| COUPSDTECH | School 204 CP (TECH) | 0.1215123397 | $1,092,895 | $1,092,895 | $132.80 | | |
| SCH204MO | School 204 Enrichment | 0.6416662518 | $1,092,895 | $1,092,895 | $701.27 | | |
| ST | State School | 1.4761226122 | $1,092,895 | $1,092,895 | $1,613.25 | | |
| ST2 | State School Part 2 | 0.7953803475 | $1,092,895 | $1,092,895 | $869.27 | | |
| | Total Tax Rate: | 7.1008570943 | | | | | |
| | | | | Taxes w/Current Exemptions: | $7,760.49 | | |
| | | | | Taxes w/o Exemptions: | $7,760.49 | | |
Improvement / Building
| Improvement #1: | RESIDENTIAL | State Code: | Y | 3604.0 sqft | Value: | $402,295 |
| Bathrooms: | 2 | Bedrooms: | 2 | | Ceiling: | DRYWALL PAINTED | Exterior Wall/Cover: | PLY/HARDBOARD T-111 | | Floor Covering: | CARPET/VINYL 80-20 | Floor Structure: | WOOD W/SUBFLOOR | | Foundation: | CONCRETE | Heating: | FLOOR/WALL-OIL | | Interior Finish: | DRYWALL PAINT | Plumbing Fixture Cnt: | 10 | | Roof Slope: | 6" IN 12" | Roof Structure/Cover: | CJ ALUMINIUM HEAVY |
|
| | Type | Description | Class CD | Sub Class CD | Year Built | Area |
| | BAS | BASE/MAIN FLOOR | 3 | 0 | 1990 | 1476.0 |
| | AGR | ATTACHED GARAGE | 3 | 0 | 1990 | 716.0 |
| | UPS | UPPER STORY | 3 | 0 | 1990 | 2128.0 |
| | BAR | BALCONY W/ROOF | 3 | 0 | 1990 | 96.0 |
| | OWP | OPEN WOOD PORCH W/STEPS | 3 | 0 | 1990 | 442.0 |
| | OWC | OPEN WOOD PORCH W/STEPS/ROOF/C | 3 | 0 | 1990 | 64.0 |
Sketch
Property Image
Land
| 1 | LB | LOW BANK | 0.0000 | 0.00 | 60.00 | 0.00 | 1.00 | $690,000 | $0 |
| 2 | 55 | TIDES | 0.0000 | 0.00 | 60.00 | 0.00 | 1.00 | $600 | $0 |
Roll Value History
| 2026 | N/A | N/A | N/A | N/A | N/A |
| 2025 | $402,295 | $690,600 | $0 | $1,092,895 | $1,092,895 |
| 2024 | $407,941 | $690,600 | $0 | $1,098,541 | $1,098,541 |
| 2023 | $413,588 | $690,600 | $0 | $1,104,188 | $1,104,188 |
| 2022 | $379,630 | $660,600 | $0 | $1,040,230 | $1,040,230 |
| 2021 | $285,610 | $550,600 | $0 | $836,210 | $836,210 |
| 2020 | $279,397 | $550,600 | $0 | $829,997 | $829,997 |
| 2019 | $229,021 | $600,600 | $0 | $829,621 | $829,621 |
| 2018 | $229,802 | $500,600 | $0 | $730,402 | $730,402 |
| 2017 | $231,359 | $500,600 | $0 | $731,959 | $731,959 |
| 2016 | $234,480 | $500,600 | $0 | $735,080 | $735,080 |
| 2015 | $237,597 | $500,600 | $0 | $738,197 | $738,197 |
| 2014 | $240,714 | $500,600 | $0 | $741,314 | $741,314 |
| 2013 | $237,597 | $421,458 | $0 | $659,055 | $659,055 |
| 2012 | $240,714 | $421,458 | $0 | $662,172 | $662,172 |
| 2011 | $243,832 | $421,458 | $0 | $665,290 | $665,290 |
| 2010 | $255,752 | $421,458 | $0 | $677,210 | $677,210 |
| 2009 | $266,606 | $603,150 | $0 | $869,756 | $869,756 |
| 2008 | $269,763 | $556,800 | $0 | $826,563 | $826,563 |
| 2007 | $272,928 | $556,380 | $0 | $829,308 | $829,308 |
Deed and Sales History
| 1 | 06/02/2021 | WD | Warranty Deed | ROBERTS, VICTORIA LYNN | SETTER, WILLIAM | | | $1,650,000.00 | 48728 | 4522117 |
|   | |
| 2 | 12/16/2011 | WD | Warranty Deed | ROBERTS, FRANK D | ROBERTS, VICTORIA LYNN | | | $200,000.00 | 6497 | 4307245 |
| 3 | 10/01/1989 | WD | Warranty Deed | MICKELSON, HOWARD R | ROBERTS, FRANK D | | | $265,500.00 | 94683 | 89015195 |
| 4 | 01/01/1900 | OTHER | Other - Misc. Documents | Unknown | MICKELSON, HOWARD R | | | $0.00 | 0 | 0 |
Payout Agreement
| No payout information available.. |