Property
Account |
| Property ID: | 294452 | Abbreviated Legal Description: | LAGOON PT 2 LOT 39 |
| Geographic ID: | S7310-02-00039-0 | Agent Code: | |
| Type: | Real | | |
| Tax Area: | 320 - APPRAISER-Cpvl Schl Dist, Special Dist, improved & less than 1 acre | Land Use Code | 11 |
| Open Space: | N | DFL | N |
| Historic Property: | N | Remodel Property: | N |
| Multi-Family Redevelopment: | N | | |
| Township: | | Section: | |
| Range: | |
Location |
| Address: | 3699 OCEANSIDE DR GREENBANK, WA 98253 | Mapsco: | |
| Neighborhood: | Cycle 3 | Map ID: | 394 |
| Neighborhood CD: | 3 |
Owner |
| Name: | FRINK TRUSTEE, LLOYD D | Owner ID: | 264674 |
| Mailing Address: | JANET ELIZABETH ANGELL FRINK TRUSTEE 1029 37TH AVE E SEATTLE, WA 98112 | % Ownership: | 100.0000000000% |
| | | Exemptions: | |
Taxes and Assessment Details
Values
| (+) Improvement Homesite Value: | + | $0 | |
| (+) Improvement Non-Homesite Value: | + | $34,000 | |
| (+) Land Homesite Value: | + | $0 | |
| (+) Land Non-Homesite Value: | + | $285,000 | |
| (+) Curr Use (HS): | + | $0 | $0 |
| (+) Curr Use (NHS): | + | $0 | $0 |
| | | -------------------------- | |
| (=) Market Value: | = | $319,000 | |
| (–) Productivity Loss: | – | $0 | |
| | | -------------------------- | |
| (=) Subtotal: | = | $319,000 | |
| (+) Senior Appraised Value: | + | $0 | |
| (+) Non-Senior Appraised Value: | + | $319,000 | |
| | | -------------------------- | |
| (=) Total Appraised Value: | = | $319,000 | |
| (–) Senior Exemption Loss: | – | $0 | |
| (–) Exemption Loss: | – | $0 | |
| | | -------------------------- | |
| (=) Taxable Value: | = | $319,000 | |
Taxing Jurisdiction
| Owner: | FRINK TRUSTEE, LLOYD D | | |
| % Ownership: | 100.0000000000% | | |
| Total Value: | $319,000 | | |
| Tax Area: | 320 - APPRAISER-Cpvl Schl Dist, Special Dist, improved & less than 1 acre |
| CF | Conservation Futures | 0.0313996660 | $319,000 | $319,000 | $10.02 | | |
| CEM2 | Cemetery #2 | 0.0092609791 | $319,000 | $319,000 | $2.95 | | |
| FIRE5 | Fire & Rescue Dist #5 C Whidbey GEN | 1.1892169230 | $319,000 | $319,000 | $379.36 | | |
| FIRE5BOND | Fire & Rescue Dist #5 C Whidbey BOND | 0.1394359503 | $319,000 | $319,000 | $44.48 | | |
| HOBOND | Hospital BOND | 0.1893405597 | $319,000 | $319,000 | $60.40 | | |
| HOGEN | Hospital GEN | 0.3848777722 | $319,000 | $319,000 | $122.78 | | |
| CE | County Current Expense | 0.3674210519 | $319,000 | $319,000 | $117.21 | | |
| CR | County Roads | 0.4614296361 | $319,000 | $319,000 | $147.20 | | |
| ISLANDEMS | Hospital GEN (EMS) | 0.4952018576 | $319,000 | $319,000 | $157.97 | | |
| LIB | Library Sno-Isle GEN | 0.3039084203 | $319,000 | $319,000 | $96.95 | | |
| LIBCAP | Library Sno-Isle BOND (Cap Fac Imp Area) | 0.0528562629 | $319,000 | $319,000 | $16.86 | | |
| POCOUP | Port of Coupeville GEN | 0.1065226063 | $319,000 | $319,000 | $33.98 | | |
| POCOUPIDD | Port of Coupeville IDD | 0.3353038577 | $319,000 | $319,000 | $106.96 | | |
| COUPSDTECH | School 204 CP (TECH) | 0.1215123397 | $319,000 | $319,000 | $38.76 | | |
| SCH204MO | School 204 Enrichment | 0.6416662518 | $319,000 | $319,000 | $204.69 | | |
| ST | State School | 1.4761226122 | $319,000 | $319,000 | $470.88 | | |
| ST2 | State School Part 2 | 0.7953803475 | $319,000 | $319,000 | $253.73 | | |
| | Total Tax Rate: | 7.1008570943 | | | | | |
| | | | | Taxes w/Current Exemptions: | $2,265.18 | | |
| | | | | Taxes w/o Exemptions: | $2,265.18 | | |
Improvement / Building
| Improvement #1: | RESIDENTIAL | State Code: | Y | 0.0 sqft | Value: | $34,000 |
Sketch
| No sketches available for this property. |
Property Image
Land
| 1 | LB | LOW BANK | 0.0000 | 0.00 | 62.00 | 0.00 | 1.00 | $285,000 | $0 |
Roll Value History
| 2026 | N/A | N/A | N/A | N/A | N/A |
| 2025 | $34,000 | $285,000 | $0 | $319,000 | $319,000 |
| 2024 | $34,000 | $285,000 | $0 | $319,000 | $319,000 |
| 2023 | $34,000 | $285,000 | $0 | $319,000 | $319,000 |
| 2022 | $34,000 | $275,000 | $0 | $309,000 | $309,000 |
| 2021 | $34,000 | $200,000 | $0 | $234,000 | $234,000 |
| 2020 | $34,000 | $200,000 | $0 | $234,000 | $234,000 |
| 2019 | $6,371 | $200,000 | $0 | $206,371 | $206,371 |
| 2018 | $6,371 | $180,000 | $0 | $186,371 | $186,371 |
| 2017 | $6,371 | $180,000 | $0 | $186,371 | $186,371 |
| 2016 | $6,371 | $140,000 | $0 | $146,371 | $146,371 |
| 2015 | $5,371 | $140,000 | $0 | $145,371 | $145,371 |
| 2014 | $5,371 | $150,000 | $0 | $155,371 | $155,371 |
| 2013 | $5,371 | $150,000 | $0 | $155,371 | $155,371 |
| 2012 | $5,371 | $191,580 | $0 | $196,951 | $196,951 |
| 2011 | $5,371 | $191,580 | $0 | $196,951 | $196,951 |
| 2010 | $5,371 | $191,580 | $0 | $196,951 | $196,951 |
| 2009 | $5,416 | $293,756 | $0 | $299,172 | $299,172 |
| 2008 | $5,460 | $293,756 | $0 | $299,216 | $299,216 |
| 2007 | $3,000 | $234,054 | $0 | $237,054 | $237,054 |
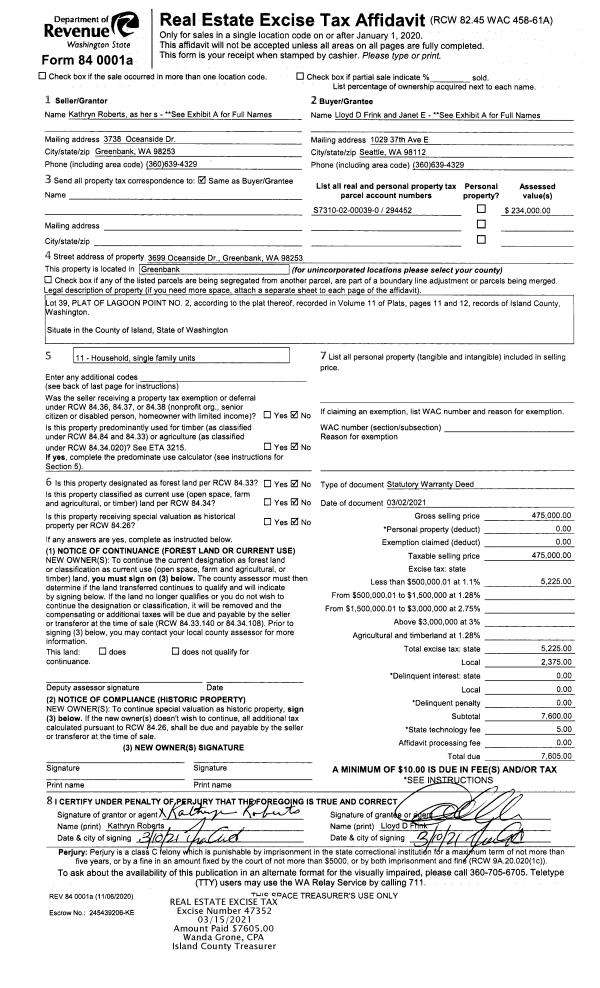
Deed and Sales History
| 1 | 03/02/2021 | WD | Warranty Deed | BENNETT, KATHRYN | FRINK TRUSTEE, LLOYD D | | | $475,000.00 | 47352 | 4513616 |
| 2 | 12/06/2011 | PRD | Personal Representatives Deed | BENNETT, ROBERT | BENNETT, KATHRYN | | | $0.00 | 6386 | 4306370 |
| 3 | 04/19/2000 | QCD | Quit Claim Deed | RUFFOLO TRUST, BARBARA J | RUFFOLO TRUST, BARBARA J | | | $0.00 | 1420 | 20006949 |
| 4 | 04/04/2000 | WD | Warranty Deed | RUFFOLO TRUST, BARBARA J | BENNETT, ROBERT | | | $95,000.00 | 1421 | 20006950 |
| 5 | 11/24/1998 | PRD | Personal Representatives Deed | Unknown | RUFFOLO TRUST, BARBARA J | | | $0.00 | 85114 | 98028013 |
Payout Agreement
| No payout information available.. |