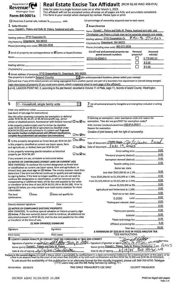
Property
Account |
| Property ID: | 294498 | Abbreviated Legal Description: | LAGOON PT 2 LOT 43 |
| Geographic ID: | S7310-02-00043-0 | Agent Code: | |
| Type: | Real | | |
| Tax Area: | 320 - APPRAISER-Cpvl Schl Dist, Special Dist, improved & less than 1 acre | Land Use Code | 11 |
| Open Space: | N | DFL | N |
| Historic Property: | N | Remodel Property: | N |
| Multi-Family Redevelopment: | N | | |
| Township: | | Section: | |
| Range: | |
Location |
| Address: | 3715 OCEANSIDE DR GREENBANK, WA 98253 | Mapsco: | |
| Neighborhood: | Cycle 3 | Map ID: | 394 |
| Neighborhood CD: | 3 |
Owner |
| Name: | PETERS JTWROS, DONALD L | Owner ID: | 315562 |
| Mailing Address: | SALLY M PETERS JTWROS CHRISTOPHER LEE PETERS JTWROS 3715 OCEANSIDE DR GREENBANK, WA 98253 | % Ownership: | 100.0000000000% |
| | | Exemptions: | |
Taxes and Assessment Details
Values
| (+) Improvement Homesite Value: | + | $0 | |
| (+) Improvement Non-Homesite Value: | + | $285,312 | |
| (+) Land Homesite Value: | + | $0 | |
| (+) Land Non-Homesite Value: | + | $490,000 | |
| (+) Curr Use (HS): | + | $0 | $0 |
| (+) Curr Use (NHS): | + | $0 | $0 |
| | | -------------------------- | |
| (=) Market Value: | = | $775,312 | |
| (–) Productivity Loss: | – | $0 | |
| | | -------------------------- | |
| (=) Subtotal: | = | $775,312 | |
| (+) Senior Appraised Value: | + | $0 | |
| (+) Non-Senior Appraised Value: | + | $775,312 | |
| | | -------------------------- | |
| (=) Total Appraised Value: | = | $775,312 | |
| (–) Senior Exemption Loss: | – | $0 | |
| (–) Exemption Loss: | – | $0 | |
| | | -------------------------- | |
| (=) Taxable Value: | = | $775,312 | |
Taxing Jurisdiction
| Owner: | PETERS JTWROS, DONALD L | | |
| % Ownership: | 100.0000000000% | | |
| Total Value: | $775,312 | | |
| Tax Area: | 320 - APPRAISER-Cpvl Schl Dist, Special Dist, improved & less than 1 acre |
| CF | Conservation Futures | 0.0313996660 | $775,312 | $775,312 | $24.34 | | |
| CEM2 | Cemetery #2 | 0.0092609791 | $775,312 | $775,312 | $7.18 | | |
| FIRE5 | Fire & Rescue Dist #5 C Whidbey GEN | 1.1892169230 | $775,312 | $775,312 | $922.01 | | |
| FIRE5BOND | Fire & Rescue Dist #5 C Whidbey BOND | 0.1394359503 | $775,312 | $775,312 | $108.11 | | |
| HOBOND | Hospital BOND | 0.1893405597 | $775,312 | $775,312 | $146.80 | | |
| HOGEN | Hospital GEN | 0.3848777722 | $775,312 | $775,312 | $298.40 | | |
| CE | County Current Expense | 0.3674210519 | $775,312 | $775,312 | $284.87 | | |
| CR | County Roads | 0.4614296361 | $775,312 | $775,312 | $357.75 | | |
| ISLANDEMS | Hospital GEN (EMS) | 0.4952018576 | $775,312 | $775,312 | $383.94 | | |
| LIB | Library Sno-Isle GEN | 0.3039084203 | $775,312 | $775,312 | $235.62 | | |
| LIBCAP | Library Sno-Isle BOND (Cap Fac Imp Area) | 0.0528562629 | $775,312 | $775,312 | $40.98 | | |
| POCOUP | Port of Coupeville GEN | 0.1065226063 | $775,312 | $775,312 | $82.59 | | |
| POCOUPIDD | Port of Coupeville IDD | 0.3353038577 | $775,312 | $775,312 | $259.97 | | |
| COUPSDTECH | School 204 CP (TECH) | 0.1215123397 | $775,312 | $775,312 | $94.21 | | |
| SCH204MO | School 204 Enrichment | 0.6416662518 | $775,312 | $775,312 | $497.49 | | |
| ST | State School | 1.4761226122 | $775,312 | $775,312 | $1,144.46 | | |
| ST2 | State School Part 2 | 0.7953803475 | $775,312 | $775,312 | $616.67 | | |
| | Total Tax Rate: | 7.1008570943 | | | | | |
| | | | | Taxes w/Current Exemptions: | $5,505.39 | | |
| | | | | Taxes w/o Exemptions: | $5,505.39 | | |
Improvement / Building
| Improvement #1: | RESIDENTIAL | State Code: | Y | 1570.3 sqft | Value: | $285,312 |
| Bathrooms: | 2 | Bedrooms: | 3 | | Ceiling: | DRYWALL PAINTED | Cooling: | HEAT PUMP/CONV/V | | Exterior Wall/Cover: | CEMENT FIBER | Floor Covering: | CARPET/VINYL 80-20 | | Floor Structure: | WOOD W/SUBFLOOR | Foundation: | CONCRETE | | Interior Finish: | DRYWALL PAINT | Plumbing Fixture Cnt: | 9 | | Roof Slope: | 5" IN 12" | Roof Structure/Cover: | CJ ASPHALT |
|
| | Type | Description | Class CD | Sub Class CD | Year Built | Area |
| | BAS | BASE/MAIN FLOOR | 3 | 0 | 1995 | 1570.3 |
| | AGR | ATTACHED GARAGE | 3 | 0 | 1995 | 468.0 |
| | OWP | OPEN WOOD PORCH W/STEPS | 3 | 0 | 1995 | 192.0 |
| | OWP | OPEN WOOD PORCH W/STEPS | 3 | 0 | 1995 | 216.0 |
| | oRAF | RAMP/FLOAT | 3 | 0 | 1995 | 0.0 |
Sketch
Property Image
Land
| 1 | LB | LOW BANK | 0.0000 | 0.00 | 60.00 | 0.00 | 1.00 | $490,000 | $0 |
Roll Value History
| 2026 | N/A | N/A | N/A | N/A | N/A |
| 2025 | $285,312 | $490,000 | $0 | $775,312 | $775,312 |
| 2024 | $288,682 | $490,000 | $0 | $778,682 | $778,682 |
| 2023 | $292,051 | $520,000 | $0 | $812,051 | $812,051 |
| 2022 | $269,873 | $500,000 | $0 | $769,873 | $769,873 |
| 2021 | $240,584 | $320,000 | $0 | $560,584 | $560,584 |
| 2020 | $235,168 | $320,000 | $0 | $555,168 | $555,168 |
| 2019 | $153,003 | $320,000 | $0 | $473,003 | $473,003 |
| 2018 | $153,464 | $300,000 | $0 | $453,464 | $453,464 |
| 2017 | $153,694 | $250,000 | $0 | $403,694 | $403,694 |
| 2016 | $155,529 | $240,000 | $0 | $395,529 | $395,529 |
| 2015 | $163,686 | $175,000 | $0 | $338,686 | $338,686 |
| 2014 | $165,552 | $150,000 | $0 | $315,552 | $315,552 |
| 2013 | $167,965 | $150,000 | $0 | $317,965 | $317,965 |
| 2012 | $169,880 | $185,400 | $0 | $355,280 | $355,280 |
| 2011 | $171,798 | $185,400 | $0 | $357,198 | $357,198 |
| 2010 | $178,397 | $185,400 | $0 | $363,797 | $363,797 |
| 2009 | $186,142 | $284,280 | $0 | $470,422 | $470,422 |
| 2008 | $188,953 | $284,280 | $0 | $473,233 | $473,233 |
| 2007 | $175,343 | $241,020 | $0 | $416,363 | $416,363 |
Deed and Sales History
| 1 | 02/19/2025 | QCD | Quit Claim Deed | PETERS, DONALD L | PETERS JTWROS, DONALD L | | | $0.00 | 62642 | 4582566 |
| 2 | 10/12/2015 | WD | Warranty Deed | HSI JTWROS, LIWAY | PETERS, DONALD L | | | $395,000.00 | 21818 | 4387983 |
| 3 | 03/05/2012 | WD | Warranty Deed | ALEXANDER, CHARLES F | HSI JTWROS, LIWAY | | | $328,000.00 | 7059 | 4311226 |
| 4 | 07/01/1996 | WD | Warranty Deed | SLOANE, BERNARD & | ALEXANDER, CHARLES F | | | $270,000.00 | 62737 | 96013416 |
| 5 | 09/01/1993 | WD | Warranty Deed | MARINO, LEONARD | SLOANE, BERNARD & | | | $115,000.00 | 33720 | 93019312 |
| 6 | 05/01/1990 | WD | Warranty Deed | LEVI, DENNIS L | MARINO, LEONARD | | | $83,500.00 | 3054 | 90009941 |
| 7 | 01/01/1900 | OTHER | Other - Misc. Documents | Unknown | LEVI, DENNIS L | | | $0.00 | 0 | 0 |
Payout Agreement
| No payout information available.. |