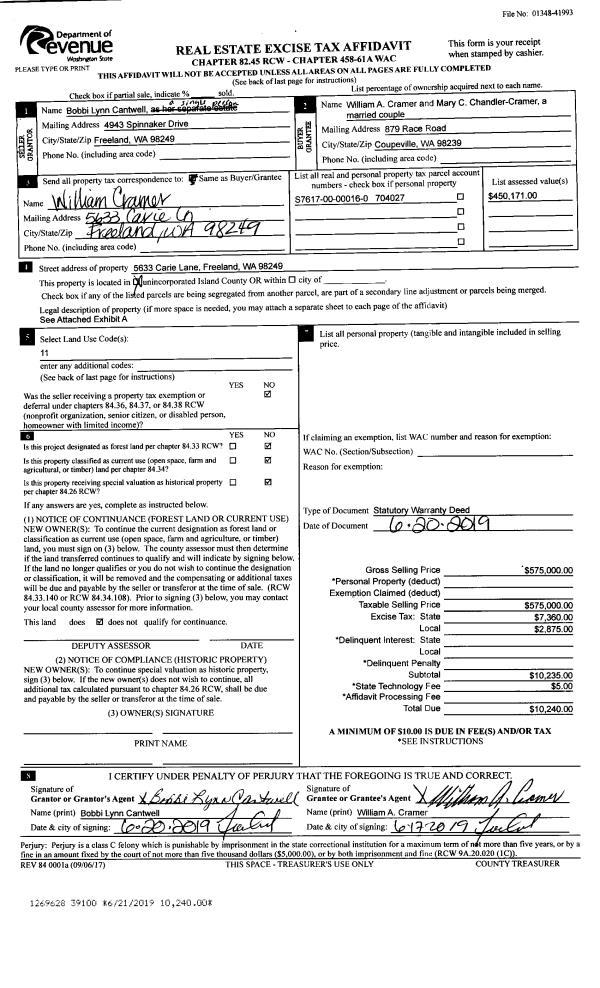
Property
Account |
| Property ID: | 294602 | Abbreviated Legal Description: | LAGOON PT 2 LOT 54 |
| Geographic ID: | S7310-02-00054-0 | Agent Code: | |
| Type: | Real | | |
| Tax Area: | 320 - APPRAISER-Cpvl Schl Dist, Special Dist, improved & less than 1 acre | Land Use Code | 11 |
| Open Space: | N | DFL | N |
| Historic Property: | N | Remodel Property: | N |
| Multi-Family Redevelopment: | N | | |
| Township: | | Section: | |
| Range: | |
Location |
| Address: | 3763 OCEANSIDE DR GREENBANK, WA 98253 | Mapsco: | |
| Neighborhood: | Cycle 3 | Map ID: | 394 |
| Neighborhood CD: | 3 |
Owner |
| Name: | PAINE TTEE, RICHARD A | Owner ID: | 288812 |
| Mailing Address: | LYNN C LUMBARD, TTEE 600 FIRST ST LANGLEY, WA 98260 | % Ownership: | 100.0000000000% |
| | | Exemptions: | |
Taxes and Assessment Details
Values
| (+) Improvement Homesite Value: | + | $0 | |
| (+) Improvement Non-Homesite Value: | + | $306,721 | |
| (+) Land Homesite Value: | + | $0 | |
| (+) Land Non-Homesite Value: | + | $490,000 | |
| (+) Curr Use (HS): | + | $0 | $0 |
| (+) Curr Use (NHS): | + | $0 | $0 |
| | | -------------------------- | |
| (=) Market Value: | = | $796,721 | |
| (–) Productivity Loss: | – | $0 | |
| | | -------------------------- | |
| (=) Subtotal: | = | $796,721 | |
| (+) Senior Appraised Value: | + | $0 | |
| (+) Non-Senior Appraised Value: | + | $796,721 | |
| | | -------------------------- | |
| (=) Total Appraised Value: | = | $796,721 | |
| (–) Senior Exemption Loss: | – | $0 | |
| (–) Exemption Loss: | – | $0 | |
| | | -------------------------- | |
| (=) Taxable Value: | = | $796,721 | |
Taxing Jurisdiction
| Owner: | PAINE TTEE, RICHARD A | | |
| % Ownership: | 100.0000000000% | | |
| Total Value: | $796,721 | | |
| Tax Area: | 320 - APPRAISER-Cpvl Schl Dist, Special Dist, improved & less than 1 acre |
| CF | Conservation Futures | 0.0313996660 | $796,721 | $796,721 | $25.02 | | |
| CEM2 | Cemetery #2 | 0.0092609791 | $796,721 | $796,721 | $7.38 | | |
| FIRE5 | Fire & Rescue Dist #5 C Whidbey GEN | 1.1892169230 | $796,721 | $796,721 | $947.47 | | |
| FIRE5BOND | Fire & Rescue Dist #5 C Whidbey BOND | 0.1394359503 | $796,721 | $796,721 | $111.09 | | |
| HOBOND | Hospital BOND | 0.1893405597 | $796,721 | $796,721 | $150.85 | | |
| HOGEN | Hospital GEN | 0.3848777722 | $796,721 | $796,721 | $306.64 | | |
| CE | County Current Expense | 0.3674210519 | $796,721 | $796,721 | $292.73 | | |
| CR | County Roads | 0.4614296361 | $796,721 | $796,721 | $367.63 | | |
| ISLANDEMS | Hospital GEN (EMS) | 0.4952018576 | $796,721 | $796,721 | $394.54 | | |
| LIB | Library Sno-Isle GEN | 0.3039084203 | $796,721 | $796,721 | $242.13 | | |
| LIBCAP | Library Sno-Isle BOND (Cap Fac Imp Area) | 0.0528562629 | $796,721 | $796,721 | $42.11 | | |
| POCOUP | Port of Coupeville GEN | 0.1065226063 | $796,721 | $796,721 | $84.87 | | |
| POCOUPIDD | Port of Coupeville IDD | 0.3353038577 | $796,721 | $796,721 | $267.14 | | |
| COUPSDTECH | School 204 CP (TECH) | 0.1215123397 | $796,721 | $796,721 | $96.81 | | |
| SCH204MO | School 204 Enrichment | 0.6416662518 | $796,721 | $796,721 | $511.23 | | |
| ST | State School | 1.4761226122 | $796,721 | $796,721 | $1,176.06 | | |
| ST2 | State School Part 2 | 0.7953803475 | $796,721 | $796,721 | $633.70 | | |
| | Total Tax Rate: | 7.1008570943 | | | | | |
| | | | | Taxes w/Current Exemptions: | $5,657.40 | | |
| | | | | Taxes w/o Exemptions: | $5,657.40 | | |
Improvement / Building
| Improvement #1: | RESIDENTIAL | State Code: | Y | 1516.0 sqft | Value: | $306,721 |
| Bathrooms: | 1.75 | Bedrooms: | 3 | | Ceiling: | DRYWALL PAINTED | Exterior Wall/Cover: | WOOD SIDING | | Floor Covering: | CARPET/VINYL 80-20 | Floor Structure: | WOOD W/SUBFLOOR | | Foundation: | CONCRETE | Heating: | FHA ELECTRIC | | Interior Finish: | DRYWALL PAINT | Plumbing Fixture Cnt: | 10 | | Roof Slope: | 4" IN 12" | Roof Structure/Cover: | CJ ASPHALT |
|
| | Type | Description | Class CD | Sub Class CD | Year Built | Area |
| | BAS | BASE/MAIN FLOOR | 3 | 0 | 1985 | 1516.0 |
| | BIG | BUILT IN GARAGE | 3 | 0 | 1985 | 456.0 |
| | OWP | OPEN WOOD PORCH W/STEPS | 3 | 0 | 1985 | 302.0 |
| | OWP | OPEN WOOD PORCH W/STEPS | 3 | 0 | 1985 | 280.0 |
| | ENP | ENCLOSED PORCH | 3 | 0 | 1985 | 106.0 |
| | oRAF | RAMP/FLOAT | 3 | 0 | 1985 | 0.0 |
Sketch
Property Image
Land
| 1 | LB | LOW BANK | 0.0000 | 0.00 | 60.00 | 0.00 | 1.00 | $490,000 | $0 |
Roll Value History
| 2026 | N/A | N/A | N/A | N/A | N/A |
| 2025 | $306,721 | $490,000 | $0 | $796,721 | $796,721 |
| 2024 | $310,300 | $490,000 | $0 | $800,300 | $800,300 |
| 2023 | $313,880 | $520,000 | $0 | $833,880 | $833,880 |
| 2022 | $289,640 | $500,000 | $0 | $789,640 | $789,640 |
| 2021 | $257,682 | $320,000 | $0 | $577,682 | $577,682 |
| 2020 | $251,489 | $320,000 | $0 | $571,489 | $571,489 |
| 2019 | $163,733 | $320,000 | $0 | $483,733 | $483,733 |
| 2018 | $164,223 | $300,000 | $0 | $464,223 | $464,223 |
| 2017 | $165,203 | $250,000 | $0 | $415,203 | $415,203 |
| 2016 | $141,315 | $240,000 | $0 | $381,315 | $381,315 |
| 2015 | $143,215 | $175,000 | $0 | $318,215 | $318,215 |
| 2014 | $145,116 | $150,000 | $0 | $295,116 | $295,116 |
| 2013 | $139,415 | $150,000 | $0 | $289,415 | $289,415 |
| 2012 | $141,315 | $185,400 | $0 | $326,715 | $326,715 |
| 2011 | $143,215 | $185,400 | $0 | $328,615 | $328,615 |
| 2010 | $151,259 | $185,400 | $0 | $336,659 | $336,659 |
| 2009 | $156,082 | $284,280 | $0 | $440,362 | $440,362 |
| 2008 | $158,341 | $284,280 | $0 | $442,621 | $442,621 |
| 2007 | $153,997 | $241,020 | $0 | $395,017 | $395,017 |
Deed and Sales History
| 1 | 05/23/2019 | WD | Warranty Deed | LUMBARD, LYNN C | PAINE TTEE, RICHARD A | | | $0.00 | 38833 | 4464756 |
| 2 | 03/15/2017 | PRD | Personal Representatives Deed | MILLER, WINLOCK W | LUMBARD, LYNN C | | | $596,500.00 | 28452 | 4418917 |
| 3 | 04/30/2007 | WD | Warranty Deed | MAXWELL, JACK F | MILLER, WINLOCK W | | | $629,000.00 | 71393 | 4200770 |
| 4 | 07/15/2002 | PRD | Personal Representatives Deed | MAHDAVI, FEREIDOON | MAXWELL, JACK F | | | $0.00 | 69694 | 0 |
| 5 | 01/01/1984 | WD | Warranty Deed | MAXWELL, JACK F | MAHDAVI, FEREIDOON | | | $42,500.00 | 40268 | 420494 |
| 6 | 01/01/1984 | WD | Warranty Deed | CHAMBERLAIN, NORMAN F | MAXWELL, JACK F | | | $42,500.00 | 40269 | 420495 |
| 7 | 01/01/1900 | OTHER | Other - Misc. Documents | Unknown | CHAMBERLAIN, NORMAN F | | | $0.00 | 0 | 0 |
Payout Agreement
| No payout information available.. |