Property
Account |
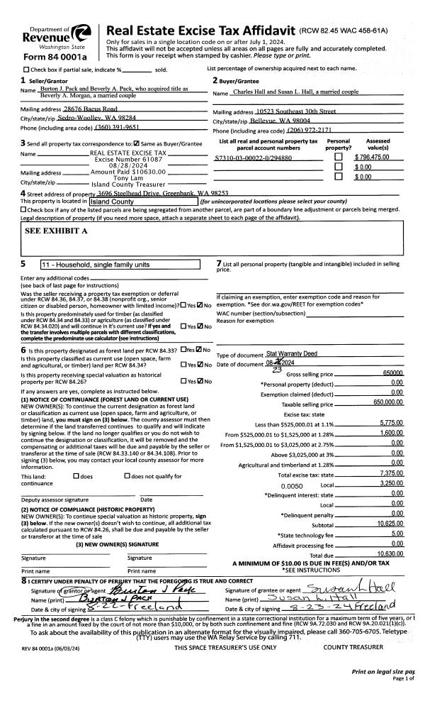
| Property ID: | 294880 | Abbreviated Legal Description: | LAGOON PT 3 LOT 22 |
| Geographic ID: | S7310-03-00022-0 | Agent Code: | |
| Type: | Real | | |
| Tax Area: | 320 - APPRAISER-Cpvl Schl Dist, Special Dist, improved & less than 1 acre | Land Use Code | 11 |
| Open Space: | N | DFL | N |
| Historic Property: | N | Remodel Property: | N |
| Multi-Family Redevelopment: | N | | |
| Township: | | Section: | |
| Range: | |
Location |
| Address: | 3696 STEELHEAD DR GREENBANK, WA 98253 | Mapsco: | |
| Neighborhood: | Cycle 3 | Map ID: | 394 |
| Neighborhood CD: | 3 |
Owner |
| Name: | HALL, CHARLES | Owner ID: | 313677 |
| Mailing Address: | SUSAN L HALL 10523 SOUTHEAST 30TH ST BELLEVUE, WA 98004 | % Ownership: | 100.0000000000% |
| | | Exemptions: | |
Taxes and Assessment Details
Values
| (+) Improvement Homesite Value: | + | $0 | |
| (+) Improvement Non-Homesite Value: | + | $267,666 | |
| (+) Land Homesite Value: | + | $0 | |
| (+) Land Non-Homesite Value: | + | $490,000 | |
| (+) Curr Use (HS): | + | $0 | $0 |
| (+) Curr Use (NHS): | + | $0 | $0 |
| | | -------------------------- | |
| (=) Market Value: | = | $757,666 | |
| (–) Productivity Loss: | – | $0 | |
| | | -------------------------- | |
| (=) Subtotal: | = | $757,666 | |
| (+) Senior Appraised Value: | + | $0 | |
| (+) Non-Senior Appraised Value: | + | $757,666 | |
| | | -------------------------- | |
| (=) Total Appraised Value: | = | $757,666 | |
| (–) Senior Exemption Loss: | – | $0 | |
| (–) Exemption Loss: | – | $0 | |
| | | -------------------------- | |
| (=) Taxable Value: | = | $757,666 | |
Taxing Jurisdiction
| Owner: | HALL, CHARLES | | |
| % Ownership: | 100.0000000000% | | |
| Total Value: | $757,666 | | |
| Tax Area: | 320 - APPRAISER-Cpvl Schl Dist, Special Dist, improved & less than 1 acre |
| CF | Conservation Futures | 0.0313996660 | $757,666 | $757,666 | $23.79 | | |
| CEM2 | Cemetery #2 | 0.0092609791 | $757,666 | $757,666 | $7.02 | | |
| FIRE5 | Fire & Rescue Dist #5 C Whidbey GEN | 1.1892169230 | $757,666 | $757,666 | $901.03 | | |
| FIRE5BOND | Fire & Rescue Dist #5 C Whidbey BOND | 0.1394359503 | $757,666 | $757,666 | $105.65 | | |
| HOBOND | Hospital BOND | 0.1893405597 | $757,666 | $757,666 | $143.46 | | |
| HOGEN | Hospital GEN | 0.3848777722 | $757,666 | $757,666 | $291.61 | | |
| CE | County Current Expense | 0.3674210519 | $757,666 | $757,666 | $278.38 | | |
| CR | County Roads | 0.4614296361 | $757,666 | $757,666 | $349.61 | | |
| ISLANDEMS | Hospital GEN (EMS) | 0.4952018576 | $757,666 | $757,666 | $375.20 | | |
| LIB | Library Sno-Isle GEN | 0.3039084203 | $757,666 | $757,666 | $230.26 | | |
| LIBCAP | Library Sno-Isle BOND (Cap Fac Imp Area) | 0.0528562629 | $757,666 | $757,666 | $40.05 | | |
| POCOUP | Port of Coupeville GEN | 0.1065226063 | $757,666 | $757,666 | $80.71 | | |
| POCOUPIDD | Port of Coupeville IDD | 0.3353038577 | $757,666 | $757,666 | $254.05 | | |
| COUPSDTECH | School 204 CP (TECH) | 0.1215123397 | $757,666 | $757,666 | $92.07 | | |
| SCH204MO | School 204 Enrichment | 0.6416662518 | $757,666 | $757,666 | $486.17 | | |
| ST | State School | 1.4761226122 | $757,666 | $757,666 | $1,118.41 | | |
| ST2 | State School Part 2 | 0.7953803475 | $757,666 | $757,666 | $602.63 | | |
| | Total Tax Rate: | 7.1008570943 | | | | | |
| | | | | Taxes w/Current Exemptions: | $5,380.10 | | |
| | | | | Taxes w/o Exemptions: | $5,380.10 | | |
Improvement / Building
| Improvement #1: | RESIDENTIAL | State Code: | Y | 2031.0 sqft | Value: | $267,666 |
| Bathrooms: | 2 | Bedrooms: | 2 | | Ceiling: | DRYWALL PAINTED | Exterior Wall/Cover: | CEMENT FIBER | | Floor Covering: | HARDWOOD/CARP 20-80 | Floor Structure: | WOOD W/SUBFLOOR | | Foundation: | CONCRETE | Heating: | WALL HEAT ELECTRIC | | Interior Finish: | DRYWALL PAINT | Plumbing Fixture Cnt: | 10 | | Roof Slope: | FLAT | Roof Structure/Cover: | CJ ALUMINIUM HEAVY |
|
| | Type | Description | Class CD | Sub Class CD | Year Built | Area |
| | BAS | BASE/MAIN FLOOR | 3 | 0 | 1975 | 1231.0 |
| | OP4 | OPEN PORCH W/CEILING-ROOF | 3 | 0 | 1975 | 55.0 |
| | oRAF | RAMP/FLOAT | 3 | 0 | 1975 | 0.0 |
| | BIG | BUILT IN GARAGE | 3 | 0 | 1975 | 494.0 |
| | DWN | DOWNSTAIRS LIVING AREA | 3 | 0 | 1975 | 800.0 |
| | OWC | OPEN WOOD PORCH W/STEPS/ROOF/C | 3 | 0 | 1975 | 96.0 |
Sketch
Property Image
Land
| 1 | LB | LOW BANK | 0.0000 | 0.00 | 60.00 | 0.00 | 1.00 | $490,000 | $0 |
Roll Value History
| 2026 | N/A | N/A | N/A | N/A | N/A |
| 2025 | $267,666 | $490,000 | $0 | $757,666 | $757,666 |
| 2024 | $306,475 | $490,000 | $0 | $796,475 | $796,475 |
| 2023 | $310,188 | $520,000 | $0 | $830,188 | $830,188 |
| 2022 | $285,756 | $500,000 | $0 | $785,756 | $785,756 |
| 2021 | $253,488 | $320,000 | $0 | $573,488 | $573,488 |
| 2020 | $247,966 | $320,000 | $0 | $567,966 | $567,966 |
| 2019 | $186,871 | $320,000 | $0 | $506,871 | $506,871 |
| 2018 | $187,447 | $300,000 | $0 | $487,447 | $487,447 |
| 2017 | $188,597 | $250,000 | $0 | $438,597 | $438,597 |
| 2016 | $190,898 | $180,000 | $0 | $370,898 | $370,898 |
| 2015 | $193,197 | $175,000 | $0 | $368,197 | $368,197 |
| 2014 | $195,497 | $150,000 | $0 | $345,497 | $345,497 |
| 2013 | $197,797 | $150,000 | $0 | $347,797 | $347,797 |
| 2012 | $200,097 | $185,400 | $0 | $385,497 | $385,497 |
| 2011 | $184,531 | $185,400 | $0 | $369,931 | $369,931 |
| 2010 | $191,130 | $185,400 | $0 | $376,530 | $376,530 |
| 2009 | $199,434 | $284,280 | $0 | $483,714 | $483,714 |
| 2008 | $202,003 | $284,280 | $0 | $486,283 | $486,283 |
| 2007 | $201,514 | $241,020 | $0 | $442,534 | $442,534 |
Deed and Sales History
| 1 | 08/23/2024 | WD | Warranty Deed | PACK, BURTON J / BEVERLY A | HALL, CHARLES | | | $650,000.00 | 61087 | 4576341 |
| 2 | 11/01/1997 | 5 | DNU - Marriage License/Name Change | PACK, BURTON J | PACK, BURTON J | | | $0.00 | 67674 | 97011626 |
| 3 | 09/01/1995 | WD | Warranty Deed | MINNEMAN, PAUL | PACK, BURTON J | | | $179,500.00 | 53440 | 95015766 |
| 4 | 01/01/1900 | OTHER | Other - Misc. Documents | Unknown | MINNEMAN, PAUL | | | $0.00 | 0 | 0 |
Payout Agreement
| No payout information available.. |