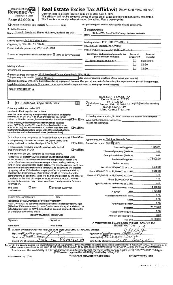
Property
Account |
| Property ID: | 295317 | Abbreviated Legal Description: | LAGOON PT 4 LOT 29 |
| Geographic ID: | S7310-04-00029-0 | Agent Code: | |
| Type: | Real | | |
| Tax Area: | 320 - APPRAISER-Cpvl Schl Dist, Special Dist, improved & less than 1 acre | Land Use Code | 11 |
| Open Space: | N | DFL | N |
| Historic Property: | N | Remodel Property: | N |
| Multi-Family Redevelopment: | N | | |
| Township: | | Section: | |
| Range: | |
Location |
| Address: | 3755 STEELHEAD DR GREENBANK, WA 98253 | Mapsco: | |
| Neighborhood: | Cycle 3 | Map ID: | 394 |
| Neighborhood CD: | 3 |
Owner |
| Name: | WERTH, RICHARD | Owner ID: | 303857 |
| Mailing Address: | KELLI CONLEY 17831 SE 102ND ST RENTON, WA 98059 | % Ownership: | 100.0000000000% |
| | | Exemptions: | |
Taxes and Assessment Details
Values
| (+) Improvement Homesite Value: | + | $0 | |
| (+) Improvement Non-Homesite Value: | + | $400,789 | |
| (+) Land Homesite Value: | + | $0 | |
| (+) Land Non-Homesite Value: | + | $490,000 | |
| (+) Curr Use (HS): | + | $0 | $0 |
| (+) Curr Use (NHS): | + | $0 | $0 |
| | | -------------------------- | |
| (=) Market Value: | = | $890,789 | |
| (–) Productivity Loss: | – | $0 | |
| | | -------------------------- | |
| (=) Subtotal: | = | $890,789 | |
| (+) Senior Appraised Value: | + | $0 | |
| (+) Non-Senior Appraised Value: | + | $890,789 | |
| | | -------------------------- | |
| (=) Total Appraised Value: | = | $890,789 | |
| (–) Senior Exemption Loss: | – | $0 | |
| (–) Exemption Loss: | – | $0 | |
| | | -------------------------- | |
| (=) Taxable Value: | = | $890,789 | |
Taxing Jurisdiction
| Owner: | WERTH, RICHARD | | |
| % Ownership: | 100.0000000000% | | |
| Total Value: | $890,789 | | |
| Tax Area: | 320 - APPRAISER-Cpvl Schl Dist, Special Dist, improved & less than 1 acre |
| CF | Conservation Futures | 0.0313996660 | $890,789 | $890,789 | $27.97 | | |
| CEM2 | Cemetery #2 | 0.0092609791 | $890,789 | $890,789 | $8.25 | | |
| FIRE5 | Fire & Rescue Dist #5 C Whidbey GEN | 1.1892169230 | $890,789 | $890,789 | $1,059.34 | | |
| FIRE5BOND | Fire & Rescue Dist #5 C Whidbey BOND | 0.1394359503 | $890,789 | $890,789 | $124.21 | | |
| HOBOND | Hospital BOND | 0.1893405597 | $890,789 | $890,789 | $168.66 | | |
| HOGEN | Hospital GEN | 0.3848777722 | $890,789 | $890,789 | $342.84 | | |
| CE | County Current Expense | 0.3674210519 | $890,789 | $890,789 | $327.29 | | |
| CR | County Roads | 0.4614296361 | $890,789 | $890,789 | $411.04 | | |
| ISLANDEMS | Hospital GEN (EMS) | 0.4952018576 | $890,789 | $890,789 | $441.12 | | |
| LIB | Library Sno-Isle GEN | 0.3039084203 | $890,789 | $890,789 | $270.72 | | |
| LIBCAP | Library Sno-Isle BOND (Cap Fac Imp Area) | 0.0528562629 | $890,789 | $890,789 | $47.08 | | |
| POCOUP | Port of Coupeville GEN | 0.1065226063 | $890,789 | $890,789 | $94.89 | | |
| POCOUPIDD | Port of Coupeville IDD | 0.3353038577 | $890,789 | $890,789 | $298.68 | | |
| COUPSDTECH | School 204 CP (TECH) | 0.1215123397 | $890,789 | $890,789 | $108.24 | | |
| SCH204MO | School 204 Enrichment | 0.6416662518 | $890,789 | $890,789 | $571.59 | | |
| ST | State School | 1.4761226122 | $890,789 | $890,789 | $1,314.91 | | |
| ST2 | State School Part 2 | 0.7953803475 | $890,789 | $890,789 | $708.52 | | |
| | Total Tax Rate: | 7.1008570943 | | | | | |
| | | | | Taxes w/Current Exemptions: | $6,325.35 | | |
| | | | | Taxes w/o Exemptions: | $6,325.35 | | |
Improvement / Building
| Improvement #1: | RESIDENTIAL | State Code: | Y | 1741.0 sqft | Value: | $400,789 |
| Bathrooms: | 2 | Bedrooms: | 3 | | Ceiling: | DRYWALL PAINTED | Cooling: | HEAT PUMP/CONV/V | | Exterior Wall/Cover: | CEMENT FIBER | Floor Covering: | HARDWOOD/CARP 20-80 | | Floor Structure: | WOOD W/SUBFLOOR | Foundation: | CONCRETE | | Interior Finish: | DRYWALL PAINT | Plumbing Fixture Cnt: | 13 | | Roof Slope: | 4" IN 12" | Roof Structure/Cover: | CJ ASPHALT |
|
| | Type | Description | Class CD | Sub Class CD | Year Built | Area |
| | BAS | BASE/MAIN FLOOR | 3 | 0 | 2018 | 1741.0 |
| | AGR | ATTACHED GARAGE | 3 | 0 | 2018 | 360.0 |
| | OWP | OPEN WOOD PORCH W/STEPS | 3 | 0 | 2018 | 336.0 |
| | OP4 | OPEN PORCH W/CEILING-ROOF | 3 | 0 | 2018 | 52.0 |
| | oRAF | RAMP/FLOAT | 3 | 0 | 2018 | 52.0 |
Sketch
Property Image
Land
| 1 | LB | LOW BANK | 0.0000 | 0.00 | 60.00 | 0.00 | 1.00 | $490,000 | $0 |
Roll Value History
| 2026 | N/A | N/A | N/A | N/A | N/A |
| 2025 | $400,789 | $490,000 | $0 | $890,789 | $890,789 |
| 2024 | $403,822 | $490,000 | $0 | $893,822 | $893,822 |
| 2023 | $406,855 | $520,000 | $0 | $926,855 | $926,855 |
| 2022 | $361,527 | $500,000 | $0 | $861,527 | $861,527 |
| 2021 | $319,328 | $320,000 | $0 | $639,328 | $639,328 |
| 2020 | $310,933 | $320,000 | $0 | $630,933 | $630,933 |
| 2019 | $238,387 | $320,000 | $0 | $558,387 | $558,387 |
| 2018 | $240,025 | $300,000 | $0 | $540,025 | $540,025 |
| 2017 | $33,768 | $180,000 | $0 | $213,768 | $213,768 |
| 2016 | $4,000 | $140,000 | $0 | $144,000 | $144,000 |
| 2015 | $3,000 | $140,000 | $0 | $143,000 | $143,000 |
| 2014 | $3,000 | $150,000 | $0 | $153,000 | $153,000 |
| 2013 | $3,000 | $150,000 | $0 | $153,000 | $153,000 |
| 2012 | $3,000 | $185,400 | $0 | $188,400 | $188,400 |
| 2011 | $3,000 | $185,400 | $0 | $188,400 | $188,400 |
| 2010 | $3,000 | $185,400 | $0 | $188,400 | $188,400 |
| 2009 | $3,000 | $284,280 | $0 | $287,280 | $287,280 |
| 2008 | $3,000 | $284,280 | $0 | $287,280 | $287,280 |
| 2007 | $3,000 | $241,020 | $0 | $244,020 | $244,020 |
Deed and Sales History
| 1 | 04/14/2022 | WD | Warranty Deed | MORRIS, JAMES L | WERTH, RICHARD | | | $1,175,000.00 | 52795 | 4543773 |
| 2 | 02/19/2016 | WD | Warranty Deed | SOUND COMMUNITY BANK | MORRIS, JAMES L | | | $151,000.00 | 23246 | 4394588 |
| 3 | 02/02/2016 | SHERIFFD | Sheriff Deed | SOUND COMMUNITY BANK | SOUND COMMUNITY BANK | | | $0.00 | 23198 | 4394368 |
| 4 | 01/09/2015 | SHERIFFD | Sheriff Deed | CHAPARRO, SAUL | SOUND COMMUNITY BANK | | | $0.00 | 19675 | 4378962 |
| 5 | 01/09/2001 | WD | Warranty Deed | FRENCH, PHILIP M | CHAPARRO, LAUL | | | $115,000.00 | 10112 | 20023290 |
| 6 | 04/01/1984 | REC | Real Estate Contract | MILES, JOSEPH E | FRENCH, PHILIP M | | | $46,500.00 | 40854 | 422840 |
| 7 | 01/01/1900 | OTHER | Other - Misc. Documents | Unknown | MILES, JOSEPH E | | | $0.00 | 0 | 0 |
Payout Agreement
| No payout information available.. |