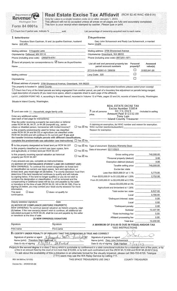
| 1 | 02/11/2023 | WD | Warranty Deed | EASTMAN III, THEODORE STERN | SCHOENROCK, GARY JOHN | | | $740,000.00 | 55854 | 4556713 |
| 2 | 01/25/2016 | CCOMPROP | Create Community Property | EASTMAN III, THEODORE STERN | EASTMAN III, THEODORE STERN | | | $0.00 | 23077 | 4393695 |
| 3 | 01/01/2012 | QCD | Quit Claim Deed | EASTMAN, SUSAN J | EASTMAN III, THEODORE STERN | | | $0.00 | 9076 | 4324442 |
| 4 | 08/04/2011 | ESTSEPPROP | Establish Separate Property | EASTMAN JR, THEODORE S | EASTMAN, SUSAN J | | | $0.00 | 5276 | 4299773 |
| 5 | 01/01/1900 | OTHER | Other - Misc. Documents | Unknown | EASTMAN, THEODORE S | | | $0.00 | 0 | 0 |