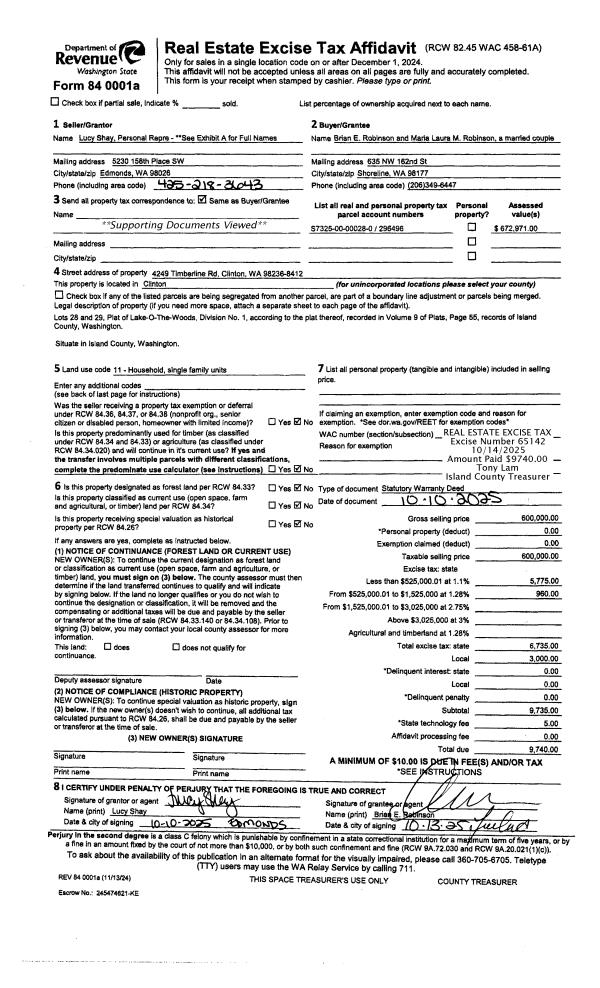
| 1 | 10/10/2025 | WD | Warranty Deed | LUCY SHAY, PR | ROBINSON, BRIAN E | | | $600,000.00 | 65142 | 4592164 |
| 2 | 08/12/2025 | QCD | Quit Claim Deed | OLSEN, KIMBERLY ANN | LUCY SHAY, PR | | | $0.00 | 64838 | 4591017 |
| 3 | 06/28/2023 | WD | Warranty Deed | JOHNSON TTEE, ANNETTE L | OLSEN, KIMBERLY ANN | | | $995,000.00 | 57225 | 4561920 |
| 4 | 08/08/2019 | QCD | Quit Claim Deed | CHAMBERS, OLGA B | JOHNSON TTEE, ANNETTE L | | | $0.00 | 39777 | 4468950 |
| 5 | 01/31/2013 | QCD | Quit Claim Deed | CHAMBERS, RONALD G | CHAMBERS, OLGA B | | | $0.00 | 29838 | 4424661 |
| 6 | 01/31/2013 | QCD | Quit Claim Deed | CHAMBERS TRUSTEE, RONALD G | CHAMBERS, RONALD G | | | $0.00 | 29837 | 4424660 |
| 7 | 02/16/2010 | QCD | Quit Claim Deed | CHAMBERS, RONALD G/OLGA B | CHAMBERS TRUSTEE, RONALD G | | | $0.00 | 313 | 4268672 |
| 8 | 05/27/2001 | QCD | Quit Claim Deed | CHAMBERS, RONALD G/OLGA B | CHAMBERS, RONALD G/OLGA B | | | $0.00 | 11424 | 20030755 |
| 9 | 11/30/2000 | QCD | Quit Claim Deed | CHAMBERS, RONALD G | CHAMBERS, RONALD G/OLGA B | | | $0.00 | 4653 | 20021587 |
| 10 | 08/01/1993 | WD | Warranty Deed | WORLAND, BYRON C | CHAMBERS, RONALD G | | | $225,000.00 | 33369 | 93017505 |
| 11 | 04/01/1985 | OTHER | Other - Misc. Documents | WORLAND, BYRON C | WORLAND, BYRON C | | | $0.00 | 61152 | 85004252 |
| 12 | 11/01/1978 | OTHER | Other - Misc. Documents | Unknown | WORLAND, BYRON C | | | $7,500.00 | 86078 | 344586 |