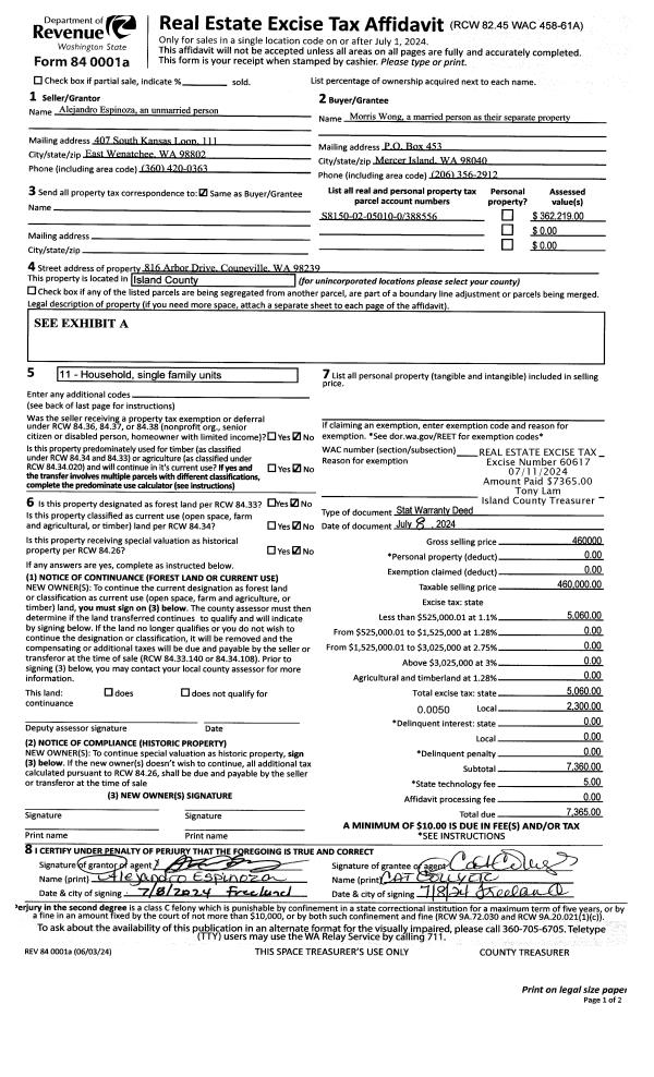
Property
Account |
| Property ID: | 297226 | Abbreviated Legal Description: | LK VU TERR LOT 39 |
| Geographic ID: | S7330-00-00039-0 | Agent Code: | |
| Type: | Real | | |
| Tax Area: | 790 - APPRAISER-S Whid Schl Dist, Special District, improved & less than 1 acre | Land Use Code | 11 |
| Open Space: | N | DFL | N |
| Historic Property: | N | Remodel Property: | N |
| Multi-Family Redevelopment: | N | | |
| Township: | | Section: | |
| Range: | |
Location |
| Address: | 5386 APRIL DR LANGLEY, WA 98260 | Mapsco: | |
| Neighborhood: | Cycle 4 | Map ID: | 748 |
| Neighborhood CD: | 4 |
Owner |
| Name: | HENDERSON TTEE, ERIK R | Owner ID: | 314187 |
| Mailing Address: | AMY C HENDERSON TTEE 5386 APRIL DR LANGLEY, WA 98260 | % Ownership: | 100.0000000000% |
| | | Exemptions: | |
Taxes and Assessment Details
Values
| (+) Improvement Homesite Value: | + | $0 | |
| (+) Improvement Non-Homesite Value: | + | $272,947 | |
| (+) Land Homesite Value: | + | $0 | |
| (+) Land Non-Homesite Value: | + | $230,000 | |
| (+) Curr Use (HS): | + | $0 | $0 |
| (+) Curr Use (NHS): | + | $0 | $0 |
| | | -------------------------- | |
| (=) Market Value: | = | $502,947 | |
| (–) Productivity Loss: | – | $0 | |
| | | -------------------------- | |
| (=) Subtotal: | = | $502,947 | |
| (+) Senior Appraised Value: | + | $0 | |
| (+) Non-Senior Appraised Value: | + | $502,947 | |
| | | -------------------------- | |
| (=) Total Appraised Value: | = | $502,947 | |
| (–) Senior Exemption Loss: | – | $0 | |
| (–) Exemption Loss: | – | $0 | |
| | | -------------------------- | |
| (=) Taxable Value: | = | $502,947 | |
Taxing Jurisdiction
| Owner: | HENDERSON TTEE, ERIK R | | |
| % Ownership: | 100.0000000000% | | |
| Total Value: | $502,947 | | |
| Tax Area: | 790 - APPRAISER-S Whid Schl Dist, Special District, improved & less than 1 acre |
| CF | Conservation Futures | 0.0313996660 | $502,947 | $502,947 | $15.79 | | |
| FIRE3 | Fire & Rescue Dist #3 S Whidbey GEN | 1.2130821753 | $502,947 | $502,947 | $610.12 | | |
| HOBOND | Hospital BOND | 0.1893405597 | $502,947 | $502,947 | $95.23 | | |
| HOGEN | Hospital GEN | 0.3848777722 | $502,947 | $502,947 | $193.57 | | |
| CE | County Current Expense | 0.3674210519 | $502,947 | $502,947 | $184.79 | | |
| CR | County Roads | 0.4614296361 | $502,947 | $502,947 | $232.07 | | |
| ISLANDEMS | Hospital GEN (EMS) | 0.4952018576 | $502,947 | $502,947 | $249.06 | | |
| LIB | Library Sno-Isle GEN | 0.3039084203 | $502,947 | $502,947 | $152.85 | | |
| PORTWHID | Port of S Whidbey GEN | 0.1086004714 | $502,947 | $502,947 | $54.62 | | |
| SCH206BOND | School 206 BOND | 0.5960237832 | $502,947 | $502,947 | $299.77 | | |
| SCH206CAP | School 206 CP | 0.3066144020 | $502,947 | $502,947 | $154.21 | | |
| SCH206MO | School 206 Enrichment | 0.4808755445 | $502,947 | $502,947 | $241.85 | | |
| ST | State School | 1.4761226122 | $502,947 | $502,947 | $742.41 | | |
| ST2 | State School Part 2 | 0.7953803475 | $502,947 | $502,947 | $400.03 | | |
| SWHIDPRBD | P & R S Whidbey BOND | 0.0144185398 | $502,947 | $502,947 | $7.25 | | |
| SWHIDPRBD3 | P & R S Whidbey BOND3 | 0.1483535547 | $502,947 | $502,947 | $74.61 | | |
| SWHIDPRMT | P & R S Whidbey GEN | 0.4600000000 | $502,947 | $502,947 | $231.36 | | |
| | Total Tax Rate: | 7.8330503944 | | | | | |
| | | | | Taxes w/Current Exemptions: | $3,939.59 | | |
| | | | | Taxes w/o Exemptions: | $3,939.59 | | |
Improvement / Building
| Improvement #1: | RESIDENTIAL | State Code: | Y | 2128.0 sqft | Value: | $272,947 |
| Bathrooms: | 2 | Bedrooms: | 3 | | Ceiling: | DRYWALL PAINTED | Exterior Wall/Cover: | CEMENT FIBER | | Floor Covering: | CARPET/VINYL 60-40 | Floor Structure: | WOOD W/SUBFLOOR | | Foundation: | CONCRETE | Heating: | WALL HEAT ELECTRIC | | Interior Finish: | DRYWALL PAINT | Plumbing Fixture Cnt: | 11 | | Roof Slope: | 4" IN 12" | Roof Structure/Cover: | BEAM ASPHALT |
|
| | Type | Description | Class CD | Sub Class CD | Year Built | Area |
| | BAS | BASE/MAIN FLOOR | 3 | 0 | 1989 | 1120.0 |
| | DWN | DOWNSTAIRS LIVING AREA | 3 | 0 | 1989 | 1008.0 |
| | OWP | OPEN WOOD PORCH W/STEPS | 3 | 0 | 1989 | 136.0 |
| | OWP | OPEN WOOD PORCH W/STEPS | 3 | 0 | 1989 | 120.0 |
Sketch
| No sketches available for this property. |
Property Image
Land
| 1 | 14 | SQ (08001-12000) | 0.0000 | 0.00 | 0.00 | 0.00 | 1.00 | $230,000 | $0 |
Roll Value History
| 2026 | N/A | N/A | N/A | N/A | N/A |
| 2025 | $272,947 | $230,000 | $0 | $502,947 | $502,947 |
| 2024 | $269,239 | $230,000 | $0 | $499,239 | $499,239 |
| 2023 | $272,681 | $230,000 | $0 | $502,681 | $502,681 |
| 2022 | $250,026 | $220,000 | $0 | $470,026 | $470,026 |
| 2021 | $220,124 | $130,000 | $0 | $350,124 | $350,124 |
| 2020 | $204,279 | $120,000 | $0 | $324,279 | $324,279 |
| 2019 | $149,446 | $150,000 | $0 | $299,446 | $299,446 |
| 2018 | $149,917 | $130,000 | $0 | $279,917 | $279,917 |
| 2017 | $150,862 | $110,000 | $0 | $260,862 | $260,862 |
| 2016 | $152,747 | $90,000 | $0 | $242,747 | $242,747 |
| 2015 | $154,632 | $55,000 | $0 | $209,632 | $209,632 |
| 2014 | $138,769 | $72,250 | $0 | $211,019 | $211,019 |
| 2013 | $140,502 | $72,250 | $0 | $212,752 | $212,752 |
| 2012 | $142,235 | $72,250 | $0 | $214,485 | $214,485 |
| 2011 | $143,967 | $85,000 | $0 | $228,967 | $228,967 |
| 2010 | $157,018 | $85,000 | $0 | $242,018 | $242,018 |
| 2009 | $163,825 | $105,000 | $0 | $268,825 | $268,825 |
| 2008 | $132,517 | $120,000 | $0 | $252,517 | $252,517 |
| 2007 | $134,119 | $120,000 | $0 | $254,119 | $254,119 |
Deed and Sales History
| 1 | 10/11/2024 | WD | Warranty Deed | HENDERSON, ERIK RYAN | HENDERSON TTEE, ERIK R | | | $0.00 | 61542 | 4578149 |
| 2 | 08/13/2024 | WD | Warranty Deed | VAN SIEGMAN, RANDOLPH A | HENDERSON, ERIK RYAN | | | $525,000.00 | 60930 | 4575798 |
| 3 | 08/06/2024 | QCD | Quit Claim Deed | VAN SIEGMAN, RANDOLPH A | VAN SIEGMAN, RANDOLPH A | | | $0.00 | 60914 | 4575742 |
| 4 | 03/23/2022 | WD | Warranty Deed | MCDONALD, KRISTOPHER | VAN SIEGMAN, RANDOLPH A | | | $525,000.00 | 52543 | 4542556 |
| 5 | 09/11/2019 | WD | Warranty Deed | BABCOCK, LARRY | MCDONALD, KRISTOPHER | | | $332,000.00 | 40274 | 4471438 |
| 6 | 07/14/2008 | WD | Warranty Deed | VANSANDT, TERI JOANN | BABCOCK, LARRY | | | $260,000.00 | 81862 | 4232965 |
| 7 | 08/07/2006 | 5 | DNU - Marriage License/Name Change | VANSANDT, COLLIN D | VANSANDT, TERI JOANN | | | $0.00 | 63689 | 4180184 |
| 8 | 06/01/1997 | WD | Warranty Deed | WEINDL, CHRIS | VANSANDT, COLLIN D | | | $111,500.00 | 72035 | 97009500 |
| 9 | 07/01/1989 | WD | Warranty Deed | R, K P | WEINDL, CHRIS | | | $70,950.00 | 92777 | 89009384 |
| 10 | 09/01/1988 | WD | Warranty Deed | PHILIPPSEN, HELMUT | R, K P | | | $6,000.00 | 83311 | 88012340 |
| 11 | 06/01/1982 | QCD | Quit Claim Deed | PHILIPPSEN, HELMUT | PHILIPPSEN, HELMUT | | | $0.00 | 22973 | 403663 |
| 12 | 11/01/1978 | OTHER | Other - Misc. Documents | Unknown | PHILIPPSEN, HELMUT | | | $5,950.00 | 85405 | 342397 |
Payout Agreement
| No payout information available.. |