Property
Account |
| Property ID: | 297351 | Abbreviated Legal Description: | LK VU TERR LOT 52 |
| Geographic ID: | S7330-00-00052-0 | Agent Code: | |
| Type: | Real | | |
| Tax Area: | 790 - APPRAISER-S Whid Schl Dist, Special District, improved & less than 1 acre | Land Use Code | 11 |
| Open Space: | N | DFL | N |
| Historic Property: | N | Remodel Property: | N |
| Multi-Family Redevelopment: | N | | |
| Township: | | Section: | |
| Range: | |
Location |
| Address: | 2894 HI CREST RD LANGLEY, WA 98260 | Mapsco: | |
| Neighborhood: | Cycle 4 | Map ID: | 748 |
| Neighborhood CD: | 4 |
Owner |
| Name: | SMITH, MAGGIE | Owner ID: | 310115 |
| Mailing Address: | 7047 NE 138TH ST KIRKLAND, WA 98034 | % Ownership: | 100.0000000000% |
| | | Exemptions: | |
Taxes and Assessment Details
Values
| (+) Improvement Homesite Value: | + | N/A | |
| (+) Improvement Non-Homesite Value: | + | N/A | |
| (+) Land Homesite Value: | + | N/A | |
| (+) Land Non-Homesite Value: | + | N/A | Ag / Timber Use Value |
| (+) Curr Use (HS): | + | N/A | N/A |
| (+) Curr Use (NHS): | + | N/A | N/A |
| | | -------------------------- | |
| (=) Market Value: | = | N/A | |
| (–) Productivity Loss: | – | N/A | |
| | | -------------------------- | |
| (=) Subtotal: | = | N/A | |
| (+) Senior Appraised Value: | + | N/A | |
| (+) Non-Senior Appraised Value: | + | N/A | |
| | | -------------------------- | |
| (=) Total Appraised Value: | = | N/A | |
| (–) Senior Exemption Loss: | – | N/A | |
| (–) Exemption Loss: | – | N/A | |
| | | -------------------------- | |
| (=) Taxable Value: | = | N/A | |
Taxing Jurisdiction
| Owner: | SMITH, MAGGIE | | |
| % Ownership: | 100.0000000000% | | |
| Total Value: | N/A | | |
| Tax Area: | 790 - APPRAISER-S Whid Schl Dist, Special District, improved & less than 1 acre |
| CF | Conservation Futures | N/A | N/A | N/A | N/A | | |
| WCD | Whidbey Conservation District | N/A | N/A | N/A | N/A | | |
| FIRE3 | Fire & Rescue Dist #3 S Whidbey GEN | N/A | N/A | N/A | N/A | | |
| HOBOND | Hospital BOND | N/A | N/A | N/A | N/A | | |
| HOGEN | Hospital GEN | N/A | N/A | N/A | N/A | | |
| CE | County Current Expense | N/A | N/A | N/A | N/A | | |
| CR | County Roads | N/A | N/A | N/A | N/A | | |
| ISLANDEMS | Hospital GEN (EMS) | N/A | N/A | N/A | N/A | | |
| LIB | Library Sno-Isle GEN | N/A | N/A | N/A | N/A | | |
| PORTWHID | Port of S Whidbey GEN | N/A | N/A | N/A | N/A | | |
| SCH206CAP | School 206 CP | N/A | N/A | N/A | N/A | | |
| SCH206MO | School 206 Enrichment | N/A | N/A | N/A | N/A | | |
| ST | State School | N/A | N/A | N/A | N/A | | |
| ST2 | State School Part 2 | N/A | N/A | N/A | N/A | | |
| SWHIDPRBD | P & R S Whidbey BOND | N/A | N/A | N/A | N/A | | |
| SWHIDPRBD2 | P & R S Whidbey BOND2 | N/A | N/A | N/A | N/A | | |
| SWHIDPRMT | P & R S Whidbey GEN | N/A | N/A | N/A | N/A | | |
| | Total Tax Rate: | N/A | | | | | |
| | | | | Taxes w/Current Exemptions: | N/A | | |
| | | | | Taxes w/o Exemptions: | N/A | | |
Improvement / Building
| Improvement #1: | RESIDENTIAL | State Code: | Y | 1153.5 sqft | Value: | N/A |
| Bathrooms: | 1.5 | Bedrooms: | 2 | | Ceiling: | DRYWALL PAINTED | Exterior Wall/Cover: | (NONE) | | Floor Covering: | (NONE) | Floor Structure: | SLAB ON GRADE | | Foundation: | SLAB | Heating: | (NONE) | | Interior Finish: | DRYWALL PAINT | Plumbing Fixture Cnt: | 9 | | Roof Slope: | 12" IN 12" | Roof Structure/Cover: | CJ ALUMINIUM HEAVY |
|
| | Type | Description | Class CD | Sub Class CD | Year Built | Area |
| | BAS | BASE/MAIN FLOOR | 3 | 0 | 2025 | 1153.5 |
| | AGR | ATTACHED GARAGE | 3 | 0 | 2025 | 300.0 |
| | OP4 | OPEN PORCH W/CEILING-ROOF | 3 | 0 | 2025 | 312.0 |
Sketch
Property Image
Land
| 1 | 14 | SQ (08001-12000) | 0.0000 | 0.00 | 0.00 | 0.00 | 1.00 | N/A | N/A |
Roll Value History
| 2026 | N/A | N/A | N/A | N/A | N/A |
| 2025 | $85,792 | $110,000 | $0 | $195,792 | $195,792 |
| 2024 | $0 | $20,000 | $0 | $20,000 | $20,000 |
| 2023 | $0 | $20,000 | $0 | $20,000 | $20,000 |
| 2022 | $0 | $20,000 | $0 | $20,000 | $20,000 |
| 2021 | $0 | $15,000 | $0 | $15,000 | $15,000 |
| 2020 | $0 | $15,000 | $0 | $15,000 | $15,000 |
| 2019 | $0 | $15,000 | $0 | $15,000 | $15,000 |
| 2018 | $0 | $15,000 | $0 | $15,000 | $15,000 |
| 2017 | $0 | $15,000 | $0 | $15,000 | $15,000 |
| 2016 | $0 | $15,000 | $0 | $15,000 | $15,000 |
| 2015 | $0 | $15,000 | $0 | $15,000 | $15,000 |
| 2014 | $0 | $18,000 | $0 | $18,000 | $18,000 |
| 2013 | $0 | $18,000 | $0 | $18,000 | $18,000 |
| 2012 | $0 | $18,000 | $0 | $18,000 | $18,000 |
| 2011 | $0 | $18,000 | $0 | $18,000 | $18,000 |
| 2010 | $0 | $18,000 | $0 | $18,000 | $18,000 |
| 2009 | $0 | $18,000 | $0 | $18,000 | $18,000 |
| 2008 | $0 | $23,750 | $0 | $23,750 | $23,750 |
| 2007 | $0 | $11,000 | $0 | $11,000 | $11,000 |
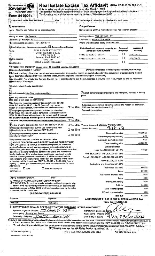
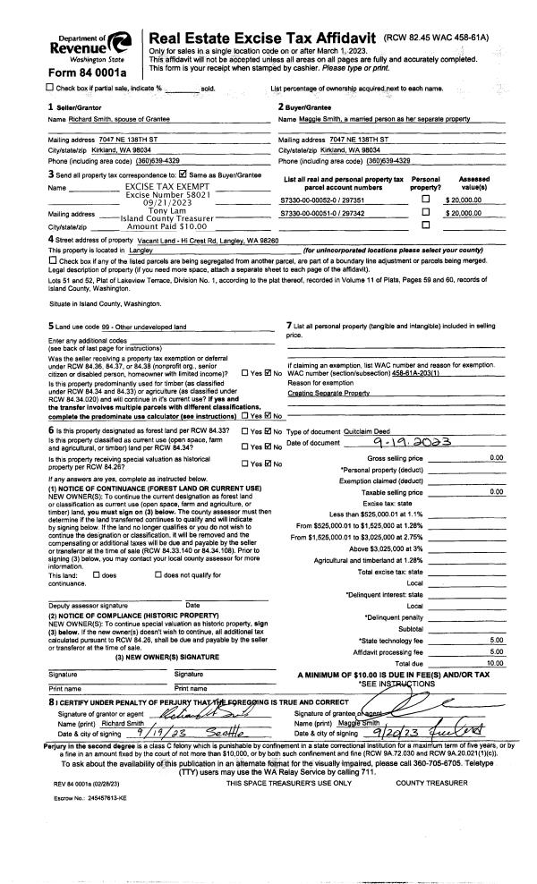
Deed and Sales History
| 1 | 09/19/2023 | QCD | Quit Claim Deed | SMITH, RICHARD | SMITH, MAGGIE | | | $0.00 | 58021 | 4564879 |
| 2 | 09/18/2023 | WD | Warranty Deed | VAN PATTEN, TIMOTHY | SMITH, MAGGIE | | | $40,000.00 | 58020 | 4564878 |
|   | |
| 3 | 04/01/1980 | TRUSTEED | Trustee's Deed | VOGL, HENRY P | VAN, PATTEN, T | | | $16,500.00 | 1699 | 368919 |
| 4 | 11/01/1978 | OTHER | Other - Misc. Documents | Unknown | VOGL, HENRY P | | | $5,950.00 | 85518 | 342858 |
Payout Agreement
| No payout information available.. |