Property
Account |
| Property ID: | 298760 | Abbreviated Legal Description: | LANDS HL EST LOTS 3 & 4 |
| Geographic ID: | S7340-00-00003-0 | Agent Code: | |
| Type: | Real | | |
| Tax Area: | 589 - APPRAISER-Stan/Cam Schl Dist, Special Dist, vacant & 50 acres or less | Land Use Code | 99 |
| Open Space: | N | DFL | N |
| Historic Property: | N | Remodel Property: | N |
| Multi-Family Redevelopment: | N | | |
| Township: | | Section: | |
| Range: | |
Location |
| Address: | | Mapsco: | |
| Neighborhood: | North Camano | Map ID: | 973 |
| Neighborhood CD: | 06-C |
Owner |
| Name: | NW BUILDERS INC | Owner ID: | 193148 |
| Mailing Address: | 3244 SHORELINE DR CAMANO ISLAND, WA 98282 | % Ownership: | 100.0000000000% |
| | | Exemptions: | |
Taxes and Assessment Details
Values
| (+) Improvement Homesite Value: | + | $0 | |
| (+) Improvement Non-Homesite Value: | + | $0 | |
| (+) Land Homesite Value: | + | $0 | |
| (+) Land Non-Homesite Value: | + | $260,000 | |
| (+) Curr Use (HS): | + | $0 | $0 |
| (+) Curr Use (NHS): | + | $0 | $0 |
| | | -------------------------- | |
| (=) Market Value: | = | $260,000 | |
| (–) Productivity Loss: | – | $0 | |
| | | -------------------------- | |
| (=) Subtotal: | = | $260,000 | |
| (+) Senior Appraised Value: | + | $0 | |
| (+) Non-Senior Appraised Value: | + | $260,000 | |
| | | -------------------------- | |
| (=) Total Appraised Value: | = | $260,000 | |
| (–) Senior Exemption Loss: | – | $0 | |
| (–) Exemption Loss: | – | $0 | |
| | | -------------------------- | |
| (=) Taxable Value: | = | $260,000 | |
Taxing Jurisdiction
| Owner: | NW BUILDERS INC | | |
| % Ownership: | 100.0000000000% | | |
| Total Value: | $260,000 | | |
| Tax Area: | 589 - APPRAISER-Stan/Cam Schl Dist, Special Dist, vacant & 50 acres or less |
| CF | Conservation Futures | 0.0313996660 | $260,000 | $260,000 | $8.16 | | |
| EMS1 | Fire & Rescue Dist #1 Camano GEN (EMS) | 0.4998471806 | $260,000 | $260,000 | $129.96 | | |
| CE | County Current Expense | 0.3674210519 | $260,000 | $260,000 | $95.53 | | |
| CR | County Roads | 0.4614296361 | $260,000 | $260,000 | $119.97 | | |
| LIB | Library Sno-Isle GEN | 0.3039084203 | $260,000 | $260,000 | $79.02 | | |
| SCH205_401 | School 205-401 Enrichment | 1.3697998934 | $260,000 | $260,000 | $356.15 | | |
| SCH205BOND | School 205-401 BOND | 0.9354199323 | $260,000 | $260,000 | $243.21 | | |
| ST | State School | 1.4761226122 | $260,000 | $260,000 | $383.79 | | |
| ST2 | State School Part 2 | 0.7953803475 | $260,000 | $260,000 | $206.80 | | |
| | Total Tax Rate: | 6.2407287403 | | | | | |
| | | | | Taxes w/Current Exemptions: | $1,622.59 | | |
| | | | | Taxes w/o Exemptions: | $1,622.59 | | |
Improvement / Building
Sketch
| No sketches available for this property. |
Property Image
Land
| 1 | 16 | AC (00.51-01.00) | 0.0000 | 0.00 | 0.00 | 0.00 | 1.00 | $260,000 | $0 |
Roll Value History
| 2026 | N/A | N/A | N/A | N/A | N/A |
| 2025 | $0 | $260,000 | $0 | $260,000 | $260,000 |
| 2024 | $0 | $260,000 | $0 | $260,000 | $260,000 |
| 2023 | $0 | $260,000 | $0 | $260,000 | $260,000 |
| 2022 | $0 | $230,000 | $0 | $230,000 | $230,000 |
| 2021 | $0 | $160,000 | $0 | $160,000 | $160,000 |
| 2020 | $0 | $160,000 | $0 | $160,000 | $160,000 |
| 2019 | $0 | $120,000 | $0 | $120,000 | $120,000 |
| 2018 | $0 | $100,000 | $0 | $100,000 | $100,000 |
| 2017 | $0 | $70,000 | $0 | $70,000 | $70,000 |
| 2016 | $0 | $10,000 | $0 | $10,000 | $10,000 |
| 2015 | $0 | $35,000 | $0 | $35,000 | $35,000 |
| 2014 | $0 | $35,000 | $0 | $35,000 | $35,000 |
| 2013 | $0 | $35,000 | $0 | $35,000 | $35,000 |
| 2012 | $0 | $35,000 | $0 | $35,000 | $35,000 |
| 2011 | $0 | $22,950 | $0 | $22,950 | $22,950 |
| 2010 | $0 | $22,950 | $0 | $22,950 | $22,950 |
| 2009 | $0 | $25,500 | $0 | $25,500 | $25,500 |
| 2008 | $0 | $37,500 | $0 | $37,500 | $37,500 |
| 2007 | $0 | $49,500 | $0 | $49,500 | $49,500 |
Deed and Sales History
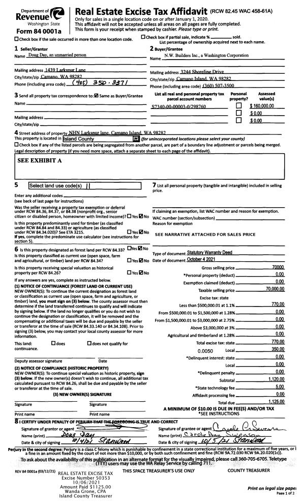
| 1 | 10/04/2021 | WD | Warranty Deed | DAY, DOUG | NW BUILDERS INC | | | $70,000.00 | 50353 | 4530785 |
| 2 | 07/21/2021 | QCD | Quit Claim Deed | DAY, DOUG | DAY, DOUG | | | $0.00 | 50352 | 4530784 |
| 3 | 12/09/2014 | DECREE | Divorce Decree/Legal Separation | DAY, DOUG | DAY, DOUG | | | | 85057 | |
| 4 | 11/29/2012 | REC | Real Estate Contract | OVENELL-ANDERSON-STEWART INC | DAY, DOUG | | | $35,000.00 | 9666 | 4328621 |
| 5 | 07/30/2008 | QCD | Quit Claim Deed | Unknown | OVENELL-ANDERSON-STEWART INC, | | | $0.00 | 82044 | 4234382 |
Payout Agreement
| 356 | Active | Bi-Annual Payments | | 8/28/2012 1:57:40 PM | Bi-Annually | 42 | $0 |