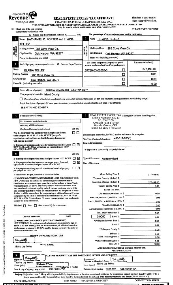
Property
Account |
| Property ID: | 299019 | Abbreviated Legal Description: | LANDS HILL LOT 28 |
| Geographic ID: | S7340-00-00028-0 | Agent Code: | |
| Type: | Real | | |
| Tax Area: | 580 - APPRAISER-Stan/Cam Schl Dist, Special Dist, improved & less than 1 acre | Land Use Code | 11 |
| Open Space: | N | DFL | N |
| Historic Property: | N | Remodel Property: | N |
| Multi-Family Redevelopment: | N | | |
| Township: | | Section: | |
| Range: | |
Location |
| Address: | 1406 LARKSPUR LN CAMANO ISLAND, WA 98282 | Mapsco: | |
| Neighborhood: | North Camano | Map ID: | 973 |
| Neighborhood CD: | 06-C |
Owner |
| Name: | SWEET, DENNIS | Owner ID: | 293076 |
| Mailing Address: | VICTORIA SWEET 1406 LARKSPUR LN CAMANO ISLAND, WA 98282 | % Ownership: | 100.0000000000% |
| | | Exemptions: | |
Taxes and Assessment Details
Values
| (+) Improvement Homesite Value: | + | $0 | |
| (+) Improvement Non-Homesite Value: | + | $258,415 | |
| (+) Land Homesite Value: | + | $0 | |
| (+) Land Non-Homesite Value: | + | $310,000 | |
| (+) Curr Use (HS): | + | $0 | $0 |
| (+) Curr Use (NHS): | + | $0 | $0 |
| | | -------------------------- | |
| (=) Market Value: | = | $568,415 | |
| (–) Productivity Loss: | – | $0 | |
| | | -------------------------- | |
| (=) Subtotal: | = | $568,415 | |
| (+) Senior Appraised Value: | + | $0 | |
| (+) Non-Senior Appraised Value: | + | $568,415 | |
| | | -------------------------- | |
| (=) Total Appraised Value: | = | $568,415 | |
| (–) Senior Exemption Loss: | – | $0 | |
| (–) Exemption Loss: | – | $0 | |
| | | -------------------------- | |
| (=) Taxable Value: | = | $568,415 | |
Taxing Jurisdiction
| Owner: | SWEET, DENNIS | | |
| % Ownership: | 100.0000000000% | | |
| Total Value: | $568,415 | | |
| Tax Area: | 580 - APPRAISER-Stan/Cam Schl Dist, Special Dist, improved & less than 1 acre |
| CF | Conservation Futures | 0.0313996660 | $568,415 | $568,415 | $17.85 | | |
| EMS1 | Fire & Rescue Dist #1 Camano GEN (EMS) | 0.4998471806 | $568,415 | $568,415 | $284.12 | | |
| FIRE1 | Fire & Rescue Dist #1 Camano GEN | 1.2496603404 | $568,415 | $568,415 | $710.33 | | |
| FIRE1BOND | Fire & Rescue Dist #1 Camano BOND | 0.1630371212 | $568,415 | $568,415 | $92.67 | | |
| CE | County Current Expense | 0.3674210519 | $568,415 | $568,415 | $208.85 | | |
| CR | County Roads | 0.4614296361 | $568,415 | $568,415 | $262.28 | | |
| LIB | Library Sno-Isle GEN | 0.3039084203 | $568,415 | $568,415 | $172.75 | | |
| SCH205_401 | School 205-401 Enrichment | 1.3697998934 | $568,415 | $568,415 | $778.61 | | |
| SCH205BOND | School 205-401 BOND | 0.9354199323 | $568,415 | $568,415 | $531.71 | | |
| ST | State School | 1.4761226122 | $568,415 | $568,415 | $839.05 | | |
| ST2 | State School Part 2 | 0.7953803475 | $568,415 | $568,415 | $452.11 | | |
| | Total Tax Rate: | 7.6534262019 | | | | | |
| | | | | Taxes w/Current Exemptions: | $4,350.33 | | |
| | | | | Taxes w/o Exemptions: | $4,350.33 | | |
Improvement / Building
| Improvement #1: | RESIDENTIAL | State Code: | Y | 1524.0 sqft | Value: | $258,415 |
| Bathrooms: | 2 | Bedrooms: | 3 | | Ceiling: | DRY WALL SPRAYED | Exterior Wall/Cover: | WOOD SIDING | | Floor Covering: | HARDWOOD/CARP 60-40 | Floor Structure: | WOOD W/SUBFLOOR | | Foundation: | CONCRETE | Heating: | BASEBOARD ELECTRIC | | Interior Finish: | DRYWALL PAINT | Plumbing Fixture Cnt: | 9 | | Roof Slope: | 3" IN 12" | Roof Structure/Cover: | CJ ASPHALT |
|
| | Type | Description | Class CD | Sub Class CD | Year Built | Area |
| | BAS | BASE/MAIN FLOOR | 3 | 0 | 1966 | 1524.0 |
| | OP2 | OPEN PORCH W/STEPS | 3 | 0 | 1966 | 25.0 |
| | AGR | ATTACHED GARAGE | 3 | 0 | 1966 | 418.0 |
Sketch
Property Image
Land
| 1 | 14 | SQ (08001-12000) | 0.0000 | 0.00 | 0.00 | 0.00 | 1.00 | $310,000 | $0 |
Roll Value History
| 2026 | N/A | N/A | N/A | N/A | N/A |
| 2025 | $258,415 | $310,000 | $0 | $568,415 | $568,415 |
| 2024 | $266,940 | $310,000 | $0 | $576,940 | $576,940 |
| 2023 | $270,184 | $300,000 | $0 | $570,184 | $570,184 |
| 2022 | $231,069 | $260,000 | $0 | $491,069 | $491,069 |
| 2021 | $203,377 | $180,000 | $0 | $383,377 | $383,377 |
| 2020 | $198,163 | $160,000 | $0 | $358,163 | $358,163 |
| 2019 | $126,456 | $170,000 | $0 | $296,456 | $296,456 |
| 2018 | $126,856 | $150,000 | $0 | $276,856 | $276,856 |
| 2017 | $127,654 | $120,000 | $0 | $247,654 | $247,654 |
| 2016 | $112,237 | $100,000 | $0 | $212,237 | $212,237 |
| 2015 | $114,018 | $80,000 | $0 | $194,018 | $194,018 |
| 2014 | $115,801 | $80,000 | $0 | $195,801 | $195,801 |
| 2013 | $117,581 | $80,000 | $0 | $197,581 | $197,581 |
| 2012 | $119,362 | $80,000 | $0 | $199,362 | $199,362 |
| 2011 | $121,145 | $100,000 | $0 | $221,145 | $221,145 |
| 2010 | $110,221 | $100,000 | $0 | $210,221 | $210,221 |
| 2009 | $115,329 | $125,000 | $0 | $240,329 | $240,329 |
| 2008 | $117,177 | $125,000 | $0 | $242,177 | $242,177 |
| 2007 | $119,005 | $125,000 | $0 | $244,005 | $244,005 |
Deed and Sales History
| 1 | 12/27/2019 | WD | Warranty Deed | URQUHART, MICHELLE | SWEET, DENNIS | | | $415,000.00 | 41682 | 4478514 |
| 2 | 08/05/2015 | SPWARDEED | Special Warranty Deed | FEDERAL NATIONAL MORTGAGE ASSOCIATION | URQUHART, MICHELLE | | | $0.00 | 20842 | 4383795 |
| 3 | 11/04/2013 | TRUSTEED | Trustee's Deed | ROACH, ANNETTE L / BAXTER C | FEDERAL NATIONAL MORTGAGE ASSOCIATION | | | $190,081.00 | 13342 | 4350900 |
| 4 | 12/01/1991 | QCD | Quit Claim Deed | L'HOLLIER-ROACH, ANNETTE L | ROACH, ANNETTE L | | | $0.00 | 14530 | 91019862 |
| 5 | 03/01/1990 | QCD | Quit Claim Deed | L'HOLLIER, EVELYN T | L'HOLLIER-ROACH, ANNETTE L | | | $0.00 | 1499 | 90004873 |
| 6 | 04/01/1986 | OTHER | Other - Misc. Documents | LHOLLIER, LESLIE H | L'HOLLIER, EVELYN T | | | $0.00 | 61542 | 0 |
| 7 | 01/01/1900 | OTHER | Other - Misc. Documents | Unknown | LHOLLIER, LESLIE H | | | $0.00 | 0 | 0 |
Payout Agreement
| 369 | Active | Bi-Annual Payments | | 8/28/2012 1:57:40 PM | Bi-Annually | 42 | $0 |