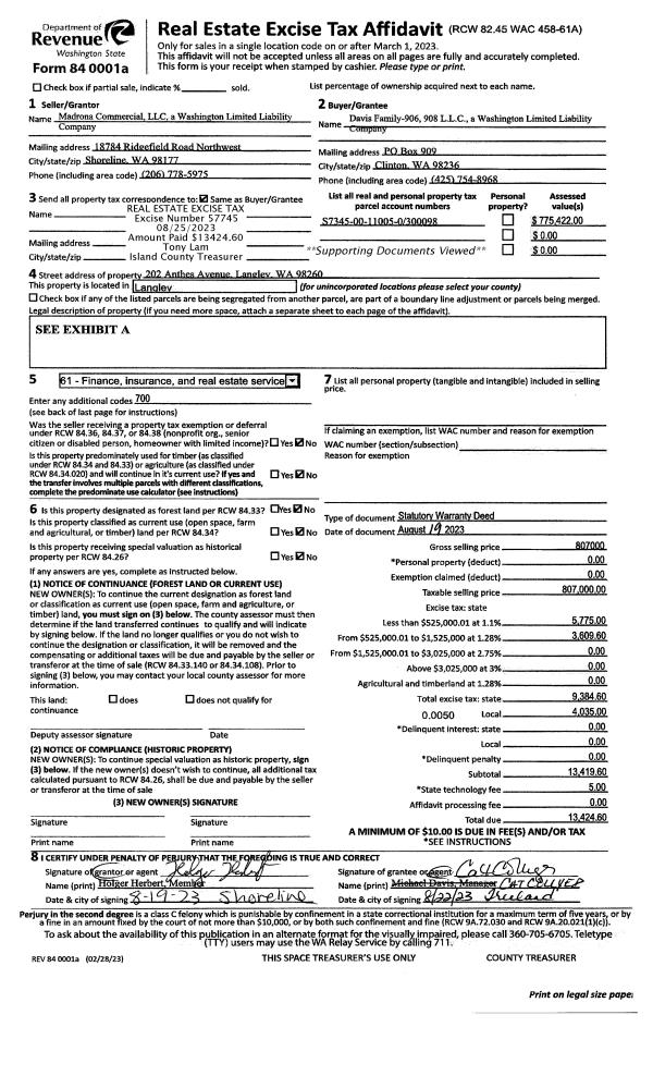
Property
Account |
| Property ID: | 300098 | Abbreviated Legal Description: | LANGLEY LOTS 5, 6, 7 & 8 BLK 11 FR 11004-0 |
| Geographic ID: | S7345-00-11005-0 | Agent Code: | |
| Type: | Real | | |
| Tax Area: | 700 - APPRAISER-S Whid Schl Dist, in town of Langley | Land Use Code | 61 |
| Open Space: | N | DFL | N |
| Historic Property: | N | Remodel Property: | N |
| Multi-Family Redevelopment: | N | | |
| Township: | | Section: | |
| Range: | |
Location |
| Address: | 202 ANTHES AVE LANGLEY, WA 98260 | Mapsco: | |
| Neighborhood: | 42cLG-anthes ave | Map ID: | 913 |
| Neighborhood CD: | 42cLGanths |
Owner |
| Name: | DAVIS FAMILY-906, 908 LLC | Owner ID: | 309794 |
| Mailing Address: | PO BOX 909 CLINTON, WA 98236 | % Ownership: | 100.0000000000% |
| | | Exemptions: | |
Taxes and Assessment Details
Values
| (+) Improvement Homesite Value: | + | $0 | |
| (+) Improvement Non-Homesite Value: | + | $277,101 | |
| (+) Land Homesite Value: | + | $0 | |
| (+) Land Non-Homesite Value: | + | $391,713 | |
| (+) Curr Use (HS): | + | $0 | $0 |
| (+) Curr Use (NHS): | + | $0 | $0 |
| | | -------------------------- | |
| (=) Market Value: | = | $668,814 | |
| (–) Productivity Loss: | – | $0 | |
| | | -------------------------- | |
| (=) Subtotal: | = | $668,814 | |
| (+) Senior Appraised Value: | + | $0 | |
| (+) Non-Senior Appraised Value: | + | $668,814 | |
| | | -------------------------- | |
| (=) Total Appraised Value: | = | $668,814 | |
| (–) Senior Exemption Loss: | – | $0 | |
| (–) Exemption Loss: | – | $0 | |
| | | -------------------------- | |
| (=) Taxable Value: | = | $668,814 | |
Taxing Jurisdiction
| Owner: | DAVIS FAMILY-906, 908 LLC | | |
| % Ownership: | 100.0000000000% | | |
| Total Value: | $668,814 | | |
| Tax Area: | 700 - APPRAISER-S Whid Schl Dist, in town of Langley |
| CF | Conservation Futures | 0.0313996660 | $668,814 | $668,814 | $21.00 | | |
| LANG | City of Langley | 1.0106798199 | $668,814 | $668,814 | $675.96 | | |
| LANGBOND | City of Langley BOND | 0.0000000000 | $668,814 | $668,814 | $0.00 | | |
| FIRE3 | Fire & Rescue Dist #3 S Whidbey GEN | 1.2130821753 | $668,814 | $668,814 | $811.33 | | |
| HOBOND | Hospital BOND | 0.1893405597 | $668,814 | $668,814 | $126.63 | | |
| HOGEN | Hospital GEN | 0.3848777722 | $668,814 | $668,814 | $257.41 | | |
| CE | County Current Expense | 0.3674210519 | $668,814 | $668,814 | $245.74 | | |
| ISLANDEMS | Hospital GEN (EMS) | 0.4952018576 | $668,814 | $668,814 | $331.20 | | |
| LIB | Library Sno-Isle GEN | 0.3039084203 | $668,814 | $668,814 | $203.26 | | |
| PORTWHID | Port of S Whidbey GEN | 0.1086004714 | $668,814 | $668,814 | $72.63 | | |
| SCH206BOND | School 206 BOND | 0.5960237832 | $668,814 | $668,814 | $398.63 | | |
| SCH206CAP | School 206 CP | 0.3066144020 | $668,814 | $668,814 | $205.07 | | |
| SCH206MO | School 206 Enrichment | 0.4808755445 | $668,814 | $668,814 | $321.62 | | |
| ST | State School | 1.4761226122 | $668,814 | $668,814 | $987.25 | | |
| ST2 | State School Part 2 | 0.7953803475 | $668,814 | $668,814 | $531.96 | | |
| SWHIDPRBD | P & R S Whidbey BOND | 0.0144185398 | $668,814 | $668,814 | $9.64 | | |
| SWHIDPRBD3 | P & R S Whidbey BOND3 | 0.1483535547 | $668,814 | $668,814 | $99.22 | | |
| SWHIDPRMT | P & R S Whidbey GEN | 0.4600000000 | $668,814 | $668,814 | $307.65 | | |
| | Total Tax Rate: | 8.3823005782 | | | | | |
| | | | | Taxes w/Current Exemptions: | $5,606.20 | | |
| | | | | Taxes w/o Exemptions: | $5,606.20 | | |
Improvement / Building
| Improvement #1: | COMMERCIAL | State Code: | F1 | 2450.0 sqft | Value: | $277,101 |
| Bathrooms: | 0 | Bedrooms: | 0 | | Ceiling: | SUSPENDED | Cooling: | PACKAGE HEAT & COOL | | Exterior Wall/Cover: | COMMON BRICK VENEER | Floor Covering: | CARPET 100% | | Floor Structure: | CONCRETE ON GROUND | Foundation: | SLAB | | Interior Finish: | BANK | Plumbing Fixture Cnt: | 1 | | Roof Structure/Cover: | BEAM BUILT-UP ROCK |   |   |
|
| | Type | Description | Class CD | Sub Class CD | Year Built | Area |
| | BAS | BASE/MAIN FLOOR | 3 | 0 | 1971 | 2450.0 |
| | OP1 | OPEN PORCH SLAB | 3 | 0 | 1971 | 1026.0 |
| | oPV1 | PV/ASPH 2" | 3 | 0 | 1971 | 9600.0 |
Sketch
Property Image
Land
| 1 | 64 | PERSONAL BUSINESS | 0.3597 | 15668.53 | 0.00 | 0.00 | 1.00 | $391,713 | $0 |
Roll Value History
| 2026 | N/A | N/A | N/A | N/A | N/A |
| 2025 | $277,101 | $391,713 | $0 | $668,814 | $668,814 |
| 2024 | $298,255 | $391,713 | $0 | $689,968 | $689,968 |
| 2023 | $312,418 | $391,713 | $0 | $704,131 | $704,131 |
| 2022 | $325,107 | $470,056 | $0 | $795,163 | $795,163 |
| 2021 | $323,626 | $470,056 | $0 | $793,682 | $793,682 |
| 2020 | $209,709 | $470,056 | $0 | $679,765 | $679,765 |
| 2019 | $239,781 | $470,056 | $0 | $709,837 | $709,837 |
| 2018 | $239,804 | $292,479 | $0 | $532,283 | $532,283 |
| 2017 | $239,851 | $600,627 | $0 | $840,478 | $840,478 |
| 2016 | $239,945 | $600,627 | $0 | $840,572 | $840,572 |
| 2015 | $249,306 | $540,564 | $0 | $789,870 | $789,870 |
| 2014 | $375,988 | $146,994 | $0 | $522,982 | $522,982 |
| 2013 | $375,988 | $146,995 | $0 | $522,983 | $522,983 |
| 2012 | $375,988 | $146,995 | $0 | $522,983 | $522,983 |
| 2011 | $375,988 | $146,995 | $0 | $522,983 | $522,983 |
| 2010 | $394,558 | $146,995 | $0 | $541,553 | $541,553 |
| 2009 | $236,874 | $301,477 | $0 | $538,351 | $538,351 |
| 2008 | $231,544 | $493,574 | $0 | $725,118 | $725,118 |
| 2007 | $235,142 | $493,574 | $0 | $728,716 | $728,716 |
Deed and Sales History
| 1 | 08/19/2023 | WD | Warranty Deed | MADRONA COMMERCIAL, LLC | DAVIS FAMILY-906, 908 LLC | | | $807,000.00 | 57745 | 4563930 |
| 2 | 10/24/2022 | QCD | Quit Claim Deed | US BANK OF WASHINGTON | MADRONA COMMERCIAL, LLC | | | $700,000.00 | 54957 | 4552985 |
| 3 | 02/01/1996 | OTHER | Other - Misc. Documents | US, BANK O | US, BANK O | | | $0.00 | 66812 | 0 |
| 4 | 01/01/1900 | OTHER | Other - Misc. Documents | Unknown | US, BANK O | | | $0.00 | 39153 | 0 |
Payout Agreement
| No payout information available.. |