Property
Account |
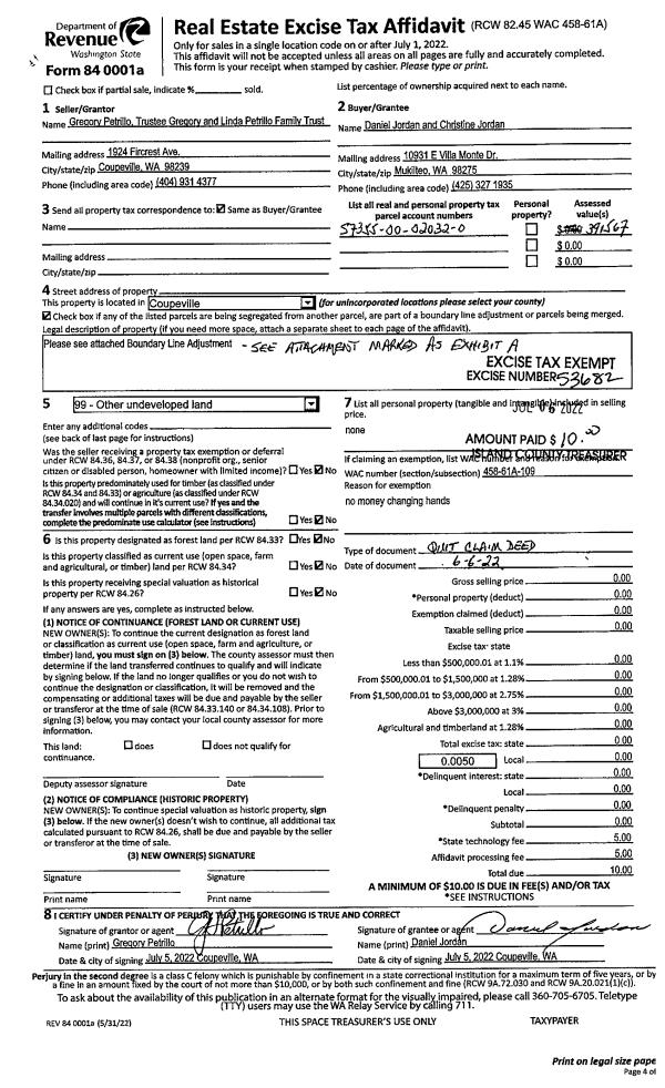
| Property ID: | 301569 | Abbreviated Legal Description: | Ledgewood Beach - 1,s Lot 032,s Blk 02;s BLA 141/22 AF4547373s |
| Geographic ID: | S7355-00-02032-0 | Agent Code: | |
| Type: | Real | | |
| Tax Area: | 370 - APPRAISER-Cpvl Schl Dist, Special Dist, improved & less than 1 acre | Land Use Code | 11 |
| Open Space: | N | DFL | N |
| Historic Property: | N | Remodel Property: | N |
| Multi-Family Redevelopment: | N | | |
| Township: | | Section: | |
| Range: | |
Location |
| Address: | 1930 FIRCREST AVE COUPEVILLE, WA 98239 | Mapsco: | |
| Neighborhood: | Cycle 2 | Map ID: | 520 |
| Neighborhood CD: | 2 |
Owner |
| Name: | JORDAN, DANIEL M | Owner ID: | 87876 |
| Mailing Address: | CHRISTINE J PRATHER JTWRS 10931 E VILLA MONTE DR MUKILTEO, WA 98275-4873 | % Ownership: | 100.0000000000% |
| | | Exemptions: | |
Taxes and Assessment Details
Values
| (+) Improvement Homesite Value: | + | $0 | |
| (+) Improvement Non-Homesite Value: | + | $243,291 | |
| (+) Land Homesite Value: | + | $0 | |
| (+) Land Non-Homesite Value: | + | $320,000 | |
| (+) Curr Use (HS): | + | $0 | $0 |
| (+) Curr Use (NHS): | + | $0 | $0 |
| | | -------------------------- | |
| (=) Market Value: | = | $563,291 | |
| (–) Productivity Loss: | – | $0 | |
| | | -------------------------- | |
| (=) Subtotal: | = | $563,291 | |
| (+) Senior Appraised Value: | + | $0 | |
| (+) Non-Senior Appraised Value: | + | $563,291 | |
| | | -------------------------- | |
| (=) Total Appraised Value: | = | $563,291 | |
| (–) Senior Exemption Loss: | – | $0 | |
| (–) Exemption Loss: | – | $0 | |
| | | -------------------------- | |
| (=) Taxable Value: | = | $563,291 | |
Taxing Jurisdiction
| Owner: | JORDAN, DANIEL M | | |
| % Ownership: | 100.0000000000% | | |
| Total Value: | $563,291 | | |
| Tax Area: | 370 - APPRAISER-Cpvl Schl Dist, Special Dist, improved & less than 1 acre |
| CF | Conservation Futures | 0.0313996660 | $563,291 | $563,291 | $17.69 | | |
| CEM2 | Cemetery #2 | 0.0092609791 | $563,291 | $563,291 | $5.22 | | |
| FIRE5 | Fire & Rescue Dist #5 C Whidbey GEN | 1.1892169230 | $563,291 | $563,291 | $669.88 | | |
| FIRE5BOND | Fire & Rescue Dist #5 C Whidbey BOND | 0.1394359503 | $563,291 | $563,291 | $78.54 | | |
| HOBOND | Hospital BOND | 0.1893405597 | $563,291 | $563,291 | $106.65 | | |
| HOGEN | Hospital GEN | 0.3848777722 | $563,291 | $563,291 | $216.80 | | |
| CE | County Current Expense | 0.3674210519 | $563,291 | $563,291 | $206.96 | | |
| CR | County Roads | 0.4614296361 | $563,291 | $563,291 | $259.92 | | |
| ISLANDEMS | Hospital GEN (EMS) | 0.4952018576 | $563,291 | $563,291 | $278.94 | | |
| LIB | Library Sno-Isle GEN | 0.3039084203 | $563,291 | $563,291 | $171.19 | | |
| LIBCAP | Library Sno-Isle BOND (Cap Fac Imp Area) | 0.0528562629 | $563,291 | $563,291 | $29.77 | | |
| POCOUP | Port of Coupeville GEN | 0.1065226063 | $563,291 | $563,291 | $60.00 | | |
| POCOUPIDD | Port of Coupeville IDD | 0.3353038577 | $563,291 | $563,291 | $188.87 | | |
| COUPSDTECH | School 204 CP (TECH) | 0.1215123397 | $563,291 | $563,291 | $68.45 | | |
| SCH204MO | School 204 Enrichment | 0.6416662518 | $563,291 | $563,291 | $361.44 | | |
| ST | State School | 1.4761226122 | $563,291 | $563,291 | $831.49 | | |
| ST2 | State School Part 2 | 0.7953803475 | $563,291 | $563,291 | $448.03 | | |
| | Total Tax Rate: | 7.1008570943 | | | | | |
| | | | | Taxes w/Current Exemptions: | $3,999.84 | | |
| | | | | Taxes w/o Exemptions: | $3,999.84 | | |
Improvement / Building
| Improvement #1: | RESIDENTIAL | State Code: | Y | 1255.2 sqft | Value: | $243,291 |
| Bathrooms: | 1 | Bedrooms: | 2 | | Ceiling: | TONGUE & GROOVE | Exterior Wall/Cover: | PLY/HARDBOARD T-111 | | Floor Covering: | HARDWOOD/CARP 60-40 | Floor Structure: | WOOD W/SUBFLOOR | | Foundation: | CONCRETE | Heating: | FHA GAS | | Interior Finish: | DRYWALL PAINT | Plumbing Fixture Cnt: | 8 | | Roof Slope: | 3" IN 12" | Roof Structure/Cover: | BEAM BUILT-UP ROCK |
|
| | Type | Description | Class CD | Sub Class CD | Year Built | Area |
| | BAS | BASE/MAIN FLOOR | 3 | 0 | 1963 | 1255.2 |
| | OP3 | OPEN PORCH W/ROOF | 3 | 0 | 1963 | 122.0 |
| | OP4 | OPEN PORCH W/CEILING-ROOF | 3 | 0 | 1963 | 87.5 |
| | OCP | OPEN CARPORT | 3 | 0 | 1963 | 480.0 |
| | UTY | STORAGE/UTILITY | 3 | 0 | 1963 | 20.0 |
| | OWP | OPEN WOOD PORCH W/STEPS | 3 | 0 | 1963 | 94.5 |
| | OWR | OPEN WOOD PORCH W/STEPS/ROOF | 3 | 0 | 1963 | 162.0 |
Sketch
| No sketches available for this property. |
Property Image
Land
| 1 | 15 | SQ (12001-21780) | 0.5600 | 24393.60 | 75.00 | 0.00 | 1.00 | $320,000 | $0 |
Roll Value History
| 2026 | N/A | N/A | N/A | N/A | N/A |
| 2025 | $243,291 | $320,000 | $0 | $563,291 | $563,291 |
| 2024 | $233,592 | $300,000 | $0 | $533,592 | $533,592 |
| 2023 | $236,826 | $280,000 | $0 | $516,826 | $516,826 |
| 2022 | $217,376 | $250,000 | $0 | $467,376 | $467,376 |
| 2021 | $191,567 | $200,000 | $0 | $391,567 | $391,567 |
| 2020 | $186,878 | $180,000 | $0 | $366,878 | $366,878 |
| 2019 | $134,723 | $220,000 | $0 | $354,723 | $354,723 |
| 2018 | $124,373 | $200,000 | $0 | $324,373 | $324,373 |
| 2017 | $125,244 | $200,000 | $0 | $325,244 | $325,244 |
| 2016 | $126,983 | $200,000 | $0 | $326,983 | $326,983 |
| 2015 | $128,724 | $200,000 | $0 | $328,724 | $328,724 |
| 2014 | $130,463 | $150,000 | $0 | $280,463 | $280,463 |
| 2013 | $132,202 | $150,000 | $0 | $282,202 | $282,202 |
| 2012 | $143,695 | $170,000 | $0 | $313,695 | $313,695 |
| 2011 | $145,558 | $200,000 | $0 | $345,558 | $345,558 |
| 2010 | $158,494 | $200,000 | $0 | $358,494 | $358,494 |
| 2009 | $165,386 | $200,000 | $0 | $365,386 | $365,386 |
| 2008 | $167,613 | $200,000 | $0 | $367,613 | $367,613 |
| 2007 | $169,840 | $200,000 | $0 | $369,840 | $369,840 |
Deed and Sales History
| 1 | 06/06/2022 | QCD | Quit Claim Deed | PETRILLO TTEE, GREGORY | JORDAN, DANIEL M | | | $0.00 | 53682 | 4547659 |
| 2 | 06/28/2004 | 5 | DNU - Marriage License/Name Change | JORDAN, DANIEL M | JORDAN, DANIEL M | | | $0.00 | 42786 | 4104874 |
| 3 | 04/01/1985 | PACD | Purchaser's Assignment | GOLLER, JEFFREY P | JORDAN, DANIEL M | | | $56,680.00 | 51152 | 85004661 |
| 4 | 10/01/1984 | QCD | Quit Claim Deed | GOLLER, JEFFREY P | GOLLER, JEFFREY P | | | $0.00 | 43225 | 84005227 |
| 5 | 02/01/1981 | EZ | Easement | WHARTON, JEAN & | GOLLER, JEFFREY P | | | $65,000.00 | 10511 | 379680 |
| 6 | 04/01/1979 | OTHER | Other - Misc. Documents | Unknown | WHARTON, JEAN & | | | $65,000.00 | 91859 | 351286 |
Payout Agreement
| No payout information available.. |