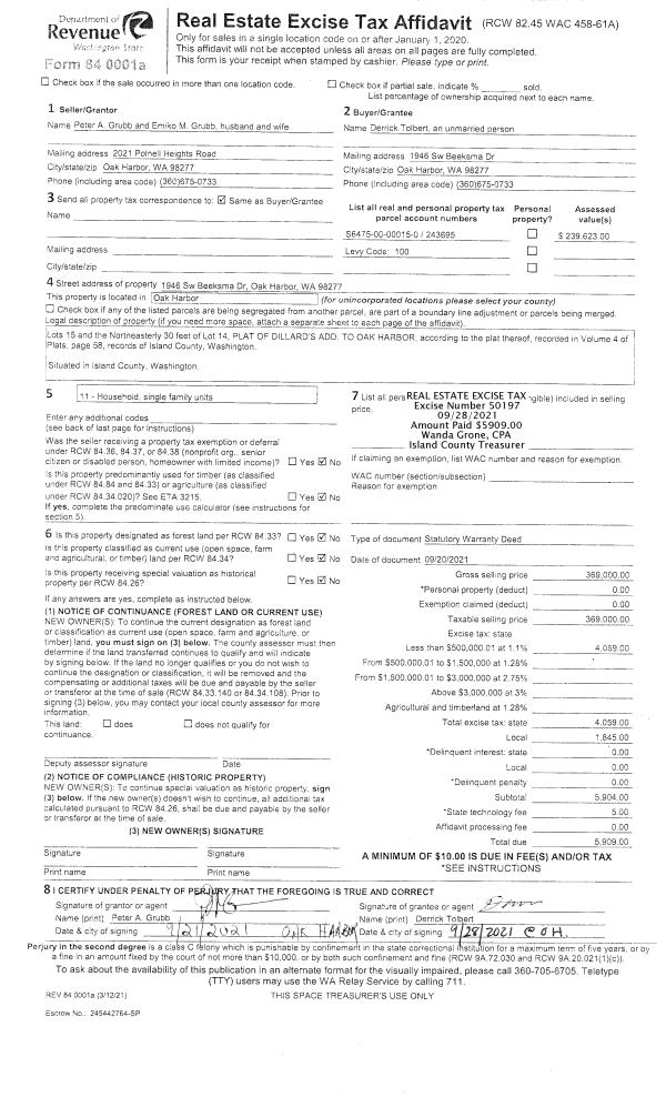
Property
Account |
| Property ID: | 302274 | Abbreviated Legal Description: | LEDGEWD BCH LOT 1 BLK 5 |
| Geographic ID: | S7355-00-05001-0 | Agent Code: | |
| Type: | Real | | |
| Tax Area: | 370 - APPRAISER-Cpvl Schl Dist, Special Dist, improved & less than 1 acre | Land Use Code | 11 |
| Open Space: | N | DFL | N |
| Historic Property: | N | Remodel Property: | N |
| Multi-Family Redevelopment: | N | | |
| Township: | | Section: | |
| Range: | |
Location |
| Address: | 282 ALDERWOOD ST COUPEVILLE, WA 98239 | Mapsco: | |
| Neighborhood: | Cycle 2 | Map ID: | 520 |
| Neighborhood CD: | 2 |
Owner |
| Name: | ADDINGTON, JAMES A | Owner ID: | 302717 |
| Mailing Address: | ROSELINDE H ADDINTON 282 ALDERWOOD ST COUPEVILLE, WA 98239 | % Ownership: | 100.0000000000% |
| | | Exemptions: | |
Taxes and Assessment Details
Values
| (+) Improvement Homesite Value: | + | $0 | |
| (+) Improvement Non-Homesite Value: | + | $395,264 | |
| (+) Land Homesite Value: | + | $0 | |
| (+) Land Non-Homesite Value: | + | $280,000 | |
| (+) Curr Use (HS): | + | $0 | $0 |
| (+) Curr Use (NHS): | + | $0 | $0 |
| | | -------------------------- | |
| (=) Market Value: | = | $675,264 | |
| (–) Productivity Loss: | – | $0 | |
| | | -------------------------- | |
| (=) Subtotal: | = | $675,264 | |
| (+) Senior Appraised Value: | + | $0 | |
| (+) Non-Senior Appraised Value: | + | $675,264 | |
| | | -------------------------- | |
| (=) Total Appraised Value: | = | $675,264 | |
| (–) Senior Exemption Loss: | – | $0 | |
| (–) Exemption Loss: | – | $0 | |
| | | -------------------------- | |
| (=) Taxable Value: | = | $675,264 | |
Taxing Jurisdiction
| Owner: | ADDINGTON, JAMES A | | |
| % Ownership: | 100.0000000000% | | |
| Total Value: | $675,264 | | |
| Tax Area: | 370 - APPRAISER-Cpvl Schl Dist, Special Dist, improved & less than 1 acre |
| CF | Conservation Futures | 0.0313996660 | $675,264 | $675,264 | $21.20 | | |
| CEM2 | Cemetery #2 | 0.0092609791 | $675,264 | $675,264 | $6.25 | | |
| FIRE5 | Fire & Rescue Dist #5 C Whidbey GEN | 1.1892169230 | $675,264 | $675,264 | $803.04 | | |
| FIRE5BOND | Fire & Rescue Dist #5 C Whidbey BOND | 0.1394359503 | $675,264 | $675,264 | $94.16 | | |
| HOBOND | Hospital BOND | 0.1893405597 | $675,264 | $675,264 | $127.85 | | |
| HOGEN | Hospital GEN | 0.3848777722 | $675,264 | $675,264 | $259.89 | | |
| CE | County Current Expense | 0.3674210519 | $675,264 | $675,264 | $248.11 | | |
| CR | County Roads | 0.4614296361 | $675,264 | $675,264 | $311.59 | | |
| ISLANDEMS | Hospital GEN (EMS) | 0.4952018576 | $675,264 | $675,264 | $334.39 | | |
| LIB | Library Sno-Isle GEN | 0.3039084203 | $675,264 | $675,264 | $205.22 | | |
| LIBCAP | Library Sno-Isle BOND (Cap Fac Imp Area) | 0.0528562629 | $675,264 | $675,264 | $35.69 | | |
| POCOUP | Port of Coupeville GEN | 0.1065226063 | $675,264 | $675,264 | $71.93 | | |
| POCOUPIDD | Port of Coupeville IDD | 0.3353038577 | $675,264 | $675,264 | $226.42 | | |
| COUPSDTECH | School 204 CP (TECH) | 0.1215123397 | $675,264 | $675,264 | $82.05 | | |
| SCH204MO | School 204 Enrichment | 0.6416662518 | $675,264 | $675,264 | $433.29 | | |
| ST | State School | 1.4761226122 | $675,264 | $675,264 | $996.77 | | |
| ST2 | State School Part 2 | 0.7953803475 | $675,264 | $675,264 | $537.09 | | |
| | Total Tax Rate: | 7.1008570943 | | | | | |
| | | | | Taxes w/Current Exemptions: | $4,794.94 | | |
| | | | | Taxes w/o Exemptions: | $4,794.94 | | |
Improvement / Building
| Improvement #1: | RESIDENTIAL | State Code: | Y | 2471.0 sqft | Value: | $395,264 |
| Bathrooms: | 2 | Bedrooms: | 3 | | Ceiling: | TONGUE & GROOVE | Exterior Wall/Cover: | PLY/HARDBOARD T-111 | | Floor Covering: | CARPET/VINYL 60-40 | Floor Structure: | WOOD W/SUBFLOOR | | Foundation: | CONCRETE | Heating: | BASEBOARD ELECTRIC | | Interior Finish: | DRYWALL PAINT | Plumbing Fixture Cnt: | 9 | | Roof Slope: | 4" IN 12" | Roof Structure/Cover: | BEAM WOOD SHAKES |
|
| | Type | Description | Class CD | Sub Class CD | Year Built | Area |
| | BAS | BASE/MAIN FLOOR | 4 | 0 | 1970 | 2119.0 |
| | AGR | ATTACHED GARAGE | 4 | 0 | 1970 | 567.0 |
| | BAW | BALCONY WOOD RAIL | 4 | 0 | 1970 | 124.0 |
| | ENP | ENCLOSED PORCH | 4 | 0 | 1970 | 252.0 |
| | LOF | LOFT | 4 | 0 | 1970 | 352.0 |
| | ENP | ENCLOSED PORCH | 4 | 0 | 1970 | 372.0 |
| | OP3 | OPEN PORCH W/ROOF | 4 | 0 | 1970 | 102.9 |
| | OP4 | OPEN PORCH W/CEILING-ROOF | 4 | 0 | 1970 | 40.0 |
Sketch
| No sketches available for this property. |
Property Image
Land
| 1 | 15 | SQ (12001-21780) | 0.4665 | 20320.74 | 0.00 | 0.00 | 1.00 | $280,000 | $0 |
Roll Value History
| 2026 | N/A | N/A | N/A | N/A | N/A |
| 2025 | $395,264 | $280,000 | $0 | $675,264 | $675,264 |
| 2024 | $392,148 | $250,000 | $0 | $642,148 | $642,148 |
| 2023 | $398,066 | $230,000 | $0 | $628,066 | $628,066 |
| 2022 | $420,102 | $220,000 | $0 | $640,102 | $640,102 |
| 2021 | $307,229 | $130,000 | $0 | $437,229 | $437,229 |
| 2020 | $300,635 | $110,000 | $0 | $410,635 | $410,635 |
| 2019 | $235,937 | $180,000 | $0 | $415,937 | $415,937 |
| 2018 | $236,057 | $160,000 | $0 | $396,057 | $396,057 |
| 2017 | $237,619 | $160,000 | $0 | $397,619 | $397,619 |
| 2016 | $240,747 | $125,000 | $0 | $365,747 | $365,747 |
| 2015 | $243,871 | $115,000 | $0 | $358,871 | $358,871 |
| 2014 | $246,999 | $100,000 | $0 | $346,999 | $346,999 |
| 2013 | $250,126 | $100,000 | $0 | $350,126 | $350,126 |
| 2012 | $259,202 | $100,000 | $0 | $359,202 | $359,202 |
| 2011 | $262,571 | $110,000 | $0 | $372,571 | $372,571 |
| 2010 | $277,015 | $110,000 | $0 | $387,015 | $387,015 |
| 2009 | $234,653 | $125,000 | $0 | $359,653 | $359,653 |
| 2008 | $237,975 | $135,000 | $0 | $372,975 | $372,975 |
| 2007 | $241,297 | $135,000 | $0 | $376,297 | $376,297 |
Deed and Sales History
| 1 | 01/19/2022 | WD | Warranty Deed | MEINHARDT, LINDA T | ADDINGTON, JAMES A | | | $605,000.00 | 51738 | 4538398 |
| 2 | 06/29/2021 | WD | Warranty Deed | KING, THOMAS M | MEINHARDT, LINDA T | | | $0.00 | 48969 | 4523268 |
| 3 | 04/01/1993 | DECREE | Divorce Decree/Legal Separation | KING, THOMAS M | KING, THOMAS M | | | $0.00 | 33143 | 93016279 |
| 4 | 10/01/1983 | QCD | Quit Claim Deed | KING, THOMAS M | KING, THOMAS M | | | $0.00 | 33165 | 416801 |
| 5 | 01/01/1900 | OTHER | Other - Misc. Documents | Unknown | KING, THOMAS M | | | $0.00 | 0 | 0 |
Payout Agreement
| No payout information available.. |