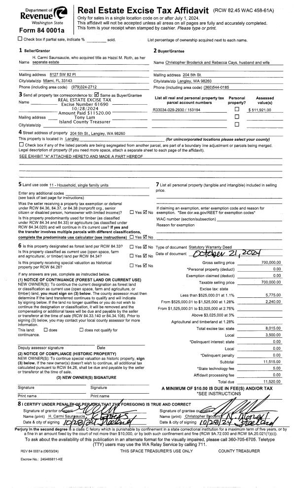
Property
Account |
| Property ID: | 304094 | Abbreviated Legal Description: | LEITCHS ADD LOT 7 INCL INT IN COMMUNITY LOT |
| Geographic ID: | S7365-00-00007-0 | Agent Code: | |
| Type: | Real | | |
| Tax Area: | 310 - APPRAISER-Cpvl Schl Dist, outside Cpvl, improved & 1 acre or less | Land Use Code | 11 |
| Open Space: | N | DFL | N |
| Historic Property: | N | Remodel Property: | N |
| Multi-Family Redevelopment: | N | | |
| Township: | | Section: | |
| Range: | |
Location |
| Address: | 40 N HARRINGTON LAGOON RD COUPEVILLE, WA 98239 | Mapsco: | |
| Neighborhood: | Cycle 2 | Map ID: | 572 |
| Neighborhood CD: | 2 |
Owner |
| Name: | GABLE, KATHLEEN J | Owner ID: | 183961 |
| Mailing Address: | 15000 VILLAGE GREEN DR #44 MILL CREEK, WA 98012 | % Ownership: | 100.0000000000% |
| | | Exemptions: | |
Taxes and Assessment Details
Values
| (+) Improvement Homesite Value: | + | $0 | |
| (+) Improvement Non-Homesite Value: | + | $98,075 | |
| (+) Land Homesite Value: | + | $0 | |
| (+) Land Non-Homesite Value: | + | $190,000 | |
| (+) Curr Use (HS): | + | $0 | $0 |
| (+) Curr Use (NHS): | + | $0 | $0 |
| | | -------------------------- | |
| (=) Market Value: | = | $288,075 | |
| (–) Productivity Loss: | – | $0 | |
| | | -------------------------- | |
| (=) Subtotal: | = | $288,075 | |
| (+) Senior Appraised Value: | + | $0 | |
| (+) Non-Senior Appraised Value: | + | $288,075 | |
| | | -------------------------- | |
| (=) Total Appraised Value: | = | $288,075 | |
| (–) Senior Exemption Loss: | – | $0 | |
| (–) Exemption Loss: | – | $0 | |
| | | -------------------------- | |
| (=) Taxable Value: | = | $288,075 | |
Taxing Jurisdiction
| Owner: | GABLE, KATHLEEN J | | |
| % Ownership: | 100.0000000000% | | |
| Total Value: | $288,075 | | |
| Tax Area: | 310 - APPRAISER-Cpvl Schl Dist, outside Cpvl, improved & 1 acre or less |
| CF | Conservation Futures | 0.0313996660 | $288,075 | $288,075 | $9.05 | | |
| CEM2 | Cemetery #2 | 0.0092609791 | $288,075 | $288,075 | $2.67 | | |
| FIRE5 | Fire & Rescue Dist #5 C Whidbey GEN | 1.1892169230 | $288,075 | $288,075 | $342.58 | | |
| FIRE5BOND | Fire & Rescue Dist #5 C Whidbey BOND | 0.1394359503 | $288,075 | $288,075 | $40.17 | | |
| HOBOND | Hospital BOND | 0.1893405597 | $288,075 | $288,075 | $54.54 | | |
| HOGEN | Hospital GEN | 0.3848777722 | $288,075 | $288,075 | $110.87 | | |
| CE | County Current Expense | 0.3674210519 | $288,075 | $288,075 | $105.84 | | |
| CR | County Roads | 0.4614296361 | $288,075 | $288,075 | $132.93 | | |
| ISLANDEMS | Hospital GEN (EMS) | 0.4952018576 | $288,075 | $288,075 | $142.66 | | |
| LIB | Library Sno-Isle GEN | 0.3039084203 | $288,075 | $288,075 | $87.55 | | |
| LIBCAP | Library Sno-Isle BOND (Cap Fac Imp Area) | 0.0528562629 | $288,075 | $288,075 | $15.23 | | |
| POCOUP | Port of Coupeville GEN | 0.1065226063 | $288,075 | $288,075 | $30.69 | | |
| POCOUPIDD | Port of Coupeville IDD | 0.3353038577 | $288,075 | $288,075 | $96.59 | | |
| COUPSDTECH | School 204 CP (TECH) | 0.1215123397 | $288,075 | $288,075 | $35.00 | | |
| SCH204MO | School 204 Enrichment | 0.6416662518 | $288,075 | $288,075 | $184.85 | | |
| ST | State School | 1.4761226122 | $288,075 | $288,075 | $425.23 | | |
| ST2 | State School Part 2 | 0.7953803475 | $288,075 | $288,075 | $229.13 | | |
| | Total Tax Rate: | 7.1008570943 | | | | | |
| | | | | Taxes w/Current Exemptions: | $2,045.58 | | |
| | | | | Taxes w/o Exemptions: | $2,045.58 | | |
Improvement / Building
| Improvement #1: | RESIDENTIAL | State Code: | Y | 720.0 sqft | Value: | $98,075 |
| Bathrooms: | 1 | Bedrooms: | 2 | | Ceiling: | DRYWALL PAINTED | Exterior Wall/Cover: | WOOD SIDING | | Floor Covering: | CARPET/VINYL 80-20 | Floor Structure: | WOOD W/SUBFLOOR | | Foundation: | CONCRETE BLOCKS | Heating: | BASEBOARD ELECTRIC | | Interior Finish: | DRYWALL PAINT | Plumbing Fixture Cnt: | 6 | | Roof Slope: | 4" IN 12" | Roof Structure/Cover: | CJ ASPHALT |
|
| | Type | Description | Class CD | Sub Class CD | Year Built | Area |
| | BAS | BASE/MAIN FLOOR | 3 | 0 | 1965 | 720.0 |
| | OP1 | OPEN PORCH SLAB | 3 | 0 | 1965 | 648.0 |
Sketch
| No sketches available for this property. |
Property Image
Land
| 1 | 14 | SQ (08001-12000) | 0.1881 | 8193.64 | 0.00 | 0.00 | 1.00 | $190,000 | $0 |
Roll Value History
| 2026 | N/A | N/A | N/A | N/A | N/A |
| 2025 | $98,075 | $190,000 | $0 | $288,075 | $288,075 |
| 2024 | $94,988 | $180,000 | $0 | $274,988 | $274,988 |
| 2023 | $96,677 | $170,000 | $0 | $266,677 | $266,677 |
| 2022 | $89,070 | $160,000 | $0 | $249,070 | $249,070 |
| 2021 | $78,787 | $130,000 | $0 | $208,787 | $208,787 |
| 2020 | $76,914 | $120,000 | $0 | $196,914 | $196,914 |
| 2019 | $53,796 | $175,000 | $0 | $228,796 | $228,796 |
| 2018 | $57,560 | $135,000 | $0 | $192,560 | $192,560 |
| 2017 | $58,016 | $100,000 | $0 | $158,016 | $158,016 |
| 2016 | $58,927 | $115,000 | $0 | $173,927 | $173,927 |
| 2015 | $59,838 | $90,000 | $0 | $149,838 | $149,838 |
| 2014 | $60,750 | $95,000 | $0 | $155,750 | $155,750 |
| 2013 | $61,661 | $95,000 | $0 | $156,661 | $156,661 |
| 2012 | $62,572 | $106,250 | $0 | $168,822 | $168,822 |
| 2011 | $63,483 | $125,000 | $0 | $188,483 | $188,483 |
| 2010 | $68,077 | $125,000 | $0 | $193,077 | $193,077 |
| 2009 | $71,080 | $125,000 | $0 | $196,080 | $196,080 |
| 2008 | $72,080 | $133,000 | $0 | $205,080 | $205,080 |
| 2007 | $73,079 | $133,000 | $0 | $206,079 | $206,079 |
Deed and Sales History
| 1 | 10/28/2003 | QCD | Quit Claim Deed | GABLE, BILL L | GABLE, KATHLEEN J | | | $0.00 | 35033 | 4081988 |
| 2 | 08/08/2000 | WD | Warranty Deed | PRIMM, GAYLE & | GABLE, BILL L | | | $100,000.00 | 3305 | 20015442 |
| 3 | 10/01/1990 | QCD | Quit Claim Deed | PRIMM, GAYLE | PRIMM, GAYLE & | | | $0.00 | 5885 | 90019892 |
| 4 | 10/01/1986 | OTHER | Other - Misc. Documents | WILEY, GAYLE | PRIMM, GAYLE | | | $0.00 | 61908 | 0 |
| 5 | 07/01/1984 | PACD | Purchaser's Assignment | OLIN, GLEN C | WILEY, GAYLE | | | $57,000.00 | 42069 | 84000776 |
| 6 | 10/01/1980 | EZ | Easement | KITTLESON, ALBERT L | OLIN, GLEN C | | | $46,000.00 | 3464 | 375157 |
| 7 | 09/01/1980 | REC | Real Estate Contract | GRANRUD, WILMER | KITTLESON, ALBERT L | | | $45,000.00 | 3155 | 374017 |
| 8 | 01/01/1900 | OTHER | Other - Misc. Documents | Unknown | GRANRUD, WILMER | | | $0.00 | 0 | 0 |
Payout Agreement
| No payout information available.. |