Property
Account |
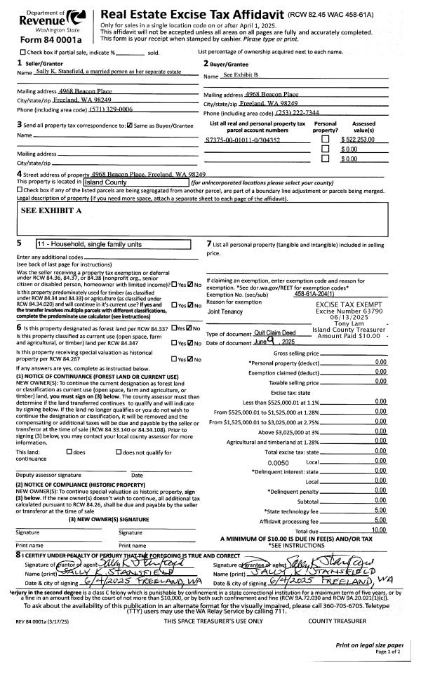
| Property ID: | 304352 | Abbreviated Legal Description: | LIGHTHSE SH LOT 11 BLK 1 1/124 INT IN RES A LHS 2 & 3 |
| Geographic ID: | S7375-00-01011-0 | Agent Code: | |
| Type: | Real | | |
| Tax Area: | 710 - APPRAISER-S Whid Schl Dist, outside Langley, improved & 1 acre or less | Land Use Code | 11 |
| Open Space: | N | DFL | N |
| Historic Property: | N | Remodel Property: | N |
| Multi-Family Redevelopment: | N | | |
| Township: | | Section: | |
| Range: | |
Location |
| Address: | 4968 BEACON PLACE FREELAND, WA 98249 | Mapsco: | |
| Neighborhood: | Cycle 3 | Map ID: | 300 |
| Neighborhood CD: | 3 |
Owner |
| Name: | STANSFIELD JTWROS, SALLY K | Owner ID: | 316930 |
| Mailing Address: | DAVID STANSFIELD JTWORS MEAGAN STANSFIELD JTWORS 4968 BEACON PL FREELAND, WA 98249 | % Ownership: | 100.0000000000% |
| | | Exemptions: | |
Taxes and Assessment Details
Values
| (+) Improvement Homesite Value: | + | $0 | |
| (+) Improvement Non-Homesite Value: | + | $253,181 | |
| (+) Land Homesite Value: | + | $0 | |
| (+) Land Non-Homesite Value: | + | $290,000 | |
| (+) Curr Use (HS): | + | $0 | $0 |
| (+) Curr Use (NHS): | + | $0 | $0 |
| | | -------------------------- | |
| (=) Market Value: | = | $543,181 | |
| (–) Productivity Loss: | – | $0 | |
| | | -------------------------- | |
| (=) Subtotal: | = | $543,181 | |
| (+) Senior Appraised Value: | + | $0 | |
| (+) Non-Senior Appraised Value: | + | $543,181 | |
| | | -------------------------- | |
| (=) Total Appraised Value: | = | $543,181 | |
| (–) Senior Exemption Loss: | – | $0 | |
| (–) Exemption Loss: | – | $0 | |
| | | -------------------------- | |
| (=) Taxable Value: | = | $543,181 | |
Taxing Jurisdiction
| Owner: | STANSFIELD JTWROS, SALLY K | | |
| % Ownership: | 100.0000000000% | | |
| Total Value: | $543,181 | | |
| Tax Area: | 710 - APPRAISER-S Whid Schl Dist, outside Langley, improved & 1 acre or less |
| CF | Conservation Futures | 0.0313996660 | $543,181 | $543,181 | $17.06 | | |
| FIRE3 | Fire & Rescue Dist #3 S Whidbey GEN | 1.2130821753 | $543,181 | $543,181 | $658.92 | | |
| HOBOND | Hospital BOND | 0.1893405597 | $543,181 | $543,181 | $102.85 | | |
| HOGEN | Hospital GEN | 0.3848777722 | $543,181 | $543,181 | $209.06 | | |
| CE | County Current Expense | 0.3674210519 | $543,181 | $543,181 | $199.58 | | |
| CR | County Roads | 0.4614296361 | $543,181 | $543,181 | $250.64 | | |
| ISLANDEMS | Hospital GEN (EMS) | 0.4952018576 | $543,181 | $543,181 | $268.98 | | |
| LIB | Library Sno-Isle GEN | 0.3039084203 | $543,181 | $543,181 | $165.08 | | |
| PORTWHID | Port of S Whidbey GEN | 0.1086004714 | $543,181 | $543,181 | $58.99 | | |
| SCH206BOND | School 206 BOND | 0.5960237832 | $543,181 | $543,181 | $323.75 | | |
| SCH206CAP | School 206 CP | 0.3066144020 | $543,181 | $543,181 | $166.55 | | |
| SCH206MO | School 206 Enrichment | 0.4808755445 | $543,181 | $543,181 | $261.20 | | |
| ST | State School | 1.4761226122 | $543,181 | $543,181 | $801.80 | | |
| ST2 | State School Part 2 | 0.7953803475 | $543,181 | $543,181 | $432.04 | | |
| SWHIDPRBD | P & R S Whidbey BOND | 0.0144185398 | $543,181 | $543,181 | $7.83 | | |
| SWHIDPRBD3 | P & R S Whidbey BOND3 | 0.1483535547 | $543,181 | $543,181 | $80.58 | | |
| SWHIDPRMT | P & R S Whidbey GEN | 0.4600000000 | $543,181 | $543,181 | $249.86 | | |
| | Total Tax Rate: | 7.8330503944 | | | | | |
| | | | | Taxes w/Current Exemptions: | $4,254.77 | | |
| | | | | Taxes w/o Exemptions: | $4,254.77 | | |
Improvement / Building
| Improvement #1: | RESIDENTIAL | State Code: | Y | 2279.2 sqft | Value: | $253,181 |
| Bathrooms: | 2 | Bedrooms: | 3 | | Ceiling: | DRYWALL PAINTED | Exterior Wall/Cover: | WOOD SIDING | | Floor Covering: | VINYL/HARDWOOD 20-80 | Floor Structure: | WOOD W/SUBFLOOR | | Foundation: | CONCRETE | Heating: | BASEBOARD ELECTRIC | | Interior Finish: | DRYWALL PAINT | Plumbing Fixture Cnt: | 9 | | Roof Slope: | 3" IN 12" | Roof Structure/Cover: | CJ BUILT-UP ROCK |
|
| | Type | Description | Class CD | Sub Class CD | Year Built | Area |
| | BAS | BASE/MAIN FLOOR | 3 | 0 | 1965 | 1139.6 |
| | DWN | DOWNSTAIRS LIVING AREA | 3 | 0 | 1965 | 1139.6 |
| | AGR | ATTACHED GARAGE | 3 | 0 | 1965 | 340.0 |
| | OWP | OPEN WOOD PORCH W/STEPS | 3 | 0 | 1965 | 284.9 |
Sketch
Property Image
Land
| 1 | 13 | SQ (06001-08000) | 0.0000 | 0.00 | 0.00 | 0.00 | 1.00 | $290,000 | $0 |
Roll Value History
| 2026 | N/A | N/A | N/A | N/A | N/A |
| 2025 | $253,181 | $290,000 | $0 | $543,181 | $543,181 |
| 2024 | $262,253 | $260,000 | $0 | $522,253 | $522,253 |
| 2023 | $265,987 | $260,000 | $0 | $525,987 | $525,987 |
| 2022 | $244,232 | $210,000 | $0 | $454,232 | $454,232 |
| 2021 | $215,314 | $170,000 | $0 | $385,314 | $385,314 |
| 2020 | $210,749 | $170,000 | $0 | $380,749 | $380,749 |
| 2019 | $101,703 | $200,000 | $0 | $301,703 | $301,703 |
| 2018 | $102,200 | $150,000 | $0 | $252,200 | $252,200 |
| 2017 | $103,162 | $150,000 | $0 | $253,162 | $253,162 |
| 2016 | $105,146 | $150,000 | $0 | $255,146 | $255,146 |
| 2015 | $107,129 | $150,000 | $0 | $257,129 | $257,129 |
| 2014 | $109,113 | $119,000 | $0 | $228,113 | $228,113 |
| 2013 | $102,011 | $119,000 | $0 | $221,011 | $221,011 |
| 2012 | $103,994 | $119,000 | $0 | $222,994 | $222,994 |
| 2011 | $105,978 | $140,000 | $0 | $245,978 | $245,978 |
| 2010 | $121,516 | $140,000 | $0 | $261,516 | $261,516 |
| 2009 | $125,307 | $190,000 | $0 | $315,307 | $315,307 |
| 2008 | $127,480 | $190,000 | $0 | $317,480 | $317,480 |
| 2007 | $129,485 | $190,000 | $0 | $319,485 | $319,485 |
Deed and Sales History
| 1 | 06/09/2025 | QCD | Quit Claim Deed | STANSFIELD, SALLY K | STANSFIELD JTWROS, SALLY K | | | $0.00 | 63790 | 4586943 |
| 2 | 06/09/2025 | QCD | Quit Claim Deed | FARROW, JAMES | STANSFIELD, SALLY K | | | $0.00 | 63789 | 4586942 |
| 3 | 03/01/1983 | WD | Warranty Deed | OLSEN, EARL S | STANSFIELD, SALLY K | | | $79,500.00 | 30621 | 406970 |
| 4 | 01/01/1900 | OTHER | Other - Misc. Documents | Unknown | OLSEN, EARL S | | | $0.00 | 0 | 0 |
Payout Agreement
| No payout information available.. |