Property
Account |
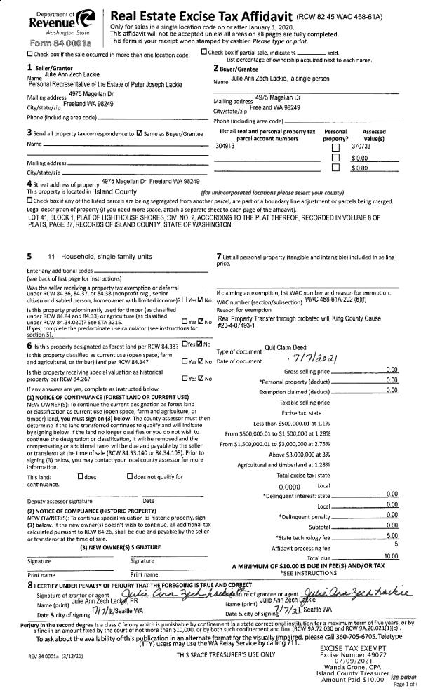
| Property ID: | 304913 | Abbreviated Legal Description: | LIGHTHSE SH 2 LOT 41 BLK 1 1/124 INT IN RES A LHS 2 & 3 |
| Geographic ID: | S7375-02-01041-0 | Agent Code: | |
| Type: | Real | | |
| Tax Area: | 710 - APPRAISER-S Whid Schl Dist, outside Langley, improved & 1 acre or less | Land Use Code | 11 |
| Open Space: | N | DFL | N |
| Historic Property: | N | Remodel Property: | N |
| Multi-Family Redevelopment: | N | | |
| Township: | | Section: | |
| Range: | |
Location |
| Address: | 4975 MAGELLAN DR FREELAND, WA 98249 | Mapsco: | |
| Neighborhood: | Cycle 3 | Map ID: | 300 |
| Neighborhood CD: | 3 |
Owner |
| Name: | LACKIE, JULIE | Owner ID: | 300131 |
| Mailing Address: | 4975 MAGELLAN DR FREELAND, WA 98249 | % Ownership: | 100.0000000000% |
| | | Exemptions: | |
Taxes and Assessment Details
Values
| (+) Improvement Homesite Value: | + | $0 | |
| (+) Improvement Non-Homesite Value: | + | $145,179 | |
| (+) Land Homesite Value: | + | $0 | |
| (+) Land Non-Homesite Value: | + | $480,000 | |
| (+) Curr Use (HS): | + | $0 | $0 |
| (+) Curr Use (NHS): | + | $0 | $0 |
| | | -------------------------- | |
| (=) Market Value: | = | $625,179 | |
| (–) Productivity Loss: | – | $0 | |
| | | -------------------------- | |
| (=) Subtotal: | = | $625,179 | |
| (+) Senior Appraised Value: | + | $0 | |
| (+) Non-Senior Appraised Value: | + | $625,179 | |
| | | -------------------------- | |
| (=) Total Appraised Value: | = | $625,179 | |
| (–) Senior Exemption Loss: | – | $0 | |
| (–) Exemption Loss: | – | $0 | |
| | | -------------------------- | |
| (=) Taxable Value: | = | $625,179 | |
Taxing Jurisdiction
| Owner: | LACKIE, JULIE | | |
| % Ownership: | 100.0000000000% | | |
| Total Value: | $625,179 | | |
| Tax Area: | 710 - APPRAISER-S Whid Schl Dist, outside Langley, improved & 1 acre or less |
| CF | Conservation Futures | 0.0313996660 | $625,179 | $625,179 | $19.63 | | |
| FIRE3 | Fire & Rescue Dist #3 S Whidbey GEN | 1.2130821753 | $625,179 | $625,179 | $758.39 | | |
| HOBOND | Hospital BOND | 0.1893405597 | $625,179 | $625,179 | $118.37 | | |
| HOGEN | Hospital GEN | 0.3848777722 | $625,179 | $625,179 | $240.62 | | |
| CE | County Current Expense | 0.3674210519 | $625,179 | $625,179 | $229.70 | | |
| CR | County Roads | 0.4614296361 | $625,179 | $625,179 | $288.48 | | |
| ISLANDEMS | Hospital GEN (EMS) | 0.4952018576 | $625,179 | $625,179 | $309.59 | | |
| LIB | Library Sno-Isle GEN | 0.3039084203 | $625,179 | $625,179 | $190.00 | | |
| PORTWHID | Port of S Whidbey GEN | 0.1086004714 | $625,179 | $625,179 | $67.89 | | |
| SCH206BOND | School 206 BOND | 0.5960237832 | $625,179 | $625,179 | $372.62 | | |
| SCH206CAP | School 206 CP | 0.3066144020 | $625,179 | $625,179 | $191.69 | | |
| SCH206MO | School 206 Enrichment | 0.4808755445 | $625,179 | $625,179 | $300.63 | | |
| ST | State School | 1.4761226122 | $625,179 | $625,179 | $922.84 | | |
| ST2 | State School Part 2 | 0.7953803475 | $625,179 | $625,179 | $497.26 | | |
| SWHIDPRBD | P & R S Whidbey BOND | 0.0144185398 | $625,179 | $625,179 | $9.01 | | |
| SWHIDPRBD3 | P & R S Whidbey BOND3 | 0.1483535547 | $625,179 | $625,179 | $92.75 | | |
| SWHIDPRMT | P & R S Whidbey GEN | 0.4600000000 | $625,179 | $625,179 | $287.58 | | |
| | Total Tax Rate: | 7.8330503944 | | | | | |
| | | | | Taxes w/Current Exemptions: | $4,897.05 | | |
| | | | | Taxes w/o Exemptions: | $4,897.05 | | |
Improvement / Building
| Improvement #1: | RESIDENTIAL | State Code: | Y | 800.0 sqft | Value: | $145,179 |
| Bathrooms: | 1 | Bedrooms: | 2 | | Ceiling: | TONGUE & GROOVE | Cooling: | HEAT PUMP/CONV/V | | Exterior Wall/Cover: | CEMENT FIBER | Floor Covering: | HARDWOOD/CARP 20-80 | | Floor Structure: | WOOD W/SUBFLOOR | Foundation: | PEIRS | | Interior Finish: | DRYWALL PAINT | Plumbing Fixture Cnt: | 6 | | Roof Slope: | 3" IN 12" | Roof Structure/Cover: | BEAM ALUMINUM HEAVY |
|
| | Type | Description | Class CD | Sub Class CD | Year Built | Area |
| | BAS | BASE/MAIN FLOOR | 3 | 0 | 1954 | 800.0 |
| | OWP | OPEN WOOD PORCH W/STEPS | 3 | 0 | 1954 | 751.9 |
| | UTY | STORAGE/UTILITY | 3 | 0 | 1954 | 144.0 |
Sketch
Property Image
Land
| 1 | 14 | SQ (08001-12000) | 0.0000 | 0.00 | 0.00 | 0.00 | 1.00 | $480,000 | $0 |
Roll Value History
| 2026 | N/A | N/A | N/A | N/A | N/A |
| 2025 | $145,179 | $480,000 | $0 | $625,179 | $625,179 |
| 2024 | $147,216 | $450,000 | $0 | $597,216 | $597,216 |
| 2023 | $149,253 | $450,000 | $0 | $599,253 | $599,253 |
| 2022 | $136,994 | $360,000 | $0 | $496,994 | $496,994 |
| 2021 | $120,733 | $250,000 | $0 | $370,733 | $370,733 |
| 2020 | $117,565 | $250,000 | $0 | $367,565 | $367,565 |
| 2019 | $82,167 | $300,000 | $0 | $382,167 | $382,167 |
| 2018 | $82,433 | $300,000 | $0 | $382,433 | $382,433 |
| 2017 | $61,953 | $300,000 | $0 | $361,953 | $361,953 |
| 2016 | $62,813 | $300,000 | $0 | $362,813 | $362,813 |
| 2015 | $28,101 | $150,000 | $0 | $178,101 | $178,101 |
| 2014 | $28,841 | $150,000 | $0 | $178,841 | $178,841 |
| 2013 | $30,805 | $153,000 | $0 | $183,805 | $183,805 |
| 2012 | $31,544 | $153,000 | $0 | $184,544 | $184,544 |
| 2011 | $32,284 | $180,000 | $0 | $212,284 | $212,284 |
| 2010 | $37,796 | $180,000 | $0 | $217,796 | $217,796 |
| 2009 | $39,778 | $190,000 | $0 | $229,778 | $229,778 |
| 2008 | $39,886 | $190,000 | $0 | $229,886 | $229,886 |
| 2007 | $40,745 | $190,000 | $0 | $230,745 | $230,745 |
Deed and Sales History
| 1 | 07/07/2021 | QCD | Quit Claim Deed | LACKIE, PETER | LACKIE, JULIE | | | $0.00 | 49072 | 4523821 |
| 2 | 03/14/2016 | WD | Warranty Deed | MCLAUGHLIN, CASEY J | LACKIE, PETER | | | $375,000.00 | 23587 | 4396128 |
| 3 | 12/30/2005 | QCD | Quit Claim Deed | MCLAUGHLIN, ELIZABETH A | MCLAUGHLIN, CASEY J | | | $0.00 | 56459 | 4158453 |
| 4 | 07/15/1998 | OTHER | Other - Misc. Documents | MCLAUGHLIN, DONALD E | MCLAUGHLIN, ELIZABETH A | | | $0.00 | 67941 | 98013939 |
| 5 | 09/01/1986 | WD | Warranty Deed | LARSON, CLYDE M | MCLAUGHLIN, DONALD E | | | $50,000.00 | 62714 | 86012262 |
| 6 | 08/01/1984 | REC | Real Estate Contract | REESE, JOHN O | LARSON, CLYDE M | | | $55,000.00 | 42522 | 84002500 |
Payout Agreement
| No payout information available.. |