Property
Account |
| Property ID: | 304922 | Abbreviated Legal Description: | LIGHTHOUSE SHORES 2 LOTS 27 & 28 BLK 2 TGW 2/124THS INT IN RES A LHS 2 & 3 COMB 4/96 |
| Geographic ID: | S7375-02-02027-0 | Agent Code: | |
| Type: | Real | | |
| Tax Area: | 710 - APPRAISER-S Whid Schl Dist, outside Langley, improved & 1 acre or less | Land Use Code | 11 |
| Open Space: | N | DFL | N |
| Historic Property: | N | Remodel Property: | N |
| Multi-Family Redevelopment: | N | | |
| Township: | | Section: | |
| Range: | |
Location |
| Address: | 4926 MAGELLAN DR FREELAND, WA 98249 | Mapsco: | |
| Neighborhood: | Cycle 3 | Map ID: | 300 |
| Neighborhood CD: | 3 |
Owner |
| Name: | CORSON TTEE, MARSHALL A | Owner ID: | 307556 |
| Mailing Address: | LAUREN P RIKER TTEE 4926 MAGELLAN DR FREELAND, WA 98249 | % Ownership: | 100.0000000000% |
| | | Exemptions: | |
Taxes and Assessment Details
Values
| (+) Improvement Homesite Value: | + | $0 | |
| (+) Improvement Non-Homesite Value: | + | $520,200 | |
| (+) Land Homesite Value: | + | $0 | |
| (+) Land Non-Homesite Value: | + | $290,000 | |
| (+) Curr Use (HS): | + | $0 | $0 |
| (+) Curr Use (NHS): | + | $0 | $0 |
| | | -------------------------- | |
| (=) Market Value: | = | $810,200 | |
| (–) Productivity Loss: | – | $0 | |
| | | -------------------------- | |
| (=) Subtotal: | = | $810,200 | |
| (+) Senior Appraised Value: | + | $0 | |
| (+) Non-Senior Appraised Value: | + | $810,200 | |
| | | -------------------------- | |
| (=) Total Appraised Value: | = | $810,200 | |
| (–) Senior Exemption Loss: | – | $0 | |
| (–) Exemption Loss: | – | $0 | |
| | | -------------------------- | |
| (=) Taxable Value: | = | $810,200 | |
Taxing Jurisdiction
| Owner: | CORSON TTEE, MARSHALL A | | |
| % Ownership: | 100.0000000000% | | |
| Total Value: | $810,200 | | |
| Tax Area: | 710 - APPRAISER-S Whid Schl Dist, outside Langley, improved & 1 acre or less |
| CF | Conservation Futures | 0.0313996660 | $810,200 | $810,200 | $25.44 | | |
| FIRE3 | Fire & Rescue Dist #3 S Whidbey GEN | 1.2130821753 | $810,200 | $810,200 | $982.84 | | |
| HOBOND | Hospital BOND | 0.1893405597 | $810,200 | $810,200 | $153.40 | | |
| HOGEN | Hospital GEN | 0.3848777722 | $810,200 | $810,200 | $311.83 | | |
| CE | County Current Expense | 0.3674210519 | $810,200 | $810,200 | $297.68 | | |
| CR | County Roads | 0.4614296361 | $810,200 | $810,200 | $373.85 | | |
| ISLANDEMS | Hospital GEN (EMS) | 0.4952018576 | $810,200 | $810,200 | $401.21 | | |
| LIB | Library Sno-Isle GEN | 0.3039084203 | $810,200 | $810,200 | $246.23 | | |
| PORTWHID | Port of S Whidbey GEN | 0.1086004714 | $810,200 | $810,200 | $87.99 | | |
| SCH206BOND | School 206 BOND | 0.5960237832 | $810,200 | $810,200 | $482.90 | | |
| SCH206CAP | School 206 CP | 0.3066144020 | $810,200 | $810,200 | $248.42 | | |
| SCH206MO | School 206 Enrichment | 0.4808755445 | $810,200 | $810,200 | $389.61 | | |
| ST | State School | 1.4761226122 | $810,200 | $810,200 | $1,195.95 | | |
| ST2 | State School Part 2 | 0.7953803475 | $810,200 | $810,200 | $644.42 | | |
| SWHIDPRBD | P & R S Whidbey BOND | 0.0144185398 | $810,200 | $810,200 | $11.68 | | |
| SWHIDPRBD3 | P & R S Whidbey BOND3 | 0.1483535547 | $810,200 | $810,200 | $120.20 | | |
| SWHIDPRMT | P & R S Whidbey GEN | 0.4600000000 | $810,200 | $810,200 | $372.69 | | |
| | Total Tax Rate: | 7.8330503944 | | | | | |
| | | | | Taxes w/Current Exemptions: | $6,346.34 | | |
| | | | | Taxes w/o Exemptions: | $6,346.34 | | |
Improvement / Building
| Improvement #1: | RESIDENTIAL | State Code: | Y | 3144.0 sqft | Value: | $520,200 |
| Bathrooms: | 3 | Bedrooms: | 3 | | Ceiling: | DRYWALL PAINTED | Exterior Wall/Cover: | WOOD SIDING | | Floor Covering: | HARDWOOD/CARP 60-40 | Floor Structure: | WOOD W/SUBFLOOR | | Foundation: | CONCRETE | Heating: | HEAT PUMP | | Interior Finish: | DRYWALL PAINT | Plumbing Fixture Cnt: | 12 | | Roof Slope: | 6" IN 12" | Roof Structure/Cover: | CJ ASPHALT |
|
| | Type | Description | Class CD | Sub Class CD | Year Built | Area |
| | BAS | BASE/MAIN FLOOR | 4 | 0 | 1996 | 1814.0 |
| | BIG | BUILT IN GARAGE | 4 | 0 | 1996 | 484.0 |
| | OWP | OPEN WOOD PORCH W/STEPS | 4 | 0 | 1996 | 240.0 |
| | OWP | OPEN WOOD PORCH W/STEPS | 4 | 0 | 1996 | 90.0 |
| | OWC | OPEN WOOD PORCH W/STEPS/ROOF/C | 4 | 0 | 1996 | 40.0 |
| | DWN | DOWNSTAIRS LIVING AREA | 4 | 0 | 1996 | 1330.0 |
Sketch
Property Image
Land
| 1 | 15 | SQ (12001-21780) | 0.0000 | 0.00 | 0.00 | 0.00 | 1.00 | $290,000 | $0 |
Roll Value History
| 2026 | N/A | N/A | N/A | N/A | N/A |
| 2025 | $520,200 | $290,000 | $0 | $810,200 | $810,200 |
| 2024 | $520,094 | $260,000 | $0 | $780,094 | $780,094 |
| 2023 | $526,417 | $260,000 | $0 | $786,417 | $786,417 |
| 2022 | $414,784 | $210,000 | $0 | $624,784 | $624,784 |
| 2021 | $365,175 | $170,000 | $0 | $535,175 | $535,175 |
| 2020 | $356,848 | $170,000 | $0 | $526,848 | $526,848 |
| 2019 | $257,943 | $200,000 | $0 | $457,943 | $457,943 |
| 2018 | $258,770 | $130,000 | $0 | $388,770 | $388,770 |
| 2017 | $260,418 | $120,000 | $0 | $380,418 | $380,418 |
| 2016 | $263,714 | $100,000 | $0 | $363,714 | $363,714 |
| 2015 | $267,008 | $100,000 | $0 | $367,008 | $367,008 |
| 2014 | $270,307 | $85,000 | $0 | $355,307 | $355,307 |
| 2013 | $273,603 | $85,000 | $0 | $358,603 | $358,603 |
| 2012 | $276,900 | $85,000 | $0 | $361,900 | $361,900 |
| 2011 | $280,196 | $100,000 | $0 | $380,196 | $380,196 |
| 2010 | $288,122 | $100,000 | $0 | $388,122 | $388,122 |
| 2009 | $300,643 | $150,000 | $0 | $450,643 | $450,643 |
| 2008 | $304,374 | $185,000 | $0 | $489,374 | $489,374 |
| 2007 | $304,167 | $185,000 | $0 | $489,167 | $489,167 |
Deed and Sales History
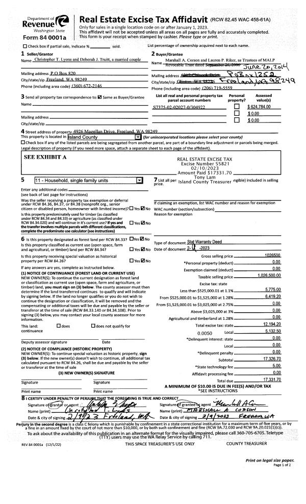
| 1 | 02/09/2023 | WD | Warranty Deed | LYONS, CHRISTOPHER T | CORSON TTEE, MARSHALL A | | | $1,026,500.00 | 55821 | 4556592 |
| 2 | 01/27/2004 | 5 | DNU - Marriage License/Name Change | LYONS, CHRISTOPHER T | LYONS, CHRISTOPHER T | | | $0.00 | 40528 | 4091060 |
| 3 | 08/29/2003 | WD | Warranty Deed | VALENCIA, FRANK G | LYONS, CHRISTOPHER T | | | $437,000.00 | 33849 | 4073101 |
| 4 | 08/27/2003 | ESTSEPPROP | Establish Separate Property | LYONS, CHRISTOPHER T | LYONS, CHRISTOPHER T | | | $0.00 | 33851 | 4073102 |
| 5 | 05/02/2002 | DECREE | Divorce Decree/Legal Separation | VALENCIA, FRANK G | VALENCIA, FRANK G | | | $0.00 | 22064 | 4021597 |
| 6 | 04/01/1996 | OTHER | Other - Misc. Documents | VALENCIA, FRANK G | VALENCIA, FRANK G | | | $0.00 | 66868 | 96005611 |
| 7 | 03/01/1996 | WD | Warranty Deed | CASA, GROUP C | VALENCIA, FRANK G | | | $194,000.00 | 60844 | 96004405 |
| 8 | 11/01/1995 | WD | Warranty Deed | ROBERTS, LAWRENCE | CASA, GROUP C | | | $35,000.00 | 54012 | 95018437 |
| 9 | 08/01/1988 | WD | Warranty Deed | MILLER, ROBERT V | ROBERTS, LAWRENCE | | | $2,500.00 | 82725 | 88010285 |
| 10 | 01/01/1900 | OTHER | Other - Misc. Documents | Unknown | MILLER, ROBERT V | | | $0.00 | 0 | 0 |
Payout Agreement
| No payout information available.. |