Property
Account |
| Property ID: | 304986 | Abbreviated Legal Description: | LIGHTHSE SH 3 LOT 1 INCL ADJ TIDES TGW 1/124 INT IN RES A LHS 2 & 3 DRAINFIELD LOC LOTS 6 & 7 LIGHTHSE SH 4 AF#92011145 |
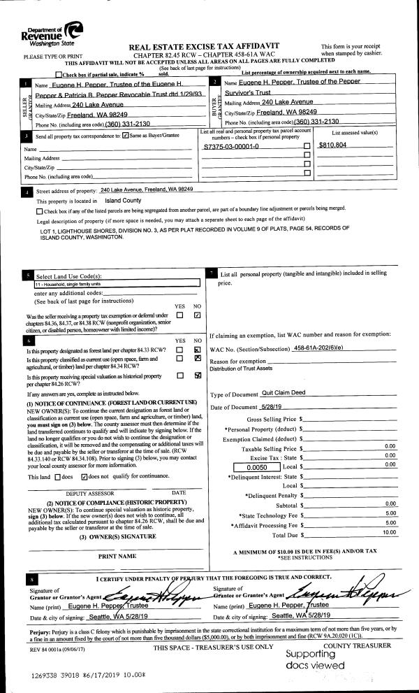
| Geographic ID: | S7375-03-00001-0 | Agent Code: | |
| Type: | Real | | |
| Tax Area: | 710 - APPRAISER-S Whid Schl Dist, outside Langley, improved & 1 acre or less | Land Use Code | 11 |
| Open Space: | N | DFL | N |
| Historic Property: | N | Remodel Property: | N |
| Multi-Family Redevelopment: | N | | |
| Township: | | Section: | |
| Range: | |
Location |
| Address: | 240 LAKE AVE FREELAND, WA 98249 | Mapsco: | |
| Neighborhood: | Cycle 3 | Map ID: | 300 |
| Neighborhood CD: | 3 |
Owner |
| Name: | PEPPER TTEE, EUGENE H | Owner ID: | 290305 |
| Mailing Address: | 240 LAKE AVE FREELAND, WA 98249 | % Ownership: | 100.0000000000% |
| | | Exemptions: | |
Taxes and Assessment Details
Values
| (+) Improvement Homesite Value: | + | $0 | |
| (+) Improvement Non-Homesite Value: | + | $358,691 | |
| (+) Land Homesite Value: | + | $0 | |
| (+) Land Non-Homesite Value: | + | $945,640 | |
| (+) Curr Use (HS): | + | $0 | $0 |
| (+) Curr Use (NHS): | + | $0 | $0 |
| | | -------------------------- | |
| (=) Market Value: | = | $1,304,331 | |
| (–) Productivity Loss: | – | $0 | |
| | | -------------------------- | |
| (=) Subtotal: | = | $1,304,331 | |
| (+) Senior Appraised Value: | + | $0 | |
| (+) Non-Senior Appraised Value: | + | $1,304,331 | |
| | | -------------------------- | |
| (=) Total Appraised Value: | = | $1,304,331 | |
| (–) Senior Exemption Loss: | – | $0 | |
| (–) Exemption Loss: | – | $0 | |
| | | -------------------------- | |
| (=) Taxable Value: | = | $1,304,331 | |
Taxing Jurisdiction
| Owner: | PEPPER TTEE, EUGENE H | | |
| % Ownership: | 100.0000000000% | | |
| Total Value: | $1,304,331 | | |
| Tax Area: | 710 - APPRAISER-S Whid Schl Dist, outside Langley, improved & 1 acre or less |
| CF | Conservation Futures | 0.0313996660 | $1,304,331 | $1,304,331 | $40.96 | | |
| FIRE3 | Fire & Rescue Dist #3 S Whidbey GEN | 1.2130821753 | $1,304,331 | $1,304,331 | $1,582.26 | | |
| HOBOND | Hospital BOND | 0.1893405597 | $1,304,331 | $1,304,331 | $246.96 | | |
| HOGEN | Hospital GEN | 0.3848777722 | $1,304,331 | $1,304,331 | $502.01 | | |
| CE | County Current Expense | 0.3674210519 | $1,304,331 | $1,304,331 | $479.24 | | |
| CR | County Roads | 0.4614296361 | $1,304,331 | $1,304,331 | $601.86 | | |
| ISLANDEMS | Hospital GEN (EMS) | 0.4952018576 | $1,304,331 | $1,304,331 | $645.91 | | |
| LIB | Library Sno-Isle GEN | 0.3039084203 | $1,304,331 | $1,304,331 | $396.40 | | |
| PORTWHID | Port of S Whidbey GEN | 0.1086004714 | $1,304,331 | $1,304,331 | $141.65 | | |
| SCH206BOND | School 206 BOND | 0.5960237832 | $1,304,331 | $1,304,331 | $777.41 | | |
| SCH206CAP | School 206 CP | 0.3066144020 | $1,304,331 | $1,304,331 | $399.93 | | |
| SCH206MO | School 206 Enrichment | 0.4808755445 | $1,304,331 | $1,304,331 | $627.22 | | |
| ST | State School | 1.4761226122 | $1,304,331 | $1,304,331 | $1,925.35 | | |
| ST2 | State School Part 2 | 0.7953803475 | $1,304,331 | $1,304,331 | $1,037.44 | | |
| SWHIDPRBD | P & R S Whidbey BOND | 0.0144185398 | $1,304,331 | $1,304,331 | $18.81 | | |
| SWHIDPRBD3 | P & R S Whidbey BOND3 | 0.1483535547 | $1,304,331 | $1,304,331 | $193.50 | | |
| SWHIDPRMT | P & R S Whidbey GEN | 0.4600000000 | $1,304,331 | $1,304,331 | $599.99 | | |
| | Total Tax Rate: | 7.8330503944 | | | | | |
| | | | | Taxes w/Current Exemptions: | $10,216.90 | | |
| | | | | Taxes w/o Exemptions: | $10,216.90 | | |
Improvement / Building
| Improvement #1: | RESIDENTIAL | State Code: | Y | 1690.0 sqft | Value: | $358,691 |
| Bathrooms: | 2 | Bedrooms: | 2 | | Ceiling: | TONGUE & GROOVE | Cooling: | HEAT PUMP/CONV/V | | Exterior Wall/Cover: | WOOD SIDING | Floor Covering: | HARDWOOD/CARP 20-80 | | Floor Structure: | WOOD W/SUBFLOOR | Foundation: | CONCRETE | | Interior Finish: | DRYWALL PAINT | Plumbing Fixture Cnt: | 9 | | Roof Slope: | 4" IN 12" | Roof Structure/Cover: | CJ ALUMINIUM HEAVY |
|
| | Type | Description | Class CD | Sub Class CD | Year Built | Area |
| | BAS | BASE/MAIN FLOOR | 4 | 0 | 1994 | 1690.0 |
| | AGR | ATTACHED GARAGE | 4 | 0 | 1994 | 633.0 |
| | OWP | OPEN WOOD PORCH W/STEPS | 4 | 0 | 1994 | 392.0 |
| | OWC | OPEN WOOD PORCH W/STEPS/ROOF/C | 4 | 0 | 1994 | 56.0 |
Sketch
Property Image
Land
| 1 | LB | LOW BANK | 0.0000 | 0.00 | 64.00 | 0.00 | 1.00 | $945,000 | $0 |
| 2 | 55 | TIDES | 0.0000 | 0.00 | 64.00 | 0.00 | 1.00 | $640 | $0 |
Roll Value History
| 2026 | N/A | N/A | N/A | N/A | N/A |
| 2025 | $358,691 | $945,640 | $0 | $1,304,331 | $1,304,331 |
| 2024 | $363,333 | $945,640 | $0 | $1,308,973 | $1,308,973 |
| 2023 | $367,977 | $945,640 | $0 | $1,313,617 | $1,313,617 |
| 2022 | $337,413 | $900,640 | $0 | $1,238,053 | $1,238,053 |
| 2021 | $297,069 | $750,640 | $0 | $1,047,709 | $1,047,709 |
| 2020 | $289,782 | $600,640 | $0 | $890,422 | $890,422 |
| 2019 | $209,467 | $675,640 | $0 | $885,107 | $885,107 |
| 2018 | $210,164 | $600,640 | $0 | $810,804 | $810,804 |
| 2017 | $211,555 | $600,640 | $0 | $812,195 | $812,195 |
| 2016 | $214,338 | $600,640 | $0 | $814,978 | $814,978 |
| 2015 | $217,122 | $600,640 | $0 | $817,762 | $817,762 |
| 2014 | $219,905 | $500,640 | $0 | $720,545 | $720,545 |
| 2013 | $222,689 | $449,555 | $0 | $672,244 | $672,244 |
| 2012 | $225,473 | $449,555 | $0 | $675,028 | $675,028 |
| 2011 | $228,256 | $449,555 | $0 | $677,811 | $677,811 |
| 2010 | $236,655 | $449,555 | $0 | $686,210 | $686,210 |
| 2009 | $246,716 | $643,360 | $0 | $890,076 | $890,076 |
| 2008 | $257,208 | $495,040 | $0 | $752,248 | $752,248 |
| 2007 | $260,540 | $494,592 | $0 | $755,132 | $755,132 |
Deed and Sales History
| 1 | 05/28/2019 | QCD | Quit Claim Deed | PEPPER, EUGENE H / PATRICIA B | PEPPER TTEE, EUGENE H | | | $0.00 | 39018 | 4465607 |
| 2 | 02/01/1993 | WD | Warranty Deed | PEPPER, EUGENE H | PEPPER, EUGENE H | | | $0.00 | 30409 | 93002048 |
| 3 | 03/01/1990 | REC | Real Estate Contract | DOYLE, W S | PEPPER, EUGENE H | | | $78,000.00 | 1559 | 90005030 |
| 4 | 07/01/1986 | WD | Warranty Deed | ERICKSON, ROGER D | DOYLE, W S | | | $75,000.00 | 61870 | 86008800 |
| 5 | 01/01/1900 | OTHER | Other - Misc. Documents | Unknown | ERICKSON, ROGER D | | | $0.00 | 0 | 0 |
Payout Agreement
| No payout information available.. |