Property
Account |
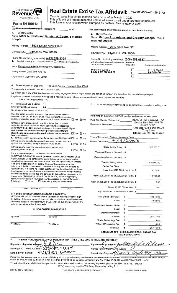
| Property ID: | 305306 | Abbreviated Legal Description: | LIGHTHSE SH 4 LOT 15 1/124 INT IN RES A LHS 2 & 3 |
| Geographic ID: | S7375-04-00015-0 | Agent Code: | |
| Type: | Real | | |
| Tax Area: | 710 - APPRAISER-S Whid Schl Dist, outside Langley, improved & 1 acre or less | Land Use Code | 99 |
| Open Space: | N | DFL | N |
| Historic Property: | N | Remodel Property: | N |
| Multi-Family Redevelopment: | N | | |
| Township: | | Section: | |
| Range: | |
Location |
| Address: | | Mapsco: | |
| Neighborhood: | Cycle 3 | Map ID: | 300 |
| Neighborhood CD: | 3 |
Owner |
| Name: | ADAMS, MARILYN ANN | Owner ID: | 308450 |
| Mailing Address: | GREGORY JOSEPH ROE 2817 98TH AVE NE CLYDE HILL, WA 98004 | % Ownership: | 100.0000000000% |
| | | Exemptions: | U500 |
Taxes and Assessment Details
Values
| (+) Improvement Homesite Value: | + | N/A | |
| (+) Improvement Non-Homesite Value: | + | N/A | |
| (+) Land Homesite Value: | + | N/A | |
| (+) Land Non-Homesite Value: | + | N/A | Ag / Timber Use Value |
| (+) Curr Use (HS): | + | N/A | N/A |
| (+) Curr Use (NHS): | + | N/A | N/A |
| | | -------------------------- | |
| (=) Market Value: | = | N/A | |
| (–) Productivity Loss: | – | N/A | |
| | | -------------------------- | |
| (=) Subtotal: | = | N/A | |
| (+) Senior Appraised Value: | + | N/A | |
| (+) Non-Senior Appraised Value: | + | N/A | |
| | | -------------------------- | |
| (=) Total Appraised Value: | = | N/A | |
| (–) Senior Exemption Loss: | – | N/A | |
| (–) Exemption Loss: | – | N/A | |
| | | -------------------------- | |
| (=) Taxable Value: | = | N/A | |
Taxing Jurisdiction
| Owner: | ADAMS, MARILYN ANN | | |
| % Ownership: | 100.0000000000% | | |
| Total Value: | N/A | | |
| Tax Area: | 710 - APPRAISER-S Whid Schl Dist, outside Langley, improved & 1 acre or less |
| CF | Conservation Futures | N/A | N/A | N/A | N/A | | |
| WCD | Whidbey Conservation District | N/A | N/A | N/A | N/A | | |
| FIRE3 | Fire & Rescue Dist #3 S Whidbey GEN | N/A | N/A | N/A | N/A | | |
| HOBOND | Hospital BOND | N/A | N/A | N/A | N/A | | |
| HOGEN | Hospital GEN | N/A | N/A | N/A | N/A | | |
| CE | County Current Expense | N/A | N/A | N/A | N/A | | |
| CR | County Roads | N/A | N/A | N/A | N/A | | |
| ISLANDEMS | Hospital GEN (EMS) | N/A | N/A | N/A | N/A | | |
| LIB | Library Sno-Isle GEN | N/A | N/A | N/A | N/A | | |
| PORTWHID | Port of S Whidbey GEN | N/A | N/A | N/A | N/A | | |
| SCH206CAP | School 206 CP | N/A | N/A | N/A | N/A | | |
| SCH206MO | School 206 Enrichment | N/A | N/A | N/A | N/A | | |
| ST | State School | N/A | N/A | N/A | N/A | | |
| ST2 | State School Part 2 | N/A | N/A | N/A | N/A | | |
| SWHIDPRBD | P & R S Whidbey BOND | N/A | N/A | N/A | N/A | | |
| SWHIDPRBD2 | P & R S Whidbey BOND2 | N/A | N/A | N/A | N/A | | |
| SWHIDPRMT | P & R S Whidbey GEN | N/A | N/A | N/A | N/A | | |
| | Total Tax Rate: | N/A | | | | | |
| | | | | Taxes w/Current Exemptions: | N/A | | |
| | | | | Taxes w/o Exemptions: | N/A | | |
Improvement / Building
Sketch
| No sketches available for this property. |
Property Image
Land
| 1 | 14 | SQ (08001-12000) | 0.0000 | 0.00 | 0.00 | 0.00 | 1.00 | N/A | N/A |
Roll Value History
| 2026 | N/A | N/A | N/A | N/A | N/A |
| 2025 | $0 | $450 | $0 | $450 | $0 |
| 2024 | $0 | $450 | $0 | $450 | $0 |
| 2023 | $0 | $450 | $0 | $450 | $0 |
| 2022 | $0 | $9,000 | $0 | $9,000 | $9,000 |
| 2021 | $0 | $7,000 | $0 | $7,000 | $7,000 |
| 2020 | $0 | $7,000 | $0 | $7,000 | $7,000 |
| 2019 | $0 | $72 | $0 | $72 | $0 |
| 2018 | $0 | $72 | $0 | $72 | $0 |
| 2017 | $0 | $72 | $0 | $72 | $0 |
| 2016 | $0 | $72 | $0 | $72 | $0 |
| 2015 | $0 | $72 | $0 | $72 | $0 |
| 2014 | $0 | $72 | $0 | $72 | $0 |
| 2013 | $0 | $72 | $0 | $72 | $0 |
| 2012 | $0 | $72 | $0 | $72 | $0 |
| 2011 | $0 | $72 | $0 | $72 | $0 |
| 2010 | $0 | $72 | $0 | $72 | $0 |
| 2009 | $0 | $72 | $0 | $72 | $0 |
| 2008 | $0 | $72 | $0 | $72 | $72 |
| 2007 | $0 | $72 | $0 | $72 | $0 |
Deed and Sales History
| 1 | 04/19/2023 | WD | Warranty Deed | CASTO, MARK | ADAMS, MARILYN ANN | | | $1,520,000.00 | 56479 | 4559119 |
|   | |
| 2 | 06/20/2019 | WD | Warranty Deed | ANDERSON, ROGER E | CASTO, MARK | | | $10,000.00 | 39135 | 4466083 |
| 3 | 04/28/2014 | QCD | Quit Claim Deed | ANDERSON, PAMELA K | ANDERSON, ROGER E | | | $250,000.00 | 15070 | 4358578 |
|   | |
| 4 | 04/28/2014 | QCD | Quit Claim Deed | CHESTER TRUSTEE, ELEANOR S | ANDERSON, PAMELA K | | | $0.00 | 15067 | 4358573 |
| 5 | 06/30/2000 | QCD | Quit Claim Deed | Unknown | CHESTER, TR, ELEANOR S | | | $0.00 | 2531 | 20012000 |
Payout Agreement
| No payout information available.. |