Property
Account |
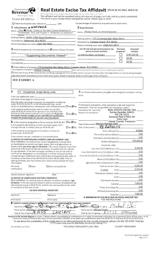
| Property ID: | 305805 | Abbreviated Legal Description: | LIVINGSTON BAY LOT 41 |
| Geographic ID: | S7380-00-00041-0 | Agent Code: | |
| Type: | Real | | |
| Tax Area: | 590 - APPRAISER-Stan/Cam Schl Dist, Special Dist, improved & less than 1 acre | Land Use Code | 11 |
| Open Space: | N | DFL | N |
| Historic Property: | N | Remodel Property: | N |
| Multi-Family Redevelopment: | N | | |
| Township: | | Section: | |
| Range: | |
Location |
| Address: | 775 LIVINGSTON BAY SHORE DR CAMANO ISLAND, WA 98282 | Mapsco: | |
| Neighborhood: | Cycle 5 | Map ID: | 987 |
| Neighborhood CD: | 5 |
Owner |
| Name: | GILROY TTEE, TRACY HUNSAKER | Owner ID: | 314792 |
| Mailing Address: | 10101 270TH ST NW, SUITE 211 STANWOOD, WA 98292 | % Ownership: | 100.0000000000% |
| | | Exemptions: | |
Taxes and Assessment Details
Values
| (+) Improvement Homesite Value: | + | $0 | |
| (+) Improvement Non-Homesite Value: | + | $211,022 | |
| (+) Land Homesite Value: | + | $0 | |
| (+) Land Non-Homesite Value: | + | $280,000 | |
| (+) Curr Use (HS): | + | $0 | $0 |
| (+) Curr Use (NHS): | + | $0 | $0 |
| | | -------------------------- | |
| (=) Market Value: | = | $491,022 | |
| (–) Productivity Loss: | – | $0 | |
| | | -------------------------- | |
| (=) Subtotal: | = | $491,022 | |
| (+) Senior Appraised Value: | + | $0 | |
| (+) Non-Senior Appraised Value: | + | $491,022 | |
| | | -------------------------- | |
| (=) Total Appraised Value: | = | $491,022 | |
| (–) Senior Exemption Loss: | – | $0 | |
| (–) Exemption Loss: | – | $0 | |
| | | -------------------------- | |
| (=) Taxable Value: | = | $491,022 | |
Taxing Jurisdiction
| Owner: | GILROY TTEE, TRACY HUNSAKER | | |
| % Ownership: | 100.0000000000% | | |
| Total Value: | $491,022 | | |
| Tax Area: | 590 - APPRAISER-Stan/Cam Schl Dist, Special Dist, improved & less than 1 acre |
| CF | Conservation Futures | 0.0313996660 | $491,022 | $491,022 | $15.42 | | |
| EMS1 | Fire & Rescue Dist #1 Camano GEN (EMS) | 0.4998471806 | $491,022 | $491,022 | $245.44 | | |
| FIRE1 | Fire & Rescue Dist #1 Camano GEN | 1.2496603404 | $491,022 | $491,022 | $613.61 | | |
| FIRE1BOND | Fire & Rescue Dist #1 Camano BOND | 0.1630371212 | $491,022 | $491,022 | $80.05 | | |
| CE | County Current Expense | 0.3674210519 | $491,022 | $491,022 | $180.41 | | |
| CR | County Roads | 0.4614296361 | $491,022 | $491,022 | $226.57 | | |
| LIB | Library Sno-Isle GEN | 0.3039084203 | $491,022 | $491,022 | $149.23 | | |
| SCH205_401 | School 205-401 Enrichment | 1.3697998934 | $491,022 | $491,022 | $672.60 | | |
| SCH205BOND | School 205-401 BOND | 0.9354199323 | $491,022 | $491,022 | $459.31 | | |
| ST | State School | 1.4761226122 | $491,022 | $491,022 | $724.81 | | |
| ST2 | State School Part 2 | 0.7953803475 | $491,022 | $491,022 | $390.55 | | |
| | Total Tax Rate: | 7.6534262019 | | | | | |
| | | | | Taxes w/Current Exemptions: | $3,758.00 | | |
| | | | | Taxes w/o Exemptions: | $3,758.00 | | |
Improvement / Building
| Improvement #1: | RESIDENTIAL | State Code: | Y | 1002.0 sqft | Value: | $211,022 |
| Bathrooms: | 1 | Bedrooms: | 3 | | Ceiling: | DRY WALL SPRAYED | Exterior Wall/Cover: | PLY/HARDBOARD T-111 | | Floor Covering: | CARPET/VINYL 20-80 | Floor Structure: | WOOD W/SUBFLOOR | | Foundation: | CONCRETE | Heating: | BASEBOARD ELECTRIC | | Interior Finish: | DRYWALL PAINT | Plumbing Fixture Cnt: | 6 | | Roof Slope: | 4" IN 12" | Roof Structure/Cover: | STEEL TERNE |
|
| | Type | Description | Class CD | Sub Class CD | Year Built | Area |
| | BAS | BASE/MAIN FLOOR | 3 | 0 | 1978 | 1002.0 |
| | AGR | ATTACHED GARAGE | 3 | 0 | 1978 | 616.0 |
| | OCP | OPEN CARPORT | 3 | 0 | 1978 | 196.0 |
| | OWR | OPEN WOOD PORCH W/STEPS/ROOF | 3 | 0 | 1978 | 294.0 |
| | OWP | OPEN WOOD PORCH W/STEPS | 3 | 0 | 1978 | 500.0 |
Sketch
Property Image
Land
| 1 | 14 | SQ (08001-12000) | 0.0000 | 0.00 | 0.00 | 0.00 | 1.00 | $280,000 | $0 |
Roll Value History
| 2026 | N/A | N/A | N/A | N/A | N/A |
| 2025 | $211,022 | $280,000 | $0 | $491,022 | $491,022 |
| 2024 | $218,179 | $270,000 | $0 | $488,179 | $488,179 |
| 2023 | $221,240 | $270,000 | $0 | $491,240 | $491,240 |
| 2022 | $203,101 | $270,000 | $0 | $473,101 | $473,101 |
| 2021 | $179,022 | $190,000 | $0 | $369,022 | $369,022 |
| 2020 | $174,787 | $170,000 | $0 | $344,787 | $344,787 |
| 2019 | $126,360 | $200,000 | $0 | $326,360 | $326,360 |
| 2018 | $126,774 | $170,000 | $0 | $296,774 | $296,774 |
| 2017 | $127,603 | $100,000 | $0 | $227,603 | $227,603 |
| 2016 | $129,261 | $75,000 | $0 | $204,261 | $204,261 |
| 2015 | $108,704 | $65,000 | $0 | $173,704 | $173,704 |
| 2014 | $110,261 | $65,000 | $0 | $175,261 | $175,261 |
| 2013 | $111,820 | $65,000 | $0 | $176,820 | $176,820 |
| 2012 | $113,379 | $68,000 | $0 | $181,379 | $181,379 |
| 2011 | $114,936 | $85,000 | $0 | $199,936 | $199,936 |
| 2010 | $119,490 | $85,000 | $0 | $204,490 | $204,490 |
| 2009 | $108,644 | $100,000 | $0 | $208,644 | $208,644 |
| 2008 | $110,133 | $100,000 | $0 | $210,133 | $210,133 |
| 2007 | $111,644 | $100,000 | $0 | $211,644 | $211,644 |
Deed and Sales History
| 1 | 08/26/2025 | WD | Warranty Deed | GILROY TTEE, TRACY HUNSAKER | PETEK, MICHAEL | | | $475,000.00 | 64632 | 4590195 |
| 2 | 07/15/2024 | PRD | Personal Representatives Deed | ISKA KNIGHT PETERSEN, PR | GILROY TTEE, TRACY HUNSAKER | | | $0.00 | 62025 | 4580226 |
| 3 | 01/01/1996 | QCD | Quit Claim Deed | HENDERSON, JOHN T | HENDERSON, JOHN T | | | $0.00 | 60306 | 96001632 |
| 4 | 10/01/1989 | WD | Warranty Deed | TRITTER, SANDRA E | HENDERSON, JOHN T | | | $67,500.00 | 94666 | 89015207 |
| 5 | 05/01/1989 | OTHER | Other - Misc. Documents | MOORE, SANDRA E | TRITTER, SANDRA E | | | $0.00 | 63115 | 0 |
| 6 | 01/01/1982 | TRUSTEED | Trustee's Deed | VOGLIARDO, NANCY E | MOORE, SANDRA E | | | $48,950.00 | 20216 | 392622 |
| 7 | 04/01/1979 | OTHER | Other - Misc. Documents | , | VOGLIARDO, NANCY E | | | $33,500.00 | 91415 | 349914 |
| 8 | 07/01/1978 | OTHER | Other - Misc. Documents | Unknown | , | | | $6,000.00 | 839120 | 3380410 |
Payout Agreement
| No payout information available.. |