Property
Account |
| Property ID: | 305814 | Abbreviated Legal Description: | LIVINGSTON BAY LOT 42 |
| Geographic ID: | S7380-00-00042-0 | Agent Code: | |
| Type: | Real | | |
| Tax Area: | 590 - APPRAISER-Stan/Cam Schl Dist, Special Dist, improved & less than 1 acre | Land Use Code | 11 |
| Open Space: | N | DFL | N |
| Historic Property: | N | Remodel Property: | N |
| Multi-Family Redevelopment: | N | | |
| Township: | | Section: | |
| Range: | |
Location |
| Address: | 781 LIVINGSTON BAY SHORE DR CAMANO ISLAND, WA 98282 | Mapsco: | |
| Neighborhood: | Cycle 5 | Map ID: | 987 |
| Neighborhood CD: | 5 |
Owner |
| Name: | TUBBS, LONNIE KAY | Owner ID: | 314242 |
| Mailing Address: | 781 LIVINGSTON BAY DR CAMANO ISLAND, WA 98282 | % Ownership: | 100.0000000000% |
| | | Exemptions: | |
Taxes and Assessment Details
Values
| (+) Improvement Homesite Value: | + | $0 | |
| (+) Improvement Non-Homesite Value: | + | $290,604 | |
| (+) Land Homesite Value: | + | $0 | |
| (+) Land Non-Homesite Value: | + | $330,000 | |
| (+) Curr Use (HS): | + | $0 | $0 |
| (+) Curr Use (NHS): | + | $0 | $0 |
| | | -------------------------- | |
| (=) Market Value: | = | $620,604 | |
| (–) Productivity Loss: | – | $0 | |
| | | -------------------------- | |
| (=) Subtotal: | = | $620,604 | |
| (+) Senior Appraised Value: | + | $0 | |
| (+) Non-Senior Appraised Value: | + | $620,604 | |
| | | -------------------------- | |
| (=) Total Appraised Value: | = | $620,604 | |
| (–) Senior Exemption Loss: | – | $0 | |
| (–) Exemption Loss: | – | $0 | |
| | | -------------------------- | |
| (=) Taxable Value: | = | $620,604 | |
Taxing Jurisdiction
| Owner: | TUBBS, LONNIE KAY | | |
| % Ownership: | 100.0000000000% | | |
| Total Value: | $620,604 | | |
| Tax Area: | 590 - APPRAISER-Stan/Cam Schl Dist, Special Dist, improved & less than 1 acre |
| CF | Conservation Futures | 0.0313996660 | $620,604 | $620,604 | $19.49 | | |
| EMS1 | Fire & Rescue Dist #1 Camano GEN (EMS) | 0.4998471806 | $620,604 | $620,604 | $310.21 | | |
| FIRE1 | Fire & Rescue Dist #1 Camano GEN | 1.2496603404 | $620,604 | $620,604 | $775.54 | | |
| FIRE1BOND | Fire & Rescue Dist #1 Camano BOND | 0.1630371212 | $620,604 | $620,604 | $101.18 | | |
| CE | County Current Expense | 0.3674210519 | $620,604 | $620,604 | $228.02 | | |
| CR | County Roads | 0.4614296361 | $620,604 | $620,604 | $286.37 | | |
| LIB | Library Sno-Isle GEN | 0.3039084203 | $620,604 | $620,604 | $188.61 | | |
| SCH205_401 | School 205-401 Enrichment | 1.3697998934 | $620,604 | $620,604 | $850.10 | | |
| SCH205BOND | School 205-401 BOND | 0.9354199323 | $620,604 | $620,604 | $580.53 | | |
| ST | State School | 1.4761226122 | $620,604 | $620,604 | $916.09 | | |
| ST2 | State School Part 2 | 0.7953803475 | $620,604 | $620,604 | $493.62 | | |
| | Total Tax Rate: | 7.6534262019 | | | | | |
| | | | | Taxes w/Current Exemptions: | $4,749.76 | | |
| | | | | Taxes w/o Exemptions: | $4,749.76 | | |
Improvement / Building
| Improvement #1: | RESIDENTIAL | State Code: | Y | 2161.0 sqft | Value: | $290,604 |
| Bathrooms: | 2 | Bedrooms: | 4 | | Ceiling: | DRYWALL PAINTED | Cooling: | HEAT PUMP/CONV/V | | Exterior Wall/Cover: | WOOD SIDING | Floor Covering: | HARDWOOD/CARP 80-20 | | Floor Structure: | WOOD W/SUBFLOOR | Foundation: | CONCRETE | | Interior Finish: | DRYWALL PAINT | Plumbing Fixture Cnt: | 10 | | Roof Slope: | 4" IN 12" | Roof Structure/Cover: | CJ ASPHALT |
|
| | Type | Description | Class CD | Sub Class CD | Year Built | Area |
| | BAS | BASE/MAIN FLOOR | 3 | 0 | 1983 | 1589.0 |
| | DWN | DOWNSTAIRS LIVING AREA | 3 | 0 | 1983 | 572.0 |
| | BGR | BASEMENT GARAGE | 3 | 0 | 1983 | 572.0 |
| | OWP | OPEN WOOD PORCH W/STEPS | 3 | 0 | 1983 | 45.5 |
| | OWP | OPEN WOOD PORCH W/STEPS | 3 | 0 | 1983 | 118.0 |
Sketch
Property Image
Land
| 1 | 14 | SQ (08001-12000) | 0.0000 | 0.00 | 0.00 | 0.00 | 1.00 | $330,000 | $0 |
Roll Value History
| 2026 | N/A | N/A | N/A | N/A | N/A |
| 2025 | $290,604 | $330,000 | $0 | $620,604 | $620,604 |
| 2024 | $294,683 | $320,000 | $0 | $614,683 | $614,683 |
| 2023 | $298,762 | $300,000 | $0 | $598,762 | $598,762 |
| 2022 | $274,233 | $270,000 | $0 | $544,233 | $544,233 |
| 2021 | $233,149 | $190,000 | $0 | $423,149 | $423,149 |
| 2020 | $227,409 | $170,000 | $0 | $397,409 | $397,409 |
| 2019 | $165,705 | $200,000 | $0 | $365,705 | $365,705 |
| 2018 | $166,250 | $170,000 | $0 | $336,250 | $336,250 |
| 2017 | $167,059 | $130,000 | $0 | $297,059 | $297,059 |
| 2016 | $169,229 | $75,000 | $0 | $244,229 | $244,229 |
| 2015 | $168,645 | $65,000 | $0 | $233,645 | $233,645 |
| 2014 | $170,841 | $65,000 | $0 | $235,841 | $235,841 |
| 2013 | $173,037 | $65,000 | $0 | $238,037 | $238,037 |
| 2012 | $175,231 | $68,000 | $0 | $243,231 | $243,231 |
| 2011 | $177,426 | $85,000 | $0 | $262,426 | $262,426 |
| 2010 | $185,058 | $85,000 | $0 | $270,058 | $270,058 |
| 2009 | $182,989 | $100,000 | $0 | $282,989 | $282,989 |
| 2008 | $185,283 | $100,000 | $0 | $285,283 | $285,283 |
| 2007 | $187,699 | $100,000 | $0 | $287,699 | $287,699 |
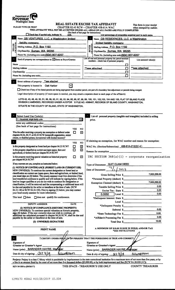
Deed and Sales History
| 1 | 10/16/2024 | QCD | Quit Claim Deed | TUBBS, RODNEY LYNN | TUBBS, LONNIE KAY | | | $0.00 | 61585 | 4578303 |
| 2 | 03/25/2014 | ESTSEPPROP | Establish Separate Property | TUBBS, RODNEY LYNN | TUBBS, RODNEY LYNN | | | $0.00 | 14708 | 4356998 |
| 3 | 03/25/2014 | WD | Warranty Deed | KNIGHT, MARIAN F | TUBBS, RODNEY LYNN | | | $229,000.00 | 14707 | 4356997 |
| 4 | 09/11/2013 | PRD | Personal Representatives Deed | KNIGHT, LAVERN | KNIGHT, MARIAN F | | | $0.00 | 12828 | 4348296 |
| 5 | 11/10/2004 | TRUSTEED | Trustee's Deed | ASH BAY LLC, | KNIGHT, LAVERN | | | $0.00 | 51251 | 4129669 |
| 6 | 10/28/2004 | WD | Warranty Deed | FARNHAM, BRUCE L | ASH BAY LLC, | | | $249,000.00 | 45406 | 4118381 |
| 7 | 05/01/1982 | TRUSTEED | Trustee's Deed | DOUGLAS, JOHN | FARNHAM, BRUCE L | | | $11,000.00 | 21194 | 396522 |
| 8 | 01/01/1900 | OTHER | Other - Misc. Documents | Unknown | DOUGLAS, JOHN | | | $0.00 | 0 | 0 |
Payout Agreement
| No payout information available.. |