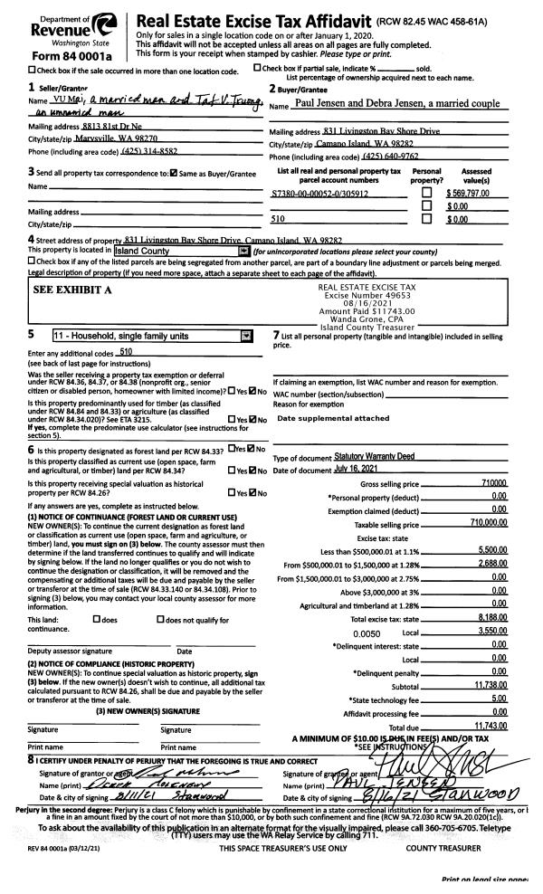
Property
Account |
| Property ID: | 305912 | Abbreviated Legal Description: | Livingston Bay,s Lot 52,s Blk 0;s LOT A BLA 132-17 AF# 4426771s |
| Geographic ID: | S7380-00-00052-0 | Agent Code: | |
| Type: | Real | | |
| Tax Area: | 510 - APPRAISER-Stan/Cam Schl Dist, improved & 1 acre or less | Land Use Code | 11 |
| Open Space: | N | DFL | N |
| Historic Property: | N | Remodel Property: | N |
| Multi-Family Redevelopment: | N | | |
| Township: | | Section: | |
| Range: | |
Location |
| Address: | 831 LIVINGSTON BAY SHORE DR CAMANO ISLAND, WA 98282 | Mapsco: | |
| Neighborhood: | Cycle 5 | Map ID: | 983 |
| Neighborhood CD: | 5 |
Owner |
| Name: | JENSEN, PAUL S | Owner ID: | 300747 |
| Mailing Address: | DEBRA J JENSEN 831 LIVINGSTON BAY CAMANO ISLAND, WA 98282 | % Ownership: | 100.0000000000% |
| | | Exemptions: | |
Taxes and Assessment Details
Values
| (+) Improvement Homesite Value: | + | $0 | |
| (+) Improvement Non-Homesite Value: | + | $449,946 | |
| (+) Land Homesite Value: | + | $0 | |
| (+) Land Non-Homesite Value: | + | $330,000 | |
| (+) Curr Use (HS): | + | $0 | $0 |
| (+) Curr Use (NHS): | + | $0 | $0 |
| | | -------------------------- | |
| (=) Market Value: | = | $779,946 | |
| (–) Productivity Loss: | – | $0 | |
| | | -------------------------- | |
| (=) Subtotal: | = | $779,946 | |
| (+) Senior Appraised Value: | + | $0 | |
| (+) Non-Senior Appraised Value: | + | $779,946 | |
| | | -------------------------- | |
| (=) Total Appraised Value: | = | $779,946 | |
| (–) Senior Exemption Loss: | – | $0 | |
| (–) Exemption Loss: | – | $0 | |
| | | -------------------------- | |
| (=) Taxable Value: | = | $779,946 | |
Taxing Jurisdiction
| Owner: | JENSEN, PAUL S | | |
| % Ownership: | 100.0000000000% | | |
| Total Value: | $779,946 | | |
| Tax Area: | 510 - APPRAISER-Stan/Cam Schl Dist, improved & 1 acre or less |
| CF | Conservation Futures | 0.0313996660 | $779,946 | $779,946 | $24.49 | | |
| EMS1 | Fire & Rescue Dist #1 Camano GEN (EMS) | 0.4998471806 | $779,946 | $779,946 | $389.85 | | |
| FIRE1 | Fire & Rescue Dist #1 Camano GEN | 1.2496603404 | $779,946 | $779,946 | $974.67 | | |
| FIRE1BOND | Fire & Rescue Dist #1 Camano BOND | 0.1630371212 | $779,946 | $779,946 | $127.16 | | |
| CE | County Current Expense | 0.3674210519 | $779,946 | $779,946 | $286.57 | | |
| CR | County Roads | 0.4614296361 | $779,946 | $779,946 | $359.89 | | |
| LIB | Library Sno-Isle GEN | 0.3039084203 | $779,946 | $779,946 | $237.03 | | |
| SCH205_401 | School 205-401 Enrichment | 1.3697998934 | $779,946 | $779,946 | $1,068.37 | | |
| SCH205BOND | School 205-401 BOND | 0.9354199323 | $779,946 | $779,946 | $729.58 | | |
| ST | State School | 1.4761226122 | $779,946 | $779,946 | $1,151.30 | | |
| ST2 | State School Part 2 | 0.7953803475 | $779,946 | $779,946 | $620.35 | | |
| | Total Tax Rate: | 7.6534262019 | | | | | |
| | | | | Taxes w/Current Exemptions: | $5,969.26 | | |
| | | | | Taxes w/o Exemptions: | $5,969.26 | | |
Improvement / Building
| Improvement #1: | RESIDENTIAL | State Code: | Y | 3488.0 sqft | Value: | $449,946 |
| Bathrooms: | 4 | Bedrooms: | 4 | | Ceiling: | DRYWALL PAINTED | Cooling: | HEAT PUMP/CONV/V | | Exterior Wall/Cover: | CEMENT FIBER | Floor Covering: | CARPET/VINYL 60-40 | | Floor Structure: | WOOD W/SUBFLOOR | Foundation: | CONCRETE | | Interior Finish: | DRYWALL PAINT | Plumbing Fixture Cnt: | 14 | | Roof Slope: | 4" IN 12" | Roof Structure/Cover: | CJ ALUMINIUM HEAVY |
|
| | Type | Description | Class CD | Sub Class CD | Year Built | Area |
| | BAS | BASE/MAIN FLOOR | 3 | 0 | 1978 | 1744.0 |
| | DWN | DOWNSTAIRS LIVING AREA | 3 | 0 | 1978 | 1744.0 |
| | AGR | ATTACHED GARAGE | 3 | 0 | 1978 | 576.0 |
| | OP3 | OPEN PORCH W/ROOF | 3 | 0 | 1978 | 70.0 |
| | OWP | OPEN WOOD PORCH W/STEPS | 3 | 0 | 1978 | 360.0 |
| | OWP | OPEN WOOD PORCH W/STEPS | 3 | 0 | 1978 | 48.0 |
| | OWP | OPEN WOOD PORCH W/STEPS | 3 | 0 | 1978 | 40.0 |
Sketch
Property Image
Land
| 1 | 14 | SQ (08001-12000) | 0.2600 | 11325.60 | 0.00 | 0.00 | 1.00 | $330,000 | $0 |
Roll Value History
| 2026 | N/A | N/A | N/A | N/A | N/A |
| 2025 | $449,946 | $330,000 | $0 | $779,946 | $779,946 |
| 2024 | $455,102 | $320,000 | $0 | $775,102 | $775,102 |
| 2023 | $460,258 | $300,000 | $0 | $760,258 | $760,258 |
| 2022 | $420,284 | $270,000 | $0 | $690,284 | $690,284 |
| 2021 | $379,797 | $190,000 | $0 | $569,797 | $569,797 |
| 2020 | $369,817 | $170,000 | $0 | $539,817 | $539,817 |
| 2019 | $304,892 | $200,000 | $0 | $504,892 | $504,892 |
| 2018 | $305,726 | $170,000 | $0 | $475,726 | $475,726 |
| 2017 | $291,917 | $130,000 | $0 | $421,917 | $421,917 |
| 2016 | $295,091 | $75,000 | $0 | $370,091 | $370,091 |
| 2015 | $308,615 | $65,000 | $0 | $373,615 | $373,615 |
| 2014 | $197,437 | $65,000 | $0 | $262,437 | $262,437 |
| 2013 | $172,794 | $65,000 | $0 | $237,794 | $237,794 |
| 2012 | $210,319 | $68,000 | $0 | $278,319 | $278,319 |
| 2011 | $213,179 | $85,000 | $0 | $298,179 | $298,179 |
| 2010 | $223,097 | $85,000 | $0 | $308,097 | $308,097 |
| 2009 | $235,494 | $100,000 | $0 | $335,494 | $335,494 |
| 2008 | $238,482 | $100,000 | $0 | $338,482 | $338,482 |
| 2007 | $241,468 | $100,000 | $0 | $341,468 | $341,468 |
Deed and Sales History
| 1 | 07/16/2021 | WD | Warranty Deed | MAI, VU | JENSEN, PAUL S | | | $710,000.00 | 49653 | 4526977 |
| 2 | 07/17/2017 | QCD | Quit Claim Deed | MAI, VU | | | | | 30300 | 4426772 |
| 3 | 03/25/2013 | QCD | Quit Claim Deed | MAI, VU | MAI, VU | | | $0.00 | 11342 | 4340025 |
| 4 | 01/24/2013 | SPLTDWARDE | Special Limited Warranty Deed | WELLS FARGO BANK NA TRUSTEE | MAI, VU | | | $110,299.00 | 10304 | 4332649 |
| 5 | 12/17/2012 | TRUSTEED | Trustee's Deed | PAYNE, PAUL | WELLS FARGO BANK NA TRUSTEE | | | $224,000.00 | 9855 | 4329719 |
| 6 | 11/22/2006 | WD | Warranty Deed | LUKEHART, KENNETH J | PAYNE, PAUL | | | $345,000.00 | 65025 | 4188115 |
| 7 | 09/03/2004 | WD | Warranty Deed | CAUCHON, EUGENE J | LUKEHART, KENNETH J | | | $235,000.00 | 44205 | 4112322 |
| 8 | 11/01/1978 | OTHER | Other - Misc. Documents | Unknown | CAUCHON, EUGENE J | | | $41,250.00 | 85916 | 344039 |
Payout Agreement
| No payout information available.. |