| 1 | 10/23/2020 | MANHOME | Manufactured Home | HENLEY WA 15, LLC | THACKER, PAUL | | | $219,000.00 | 45396 | |
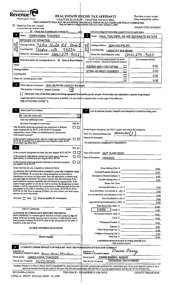
| 2 | 10/22/2020 | QCD | Quit Claim Deed | THACKER, KARA | THACKER, PAUL | | | $0.00 | 45397 | 4500434 |
| 3 | 10/21/2020 | WD | Warranty Deed | HENLEY WA 15, LLC | THACKER, PAUL | | | $130,000.00 | 45395 | 4500433 |
|   | |
| 4 | 10/10/2019 | WD | Warranty Deed | HALLIDAY, GAIL WILSON | HENLEY WA 15, LLC | | | $124,000.00 | 40711 | 4473501 |
|   | |
| 5 | 07/07/2015 | CHGOFIDENT | DNU - Change In Identity | HALLIDAY, GAIL WILSON | HALLIDAY, GAIL WILSON | | | $0.00 | 20495 | 4382289 |
| 6 | 06/10/2013 | ESTSEPPROP | Establish Separate Property | HALLIDAY, GAIL WILSON | HALLIDAY, GAIL WILSON | | | $0.00 | 11685 | 4342193 |
| 7 | 06/17/2013 | BARGSLD | Bargain And Sale Deed | WASHINGTON FEDERAL SAVINGS | HALLIDAY, GAIL WILSON | | | $73,000.00 | 11683 | 4342192 |
|   | |
| 8 | 01/30/2013 | TRUSTEED | Trustee's Deed | TABACH, ALISON A | WASHINGTON FEDERAL SAVINGS | | | $68,103.00 | 10293 | 4332612 |
|   | |
| 9 | 10/26/2005 | QCD | Quit Claim Deed | TABACH, ALISON A | TABACH, ALISON A | | | $2,648.00 | 710694 | 4130508 |
| 10 | 10/09/2001 | QCD | Quit Claim Deed | TABACH, ALISON A | TABACH, ALISON A | | | $0.00 | 20853 | 4013254 |
| 11 | 10/01/1997 | OTHER | Other - Misc. Documents | TABACH, ROBERT W | TABACH, ALISON A | | | $0.00 | 67622 | 0 |
| 12 | 09/01/1990 | WD | Warranty Deed | KING, HAROLD R | TABACH, ROBERT W | | | $18,400.00 | 5392 | 90017982 |
| 13 | 05/01/1985 | WD | Warranty Deed | CANADA, CHARLES W | KING, HAROLD R | | | $14,950.00 | 51397 | 85005700 |
| 14 | 01/01/1900 | OTHER | Other - Misc. Documents | Unknown | CANADA, CHARLES W | | | $0.00 | 61193 | 0 |