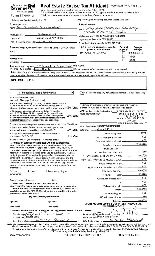
Property
Account |
| Property ID: | 306626 | Abbreviated Legal Description: | Long Beach,s Lot 5,s Blk 1;s LOT STEIN BLC AF#4414990s |
| Geographic ID: | S7395-00-01005-0 | Agent Code: | |
| Type: | Real | | |
| Tax Area: | 590 - APPRAISER-Stan/Cam Schl Dist, Special Dist, improved & less than 1 acre | Land Use Code | 11 |
| Open Space: | N | DFL | N |
| Historic Property: | N | Remodel Property: | N |
| Multi-Family Redevelopment: | N | | |
| Township: | | Section: | |
| Range: | |
Location |
| Address: | 209 IVERSON RD CAMANO ISLAND, WA 98282 | Mapsco: | |
| Neighborhood: | Cycle 5 | Map ID: | 915 |
| Neighborhood CD: | 5 |
Owner |
| Name: | PEARSON, DAVID WAYNE | Owner ID: | 314166 |
| Mailing Address: | GAIL EVELYN PEARSON 4431 189TH AVE SOUTHEAST ISSAQUAH, WA 98027 | % Ownership: | 100.0000000000% |
| | | Exemptions: | |
Taxes and Assessment Details
Values
| (+) Improvement Homesite Value: | + | $0 | |
| (+) Improvement Non-Homesite Value: | + | $386,406 | |
| (+) Land Homesite Value: | + | $0 | |
| (+) Land Non-Homesite Value: | + | $775,480 | |
| (+) Curr Use (HS): | + | $0 | $0 |
| (+) Curr Use (NHS): | + | $0 | $0 |
| | | -------------------------- | |
| (=) Market Value: | = | $1,161,886 | |
| (–) Productivity Loss: | – | $0 | |
| | | -------------------------- | |
| (=) Subtotal: | = | $1,161,886 | |
| (+) Senior Appraised Value: | + | $0 | |
| (+) Non-Senior Appraised Value: | + | $1,161,886 | |
| | | -------------------------- | |
| (=) Total Appraised Value: | = | $1,161,886 | |
| (–) Senior Exemption Loss: | – | $0 | |
| (–) Exemption Loss: | – | $0 | |
| | | -------------------------- | |
| (=) Taxable Value: | = | $1,161,886 | |
Taxing Jurisdiction
| Owner: | PEARSON, DAVID WAYNE | | |
| % Ownership: | 100.0000000000% | | |
| Total Value: | $1,161,886 | | |
| Tax Area: | 590 - APPRAISER-Stan/Cam Schl Dist, Special Dist, improved & less than 1 acre |
| CF | Conservation Futures | 0.0313996660 | $1,161,886 | $1,161,886 | $36.48 | | |
| EMS1 | Fire & Rescue Dist #1 Camano GEN (EMS) | 0.4998471806 | $1,161,886 | $1,161,886 | $580.77 | | |
| FIRE1 | Fire & Rescue Dist #1 Camano GEN | 1.2496603404 | $1,161,886 | $1,161,886 | $1,451.96 | | |
| FIRE1BOND | Fire & Rescue Dist #1 Camano BOND | 0.1630371212 | $1,161,886 | $1,161,886 | $189.43 | | |
| CE | County Current Expense | 0.3674210519 | $1,161,886 | $1,161,886 | $426.90 | | |
| CR | County Roads | 0.4614296361 | $1,161,886 | $1,161,886 | $536.13 | | |
| LIB | Library Sno-Isle GEN | 0.3039084203 | $1,161,886 | $1,161,886 | $353.11 | | |
| SCH205_401 | School 205-401 Enrichment | 1.3697998934 | $1,161,886 | $1,161,886 | $1,591.55 | | |
| SCH205BOND | School 205-401 BOND | 0.9354199323 | $1,161,886 | $1,161,886 | $1,086.85 | | |
| ST | State School | 1.4761226122 | $1,161,886 | $1,161,886 | $1,715.09 | | |
| ST2 | State School Part 2 | 0.7953803475 | $1,161,886 | $1,161,886 | $924.14 | | |
| | Total Tax Rate: | 7.6534262019 | | | | | |
| | | | | Taxes w/Current Exemptions: | $8,892.41 | | |
| | | | | Taxes w/o Exemptions: | $8,892.41 | | |
Improvement / Building
| Improvement #1: | RESIDENTIAL | State Code: | Y | 2020.0 sqft | Value: | $386,406 |
| Bathrooms: | 2.5 | Bedrooms: | 2 | | Ceiling: | DRYWALL PAINTED | Cooling: | HEAT PUMP/CONV/V | | Exterior Wall/Cover: | VINYL | Floor Covering: | HARDWOOD/CARP 60-40 | | Floor Structure: | WOOD W/SUBFLOOR | Foundation: | CONCRETE | | Interior Finish: | DRYWALL PAINT | Plumbing Fixture Cnt: | 12 | | Roof Slope: | 4" IN 12" | Roof Structure/Cover: | CJ ASPHALT |
|
| | Type | Description | Class CD | Sub Class CD | Year Built | Area |
| | BAS | BASE/MAIN FLOOR | 4 | 0 | 1997 | 944.0 |
| | UB8 | BASEMENT UNFINISHED 8" | 4 | 0 | 1997 | 209.0 |
| | BIG | BUILT IN GARAGE | 4 | 0 | 1997 | 575.0 |
| | UTY | STORAGE/UTILITY | 4 | 0 | 1997 | 60.0 |
| | UPS | UPPER STORY | 4 | 0 | 1997 | 868.0 |
| | OWP | OPEN WOOD PORCH W/STEPS | 4 | 0 | 1997 | 528.0 |
| | OWC | OPEN WOOD PORCH W/STEPS/ROOF/C | 4 | 0 | 1997 | 100.0 |
| | DWN | DOWNSTAIRS LIVING AREA | 4 | 0 | 1997 | 208.0 |
Sketch
Property Image
Land
| 1 | LB | LOW BANK | 0.1900 | 8276.40 | 48.00 | 0.00 | 1.00 | $775,000 | $0 |
| 2 | 55 | TIDES | 0.1900 | 8276.40 | 48.00 | 0.00 | 1.00 | $480 | $0 |
Roll Value History
| 2026 | N/A | N/A | N/A | N/A | N/A |
| 2025 | $386,406 | $775,480 | $0 | $1,161,886 | $1,161,886 |
| 2024 | $391,405 | $775,480 | $0 | $1,166,885 | $1,166,885 |
| 2023 | $396,408 | $715,480 | $0 | $1,111,888 | $1,111,888 |
| 2022 | $363,479 | $650,480 | $0 | $1,013,959 | $1,013,959 |
| 2021 | $309,527 | $525,480 | $0 | $835,007 | $835,007 |
| 2020 | $301,707 | $450,480 | $0 | $752,187 | $752,187 |
| 2019 | $223,440 | $450,480 | $0 | $673,920 | $673,920 |
| 2018 | $224,128 | $375,480 | $0 | $599,608 | $599,608 |
| 2017 | $194,834 | $375,480 | $0 | $570,314 | $570,314 |
| 2016 | $197,300 | $350,480 | $0 | $547,780 | $547,780 |
| 2015 | $195,509 | $350,480 | $0 | $545,989 | $545,989 |
| 2014 | $197,911 | $350,480 | $0 | $548,391 | $548,391 |
| 2013 | $200,810 | $333,120 | $0 | $533,930 | $533,930 |
| 2012 | $203,209 | $333,120 | $0 | $536,329 | $536,329 |
| 2011 | $205,611 | $416,280 | $0 | $621,891 | $621,891 |
| 2010 | $216,425 | $416,280 | $0 | $632,705 | $632,705 |
| 2009 | $225,848 | $460,717 | $0 | $686,565 | $686,565 |
| 2008 | $235,143 | $504,620 | $0 | $739,763 | $739,763 |
| 2007 | $238,120 | $428,663 | $0 | $666,783 | $666,783 |
Deed and Sales History
| 1 | 10/09/2024 | WD | Warranty Deed | STEIN, TANNER | PEARSON, DAVID WAYNE | | | $1,199,000.00 | 61523 | 4578082 |
| 2 | 08/18/2017 | WD | Warranty Deed | STEIN, RALEIGH & SANDRA L | STEIN, TANNER | | | $675,000.00 | 30739 | 4428630 |
| 3 | 04/01/1991 | WD | Warranty Deed | KAZDA, WALTER J | STEIN, RALEIGH & | | | $128,000.00 | 11313 | 91005632 |
| 4 | 03/01/1991 | DECREE | Divorce Decree/Legal Separation | KAZDA, WALTER J | KAZDA, WALTER J | | | $0.00 | 10726 | 91003261 |
| 5 | 01/01/1900 | OTHER | Other - Misc. Documents | Unknown | KAZDA, WALTER J | | | $0.00 | 0 | 0 |
Payout Agreement
| No payout information available.. |