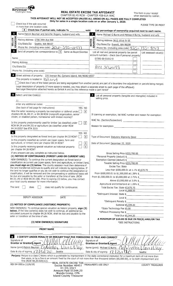
Property
Account |
| Property ID: | 306699 | Abbreviated Legal Description: | LONG BCH LOT 12 BLK 1 TGW S8' OF LOT 11 BLK 1 INCL ADJ TIDES TO A DEPTH OF 600' |
| Geographic ID: | S7395-00-01012-0 | Agent Code: | |
| Type: | Real | | |
| Tax Area: | 590 - APPRAISER-Stan/Cam Schl Dist, Special Dist, improved & less than 1 acre | Land Use Code | 11 |
| Open Space: | N | DFL | N |
| Historic Property: | N | Remodel Property: | N |
| Multi-Family Redevelopment: | N | | |
| Township: | | Section: | |
| Range: | |
Location |
| Address: | 235 IVERSON RD CAMANO ISLAND, WA 98282 | Mapsco: | |
| Neighborhood: | Cycle 5 | Map ID: | 915 |
| Neighborhood CD: | 5 |
Owner |
| Name: | BURNS, MICHAEL G | Owner ID: | 297628 |
| Mailing Address: | MELISSA A BURNS 3612 101ST ST SE EVERETT, WA 98208 | % Ownership: | 100.0000000000% |
| | | Exemptions: | |
Taxes and Assessment Details
Values
| (+) Improvement Homesite Value: | + | $0 | |
| (+) Improvement Non-Homesite Value: | + | $150,817 | |
| (+) Land Homesite Value: | + | $0 | |
| (+) Land Non-Homesite Value: | + | $775,600 | |
| (+) Curr Use (HS): | + | $0 | $0 |
| (+) Curr Use (NHS): | + | $0 | $0 |
| | | -------------------------- | |
| (=) Market Value: | = | $926,417 | |
| (–) Productivity Loss: | – | $0 | |
| | | -------------------------- | |
| (=) Subtotal: | = | $926,417 | |
| (+) Senior Appraised Value: | + | $0 | |
| (+) Non-Senior Appraised Value: | + | $926,417 | |
| | | -------------------------- | |
| (=) Total Appraised Value: | = | $926,417 | |
| (–) Senior Exemption Loss: | – | $0 | |
| (–) Exemption Loss: | – | $0 | |
| | | -------------------------- | |
| (=) Taxable Value: | = | $926,417 | |
Taxing Jurisdiction
| Owner: | BURNS, MICHAEL G | | |
| % Ownership: | 100.0000000000% | | |
| Total Value: | $926,417 | | |
| Tax Area: | 590 - APPRAISER-Stan/Cam Schl Dist, Special Dist, improved & less than 1 acre |
| CF | Conservation Futures | 0.0313996660 | $926,417 | $926,417 | $29.09 | | |
| EMS1 | Fire & Rescue Dist #1 Camano GEN (EMS) | 0.4998471806 | $926,417 | $926,417 | $463.07 | | |
| FIRE1 | Fire & Rescue Dist #1 Camano GEN | 1.2496603404 | $926,417 | $926,417 | $1,157.71 | | |
| FIRE1BOND | Fire & Rescue Dist #1 Camano BOND | 0.1630371212 | $926,417 | $926,417 | $151.04 | | |
| CE | County Current Expense | 0.3674210519 | $926,417 | $926,417 | $340.39 | | |
| CR | County Roads | 0.4614296361 | $926,417 | $926,417 | $427.48 | | |
| LIB | Library Sno-Isle GEN | 0.3039084203 | $926,417 | $926,417 | $281.55 | | |
| SCH205_401 | School 205-401 Enrichment | 1.3697998934 | $926,417 | $926,417 | $1,269.01 | | |
| SCH205BOND | School 205-401 BOND | 0.9354199323 | $926,417 | $926,417 | $866.59 | | |
| ST | State School | 1.4761226122 | $926,417 | $926,417 | $1,367.51 | | |
| ST2 | State School Part 2 | 0.7953803475 | $926,417 | $926,417 | $736.85 | | |
| | Total Tax Rate: | 7.6534262019 | | | | | |
| | | | | Taxes w/Current Exemptions: | $7,090.29 | | |
| | | | | Taxes w/o Exemptions: | $7,090.29 | | |
Improvement / Building
| Improvement #1: | RESIDENTIAL | State Code: | Y | 1353.0 sqft | Value: | $150,817 |
| Bathrooms: | 1.5 | Bedrooms: | 2 | | Ceiling: | DRYWALL PAINTED | Exterior Wall/Cover: | WOOD SIDING | | Floor Covering: | CARPET/VINYL 60-40 | Floor Structure: | WOOD W/SUBFLOOR | | Foundation: | CONCRETE | Heating: | BASEBOARD ELECTRIC | | Interior Finish: | DRYWALL PAINT | Plumbing Fixture Cnt: | 8 | | Roof Slope: | 3" IN 12" | Roof Structure/Cover: | BEAM ROLL COMPOSITION |
|
| | Type | Description | Class CD | Sub Class CD | Year Built | Area |
| | BAS | BASE/MAIN FLOOR | 3 | 0 | 1954 | 1065.0 |
| | UPS | UPPER STORY | 3 | 0 | 1954 | 288.0 |
| | OWP | OPEN WOOD PORCH W/STEPS | 3 | 0 | 1954 | 136.0 |
| | OWP | OPEN WOOD PORCH W/STEPS | 3 | 0 | 1954 | 1351.5 |
Sketch
Property Image
Land
| 1 | LB | LOW BANK | 0.0000 | 0.00 | 60.00 | 0.00 | 1.00 | $775,000 | $0 |
| 2 | 55 | TIDES | 0.0000 | 0.00 | 60.00 | 0.00 | 1.00 | $600 | $0 |
Roll Value History
| 2026 | N/A | N/A | N/A | N/A | N/A |
| 2025 | $150,817 | $775,600 | $0 | $926,417 | $926,417 |
| 2024 | $156,831 | $775,600 | $0 | $932,431 | $932,431 |
| 2023 | $159,349 | $715,600 | $0 | $874,949 | $874,949 |
| 2022 | $146,573 | $650,600 | $0 | $797,173 | $797,173 |
| 2021 | $129,402 | $525,600 | $0 | $655,002 | $655,002 |
| 2020 | $126,412 | $450,600 | $0 | $577,012 | $577,012 |
| 2019 | $132,770 | $450,600 | $0 | $583,370 | $583,370 |
| 2018 | $133,189 | $375,600 | $0 | $508,789 | $508,789 |
| 2017 | $134,027 | $375,600 | $0 | $509,627 | $509,627 |
| 2016 | $135,702 | $350,600 | $0 | $486,302 | $486,302 |
| 2015 | $59,096 | $350,600 | $0 | $409,696 | $409,696 |
| 2014 | $60,132 | $350,600 | $0 | $410,732 | $410,732 |
| 2013 | $61,169 | $350,600 | $0 | $411,769 | $411,769 |
| 2012 | $62,206 | $389,198 | $0 | $451,404 | $451,404 |
| 2011 | $63,243 | $486,348 | $0 | $549,591 | $549,591 |
| 2010 | $75,111 | $486,348 | $0 | $561,459 | $561,459 |
| 2009 | $72,888 | $538,260 | $0 | $611,148 | $611,148 |
| 2008 | $74,003 | $612,420 | $0 | $686,423 | $686,423 |
| 2007 | $75,119 | $512,227 | $0 | $587,346 | $587,346 |
Deed and Sales History
| 1 | 12/22/2020 | WD | Warranty Deed | BURNS, MICHAEL | BURNS, MICHAEL G | | | $333,700.00 | 46451 | 4507133 |
| 2 | 08/19/2016 | QCD | Quit Claim Deed | BURNS, MICHAEL | BURNS, MICHAEL | | | $0.00 | 25941 | 4406391 |
| 3 | 09/26/2012 | BARGSLD | Bargain And Sale Deed | FEDERAL NATIONAL MORTGAGE ASSOCIATION | BURNS, MICHAEL | | | $360,000.00 | 9045 | 4324350 |
| 4 | 07/09/2012 | TRUSTEED | Trustee's Deed | TISDEL, GREGORY ALAN | FEDERAL NATIONAL MORTGAGE ASSOCIATION | | | $428,319.00 | 8375 | 4320083 |
| 5 | 08/23/2001 | QCD | Quit Claim Deed | TISDEL, GREGORY ALAN | TISDEL, GREGORY ALAN | | | $0.00 | 0 | 20041107 |
| 6 | 08/08/2001 | ESTSEPPROP | Establish Separate Property | TISDEL, GREGORY ALAN | TISDEL, GREGORY ALAN | | | $0.00 | 13128 | 20040639 |
| 7 | 08/01/2001 | PRD | Personal Representatives Deed | FERTELLO, JACLYN W | TISDEL, GREGORY ALAN | | | $260,000.00 | 13127 | 20040638 |
| 8 | 08/01/1996 | BLA | DNU - Boundary Line Adjustment | FERTELLO, JACLYN W | FERTELLO, JACLYN W | | | $0.00 | 67118 | 309496 |
| 9 | 01/01/1993 | QCD | Quit Claim Deed | WOLD, JACKIE A | FERTELLO, JACLYN W | | | $0.00 | 30448 | 93002442 |
| 10 | 07/01/1979 | CD | DNU - Correction Deed | WOLD, JACKIE | WOLD, JACKIE A | | | $0.00 | 1053 | 367000 |
Payout Agreement
| No payout information available.. |