Property
Account |
| Property ID: | 306939 | Abbreviated Legal Description: | LONG BCH LOT 22 BLK 2 |
| Geographic ID: | S7395-00-02022-0 | Agent Code: | |
| Type: | Real | | |
| Tax Area: | 570 - APPRAISER-Stan/Cam Schl Dist, Special Dist, improved & less than 1 acre | Land Use Code | 11 |
| Open Space: | N | DFL | N |
| Historic Property: | N | Remodel Property: | N |
| Multi-Family Redevelopment: | N | | |
| Township: | | Section: | |
| Range: | |
Location |
| Address: | 111 IVERSON RD CAMANO ISLAND, WA 98282 | Mapsco: | |
| Neighborhood: | Cycle 5 | Map ID: | 917 |
| Neighborhood CD: | 5 |
Owner |
| Name: | CHRISTIANSON, JEFFREY | Owner ID: | 312087 |
| Mailing Address: | TIFFANY CHRISTIANSON 729 WEST DRAVUS ST SEATTLE, WA 98119 | % Ownership: | 100.0000000000% |
| | | Exemptions: | |
Taxes and Assessment Details
Values
| (+) Improvement Homesite Value: | + | $0 | |
| (+) Improvement Non-Homesite Value: | + | $313,579 | |
| (+) Land Homesite Value: | + | $0 | |
| (+) Land Non-Homesite Value: | + | $775,000 | |
| (+) Curr Use (HS): | + | $0 | $0 |
| (+) Curr Use (NHS): | + | $0 | $0 |
| | | -------------------------- | |
| (=) Market Value: | = | $1,088,579 | |
| (–) Productivity Loss: | – | $0 | |
| | | -------------------------- | |
| (=) Subtotal: | = | $1,088,579 | |
| (+) Senior Appraised Value: | + | $0 | |
| (+) Non-Senior Appraised Value: | + | $1,088,579 | |
| | | -------------------------- | |
| (=) Total Appraised Value: | = | $1,088,579 | |
| (–) Senior Exemption Loss: | – | $0 | |
| (–) Exemption Loss: | – | $0 | |
| | | -------------------------- | |
| (=) Taxable Value: | = | $1,088,579 | |
Taxing Jurisdiction
| Owner: | CHRISTIANSON, JEFFREY | | |
| % Ownership: | 100.0000000000% | | |
| Total Value: | $1,088,579 | | |
| Tax Area: | 570 - APPRAISER-Stan/Cam Schl Dist, Special Dist, improved & less than 1 acre |
| CF | Conservation Futures | 0.0313996660 | $1,088,579 | $1,088,579 | $34.18 | | |
| EMS1 | Fire & Rescue Dist #1 Camano GEN (EMS) | 0.4998471806 | $1,088,579 | $1,088,579 | $544.12 | | |
| FIRE1 | Fire & Rescue Dist #1 Camano GEN | 1.2496603404 | $1,088,579 | $1,088,579 | $1,360.35 | | |
| FIRE1BOND | Fire & Rescue Dist #1 Camano BOND | 0.1630371212 | $1,088,579 | $1,088,579 | $177.48 | | |
| CE | County Current Expense | 0.3674210519 | $1,088,579 | $1,088,579 | $399.97 | | |
| CR | County Roads | 0.4614296361 | $1,088,579 | $1,088,579 | $502.30 | | |
| LIB | Library Sno-Isle GEN | 0.3039084203 | $1,088,579 | $1,088,579 | $330.83 | | |
| SCH205_401 | School 205-401 Enrichment | 1.3697998934 | $1,088,579 | $1,088,579 | $1,491.14 | | |
| SCH205BOND | School 205-401 BOND | 0.9354199323 | $1,088,579 | $1,088,579 | $1,018.28 | | |
| ST | State School | 1.4761226122 | $1,088,579 | $1,088,579 | $1,606.88 | | |
| ST2 | State School Part 2 | 0.7953803475 | $1,088,579 | $1,088,579 | $865.83 | | |
| | Total Tax Rate: | 7.6534262019 | | | | | |
| | | | | Taxes w/Current Exemptions: | $8,331.36 | | |
| | | | | Taxes w/o Exemptions: | $8,331.36 | | |
Improvement / Building
| Improvement #1: | RESIDENTIAL | State Code: | Y | 2162.0 sqft | Value: | $313,579 |
| Bathrooms: | 3 | Bedrooms: | 3 | | Ceiling: | DRYWALL PAINTED | Exterior Wall/Cover: | WOOD SIDING | | Floor Covering: | CERAMIC TILE/CPT 40-60 | Floor Structure: | WOOD W/SUBFLOOR | | Foundation: | CONCRETE BLOCKS | Heating: | BASEBOARD ELECTRIC | | Interior Finish: | DRYWALL PAINT | Plumbing Fixture Cnt: | 13 | | Roof Slope: | 3" IN 12" | Roof Structure/Cover: | CJ ALUMINIUM HEAVY |
|
| | Type | Description | Class CD | Sub Class CD | Year Built | Area |
| | BAS | BASE/MAIN FLOOR | 3 | 0 | 1960 | 1410.0 |
| | UB8 | BASEMENT UNFINISHED 8" | 3 | 0 | 1960 | 250.0 |
| | BIG | BUILT IN GARAGE | 3 | 0 | 1960 | 384.0 |
| | OWP | OPEN WOOD PORCH W/STEPS | 3 | 0 | 1960 | 270.0 |
| | OWC | OPEN WOOD PORCH W/STEPS/ROOF/C | 3 | 0 | 1960 | 100.0 |
| | OWC | OPEN WOOD PORCH W/STEPS/ROOF/C | 3 | 0 | 1960 | 162.0 |
| | DWN | DOWNSTAIRS LIVING AREA | 3 | 0 | 1960 | 752.0 |
Sketch
Property Image
Land
| 1 | LB | LOW BANK | 0.0000 | 0.00 | 60.00 | 0.00 | 1.00 | $775,000 | $0 |
Roll Value History
| 2026 | N/A | N/A | N/A | N/A | N/A |
| 2025 | $313,579 | $775,000 | $0 | $1,088,579 | $1,088,579 |
| 2024 | $324,119 | $775,000 | $0 | $1,099,119 | $1,099,119 |
| 2023 | $328,370 | $715,000 | $0 | $1,043,370 | $1,043,370 |
| 2022 | $301,193 | $650,000 | $0 | $951,193 | $951,193 |
| 2021 | $237,449 | $525,000 | $0 | $762,449 | $762,449 |
| 2020 | $232,080 | $450,000 | $0 | $682,080 | $682,080 |
| 2019 | $177,882 | $450,000 | $0 | $627,882 | $627,882 |
| 2018 | $178,506 | $375,000 | $0 | $553,506 | $553,506 |
| 2017 | $179,741 | $375,000 | $0 | $554,741 | $554,741 |
| 2016 | $182,236 | $350,000 | $0 | $532,236 | $532,236 |
| 2015 | $159,011 | $350,000 | $0 | $509,011 | $509,011 |
| 2014 | $161,366 | $350,000 | $0 | $511,366 | $511,366 |
| 2013 | $163,723 | $350,000 | $0 | $513,723 | $513,723 |
| 2012 | $166,080 | $388,598 | $0 | $554,678 | $554,678 |
| 2011 | $168,436 | $485,748 | $0 | $654,184 | $654,184 |
| 2010 | $177,688 | $485,748 | $0 | $663,436 | $663,436 |
| 2009 | $182,216 | $537,660 | $0 | $719,876 | $719,876 |
| 2008 | $184,689 | $611,820 | $0 | $796,509 | $796,509 |
| 2007 | $187,171 | $520,047 | $0 | $707,218 | $707,218 |
Deed and Sales History
| 1 | 04/23/2024 | WD | Warranty Deed | CARLSON TTEE, CLARENCE ALBERT | CHRISTIANSON, JEFFREY | | | $1,050,000.00 | 59730 | 4571577 |
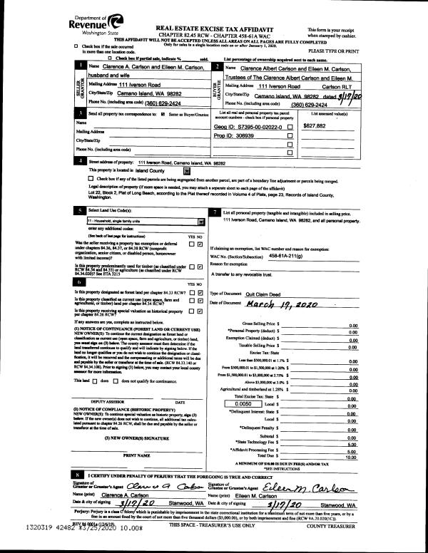
| 2 | 03/17/2020 | QCD | Quit Claim Deed | CARLSON, CLARENCE A | CARLSON TTEE, CLARENCE ALBERT | | | $0.00 | 42482 | 4483642 |
| 3 | 07/29/2010 | QCD | Quit Claim Deed | CARLSON, CLARENCE A | CARLSON, CLARENCE A | | | $0.00 | 1869 | 4277969 |
| 4 | 08/01/1991 | WD | Warranty Deed | CARLSON, CLARENCE A | CARLSON, CLARENCE A | | | $0.00 | 13028 | 91012952 |
| 5 | 07/01/1988 | WD | Warranty Deed | VICTOR, JOHN C | CARLSON, CLARENCE A | | | $177,500.00 | 82650 | 88009995 |
| 6 | 01/01/1900 | OTHER | Other - Misc. Documents | Unknown | VICTOR, JOHN C | | | $0.00 | 0 | 0 |
Payout Agreement
| No payout information available.. |