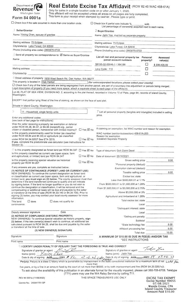
Property
Account |
| Property ID: | 307304 | Abbreviated Legal Description: | LONG BEACH 1ST LOT 10 & PT RESERVE (A) LONG BEACH LY N OF RD PT FR S7395-00-0000A-1 |
| Geographic ID: | S7395-01-00010-0 | Agent Code: | |
| Type: | Real | | |
| Tax Area: | 590 - APPRAISER-Stan/Cam Schl Dist, Special Dist, improved & less than 1 acre | Land Use Code | 11 |
| Open Space: | N | DFL | N |
| Historic Property: | N | Remodel Property: | N |
| Multi-Family Redevelopment: | N | | |
| Township: | | Section: | |
| Range: | |
Location |
| Address: | 242 IVERSON RD CAMANO ISLAND, WA 98282 | Mapsco: | |
| Neighborhood: | Cycle 5 | Map ID: | 915 |
| Neighborhood CD: | 5 |
Owner |
| Name: | PERRIGO TTEE, BRADLEY | Owner ID: | 317116 |
| Mailing Address: | DEANN PERRIGO TTEE 4476 NW EMILY WAY CAMAS, WA 98607 | % Ownership: | 100.0000000000% |
| | | Exemptions: | |
Taxes and Assessment Details
Values
| (+) Improvement Homesite Value: | + | $0 | |
| (+) Improvement Non-Homesite Value: | + | $115,605 | |
| (+) Land Homesite Value: | + | $0 | |
| (+) Land Non-Homesite Value: | + | $320,000 | |
| (+) Curr Use (HS): | + | $0 | $0 |
| (+) Curr Use (NHS): | + | $0 | $0 |
| | | -------------------------- | |
| (=) Market Value: | = | $435,605 | |
| (–) Productivity Loss: | – | $0 | |
| | | -------------------------- | |
| (=) Subtotal: | = | $435,605 | |
| (+) Senior Appraised Value: | + | $0 | |
| (+) Non-Senior Appraised Value: | + | $435,605 | |
| | | -------------------------- | |
| (=) Total Appraised Value: | = | $435,605 | |
| (–) Senior Exemption Loss: | – | $0 | |
| (–) Exemption Loss: | – | $0 | |
| | | -------------------------- | |
| (=) Taxable Value: | = | $435,605 | |
Taxing Jurisdiction
| Owner: | PERRIGO TTEE, BRADLEY | | |
| % Ownership: | 100.0000000000% | | |
| Total Value: | $435,605 | | |
| Tax Area: | 590 - APPRAISER-Stan/Cam Schl Dist, Special Dist, improved & less than 1 acre |
| CF | Conservation Futures | 0.0313996660 | $435,605 | $435,605 | $13.68 | | |
| EMS1 | Fire & Rescue Dist #1 Camano GEN (EMS) | 0.4998471806 | $435,605 | $435,605 | $217.74 | | |
| FIRE1 | Fire & Rescue Dist #1 Camano GEN | 1.2496603404 | $435,605 | $435,605 | $544.36 | | |
| FIRE1BOND | Fire & Rescue Dist #1 Camano BOND | 0.1630371212 | $435,605 | $435,605 | $71.02 | | |
| CE | County Current Expense | 0.3674210519 | $435,605 | $435,605 | $160.05 | | |
| CR | County Roads | 0.4614296361 | $435,605 | $435,605 | $201.00 | | |
| LIB | Library Sno-Isle GEN | 0.3039084203 | $435,605 | $435,605 | $132.38 | | |
| SCH205_401 | School 205-401 Enrichment | 1.3697998934 | $435,605 | $435,605 | $596.69 | | |
| SCH205BOND | School 205-401 BOND | 0.9354199323 | $435,605 | $435,605 | $407.47 | | |
| ST | State School | 1.4761226122 | $435,605 | $435,605 | $643.01 | | |
| ST2 | State School Part 2 | 0.7953803475 | $435,605 | $435,605 | $346.47 | | |
| | Total Tax Rate: | 7.6534262019 | | | | | |
| | | | | Taxes w/Current Exemptions: | $3,333.87 | | |
| | | | | Taxes w/o Exemptions: | $3,333.87 | | |
Improvement / Building
| Improvement #1: | MANUFACTURED HOME | State Code: | Y | 1212.0 sqft | Value: | $115,605 |
| Bathrooms: | 0 | Bedrooms: | 0 | | Ceiling: | PLASTER PAINTED | Cooling: | EVAP NO DUCT | | Exterior Wall/Cover: | VINYL | Floor Covering: | CARPET 100% | | Floor Structure: | SLAB ON GRADE | Foundation: | SLAB | | Heating: | FHA ELECTRIC | Interior Finish: | PLASTER | | Plumbing Fixture Cnt: | 1 | Roof Slope: | FLAT | | Roof Structure/Cover: | CJ ALUMINIUM HEAVY |   |   |
|
| | Type | Description | Class CD | Sub Class CD | Year Built | Area |
| | BAS | BASE/MAIN FLOOR | 4 | 0 | 1978 | 1212.0 |
| | DGR | DETACHED GARAGE | 4 | 0 | 1978 | 768.0 |
| | OWP | OPEN WOOD PORCH W/STEPS | 4 | 0 | 1978 | 100.0 |
| | OWR | OPEN WOOD PORCH W/STEPS/ROOF | 4 | 0 | 1978 | 219.6 |
| | UTY | STORAGE/UTILITY | 4 | 0 | 1978 | 144.0 |
| | OWC | OPEN WOOD PORCH W/STEPS/ROOF/C | 4 | 0 | 1978 | 36.0 |
Sketch
Property Image
Land
| 1 | 13 | SQ (06001-08000) | 0.0000 | 0.00 | 0.00 | 0.00 | 1.00 | $320,000 | $0 |
Roll Value History
| 2026 | N/A | N/A | N/A | N/A | N/A |
| 2025 | $115,605 | $320,000 | $0 | $435,605 | $435,605 |
| 2024 | $118,593 | $310,000 | $0 | $428,593 | $428,593 |
| 2023 | $108,331 | $300,000 | $0 | $408,331 | $408,331 |
| 2022 | $102,341 | $260,000 | $0 | $362,341 | $362,341 |
| 2021 | $89,929 | $200,000 | $0 | $289,929 | $289,929 |
| 2020 | $89,885 | $160,000 | $0 | $249,885 | $249,885 |
| 2019 | $76,622 | $190,000 | $0 | $266,622 | $266,622 |
| 2018 | $77,409 | $150,000 | $0 | $227,409 | $227,409 |
| 2017 | $78,982 | $130,000 | $0 | $208,982 | $208,982 |
| 2016 | $80,553 | $100,000 | $0 | $180,553 | $180,553 |
| 2015 | $57,856 | $100,000 | $0 | $157,856 | $157,856 |
| 2014 | $59,250 | $100,000 | $0 | $159,250 | $159,250 |
| 2013 | $61,340 | $84,000 | $0 | $145,340 | $145,340 |
| 2012 | $62,734 | $84,000 | $0 | $146,734 | $146,734 |
| 2011 | $64,128 | $105,000 | $0 | $169,128 | $169,128 |
| 2010 | $75,745 | $105,000 | $0 | $180,745 | $180,745 |
| 2009 | $79,273 | $113,000 | $0 | $192,273 | $192,273 |
| 2008 | $80,672 | $113,000 | $0 | $193,672 | $193,672 |
| 2007 | $82,110 | $98,000 | $0 | $180,110 | $180,110 |
Deed and Sales History
| 1 | 05/22/2025 | QCD | Quit Claim Deed | PERRIGO, BRADLEY WARREN | PERRIGO TTEE, BRADLEY | | | $0.00 | 63928 | 4587383 |
| 2 | 06/29/2021 | MANHOME | Manufactured Home | WYNTER, DAVID A & KAY M | PERRIGO, BRADLEY WARREN | | | $63,918.00 | 48993 | |
| 3 | 06/23/2021 | WD | Warranty Deed | WYNTER, DAVID A & KAY M | PERRIGO, BRADLEY WARREN | | | $236,082.00 | 48992 | 4523385 |
| 4 | 06/01/1994 | OTHER | Other - Misc. Documents | WYNTER, DAVID A | WYNTER, DAVID A | | | $31,894.00 | 42556 | 0 |
| 5 | 06/01/1994 | WD | Warranty Deed | MAY, MILTON L | WYNTER, DAVID A | | | $86,606.00 | 42545 | 94014179 |
| 6 | 01/01/1900 | OTHER | Other - Misc. Documents | MAY, MILTON L | MAY, MILTON L | | | $25,000.00 | 0 | 0 |
| 7 | 01/01/1900 | OTHER | Other - Misc. Documents | Unknown | MAY, MILTON L | | | $0.00 | 0 | 0 |
Payout Agreement
| No payout information available.. |