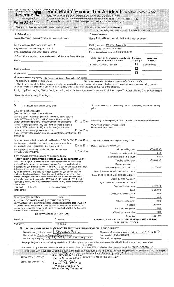
Property
Account |
| Property ID: | 307448 | Abbreviated Legal Description: | LONG PT HTS #1 LOT 6 |
| Geographic ID: | S7398-00-00006-0 | Agent Code: | |
| Type: | Real | | |
| Tax Area: | 310 - APPRAISER-Cpvl Schl Dist, outside Cpvl, improved & 1 acre or less | Land Use Code | 11 |
| Open Space: | N | DFL | N |
| Historic Property: | N | Remodel Property: | N |
| Multi-Family Redevelopment: | N | | |
| Township: | | Section: | |
| Range: | |
Location |
| Address: | 305 ROSEWOOD CT COUPEVILLE, WA 98239 | Mapsco: | |
| Neighborhood: | Cycle 2 | Map ID: | 183 |
| Neighborhood CD: | 2 |
Owner |
| Name: | BRANDT, RICHARD | Owner ID: | 299648 |
| Mailing Address: | NICOLE BRANDT 1526 2ND AVE W SEATTLE, WA 98119 | % Ownership: | 100.0000000000% |
| | | Exemptions: | |
Taxes and Assessment Details
Values
| (+) Improvement Homesite Value: | + | $0 | |
| (+) Improvement Non-Homesite Value: | + | $297,915 | |
| (+) Land Homesite Value: | + | $0 | |
| (+) Land Non-Homesite Value: | + | $260,000 | |
| (+) Curr Use (HS): | + | $0 | $0 |
| (+) Curr Use (NHS): | + | $0 | $0 |
| | | -------------------------- | |
| (=) Market Value: | = | $557,915 | |
| (–) Productivity Loss: | – | $0 | |
| | | -------------------------- | |
| (=) Subtotal: | = | $557,915 | |
| (+) Senior Appraised Value: | + | $0 | |
| (+) Non-Senior Appraised Value: | + | $557,915 | |
| | | -------------------------- | |
| (=) Total Appraised Value: | = | $557,915 | |
| (–) Senior Exemption Loss: | – | $0 | |
| (–) Exemption Loss: | – | $0 | |
| | | -------------------------- | |
| (=) Taxable Value: | = | $557,915 | |
Taxing Jurisdiction
| Owner: | BRANDT, RICHARD | | |
| % Ownership: | 100.0000000000% | | |
| Total Value: | $557,915 | | |
| Tax Area: | 310 - APPRAISER-Cpvl Schl Dist, outside Cpvl, improved & 1 acre or less |
| CF | Conservation Futures | 0.0313996660 | $557,915 | $557,915 | $17.52 | | |
| CEM2 | Cemetery #2 | 0.0092609791 | $557,915 | $557,915 | $5.17 | | |
| FIRE5 | Fire & Rescue Dist #5 C Whidbey GEN | 1.1892169230 | $557,915 | $557,915 | $663.48 | | |
| FIRE5BOND | Fire & Rescue Dist #5 C Whidbey BOND | 0.1394359503 | $557,915 | $557,915 | $77.79 | | |
| HOBOND | Hospital BOND | 0.1893405597 | $557,915 | $557,915 | $105.64 | | |
| HOGEN | Hospital GEN | 0.3848777722 | $557,915 | $557,915 | $214.73 | | |
| CE | County Current Expense | 0.3674210519 | $557,915 | $557,915 | $204.99 | | |
| CR | County Roads | 0.4614296361 | $557,915 | $557,915 | $257.44 | | |
| ISLANDEMS | Hospital GEN (EMS) | 0.4952018576 | $557,915 | $557,915 | $276.28 | | |
| LIB | Library Sno-Isle GEN | 0.3039084203 | $557,915 | $557,915 | $169.56 | | |
| LIBCAP | Library Sno-Isle BOND (Cap Fac Imp Area) | 0.0528562629 | $557,915 | $557,915 | $29.49 | | |
| POCOUP | Port of Coupeville GEN | 0.1065226063 | $557,915 | $557,915 | $59.43 | | |
| POCOUPIDD | Port of Coupeville IDD | 0.3353038577 | $557,915 | $557,915 | $187.07 | | |
| COUPSDTECH | School 204 CP (TECH) | 0.1215123397 | $557,915 | $557,915 | $67.79 | | |
| SCH204MO | School 204 Enrichment | 0.6416662518 | $557,915 | $557,915 | $358.00 | | |
| ST | State School | 1.4761226122 | $557,915 | $557,915 | $823.55 | | |
| ST2 | State School Part 2 | 0.7953803475 | $557,915 | $557,915 | $443.75 | | |
| | Total Tax Rate: | 7.1008570943 | | | | | |
| | | | | Taxes w/Current Exemptions: | $3,961.68 | | |
| | | | | Taxes w/o Exemptions: | $3,961.68 | | |
Improvement / Building
| Improvement #1: | RESIDENTIAL | State Code: | Y | 1995.0 sqft | Value: | $297,915 |
| Bathrooms: | 2 | Bedrooms: | 3 | | Ceiling: | DRY WALL SPRAYED | Exterior Wall/Cover: | CEMENT FIBER | | Floor Covering: | VINYL/HARDWOOD 60-40 | Floor Structure: | WOOD W/SUBFLOOR | | Foundation: | CONCRETE | Heating: | BASEBOARD ELECTRIC | | Interior Finish: | DRYWALL PAINT | Plumbing Fixture Cnt: | 9 | | Roof Slope: | 3" IN 12" | Roof Structure/Cover: | CJ ALUMINIUM HEAVY |
|
| | Type | Description | Class CD | Sub Class CD | Year Built | Area |
| | BAS | BASE/MAIN FLOOR | 3 | 0 | 1979 | 736.0 |
| | OCP | OPEN CARPORT | 3 | 0 | 1979 | 400.0 |
| | UTY | STORAGE/UTILITY | 3 | 0 | 1979 | 160.0 |
| | DWN | DOWNSTAIRS LIVING AREA | 3 | 0 | 1979 | 736.0 |
| | OWP | OPEN WOOD PORCH W/STEPS | 3 | 0 | 1979 | 220.0 |
| | OWC | OPEN WOOD PORCH W/STEPS/ROOF/C | 3 | 0 | 1979 | 72.0 |
| | UPS | UPPER STORY | 3 | 0 | 1979 | 523.0 |
Sketch
| No sketches available for this property. |
Property Image
Land
| 1 | 15 | SQ (12001-21780) | 0.3200 | 13939.20 | 0.00 | 0.00 | 1.00 | $260,000 | $0 |
Roll Value History
| 2026 | N/A | N/A | N/A | N/A | N/A |
| 2025 | $297,915 | $260,000 | $0 | $557,915 | $557,915 |
| 2024 | $307,903 | $240,000 | $0 | $547,903 | $547,903 |
| 2023 | $311,739 | $240,000 | $0 | $551,739 | $551,739 |
| 2022 | $285,761 | $200,000 | $0 | $485,761 | $485,761 |
| 2021 | $224,206 | $150,000 | $0 | $374,206 | $374,206 |
| 2020 | $219,007 | $130,000 | $0 | $349,007 | $349,007 |
| 2019 | $168,150 | $170,000 | $0 | $338,150 | $338,150 |
| 2018 | $123,040 | $150,000 | $0 | $273,040 | $273,040 |
| 2017 | $123,951 | $130,000 | $0 | $253,951 | $253,951 |
| 2016 | $125,774 | $115,000 | $0 | $240,774 | $240,774 |
| 2015 | $127,597 | $90,000 | $0 | $217,597 | $217,597 |
| 2014 | $129,419 | $85,000 | $0 | $214,419 | $214,419 |
| 2013 | $131,242 | $85,000 | $0 | $216,242 | $216,242 |
| 2012 | $127,758 | $90,950 | $0 | $218,708 | $218,708 |
| 2011 | $129,570 | $107,000 | $0 | $236,570 | $236,570 |
| 2010 | $137,816 | $107,000 | $0 | $244,816 | $244,816 |
| 2009 | $143,987 | $125,000 | $0 | $268,987 | $268,987 |
| 2008 | $145,962 | $125,000 | $0 | $270,962 | $270,962 |
| 2007 | $146,120 | $125,000 | $0 | $271,120 | $271,120 |
Deed and Sales History
| 1 | 05/24/2021 | WD | Warranty Deed | WESLEY, STEPHANIE SHIZUMI | BRANDT, RICHARD | | | $470,000.00 | 48527 | 4520875 |
| 2 | 11/06/2018 | WD | Warranty Deed | SCHWARZ, MATTHEW R | WESLEY, STEPHANIE SHIZUMI | | | $375,000.00 | 36600 | 4454769 |
| 3 | 08/27/2013 | WD | Warranty Deed | ERNST, FRED L | SCHWARZ, MATTHEW R | | | $235,000.00 | 12624 | 4347464 |
| 4 | 07/13/2009 | WD | Warranty Deed | YOUNG, DAVID W | ERNST, FRED L | | | $255,000.00 | 91608 | 4256448 |
| 5 | 12/01/1980 | CD | DNU - Correction Deed | YOUNG, DAVID W | YOUNG, DAVID W | | | $0.00 | 4083 | 377208 |
| 6 | 11/01/1979 | TRUSTEED | Trustee's Deed | PICKARD, KENNETH C | YOUNG, DAVID W | | | $63,000.00 | 95519 | 361896 |
| 7 | 10/01/1979 | CD | DNU - Correction Deed | PICKARD, HERBERT E | PICKARD, KENNETH C | | | $0.00 | 95291 | 361150 |
| 8 | 01/01/1900 | OTHER | Other - Misc. Documents | Unknown | PICKARD, HERBERT E | | | $0.00 | 0 | 0 |
Payout Agreement
| No payout information available.. |