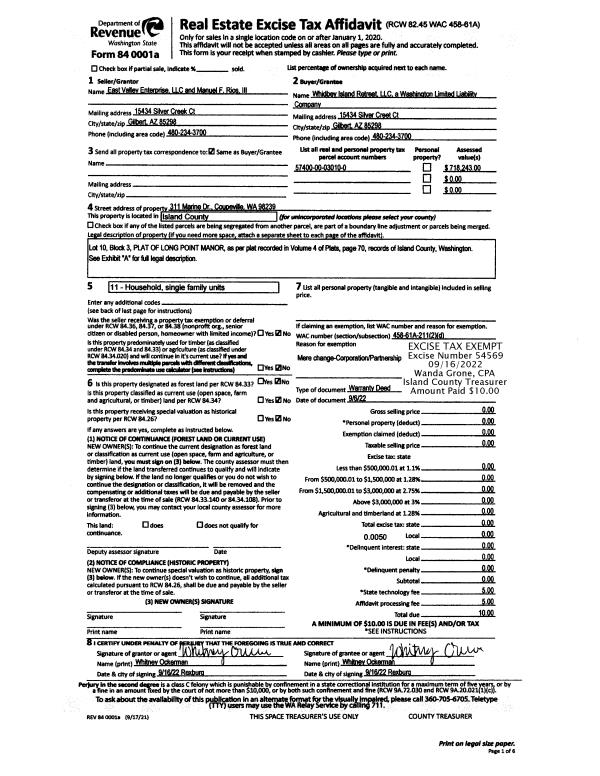
| 1 | 09/06/2022 | QCD | Quit Claim Deed | EAST VALLEY ENTERPRISE, LLC | WHIDBEY ISLAND RETREAT, LLC | | | $0.00 | 54569 | 4551338 |
| 2 | 06/13/2022 | QCD | Quit Claim Deed | EAST VALLEY ENTERPRISES, LLC | EAST VALLEY ENTERPRISE, LLC | | | $0.00 | 53428 | 4546545 |
| 3 | 05/25/2022 | WD | Warranty Deed | NOSTE, MARK O | EAST VALLEY ENTERPRISES, LLC | | | $1,234,500.00 | 53392 | 4546427 |
| 4 | 08/29/2012 | WD | Warranty Deed | MCCUNE, DAVID C & PAMELA J | NOSTE, MARK O | | | $482,000.00 | 8762 | 4322467 |
| 5 | 02/28/2007 | ESTSEPPROP | Establish Separate Property | MCCUNE, DAVID C & PAMELA J | MCCUNE, DAVID C & PAMELA J | | | $0.00 | 70816 | 4196159 |
| 6 | 01/11/2007 | QCD | Quit Claim Deed | MCCUNE, DAVID D | MCCUNE, DAVID C & PAMELA J | | | $0.00 | 70187 | 4192046 |
| 7 | 05/12/2006 | WD | Warranty Deed | LITTLE, DON K | MCCUNE, DAVID D | | | $122,164.00 | 62256 | 4171357 |
| 8 | 07/25/2005 | WD | Warranty Deed | TAN, LUIS S | LITTLE, DON K | | | $118,000.00 | 53681 | 4142520 |
| 9 | 09/01/1996 | WD | Warranty Deed | TAN, LUIS S | TAN, LUIS S | | | $0.00 | 63771 | 96018245 |
| 10 | 01/01/1900 | OTHER | Other - Misc. Documents | Unknown | TAN, LUIS S | | | $0.00 | 0 | 0 |