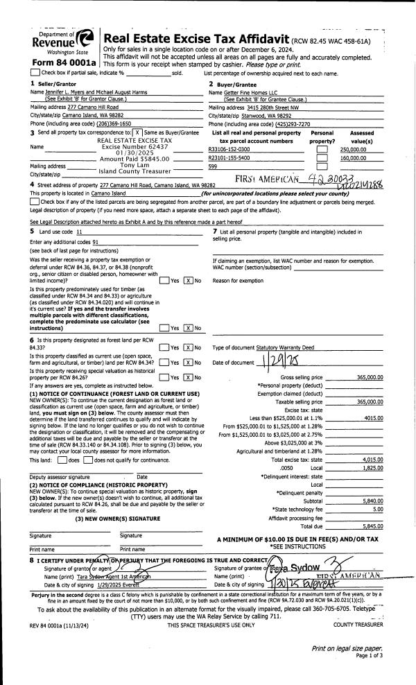
Property
Account |
| Property ID: | 308474 | Abbreviated Legal Description: | LONG PT MANOR LOT 4 BLK 5 |
| Geographic ID: | S7400-00-05004-0 | Agent Code: | |
| Type: | Real | | |
| Tax Area: | 310 - APPRAISER-Cpvl Schl Dist, outside Cpvl, improved & 1 acre or less | Land Use Code | 11 |
| Open Space: | N | DFL | N |
| Historic Property: | N | Remodel Property: | N |
| Multi-Family Redevelopment: | N | | |
| Township: | | Section: | |
| Range: | |
Location |
| Address: | 329 ALTA VISTA AVE COUPEVILLE, WA 98239 | Mapsco: | |
| Neighborhood: | Cycle 2 | Map ID: | 183 |
| Neighborhood CD: | 2 |
Owner |
| Name: | PEARSON, FLORENCE E | Owner ID: | 54892 |
| Mailing Address: | 329 ALTA VISTA AVE COUPEVILLE, WA 98239-3623 | % Ownership: | 100.0000000000% |
| | | Exemptions: | |
Taxes and Assessment Details
Values
| (+) Improvement Homesite Value: | + | $0 | |
| (+) Improvement Non-Homesite Value: | + | $261,963 | |
| (+) Land Homesite Value: | + | $0 | |
| (+) Land Non-Homesite Value: | + | $320,000 | |
| (+) Curr Use (HS): | + | $0 | $0 |
| (+) Curr Use (NHS): | + | $0 | $0 |
| | | -------------------------- | |
| (=) Market Value: | = | $581,963 | |
| (–) Productivity Loss: | – | $0 | |
| | | -------------------------- | |
| (=) Subtotal: | = | $581,963 | |
| (+) Senior Appraised Value: | + | $0 | |
| (+) Non-Senior Appraised Value: | + | $581,963 | |
| | | -------------------------- | |
| (=) Total Appraised Value: | = | $581,963 | |
| (–) Senior Exemption Loss: | – | $0 | |
| (–) Exemption Loss: | – | $0 | |
| | | -------------------------- | |
| (=) Taxable Value: | = | $581,963 | |
Taxing Jurisdiction
| Owner: | PEARSON, FLORENCE E | | |
| % Ownership: | 100.0000000000% | | |
| Total Value: | $581,963 | | |
| Tax Area: | 310 - APPRAISER-Cpvl Schl Dist, outside Cpvl, improved & 1 acre or less |
| CF | Conservation Futures | 0.0313996660 | $581,963 | $581,963 | $18.27 | | |
| CEM2 | Cemetery #2 | 0.0092609791 | $581,963 | $581,963 | $5.39 | | |
| FIRE5 | Fire & Rescue Dist #5 C Whidbey GEN | 1.1892169230 | $581,963 | $581,963 | $692.08 | | |
| FIRE5BOND | Fire & Rescue Dist #5 C Whidbey BOND | 0.1394359503 | $581,963 | $581,963 | $81.15 | | |
| HOBOND | Hospital BOND | 0.1893405597 | $581,963 | $581,963 | $110.19 | | |
| HOGEN | Hospital GEN | 0.3848777722 | $581,963 | $581,963 | $223.98 | | |
| CE | County Current Expense | 0.3674210519 | $581,963 | $581,963 | $213.83 | | |
| CR | County Roads | 0.4614296361 | $581,963 | $581,963 | $268.53 | | |
| ISLANDEMS | Hospital GEN (EMS) | 0.4952018576 | $581,963 | $581,963 | $288.19 | | |
| LIB | Library Sno-Isle GEN | 0.3039084203 | $581,963 | $581,963 | $176.86 | | |
| LIBCAP | Library Sno-Isle BOND (Cap Fac Imp Area) | 0.0528562629 | $581,963 | $581,963 | $30.76 | | |
| POCOUP | Port of Coupeville GEN | 0.1065226063 | $581,963 | $581,963 | $61.99 | | |
| POCOUPIDD | Port of Coupeville IDD | 0.3353038577 | $581,963 | $581,963 | $195.13 | | |
| COUPSDTECH | School 204 CP (TECH) | 0.1215123397 | $581,963 | $581,963 | $70.72 | | |
| SCH204MO | School 204 Enrichment | 0.6416662518 | $581,963 | $581,963 | $373.43 | | |
| ST | State School | 1.4761226122 | $581,963 | $581,963 | $859.05 | | |
| ST2 | State School Part 2 | 0.7953803475 | $581,963 | $581,963 | $462.88 | | |
| | Total Tax Rate: | 7.1008570943 | | | | | |
| | | | | Taxes w/Current Exemptions: | $4,132.43 | | |
| | | | | Taxes w/o Exemptions: | $4,132.43 | | |
Improvement / Building
| Improvement #1: | RESIDENTIAL | State Code: | Y | 1546.0 sqft | Value: | $261,963 |
| Bathrooms: | 1.75 | Bedrooms: | 3 | | Ceiling: | DRYWALL PAINTED | Exterior Wall/Cover: | WOOD SIDING | | Floor Covering: | CERAMIC TILE/CPT 40-60 | Floor Structure: | SLAB ON GRADE | | Foundation: | SLAB | Heating: | FHA OIL | | Interior Finish: | DRYWALL PAINT | Plumbing Fixture Cnt: | 9 | | Roof Slope: | 4" IN 12" | Roof Structure/Cover: | CJ ASPHALT |
|
| | Type | Description | Class CD | Sub Class CD | Year Built | Area |
| | BAS | BASE/MAIN FLOOR | 3 | 0 | 1957 | 1546.0 |
| | OCP | OPEN CARPORT | 3 | 0 | 1957 | 130.0 |
| | DGR | DETACHED GARAGE | 3 | 0 | 1957 | 292.5 |
| | OP1 | OPEN PORCH SLAB | 3 | 0 | 1957 | 472.0 |
Sketch
| No sketches available for this property. |
Property Image
Land
| 1 | 15 | SQ (12001-21780) | 0.4200 | 18295.20 | 0.00 | 0.00 | 1.00 | $320,000 | $0 |
Roll Value History
| 2026 | N/A | N/A | N/A | N/A | N/A |
| 2025 | $261,963 | $320,000 | $0 | $581,963 | $581,963 |
| 2024 | $248,726 | $300,000 | $0 | $548,726 | $548,726 |
| 2023 | $251,905 | $300,000 | $0 | $551,905 | $551,905 |
| 2022 | $230,979 | $220,000 | $0 | $450,979 | $450,979 |
| 2021 | $203,361 | $180,000 | $0 | $383,361 | $383,361 |
| 2020 | $198,152 | $160,000 | $0 | $358,152 | $358,152 |
| 2019 | $144,101 | $200,000 | $0 | $344,101 | $344,101 |
| 2018 | $144,533 | $180,000 | $0 | $324,533 | $324,533 |
| 2017 | $145,398 | $155,000 | $0 | $300,398 | $300,398 |
| 2016 | $87,891 | $135,000 | $0 | $222,891 | $222,891 |
| 2015 | $89,309 | $100,000 | $0 | $189,309 | $189,309 |
| 2014 | $90,726 | $95,000 | $0 | $185,726 | $185,726 |
| 2013 | $92,144 | $95,000 | $0 | $187,144 | $187,144 |
| 2012 | $81,685 | $106,250 | $0 | $187,935 | $187,935 |
| 2011 | $83,019 | $125,000 | $0 | $208,019 | $208,019 |
| 2010 | $93,760 | $125,000 | $0 | $218,760 | $218,760 |
| 2009 | $97,816 | $125,000 | $0 | $222,816 | $222,816 |
| 2008 | $99,237 | $145,000 | $0 | $244,237 | $244,237 |
| 2007 | $100,741 | $145,000 | $0 | $245,741 | $245,741 |
Deed and Sales History
| 1 | 07/12/2006 | WD | Warranty Deed | TROUT, NEAL G | PEARSON, FLORENCE E | | | $370,000.00 | 63090 | 4176090 |
| 2 | 02/01/1995 | QCD | Quit Claim Deed | TROUT, NEAL G | TROUT, NEAL G | | | $0.00 | 50427 | 95002044 |
| 3 | 08/01/1991 | WD | Warranty Deed | BENNETT, JOHN C | TROUT, NEAL G | | | $98,000.00 | 13189 | 91013588 |
| 4 | 04/01/1990 | WD | Warranty Deed | GERARDI, A V | BENNETT, JOHN C | | | $84,000.00 | 2090 | 90006769 |
| 5 | 09/01/1989 | WD | Warranty Deed | DEAN, ORLAN D | GERARDI, A V | | | $71,000.00 | 94166 | 89013743 |
| 6 | 09/01/1982 | TRUSTEED | Trustee's Deed | HALBASH, ROBERT F | DEAN, ORLAN D | | | $59,900.00 | 22310 | 401042 |
| 7 | 01/01/1900 | OTHER | Other - Misc. Documents | Unknown | HALBASH, ROBERT F | | | $0.00 | 0 | 0 |
Payout Agreement
| No payout information available.. |