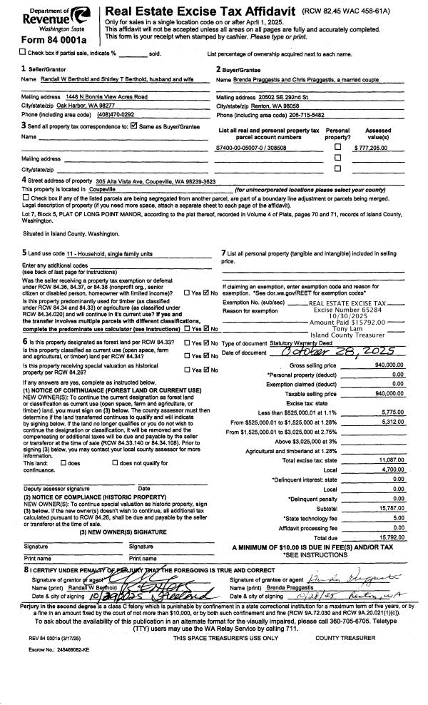
Property
Account |
| Property ID: | 308508 | Abbreviated Legal Description: | LONG PT MANOR LOT 7 BLK 5 |
| Geographic ID: | S7400-00-05007-0 | Agent Code: | |
| Type: | Real | | |
| Tax Area: | 312 - APPRAISER-Cpvl Schl Dist, outside Cpvl, improved, greater than 1 acre | Land Use Code | 11 |
| Open Space: | N | DFL | N |
| Historic Property: | N | Remodel Property: | N |
| Multi-Family Redevelopment: | N | | |
| Township: | | Section: | |
| Range: | |
Location |
| Address: | 305 ALTA VISTA AVE COUPEVILLE, WA 98239 | Mapsco: | |
| Neighborhood: | Cycle 2 | Map ID: | 184 |
| Neighborhood CD: | 2 |
Owner |
| Name: | BERTHOLD, RANDALL W | Owner ID: | 268922 |
| Mailing Address: | SHIRLEY T BERTHOLD 305 ALTA VISTA AVE COUPEVILLE, WA 98239 | % Ownership: | 100.0000000000% |
| | | Exemptions: | |
Taxes and Assessment Details
Values
| (+) Improvement Homesite Value: | + | $0 | |
| (+) Improvement Non-Homesite Value: | + | $457,205 | |
| (+) Land Homesite Value: | + | $0 | |
| (+) Land Non-Homesite Value: | + | $320,000 | |
| (+) Curr Use (HS): | + | $0 | $0 |
| (+) Curr Use (NHS): | + | $0 | $0 |
| | | -------------------------- | |
| (=) Market Value: | = | $777,205 | |
| (–) Productivity Loss: | – | $0 | |
| | | -------------------------- | |
| (=) Subtotal: | = | $777,205 | |
| (+) Senior Appraised Value: | + | $0 | |
| (+) Non-Senior Appraised Value: | + | $777,205 | |
| | | -------------------------- | |
| (=) Total Appraised Value: | = | $777,205 | |
| (–) Senior Exemption Loss: | – | $0 | |
| (–) Exemption Loss: | – | $0 | |
| | | -------------------------- | |
| (=) Taxable Value: | = | $777,205 | |
Taxing Jurisdiction
| Owner: | BERTHOLD, RANDALL W | | |
| % Ownership: | 100.0000000000% | | |
| Total Value: | $777,205 | | |
| Tax Area: | 312 - APPRAISER-Cpvl Schl Dist, outside Cpvl, improved, greater than 1 acre |
| CF | Conservation Futures | 0.0313996660 | $777,205 | $777,205 | $24.40 | | |
| CEM2 | Cemetery #2 | 0.0092609791 | $777,205 | $777,205 | $7.20 | | |
| FIRE5 | Fire & Rescue Dist #5 C Whidbey GEN | 1.1892169230 | $777,205 | $777,205 | $924.27 | | |
| FIRE5BOND | Fire & Rescue Dist #5 C Whidbey BOND | 0.1394359503 | $777,205 | $777,205 | $108.37 | | |
| HOBOND | Hospital BOND | 0.1893405597 | $777,205 | $777,205 | $147.16 | | |
| HOGEN | Hospital GEN | 0.3848777722 | $777,205 | $777,205 | $299.13 | | |
| CE | County Current Expense | 0.3674210519 | $777,205 | $777,205 | $285.56 | | |
| CR | County Roads | 0.4614296361 | $777,205 | $777,205 | $358.63 | | |
| ISLANDEMS | Hospital GEN (EMS) | 0.4952018576 | $777,205 | $777,205 | $384.87 | | |
| LIB | Library Sno-Isle GEN | 0.3039084203 | $777,205 | $777,205 | $236.20 | | |
| LIBCAP | Library Sno-Isle BOND (Cap Fac Imp Area) | 0.0528562629 | $777,205 | $777,205 | $41.08 | | |
| POCOUP | Port of Coupeville GEN | 0.1065226063 | $777,205 | $777,205 | $82.79 | | |
| POCOUPIDD | Port of Coupeville IDD | 0.3353038577 | $777,205 | $777,205 | $260.60 | | |
| COUPSDTECH | School 204 CP (TECH) | 0.1215123397 | $777,205 | $777,205 | $94.44 | | |
| SCH204MO | School 204 Enrichment | 0.6416662518 | $777,205 | $777,205 | $498.71 | | |
| ST | State School | 1.4761226122 | $777,205 | $777,205 | $1,147.25 | | |
| ST2 | State School Part 2 | 0.7953803475 | $777,205 | $777,205 | $618.17 | | |
| | Total Tax Rate: | 7.1008570943 | | | | | |
| | | | | Taxes w/Current Exemptions: | $5,518.83 | | |
| | | | | Taxes w/o Exemptions: | $5,518.83 | | |
Improvement / Building
| Improvement #1: | RESIDENTIAL | State Code: | Y | 3110.5 sqft | Value: | $457,205 |
| Bathrooms: | 3 | Bedrooms: | 5 | | Ceiling: | BEAM PAINTED | Exterior Wall/Cover: | PLY/HARDBOARD T-111 | | Floor Covering: | VINYL TILE/CARP 20-80 | Floor Structure: | WOOD W/SUBFLOOR | | Foundation: | CONCRETE | Heating: | FHA GAS | | Interior Finish: | DRYWALL PAINT | Plumbing Fixture Cnt: | 12 | | Roof Slope: | 4" IN 12" | Roof Structure/Cover: | BEAM CONCRETE TILE |
|
| | Type | Description | Class CD | Sub Class CD | Year Built | Area |
| | BAS | BASE/MAIN FLOOR | 4 | 0 | 1977 | 1740.5 |
| | DGR | DETACHED GARAGE | 4 | 0 | 1977 | 280.0 |
| | BGR | BASEMENT GARAGE | 4 | 0 | 1977 | 335.0 |
| | OWP | OPEN WOOD PORCH W/STEPS | 4 | 0 | 1977 | 48.0 |
| | DWN | DOWNSTAIRS LIVING AREA | 4 | 0 | 1977 | 1370.0 |
| | CPD | OPEN CARPORT DIRT FLOOR | 4 | 0 | 1977 | 320.0 |
Sketch
Property Image
Land
| 1 | 16 | AC (00.51-01.00) | 1.1600 | 50529.60 | 0.00 | 0.00 | 1.00 | $320,000 | $0 |
Roll Value History
| 2026 | N/A | N/A | N/A | N/A | N/A |
| 2025 | $457,205 | $320,000 | $0 | $777,205 | $777,205 |
| 2024 | $443,872 | $300,000 | $0 | $743,872 | $743,872 |
| 2023 | $449,850 | $300,000 | $0 | $749,850 | $749,850 |
| 2022 | $412,749 | $220,000 | $0 | $632,749 | $632,749 |
| 2021 | $363,618 | $190,000 | $0 | $553,618 | $553,618 |
| 2020 | $355,484 | $170,000 | $0 | $525,484 | $525,484 |
| 2019 | $280,175 | $210,000 | $0 | $490,175 | $490,175 |
| 2018 | $224,494 | $190,000 | $0 | $414,494 | $414,494 |
| 2017 | $217,005 | $155,000 | $0 | $372,005 | $372,005 |
| 2016 | $220,395 | $135,000 | $0 | $355,395 | $355,395 |
| 2015 | $223,787 | $100,000 | $0 | $323,787 | $323,787 |
| 2014 | $227,177 | $95,000 | $0 | $322,177 | $322,177 |
| 2013 | $230,568 | $95,000 | $0 | $325,568 | $325,568 |
| 2012 | $241,407 | $106,250 | $0 | $347,657 | $347,657 |
| 2011 | $244,905 | $125,000 | $0 | $369,905 | $369,905 |
| 2010 | $261,119 | $125,000 | $0 | $386,119 | $386,119 |
| 2009 | $272,621 | $145,000 | $0 | $417,621 | $417,621 |
| 2008 | $276,162 | $95,000 | $0 | $371,162 | $371,162 |
| 2007 | $279,703 | $95,000 | $0 | $374,703 | $374,703 |
Deed and Sales History
| 1 | 10/28/2025 | WD | Warranty Deed | BERTHOLD, RANDALL W | PRAGGASTIS, BRENDA | | | $940,000.00 | 65284 | 4592843 |
| 2 | 01/06/2015 | TRUSTEED | Trustee's Deed | BERTHOLD TTEE, RANDALL W | BERTHOLD, RANDALL W | | | $0.00 | 18141 | 4371366 |
| 3 | 09/05/2008 | WD | Warranty Deed | BABCOCK, ROBERT W | BERTHOLD TTEE, RANDALL W | | | $525,000.00 | 82431 | 4236649 |
| 4 | 10/01/1995 | QCD | Quit Claim Deed | BABCOCK, ROBERT W | BABCOCK, ROBERT W | | | $0.00 | 53706 | 95017037 |
| 5 | 10/01/1990 | WD | Warranty Deed | GRILLS, ROBERT J | BABCOCK, ROBERT W | | | $189,500.00 | 5953 | 90020262 |
| 6 | 02/01/1988 | WD | Warranty Deed | INTERWEST, SAVINGS B | GRILLS, ROBERT J | | | $110,000.00 | 80558 | 88002302 |
| 7 | 02/01/1987 | QCD | Quit Claim Deed | GREEN, MARVIN D | INTERWEST, SAVINGS B | | | $0.00 | 70395 | 87002509 |
| 8 | 01/01/1900 | OTHER | Other - Misc. Documents | Unknown | GREEN, MARVIN D | | | $0.00 | 0 | 0 |
Payout Agreement
| No payout information available.. |