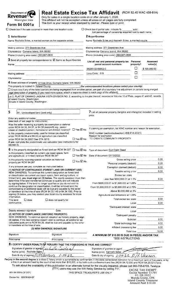
Property
Account |
| Property ID: | 309669 | Abbreviated Legal Description: | LOST LK GRV 1 LOT 9 BLK 6 |
| Geographic ID: | S7410-00-06009-0 | Agent Code: | |
| Type: | Real | | |
| Tax Area: | 510 - APPRAISER-Stan/Cam Schl Dist, improved & 1 acre or less | Land Use Code | 11 |
| Open Space: | N | DFL | N |
| Historic Property: | N | Remodel Property: | N |
| Multi-Family Redevelopment: | N | | |
| Township: | | Section: | |
| Range: | |
Location |
| Address: | | Mapsco: | |
| Neighborhood: | Cycle 5 | Map ID: | 505 |
| Neighborhood CD: | 5 |
Owner |
| Name: | BURROWS, WARREN | Owner ID: | 274049 |
| Mailing Address: | 7501 GREENWOOD AVE N UNIT # 301 SEATTLE, WA 98103 | % Ownership: | 100.0000000000% |
| | | Exemptions: | |
Taxes and Assessment Details
Values
| (+) Improvement Homesite Value: | + | N/A | |
| (+) Improvement Non-Homesite Value: | + | N/A | |
| (+) Land Homesite Value: | + | N/A | |
| (+) Land Non-Homesite Value: | + | N/A | Ag / Timber Use Value |
| (+) Curr Use (HS): | + | N/A | N/A |
| (+) Curr Use (NHS): | + | N/A | N/A |
| | | -------------------------- | |
| (=) Market Value: | = | N/A | |
| (–) Productivity Loss: | – | N/A | |
| | | -------------------------- | |
| (=) Subtotal: | = | N/A | |
| (+) Senior Appraised Value: | + | N/A | |
| (+) Non-Senior Appraised Value: | + | N/A | |
| | | -------------------------- | |
| (=) Total Appraised Value: | = | N/A | |
| (–) Senior Exemption Loss: | – | N/A | |
| (–) Exemption Loss: | – | N/A | |
| | | -------------------------- | |
| (=) Taxable Value: | = | N/A | |
Taxing Jurisdiction
| Owner: | BURROWS, WARREN | | |
| % Ownership: | 100.0000000000% | | |
| Total Value: | N/A | | |
| Tax Area: | 510 - APPRAISER-Stan/Cam Schl Dist, improved & 1 acre or less |
| CF | Conservation Futures | N/A | N/A | N/A | N/A | | |
| CCD | Camano Conservation District | N/A | N/A | N/A | N/A | | |
| EMS1 | Fire & Rescue Dist #1 Camano GEN (EMS) | N/A | N/A | N/A | N/A | | |
| FIRE1 | Fire & Rescue Dist #1 Camano GEN | N/A | N/A | N/A | N/A | | |
| FIRE1BOND | Fire & Rescue Dist #1 Camano BOND | N/A | N/A | N/A | N/A | | |
| CE | County Current Expense | N/A | N/A | N/A | N/A | | |
| CR | County Roads | N/A | N/A | N/A | N/A | | |
| LCIB | Library Sno-Isle BOND (Camano Island) | N/A | N/A | N/A | N/A | | |
| LIB | Library Sno-Isle GEN | N/A | N/A | N/A | N/A | | |
| SCH205_401 | School 205-401 Enrichment | N/A | N/A | N/A | N/A | | |
| SCH205BOND | School 205-401 BOND | N/A | N/A | N/A | N/A | | |
| ST | State School | N/A | N/A | N/A | N/A | | |
| ST2 | State School Part 2 | N/A | N/A | N/A | N/A | | |
| | Total Tax Rate: | N/A | | | | | |
| | | | | Taxes w/Current Exemptions: | N/A | | |
| | | | | Taxes w/o Exemptions: | N/A | | |
Improvement / Building
| Improvement #1: | RESIDENTIAL | State Code: | Y | 0.0 sqft | Value: | N/A |
Sketch
| No sketches available for this property. |
Property Image
Land
| 1 | 15 | SQ (12001-21780) | 0.0000 | 0.00 | 0.00 | 0.00 | 1.00 | N/A | N/A |
Roll Value History
| 2026 | N/A | N/A | N/A | N/A | N/A |
| 2025 | $800 | $290,000 | $0 | $290,800 | $290,800 |
| 2024 | $800 | $280,000 | $0 | $280,800 | $280,800 |
| 2023 | $800 | $270,000 | $0 | $270,800 | $270,800 |
| 2022 | $800 | $270,000 | $0 | $270,800 | $270,800 |
| 2021 | $800 | $80,000 | $0 | $80,800 | $80,800 |
| 2020 | $800 | $80,000 | $0 | $80,800 | $80,800 |
| 2019 | $800 | $80,000 | $0 | $80,800 | $80,800 |
| 2018 | $800 | $80,000 | $0 | $80,800 | $80,800 |
| 2017 | $800 | $80,000 | $0 | $80,800 | $80,800 |
| 2016 | $800 | $60,000 | $0 | $60,800 | $60,800 |
| 2015 | $992 | $52,000 | $0 | $52,992 | $52,992 |
| 2014 | $992 | $52,000 | $0 | $52,992 | $52,992 |
| 2013 | $992 | $64,000 | $0 | $64,992 | $64,992 |
| 2012 | $992 | $64,000 | $0 | $64,992 | $64,992 |
| 2011 | $992 | $80,000 | $0 | $80,992 | $80,992 |
| 2010 | $992 | $65,000 | $0 | $65,992 | $65,992 |
| 2009 | $992 | $45,000 | $0 | $45,992 | $45,992 |
| 2008 | $992 | $45,000 | $0 | $45,992 | $45,992 |
| 2007 | $1,088 | $45,000 | $0 | $46,088 | $46,088 |
Deed and Sales History
| 1 | 03/10/2016 | WD | Warranty Deed | ROBINSON, JOYCE E | BURROWS, WARREN | | | $258,500.00 | 23508 | 4395767 |
|   | |
| 2 | 07/22/2005 | OTHER | Other - Misc. Documents | ROBINSON, JACK T | ROBINSON, JOYCE E | | | $0.00 | 70584 | 0 |
| 3 | 02/01/1997 | QCD | Quit Claim Deed | UNITED, STATES O | ROBINSON, JACK T | | | $95,000.00 | 71245 | 97005618 |
| 4 | 06/01/1996 | OTHER | Other - Misc. Documents | PACIFIC, COAST I | UNITED, STATES O | | | $0.00 | 66995 | 96009612 |
| 5 | 03/01/1996 | TRUSTEED | Trustee's Deed | EVANS, ALDEN D | PACIFIC, COAST I | | | $0.00 | 61252 | 96006415 |
| 6 | 12/01/1984 | WD | Warranty Deed | STRICKLAND, MERRILL E | EVANS, ALDEN D | | | $16,000.00 | 43593 | 84006739 |
| 7 | 04/01/1979 | TRUSTEED | Trustee's Deed | ESFELD, SOL E | STRICKLAND, MERRILL E | | | $30,000.00 | 92928 | 354126 |
| 8 | 08/01/1978 | OTHER | Other - Misc. Documents | Unknown | ESFELD, SOL E | | | $0.00 | 847310 | 0 |
Payout Agreement
| No payout information available.. |