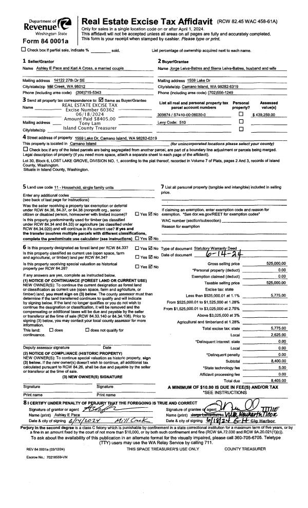
Property
Account |
| Property ID: | 309874 | Abbreviated Legal Description: | LOST LK GRV 1 LOT 30 BLK 6 |
| Geographic ID: | S7410-00-06030-0 | Agent Code: | |
| Type: | Real | | |
| Tax Area: | 510 - APPRAISER-Stan/Cam Schl Dist, improved & 1 acre or less | Land Use Code | 11 |
| Open Space: | N | DFL | N |
| Historic Property: | N | Remodel Property: | N |
| Multi-Family Redevelopment: | N | | |
| Township: | | Section: | |
| Range: | |
Location |
| Address: | 1559 LAKE DR CAMANO ISLAND, WA 98282 | Mapsco: | |
| Neighborhood: | Cycle 5 | Map ID: | 505 |
| Neighborhood CD: | 5 |
Owner |
| Name: | LEIVA-BATRES, JORGE | Owner ID: | 312806 |
| Mailing Address: | SIERRA LEIVA-BATRES 1559 LAKE DR CAMANO ISLAND, WA 98282 | % Ownership: | 100.0000000000% |
| | | Exemptions: | |
Taxes and Assessment Details
Values
| (+) Improvement Homesite Value: | + | $0 | |
| (+) Improvement Non-Homesite Value: | + | $219,057 | |
| (+) Land Homesite Value: | + | $0 | |
| (+) Land Non-Homesite Value: | + | $290,000 | |
| (+) Curr Use (HS): | + | $0 | $0 |
| (+) Curr Use (NHS): | + | $0 | $0 |
| | | -------------------------- | |
| (=) Market Value: | = | $509,057 | |
| (–) Productivity Loss: | – | $0 | |
| | | -------------------------- | |
| (=) Subtotal: | = | $509,057 | |
| (+) Senior Appraised Value: | + | $0 | |
| (+) Non-Senior Appraised Value: | + | $509,057 | |
| | | -------------------------- | |
| (=) Total Appraised Value: | = | $509,057 | |
| (–) Senior Exemption Loss: | – | $0 | |
| (–) Exemption Loss: | – | $0 | |
| | | -------------------------- | |
| (=) Taxable Value: | = | $509,057 | |
Taxing Jurisdiction
| Owner: | LEIVA-BATRES, JORGE | | |
| % Ownership: | 100.0000000000% | | |
| Total Value: | $509,057 | | |
| Tax Area: | 510 - APPRAISER-Stan/Cam Schl Dist, improved & 1 acre or less |
| CF | Conservation Futures | 0.0313996660 | $509,057 | $509,057 | $15.98 | | |
| EMS1 | Fire & Rescue Dist #1 Camano GEN (EMS) | 0.4998471806 | $509,057 | $509,057 | $254.45 | | |
| FIRE1 | Fire & Rescue Dist #1 Camano GEN | 1.2496603404 | $509,057 | $509,057 | $636.15 | | |
| FIRE1BOND | Fire & Rescue Dist #1 Camano BOND | 0.1630371212 | $509,057 | $509,057 | $83.00 | | |
| CE | County Current Expense | 0.3674210519 | $509,057 | $509,057 | $187.04 | | |
| CR | County Roads | 0.4614296361 | $509,057 | $509,057 | $234.89 | | |
| LIB | Library Sno-Isle GEN | 0.3039084203 | $509,057 | $509,057 | $154.71 | | |
| SCH205_401 | School 205-401 Enrichment | 1.3697998934 | $509,057 | $509,057 | $697.31 | | |
| SCH205BOND | School 205-401 BOND | 0.9354199323 | $509,057 | $509,057 | $476.18 | | |
| ST | State School | 1.4761226122 | $509,057 | $509,057 | $751.43 | | |
| ST2 | State School Part 2 | 0.7953803475 | $509,057 | $509,057 | $404.89 | | |
| | Total Tax Rate: | 7.6534262019 | | | | | |
| | | | | Taxes w/Current Exemptions: | $3,896.03 | | |
| | | | | Taxes w/o Exemptions: | $3,896.03 | | |
Improvement / Building
| Improvement #1: | RESIDENTIAL | State Code: | Y | 1200.1 sqft | Value: | $219,057 |
| Bathrooms: | 1 | Bedrooms: | 1 | | Ceiling: | TONGUE & GROOVE | Exterior Wall/Cover: | PLY/HARDBOARD T-111 | | Floor Covering: | SLATE | Floor Structure: | WOOD W/SUBFLOOR | | Foundation: | CONCRETE | Heating: | BASEBOARD ELECTRIC | | Interior Finish: | TONGUE & GROOVE DRYWALL 40/60 | Plumbing Fixture Cnt: | 6 | | Roof Slope: | 12" IN 12" | Roof Structure/Cover: | BEAM ASPHALT |
|
| | Type | Description | Class CD | Sub Class CD | Year Built | Area |
| | BAS | BASE/MAIN FLOOR | 3 | 0 | 1979 | 800.1 |
| | OWP | OPEN WOOD PORCH W/STEPS | 3 | 0 | 1979 | 456.0 |
| | LOF | LOFT | 3 | 0 | 1979 | 400.0 |
| | oFLT | FLOAT/DECK/PILING | 3 | 0 | 1979 | 168.0 |
Sketch
| No sketches available for this property. |
Property Image
Land
| 1 | 15 | SQ (12001-21780) | 0.0000 | 0.00 | 0.00 | 0.00 | 1.00 | $290,000 | $0 |
Roll Value History
| 2026 | N/A | N/A | N/A | N/A | N/A |
| 2025 | $219,057 | $290,000 | $0 | $509,057 | $509,057 |
| 2024 | $167,203 | $280,000 | $0 | $447,203 | $447,203 |
| 2023 | $169,259 | $270,000 | $0 | $439,259 | $439,259 |
| 2022 | $155,737 | $270,000 | $0 | $425,737 | $425,737 |
| 2021 | $128,238 | $190,000 | $0 | $318,238 | $318,238 |
| 2020 | $125,161 | $150,000 | $0 | $275,161 | $275,161 |
| 2019 | $89,709 | $180,000 | $0 | $269,709 | $269,709 |
| 2018 | $89,985 | $150,000 | $0 | $239,985 | $239,985 |
| 2017 | $76,422 | $100,000 | $0 | $176,422 | $176,422 |
| 2016 | $77,428 | $100,000 | $0 | $177,428 | $177,428 |
| 2015 | $63,832 | $52,000 | $0 | $115,832 | $115,832 |
| 2014 | $64,826 | $52,000 | $0 | $116,826 | $116,826 |
| 2013 | $65,821 | $64,000 | $0 | $129,821 | $129,821 |
| 2012 | $66,815 | $64,000 | $0 | $130,815 | $130,815 |
| 2011 | $67,809 | $80,000 | $0 | $147,809 | $147,809 |
| 2010 | $76,235 | $90,000 | $0 | $166,235 | $166,235 |
| 2009 | $79,340 | $90,000 | $0 | $169,340 | $169,340 |
| 2008 | $80,534 | $115,000 | $0 | $195,534 | $195,534 |
| 2007 | $81,729 | $115,000 | $0 | $196,729 | $196,729 |
Deed and Sales History
| 1 | 06/14/2024 | WD | Warranty Deed | CROSS, KARI A | LEIVA-BATRES, JORGE | | | $525,000.00 | 60362 | 4573596 |
| 2 | 07/26/2021 | WD | Warranty Deed | HERRMANN, OWEN M | CROSS, KARI A | | | $425,000.00 | 49478 | 4526021 |
| 3 | 07/07/2017 | WD | Warranty Deed | SEKRETA, KATHLEEN R | HERRMANN, OWEN M | | | $265,000.00 | 30276 | 4426647 |
| 4 | 05/04/2005 | WD | Warranty Deed | CLEARY, CAROLE C | SEKRETA, KATHLEEN R | | | $175,000.00 | 51975 | 4133374 |
| 5 | 06/02/2000 | WD | Warranty Deed | RUGGLES, JOHN G | CLEARY, CAROLE C | | | $144,000.00 | 2160 | 20010237 |
| 6 | 12/01/1988 | WD | Warranty Deed | HOOPER, BILLY J | RUGGLES, JOHN G | | | $52,000.00 | 84469 | 88016530 |
| 7 | 01/01/1900 | OTHER | Other - Misc. Documents | Unknown | HOOPER, BILLY J | | | $0.00 | 0 | 0 |
Payout Agreement
| No payout information available.. |