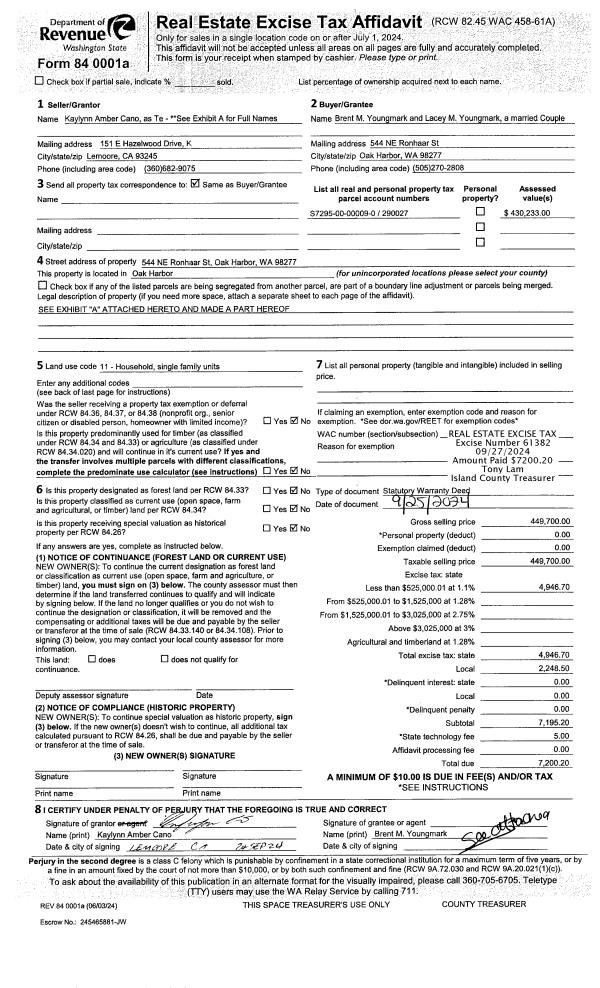
Property
Account |
| Property ID: | 309936 | Abbreviated Legal Description: | LOST LK GRV 2 LOT 2 BLK 1 |
| Geographic ID: | S7410-02-01002-0 | Agent Code: | |
| Type: | Real | | |
| Tax Area: | 510 - APPRAISER-Stan/Cam Schl Dist, improved & 1 acre or less | Land Use Code | 11 |
| Open Space: | N | DFL | N |
| Historic Property: | N | Remodel Property: | N |
| Multi-Family Redevelopment: | N | | |
| Township: | | Section: | |
| Range: | |
Location |
| Address: | 1373 GRAHAM DR CAMANO ISLAND, WA 98282 | Mapsco: | |
| Neighborhood: | Cycle 5 | Map ID: | 505 |
| Neighborhood CD: | 5 |
Owner |
| Name: | ECKLEBARGER, BRANDON | Owner ID: | 314404 |
| Mailing Address: | HOYLYNN HAU 1373 GRAHAM DR CAMANO ISLAND, WA 98282 | % Ownership: | 100.0000000000% |
| | | Exemptions: | |
Taxes and Assessment Details
Values
| (+) Improvement Homesite Value: | + | $0 | |
| (+) Improvement Non-Homesite Value: | + | $352,293 | |
| (+) Land Homesite Value: | + | $0 | |
| (+) Land Non-Homesite Value: | + | $250,000 | |
| (+) Curr Use (HS): | + | $0 | $0 |
| (+) Curr Use (NHS): | + | $0 | $0 |
| | | -------------------------- | |
| (=) Market Value: | = | $602,293 | |
| (–) Productivity Loss: | – | $0 | |
| | | -------------------------- | |
| (=) Subtotal: | = | $602,293 | |
| (+) Senior Appraised Value: | + | $0 | |
| (+) Non-Senior Appraised Value: | + | $602,293 | |
| | | -------------------------- | |
| (=) Total Appraised Value: | = | $602,293 | |
| (–) Senior Exemption Loss: | – | $0 | |
| (–) Exemption Loss: | – | $0 | |
| | | -------------------------- | |
| (=) Taxable Value: | = | $602,293 | |
Taxing Jurisdiction
| Owner: | ECKLEBARGER, BRANDON | | |
| % Ownership: | 100.0000000000% | | |
| Total Value: | $602,293 | | |
| Tax Area: | 510 - APPRAISER-Stan/Cam Schl Dist, improved & 1 acre or less |
| CF | Conservation Futures | 0.0313996660 | $602,293 | $602,293 | $18.91 | | |
| EMS1 | Fire & Rescue Dist #1 Camano GEN (EMS) | 0.4998471806 | $602,293 | $602,293 | $301.05 | | |
| FIRE1 | Fire & Rescue Dist #1 Camano GEN | 1.2496603404 | $602,293 | $602,293 | $752.66 | | |
| FIRE1BOND | Fire & Rescue Dist #1 Camano BOND | 0.1630371212 | $602,293 | $602,293 | $98.20 | | |
| CE | County Current Expense | 0.3674210519 | $602,293 | $602,293 | $221.30 | | |
| CR | County Roads | 0.4614296361 | $602,293 | $602,293 | $277.92 | | |
| LIB | Library Sno-Isle GEN | 0.3039084203 | $602,293 | $602,293 | $183.04 | | |
| SCH205_401 | School 205-401 Enrichment | 1.3697998934 | $602,293 | $602,293 | $825.02 | | |
| SCH205BOND | School 205-401 BOND | 0.9354199323 | $602,293 | $602,293 | $563.40 | | |
| ST | State School | 1.4761226122 | $602,293 | $602,293 | $889.06 | | |
| ST2 | State School Part 2 | 0.7953803475 | $602,293 | $602,293 | $479.05 | | |
| | Total Tax Rate: | 7.6534262019 | | | | | |
| | | | | Taxes w/Current Exemptions: | $4,609.61 | | |
| | | | | Taxes w/o Exemptions: | $4,609.61 | | |
Improvement / Building
| Improvement #1: | RESIDENTIAL | State Code: | Y | 1824.0 sqft | Value: | $352,293 |
| Bathrooms: | 2 | Bedrooms: | 3 | | Ceiling: | DRYWALL PAINTED | Cooling: | HEAT PUMP/CONV/V | | Exterior Wall/Cover: | WOOD SIDING | Floor Covering: | CARPET/VINYL 60-40 | | Floor Structure: | WOOD W/SUBFLOOR | Foundation: | CONCRETE | | Interior Finish: | DRYWALL PAINT | Plumbing Fixture Cnt: | 9 | | Roof Slope: | 4" IN 12" | Roof Structure/Cover: | STEEL TERNE |
|
| | Type | Description | Class CD | Sub Class CD | Year Built | Area |
| | BAS | BASE/MAIN FLOOR | 3 | 0 | 1991 | 1824.0 |
| | OP2 | OPEN PORCH W/STEPS | 3 | 0 | 1991 | 24.0 |
| | AGR | ATTACHED GARAGE | 3 | 0 | 1991 | 576.0 |
| | OP1 | OPEN PORCH SLAB | 3 | 0 | 1991 | 368.4 |
Sketch
| No sketches available for this property. |
Property Image
Land
| 1 | 15 | SQ (12001-21780) | 0.0000 | 0.00 | 0.00 | 0.00 | 1.00 | $250,000 | $0 |
Roll Value History
| 2026 | N/A | N/A | N/A | N/A | N/A |
| 2025 | $352,293 | $250,000 | $0 | $602,293 | $602,293 |
| 2024 | $310,828 | $240,000 | $0 | $550,828 | $550,828 |
| 2023 | $314,519 | $240,000 | $0 | $554,519 | $554,519 |
| 2022 | $288,126 | $210,000 | $0 | $498,126 | $498,126 |
| 2021 | $233,573 | $170,000 | $0 | $403,573 | $403,573 |
| 2020 | $227,914 | $130,000 | $0 | $357,914 | $357,914 |
| 2019 | $170,719 | $150,000 | $0 | $320,719 | $320,719 |
| 2018 | $171,233 | $125,000 | $0 | $296,233 | $296,233 |
| 2017 | $172,257 | $90,000 | $0 | $262,257 | $262,257 |
| 2016 | $174,307 | $75,000 | $0 | $249,307 | $249,307 |
| 2015 | $159,427 | $52,000 | $0 | $211,427 | $211,427 |
| 2014 | $161,496 | $52,000 | $0 | $213,496 | $213,496 |
| 2013 | $163,567 | $52,000 | $0 | $215,567 | $215,567 |
| 2012 | $165,636 | $52,000 | $0 | $217,636 | $217,636 |
| 2011 | $167,707 | $65,000 | $0 | $232,707 | $232,707 |
| 2010 | $174,101 | $84,000 | $0 | $258,101 | $258,101 |
| 2009 | $177,023 | $90,000 | $0 | $267,023 | $267,023 |
| 2008 | $184,830 | $90,000 | $0 | $274,830 | $274,830 |
| 2007 | $187,126 | $90,000 | $0 | $277,126 | $277,126 |
Deed and Sales History
| 1 | 10/23/2024 | WD | Warranty Deed | TOLSMA, JEFF | ECKLEBARGER, BRANDON | | | $605,000.00 | 61713 | 4578822 |
| 2 | 03/30/2022 | WD | Warranty Deed | KIDWELL, PHYLLIS E | TOLSMA, JEFF | | | $512,000.00 | 52637 | 4542976 |
| 3 | 12/06/2011 | TOD | Transfer On Death Deed | KIDWELL, PHYLLIS E | KIDWELL, PHYLLIS E | | | | 82238 | |
| 4 | 04/18/2006 | WD | Warranty Deed | KIDWELL, PHYLLIS E | , | | | $0.00 | 61824 | 4168798 |
| 5 | 04/18/2006 | WD | Warranty Deed | TURNER JTWROS, HARBEY L | KIDWELL, PHYLLIS E | | | $275,000.00 | 61823 | 4168797 |
| 6 | 11/10/2004 | WD | Warranty Deed | PRINGLE, JOSEPH H | TURNER JTWROS, HARBEY L | | | $211,950.00 | 45440 | 4118523 |
| 7 | 08/07/1998 | WD | Warranty Deed | MORTENSON, MICHAEL B | PRINGLE, JOSEPH H | | | $146,300.00 | 83130 | 98016459 |
| 8 | 01/01/1996 | WD | Warranty Deed | WAITE, MICHAEL R | MORTENSON, MICHAEL B | | | $129,900.00 | 60147 | 96000694 |
| 9 | 08/01/1991 | WD | Warranty Deed | SHAFER, LOREN E | WAITE, MICHAEL R | | | $14,500.00 | 13136 | 91013345 |
| 10 | 03/01/1990 | WD | Warranty Deed | SHAFER, LOREN & | SHAFER, LOREN E | | | $0.00 | 2327 | 90007595 |
| 11 | 11/01/1987 | WD | Warranty Deed | LONDO, FRANCIS A | SHAFER, LOREN & | | | $500.00 | 80020 | 88000194 |
| 12 | 01/01/1900 | OTHER | Other - Misc. Documents | PRINGLE, JOSEPH H | LONDO, FRANCIS A | | | $0.00 | 0 | 0 |
Payout Agreement
| No payout information available.. |