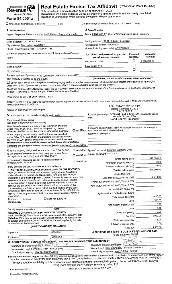
Property
Account |
| Property ID: | 31003 | Abbreviated Legal Description: | 90 - IN SE: S165' OF N330' OF E330' OF S/2 W/2 SW SE TGW EZ |
| Geographic ID: | R13301-041-3090 | Agent Code: | |
| Type: | Real | | |
| Tax Area: | 112 - APPRAISER-OH Schl Dist, outside OH, improved, greater than 1 acre | Land Use Code | 11 |
| Open Space: | N | DFL | N |
| Historic Property: | N | Remodel Property: | N |
| Multi-Family Redevelopment: | N | | |
| Township: | 33 | Section: | 01 |
| Range: | R1 |
Location |
| Address: | 4429 LYON RD OAK HARBOR, WA 98277 | Mapsco: | |
| Neighborhood: | Cycle 6 | Map ID: | 190 |
| Neighborhood CD: | 6 |
Owner |
| Name: | EDWARD HAMILTON, SAWYER | Owner ID: | 307522 |
| Mailing Address: | 4429 LYON RD OAK HARBOR, WA 98277 | % Ownership: | 100.0000000000% |
| | | Exemptions: | |
Taxes and Assessment Details
Values
| (+) Improvement Homesite Value: | + | $0 | |
| (+) Improvement Non-Homesite Value: | + | $166,541 | |
| (+) Land Homesite Value: | + | $0 | |
| (+) Land Non-Homesite Value: | + | $210,000 | |
| (+) Curr Use (HS): | + | $0 | $0 |
| (+) Curr Use (NHS): | + | $0 | $0 |
| | | -------------------------- | |
| (=) Market Value: | = | $376,541 | |
| (–) Productivity Loss: | – | $0 | |
| | | -------------------------- | |
| (=) Subtotal: | = | $376,541 | |
| (+) Senior Appraised Value: | + | $0 | |
| (+) Non-Senior Appraised Value: | + | $376,541 | |
| | | -------------------------- | |
| (=) Total Appraised Value: | = | $376,541 | |
| (–) Senior Exemption Loss: | – | $0 | |
| (–) Exemption Loss: | – | $0 | |
| | | -------------------------- | |
| (=) Taxable Value: | = | $376,541 | |
Taxing Jurisdiction
| Owner: | EDWARD HAMILTON, SAWYER | | |
| % Ownership: | 100.0000000000% | | |
| Total Value: | $376,541 | | |
| Tax Area: | 112 - APPRAISER-OH Schl Dist, outside OH, improved, greater than 1 acre |
| CF | Conservation Futures | 0.0313996660 | $376,541 | $376,541 | $11.82 | | |
| CEM1 | Cemetery #1 | 0.0040018856 | $376,541 | $376,541 | $1.51 | | |
| FIRE2 | Fire & Rescue Dist #2 N Whidbey GEN | 0.5381486274 | $376,541 | $376,541 | $202.64 | | |
| HOBOND | Hospital BOND | 0.1893405597 | $376,541 | $376,541 | $71.29 | | |
| HOGEN | Hospital GEN | 0.3848777722 | $376,541 | $376,541 | $144.92 | | |
| CE | County Current Expense | 0.3674210519 | $376,541 | $376,541 | $138.35 | | |
| CR | County Roads | 0.4614296361 | $376,541 | $376,541 | $173.75 | | |
| ISLANDEMS | Hospital GEN (EMS) | 0.4952018576 | $376,541 | $376,541 | $186.46 | | |
| LIB | Library Sno-Isle GEN | 0.3039084203 | $376,541 | $376,541 | $114.43 | | |
| NWHIDPRMT | P & R N Whidbey GEN | 0.1990272349 | $376,541 | $376,541 | $74.94 | | |
| SCH201MO | School 201 Enrichment | 2.3851112745 | $376,541 | $376,541 | $898.09 | | |
| ST | State School | 1.4761226122 | $376,541 | $376,541 | $555.82 | | |
| ST2 | State School Part 2 | 0.7953803475 | $376,541 | $376,541 | $299.49 | | |
| | Total Tax Rate: | 7.6313709459 | | | | | |
| | | | | Taxes w/Current Exemptions: | $2,873.51 | | |
| | | | | Taxes w/o Exemptions: | $2,873.51 | | |
Improvement / Building
| Improvement #1: | MANUFACTURED HOME | State Code: | Y | 1915.5 sqft | Value: | $166,541 |
| Bathrooms: | 0 | Bedrooms: | 0 | | Ceiling: | PLASTER PAINTED | Cooling: | EVAP NO DUCT | | Exterior Wall/Cover: | VINYL | Floor Covering: | CARPET 100% | | Floor Structure: | SLAB ON GRADE | Foundation: | SLAB | | Heating: | FHA ELECTRIC | Interior Finish: | PLASTER | | Plumbing Fixture Cnt: | 1 | Roof Slope: | FLAT | | Roof Structure/Cover: | CJ ALUMINIUM HEAVY |   |   |
|
| | Type | Description | Class CD | Sub Class CD | Year Built | Area |
| | BAS | BASE/MAIN FLOOR | 4 | 0 | 2001 | 1915.5 |
| | OWP | OPEN WOOD PORCH W/STEPS | 4 | 0 | 2001 | 169.0 |
| | DGR | DETACHED GARAGE | 4 | 0 | 2001 | 336.0 |
| | OWP | OPEN WOOD PORCH W/STEPS | 4 | 0 | 2001 | 204.0 |
Sketch
Property Image
Land
| 1 | 17 | AC (01.01-02.00) | 0.0000 | 0.00 | 0.00 | 0.00 | 1.00 | $210,000 | $0 |
Roll Value History
| 2026 | N/A | N/A | N/A | N/A | N/A |
| 2025 | $166,541 | $210,000 | $0 | $376,541 | $376,541 |
| 2024 | $170,756 | $210,000 | $0 | $380,756 | $380,756 |
| 2023 | $152,157 | $210,000 | $0 | $362,157 | $362,157 |
| 2022 | $130,709 | $200,000 | $0 | $330,709 | $330,709 |
| 2021 | $116,703 | $140,000 | $0 | $256,703 | $256,703 |
| 2020 | $116,241 | $130,000 | $0 | $246,241 | $246,241 |
| 2019 | $93,882 | $185,000 | $0 | $278,882 | $278,882 |
| 2018 | $96,200 | $150,000 | $0 | $246,200 | $246,200 |
| 2017 | $98,494 | $100,000 | $0 | $198,494 | $198,494 |
| 2016 | $99,586 | $100,000 | $0 | $199,586 | $199,586 |
| 2015 | $102,106 | $85,000 | $0 | $187,106 | $187,106 |
| 2014 | $104,627 | $65,000 | $0 | $169,627 | $169,627 |
| 2013 | $107,149 | $70,000 | $0 | $177,149 | $177,149 |
| 2012 | $108,409 | $110,500 | $0 | $218,909 | $218,909 |
| 2011 | $109,669 | $130,000 | $0 | $239,669 | $239,669 |
| 2010 | $142,827 | $130,000 | $0 | $272,827 | $272,827 |
| 2009 | $148,171 | $160,000 | $0 | $308,171 | $308,171 |
| 2008 | $149,899 | $165,000 | $0 | $314,899 | $314,899 |
| 2007 | $151,582 | $104,000 | $0 | $255,582 | $255,582 |
Deed and Sales History
| 1 | 08/30/2022 | WD | Warranty Deed | 202203WY-07, LLC | EDWARD HAMILTON, SAWYER | | | $448,000.00 | 54568 | 4551336 |
| 2 | 05/17/2022 | WD | Warranty Deed | RICHARD, GREGORY A | 202203WY-07, LLC | | | $310,000.00 | 53236 | 4545742 |
| 3 | 01/29/2007 | WD | Warranty Deed | WEBER, ERIC V | RICHARD, GREGORY A | | | $235,000.00 | 70350 | 4193161 |
| 4 | 04/01/1994 | WD | Warranty Deed | HAWKINS, HOMER J | WEBER, ERIC V | | | $37,834.00 | 41629 | 94009895 |
| 5 | 06/01/1991 | DECREE | Divorce Decree/Legal Separation | HAWKINS, HOMER J | HAWKINS, HOMER J | | | $0.00 | 13778 | 91016122 |
| 6 | 12/01/1983 | WD | Warranty Deed | RAMSEY, LYLE | HAWKINS, HOMER J | | | $20,800.00 | 33556 | 418349 |
| 7 | 01/01/1900 | OTHER | Other - Misc. Documents | Unknown | RAMSEY, LYLE | | | $0.00 | 0 | 0 |
Payout Agreement
| No payout information available.. |