Property
Account |
| Property ID: | 310381 | Abbreviated Legal Description: | LOST LK GRV 2 LOT 33 BLK 2 |
| Geographic ID: | S7410-02-02033-0 | Agent Code: | |
| Type: | Real | | |
| Tax Area: | 599 - APPRAISER-Stan/Cam Schl Dist, Special Dist, vacant & 50 acres or less | Land Use Code | 99 |
| Open Space: | N | DFL | N |
| Historic Property: | N | Remodel Property: | N |
| Multi-Family Redevelopment: | N | | |
| Township: | | Section: | |
| Range: | |
Location |
| Address: | 1423 RIDGE DR CAMANO ISLAND, WA 98282 | Mapsco: | |
| Neighborhood: | Cycle 5 | Map ID: | 505 |
| Neighborhood CD: | 5 |
Owner |
| Name: | WALLACE, KAREN | Owner ID: | 313149 |
| Mailing Address: | 127 LOGAN RD LYNNWOOD, WA 98036 | % Ownership: | 100.0000000000% |
| | | Exemptions: | |
Taxes and Assessment Details
Values
| (+) Improvement Homesite Value: | + | $0 | |
| (+) Improvement Non-Homesite Value: | + | $0 | |
| (+) Land Homesite Value: | + | $0 | |
| (+) Land Non-Homesite Value: | + | $120,000 | |
| (+) Curr Use (HS): | + | $0 | $0 |
| (+) Curr Use (NHS): | + | $0 | $0 |
| | | -------------------------- | |
| (=) Market Value: | = | $120,000 | |
| (–) Productivity Loss: | – | $0 | |
| | | -------------------------- | |
| (=) Subtotal: | = | $120,000 | |
| (+) Senior Appraised Value: | + | $0 | |
| (+) Non-Senior Appraised Value: | + | $120,000 | |
| | | -------------------------- | |
| (=) Total Appraised Value: | = | $120,000 | |
| (–) Senior Exemption Loss: | – | $0 | |
| (–) Exemption Loss: | – | $0 | |
| | | -------------------------- | |
| (=) Taxable Value: | = | $120,000 | |
Taxing Jurisdiction
| Owner: | WALLACE, KAREN | | |
| % Ownership: | 100.0000000000% | | |
| Total Value: | $120,000 | | |
| Tax Area: | 599 - APPRAISER-Stan/Cam Schl Dist, Special Dist, vacant & 50 acres or less |
| CF | Conservation Futures | 0.0313996660 | $120,000 | $120,000 | $3.77 | | |
| EMS1 | Fire & Rescue Dist #1 Camano GEN (EMS) | 0.4998471806 | $120,000 | $120,000 | $59.98 | | |
| CE | County Current Expense | 0.3674210519 | $120,000 | $120,000 | $44.09 | | |
| CR | County Roads | 0.4614296361 | $120,000 | $120,000 | $55.37 | | |
| LIB | Library Sno-Isle GEN | 0.3039084203 | $120,000 | $120,000 | $36.47 | | |
| SCH205_401 | School 205-401 Enrichment | 1.3697998934 | $120,000 | $120,000 | $164.38 | | |
| SCH205BOND | School 205-401 BOND | 0.9354199323 | $120,000 | $120,000 | $112.25 | | |
| ST | State School | 1.4761226122 | $120,000 | $120,000 | $177.13 | | |
| ST2 | State School Part 2 | 0.7953803475 | $120,000 | $120,000 | $95.45 | | |
| | Total Tax Rate: | 6.2407287403 | | | | | |
| | | | | Taxes w/Current Exemptions: | $748.89 | | |
| | | | | Taxes w/o Exemptions: | $748.89 | | |
Improvement / Building
Sketch
| No sketches available for this property. |
Property Image
Land
| 1 | 14 | SQ (08001-12000) | 0.0000 | 0.00 | 0.00 | 0.00 | 1.00 | $120,000 | $0 |
Roll Value History
| 2026 | N/A | N/A | N/A | N/A | N/A |
| 2025 | $0 | $120,000 | $0 | $120,000 | $120,000 |
| 2024 | $0 | $110,000 | $0 | $110,000 | $110,000 |
| 2023 | $0 | $120,000 | $0 | $120,000 | $120,000 |
| 2022 | $0 | $115,000 | $0 | $115,000 | $115,000 |
| 2021 | $0 | $45,000 | $0 | $45,000 | $45,000 |
| 2020 | $0 | $45,000 | $0 | $45,000 | $45,000 |
| 2019 | $0 | $45,000 | $0 | $45,000 | $45,000 |
| 2018 | $0 | $45,000 | $0 | $45,000 | $45,000 |
| 2017 | $0 | $45,000 | $0 | $45,000 | $45,000 |
| 2016 | $0 | $45,000 | $0 | $45,000 | $45,000 |
| 2015 | $0 | $45,000 | $0 | $45,000 | $45,000 |
| 2014 | $0 | $45,000 | $0 | $45,000 | $45,000 |
| 2013 | $0 | $45,000 | $0 | $45,000 | $45,000 |
| 2012 | $0 | $45,000 | $0 | $45,000 | $45,000 |
| 2011 | $0 | $45,000 | $0 | $45,000 | $45,000 |
| 2010 | $0 | $45,000 | $0 | $45,000 | $45,000 |
| 2009 | $0 | $45,000 | $0 | $45,000 | $45,000 |
| 2008 | $0 | $45,000 | $0 | $45,000 | $45,000 |
| 2007 | $0 | $45,000 | $0 | $45,000 | $45,000 |
Deed and Sales History
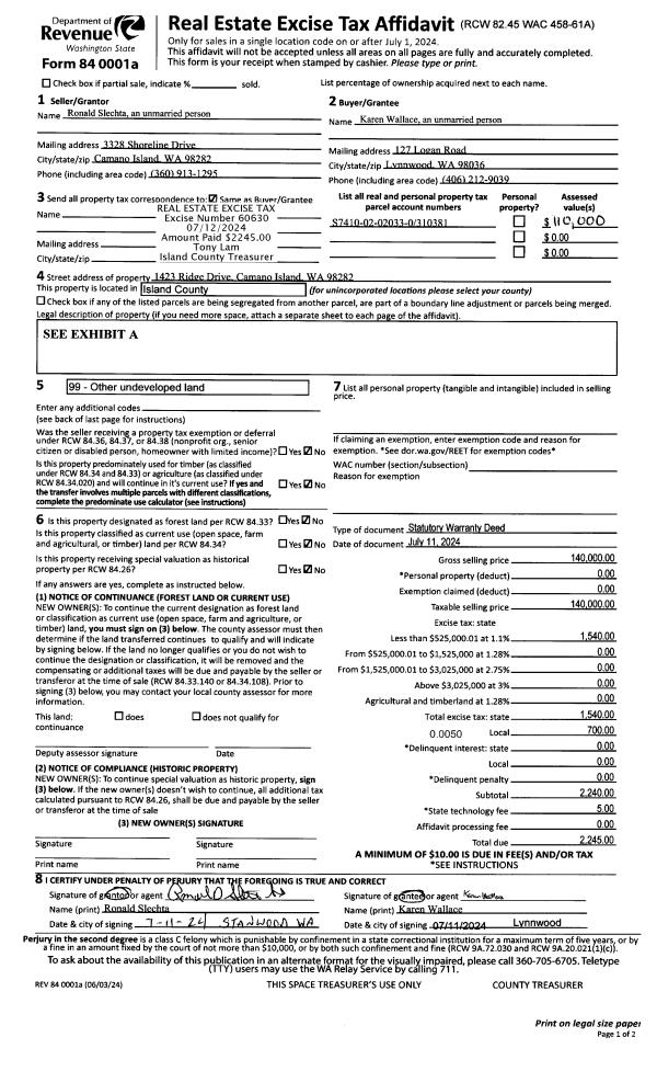
| 1 | 07/11/2024 | WD | Warranty Deed | SLECHTA, RONALD | WALLACE, KAREN | | | $140,000.00 | 60630 | 4574538 |
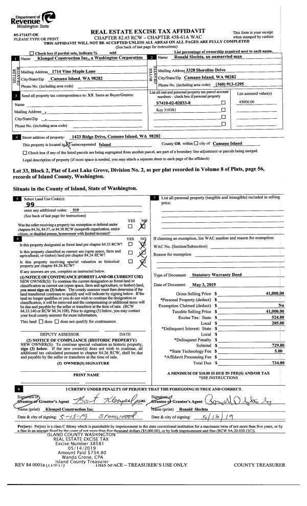
| 2 | 05/03/2019 | WD | Warranty Deed | KLEMPEL CONSTRUCTION INC | SLECHTA, RONALD | | | $41,000.00 | 38581 | 4463703 |
| 3 | 12/01/1995 | WD | Warranty Deed | SMITH, ROBERT L | KLEMPEL, CONSTRUCTION I | | | $20,000.00 | 54415 | 95020422 |
| 4 | 02/01/1982 | TRUSTEED | Trustee's Deed | WASHBURN, HAROLD B | SMITH, ROBERT L | | | $13,000.00 | 20850 | 395165 |
| 5 | 06/01/1978 | OTHER | Other - Misc. Documents | Unknown | WASHBURN, HAROLD B | | | $3,300.00 | 82912 | 334927 |
Payout Agreement
| No payout information available.. |