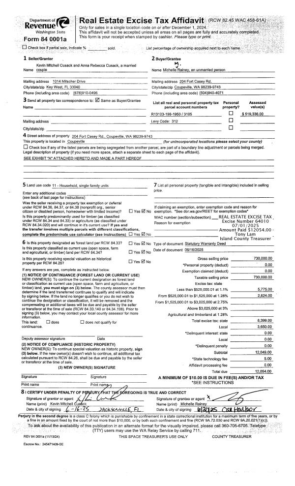
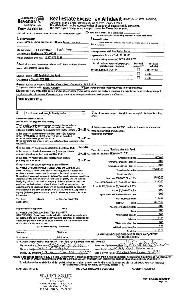
Property
Account |
| Property ID: | 3105 | Abbreviated Legal Description: | 23 J CROCKETT DC - TGW EZ BG SW CR GL3 S369' W400' N1531' E400' S1162' TPB EX S734' SUB TO 30' EZ ALG ELN TGW & SUB TO EZ OVER E30' SD DLC DESC AF#261755, AF# 99 010128 |
| Geographic ID: | R13103-198-1950 | Agent Code: | |
| Type: | Real | | |
| Tax Area: | 312 - APPRAISER-Cpvl Schl Dist, outside Cpvl, improved, greater than 1 acre | Land Use Code | 11 |
| Open Space: | N | DFL | N |
| Historic Property: | N | Remodel Property: | N |
| Multi-Family Redevelopment: | N | | |
| Township: | 31 | Section: | 03 |
| Range: | R1 |
Location |
| Address: | 204 FORT CASEY RD COUPEVILLE, WA 98239 | Mapsco: | |
| Neighborhood: | Cycle 2 | Map ID: | 25 |
| Neighborhood CD: | 2 |
Owner |
| Name: | RAINEY, MICHELLE M | Owner ID: | 317186 |
| Mailing Address: | 204 FORT CASEY RD COUPEVILLE, WA 98239 | % Ownership: | 100.0000000000% |
| | | Exemptions: | |
Taxes and Assessment Details
Values
| (+) Improvement Homesite Value: | + | $0 | |
| (+) Improvement Non-Homesite Value: | + | $217,018 | |
| (+) Land Homesite Value: | + | $0 | |
| (+) Land Non-Homesite Value: | + | $345,252 | |
| (+) Curr Use (HS): | + | $0 | $0 |
| (+) Curr Use (NHS): | + | $0 | $0 |
| | | -------------------------- | |
| (=) Market Value: | = | $562,270 | |
| (–) Productivity Loss: | – | $0 | |
| | | -------------------------- | |
| (=) Subtotal: | = | $562,270 | |
| (+) Senior Appraised Value: | + | $0 | |
| (+) Non-Senior Appraised Value: | + | $562,270 | |
| | | -------------------------- | |
| (=) Total Appraised Value: | = | $562,270 | |
| (–) Senior Exemption Loss: | – | $0 | |
| (–) Exemption Loss: | – | $0 | |
| | | -------------------------- | |
| (=) Taxable Value: | = | $562,270 | |
Taxing Jurisdiction
| Owner: | RAINEY, MICHELLE M | | |
| % Ownership: | 100.0000000000% | | |
| Total Value: | $562,270 | | |
| Tax Area: | 312 - APPRAISER-Cpvl Schl Dist, outside Cpvl, improved, greater than 1 acre |
| CF | Conservation Futures | 0.0313996660 | $562,270 | $562,270 | $17.66 | | |
| CEM2 | Cemetery #2 | 0.0092609791 | $562,270 | $562,270 | $5.21 | | |
| FIRE5 | Fire & Rescue Dist #5 C Whidbey GEN | 1.1892169230 | $562,270 | $562,270 | $668.66 | | |
| FIRE5BOND | Fire & Rescue Dist #5 C Whidbey BOND | 0.1394359503 | $562,270 | $562,270 | $78.40 | | |
| HOBOND | Hospital BOND | 0.1893405597 | $562,270 | $562,270 | $106.46 | | |
| HOGEN | Hospital GEN | 0.3848777722 | $562,270 | $562,270 | $216.41 | | |
| CE | County Current Expense | 0.3674210519 | $562,270 | $562,270 | $206.59 | | |
| CR | County Roads | 0.4614296361 | $562,270 | $562,270 | $259.45 | | |
| ISLANDEMS | Hospital GEN (EMS) | 0.4952018576 | $562,270 | $562,270 | $278.44 | | |
| LIB | Library Sno-Isle GEN | 0.3039084203 | $562,270 | $562,270 | $170.88 | | |
| LIBCAP | Library Sno-Isle BOND (Cap Fac Imp Area) | 0.0528562629 | $562,270 | $562,270 | $29.72 | | |
| POCOUP | Port of Coupeville GEN | 0.1065226063 | $562,270 | $562,270 | $59.89 | | |
| POCOUPIDD | Port of Coupeville IDD | 0.3353038577 | $562,270 | $562,270 | $188.53 | | |
| COUPSDTECH | School 204 CP (TECH) | 0.1215123397 | $562,270 | $562,270 | $68.32 | | |
| SCH204MO | School 204 Enrichment | 0.6416662518 | $562,270 | $562,270 | $360.79 | | |
| ST | State School | 1.4761226122 | $562,270 | $562,270 | $829.98 | | |
| ST2 | State School Part 2 | 0.7953803475 | $562,270 | $562,270 | $447.22 | | |
| | Total Tax Rate: | 7.1008570943 | | | | | |
| | | | | Taxes w/Current Exemptions: | $3,992.61 | | |
| | | | | Taxes w/o Exemptions: | $3,992.61 | | |
Improvement / Building
| Improvement #1: | MANUFACTURED HOME | State Code: | Y | 1863.0 sqft | Value: | $217,018 |
| Bathrooms: | 2 | Bedrooms: | 3 | | Ceiling: | PLASTER PAINTED | Cooling: | EVAP NO DUCT | | Exterior Wall/Cover: | VINYL | Floor Covering: | CARPET 100% | | Floor Structure: | SLAB ON GRADE | Foundation: | SLAB | | Heating: | FHA ELECTRIC | Interior Finish: | PLASTER | | Plumbing Fixture Cnt: | 1 | Roof Slope: | FLAT | | Roof Structure/Cover: | CJ ALUMINIUM HEAVY |   |   |
|
| | Type | Description | Class CD | Sub Class CD | Year Built | Area |
| | BAS | BASE/MAIN FLOOR | 5 | 0 | 1999 | 1863.0 |
| | OWC | OPEN WOOD PORCH W/STEPS/ROOF/C | 5 | 0 | 1999 | 81.0 |
| | OWP | OPEN WOOD PORCH W/STEPS | 5 | 0 | 1999 | 210.0 |
| | ENP | ENCLOSED PORCH | 5 | 0 | 1999 | 216.0 |
| | OCP | OPEN CARPORT | 5 | 0 | 1999 | 360.0 |
| | DGR | DETACHED GARAGE | 5 | 0 | 1999 | 1224.0 |
Sketch
Property Image
Land
| 1 | HS | HOMESITE | 1.0000 | 43560.00 | 0.00 | 0.00 | 1.00 | $220,000 | $0 |
| 2 | 91 | UNDEVELOPED LAND-METES AND BOUNDS | 6.3300 | 275734.80 | 0.00 | 0.00 | 1.00 | $125,252 | $0 |
Roll Value History
| 2026 | N/A | N/A | N/A | N/A | N/A |
| 2025 | $217,018 | $345,252 | $0 | $562,270 | $562,270 |
| 2024 | $219,336 | $300,000 | $0 | $519,336 | $519,336 |
| 2023 | $201,294 | $280,000 | $0 | $481,294 | $481,294 |
| 2022 | $190,667 | $260,000 | $0 | $450,667 | $450,667 |
| 2021 | $175,512 | $170,000 | $0 | $345,512 | $345,512 |
| 2020 | $174,931 | $160,000 | $0 | $334,931 | $334,931 |
| 2019 | $150,854 | $230,000 | $0 | $380,854 | $380,854 |
| 2018 | $169,467 | $200,000 | $0 | $369,467 | $369,467 |
| 2017 | $169,560 | $200,000 | $0 | $369,560 | $369,560 |
| 2016 | $169,585 | $150,000 | $0 | $319,585 | $319,585 |
| 2015 | $169,609 | $183,250 | $0 | $352,859 | $352,859 |
| 2014 | $169,634 | $183,250 | $0 | $352,884 | $352,884 |
| 2013 | $169,660 | $184,716 | $0 | $354,376 | $354,376 |
| 2012 | $174,737 | $184,716 | $0 | $359,453 | $359,453 |
| 2011 | $143,736 | $205,240 | $0 | $348,976 | $348,976 |
| 2010 | $153,147 | $205,240 | $0 | $358,387 | $358,387 |
| 2009 | $155,264 | $219,900 | $0 | $375,164 | $375,164 |
| 2008 | $156,835 | $216,581 | $0 | $373,416 | $373,416 |
| 2007 | $172,956 | $216,235 | $0 | $389,191 | $389,191 |
Deed and Sales History
| 1 | 06/16/2025 | WD | Warranty Deed | CUSACK, KEVIN MITCHELL | RAINEY, MICHELLE M | | | $730,000.00 | 64010 | 4587663 |
| 2 | 11/01/2021 | WD | Warranty Deed | BROWN, DAVID E | CUSACK, KEVIN MITCHELL | | | $675,000.00 | 50982 | 4534173 |
| 3 | 01/01/1981 | TRUSTEED | Trustee's Deed | ENGLE, WILLIAM C | BROWN, DAVID E | | | $0.00 | 10230 | 378769 |
| 4 | 01/01/1900 | PACD | Purchaser's Assignment | Unknown | BROWN, DAVID E | | | $0.00 | 0 | 0 |
| 5 | 01/01/1900 | OTHER | Other - Misc. Documents | BROWN, DAVID E | ENGLE, WILLIAM C | | | $0.00 | 0 | 0 |
Payout Agreement
| No payout information available.. |