Property
Account |
| Property ID: | 310611 | Abbreviated Legal Description: | LOST LK GRV 2 LOT 7 BLK 4 |
| Geographic ID: | S7410-02-04007-0 | Agent Code: | |
| Type: | Real | | |
| Tax Area: | 510 - APPRAISER-Stan/Cam Schl Dist, improved & 1 acre or less | Land Use Code | 11 |
| Open Space: | N | DFL | N |
| Historic Property: | N | Remodel Property: | N |
| Multi-Family Redevelopment: | N | | |
| Township: | | Section: | |
| Range: | |
Location |
| Address: | 1827 LAKE DR CAMANO ISLAND, WA 98282 | Mapsco: | |
| Neighborhood: | Cycle 5 | Map ID: | 505 |
| Neighborhood CD: | 5 |
Owner |
| Name: | GAILEY, BRETT KORBIN | Owner ID: | 315205 |
| Mailing Address: | SAVANNA JOHNSON 419 101ST AVE NE LAKE STEVENS, WA 98258 | % Ownership: | 100.0000000000% |
| | | Exemptions: | |
Taxes and Assessment Details
Values
| (+) Improvement Homesite Value: | + | $0 | |
| (+) Improvement Non-Homesite Value: | + | $276,397 | |
| (+) Land Homesite Value: | + | $0 | |
| (+) Land Non-Homesite Value: | + | $290,000 | |
| (+) Curr Use (HS): | + | $0 | $0 |
| (+) Curr Use (NHS): | + | $0 | $0 |
| | | -------------------------- | |
| (=) Market Value: | = | $566,397 | |
| (–) Productivity Loss: | – | $0 | |
| | | -------------------------- | |
| (=) Subtotal: | = | $566,397 | |
| (+) Senior Appraised Value: | + | $0 | |
| (+) Non-Senior Appraised Value: | + | $566,397 | |
| | | -------------------------- | |
| (=) Total Appraised Value: | = | $566,397 | |
| (–) Senior Exemption Loss: | – | $0 | |
| (–) Exemption Loss: | – | $0 | |
| | | -------------------------- | |
| (=) Taxable Value: | = | $566,397 | |
Taxing Jurisdiction
| Owner: | GAILEY, BRETT KORBIN | | |
| % Ownership: | 100.0000000000% | | |
| Total Value: | $566,397 | | |
| Tax Area: | 510 - APPRAISER-Stan/Cam Schl Dist, improved & 1 acre or less |
| CF | Conservation Futures | 0.0313996660 | $566,397 | $566,397 | $17.78 | | |
| EMS1 | Fire & Rescue Dist #1 Camano GEN (EMS) | 0.4998471806 | $566,397 | $566,397 | $283.11 | | |
| FIRE1 | Fire & Rescue Dist #1 Camano GEN | 1.2496603404 | $566,397 | $566,397 | $707.80 | | |
| FIRE1BOND | Fire & Rescue Dist #1 Camano BOND | 0.1630371212 | $566,397 | $566,397 | $92.34 | | |
| CE | County Current Expense | 0.3674210519 | $566,397 | $566,397 | $208.11 | | |
| CR | County Roads | 0.4614296361 | $566,397 | $566,397 | $261.35 | | |
| LIB | Library Sno-Isle GEN | 0.3039084203 | $566,397 | $566,397 | $172.13 | | |
| SCH205_401 | School 205-401 Enrichment | 1.3697998934 | $566,397 | $566,397 | $775.85 | | |
| SCH205BOND | School 205-401 BOND | 0.9354199323 | $566,397 | $566,397 | $529.82 | | |
| ST | State School | 1.4761226122 | $566,397 | $566,397 | $836.07 | | |
| ST2 | State School Part 2 | 0.7953803475 | $566,397 | $566,397 | $450.50 | | |
| | Total Tax Rate: | 7.6534262019 | | | | | |
| | | | | Taxes w/Current Exemptions: | $4,334.86 | | |
| | | | | Taxes w/o Exemptions: | $4,334.86 | | |
Improvement / Building
| Improvement #1: | RESIDENTIAL | State Code: | Y | 1544.0 sqft | Value: | $276,397 |
| Bathrooms: | 1 | Bedrooms: | 1 | | Ceiling: | BEAM PAINTED | Exterior Wall/Cover: | PLY/HARDBOARD T-111 | | Floor Covering: | VINYL 100% | Floor Structure: | WOOD W/SUBFLOOR | | Foundation: | CONCRETE | Heating: | BASEBOARD ELECTRIC | | Interior Finish: | DRYWALL PAINT | Plumbing Fixture Cnt: | 9 | | Roof Slope: | 18" IN 12" | Roof Structure/Cover: | BEAM ASPHALT |
|
| | Type | Description | Class CD | Sub Class CD | Year Built | Area |
| | BAS | BASE/MAIN FLOOR | 3 | 0 | 1972 | 704.0 |
| | DWN | DOWNSTAIRS LIVING AREA | 3 | 0 | 1972 | 640.0 |
| | OWP | OPEN WOOD PORCH W/STEPS | 3 | 0 | 1972 | 100.0 |
| | OWP | OPEN WOOD PORCH W/STEPS | 3 | 0 | 1972 | 120.0 |
| | LOF | LOFT | 3 | 0 | 1972 | 200.0 |
| | OP4 | OPEN PORCH W/CEILING-ROOF | 3 | 0 | 1972 | 200.0 |
| | OWC | OPEN WOOD PORCH W/STEPS/ROOF/C | 3 | 0 | 1972 | 100.0 |
Sketch
| No sketches available for this property. |
Property Image
Land
| 1 | 15 | SQ (12001-21780) | 0.0000 | 0.00 | 0.00 | 0.00 | 1.00 | $290,000 | $0 |
Roll Value History
| 2026 | N/A | N/A | N/A | N/A | N/A |
| 2025 | $276,397 | $290,000 | $0 | $566,397 | $566,397 |
| 2024 | $99,191 | $130,000 | $0 | $229,191 | $229,191 |
| 2023 | $162,141 | $270,000 | $0 | $432,141 | $432,141 |
| 2022 | $148,778 | $270,000 | $0 | $418,778 | $418,778 |
| 2021 | $128,985 | $190,000 | $0 | $318,985 | $318,985 |
| 2020 | $125,799 | $150,000 | $0 | $275,799 | $275,799 |
| 2019 | $89,097 | $180,000 | $0 | $269,097 | $269,097 |
| 2018 | $89,385 | $150,000 | $0 | $239,385 | $239,385 |
| 2017 | $89,964 | $100,000 | $0 | $189,964 | $189,964 |
| 2016 | $91,116 | $100,000 | $0 | $191,116 | $191,116 |
| 2015 | $85,631 | $52,000 | $0 | $137,631 | $137,631 |
| 2014 | $86,872 | $52,000 | $0 | $138,872 | $138,872 |
| 2013 | $88,113 | $64,000 | $0 | $152,113 | $152,113 |
| 2012 | $89,353 | $64,000 | $0 | $153,353 | $153,353 |
| 2011 | $90,594 | $80,000 | $0 | $170,594 | $170,594 |
| 2010 | $81,616 | $90,000 | $0 | $171,616 | $171,616 |
| 2009 | $85,004 | $90,000 | $0 | $175,004 | $175,004 |
| 2008 | $86,242 | $115,000 | $0 | $201,242 | $201,242 |
| 2007 | $87,480 | $115,000 | $0 | $202,480 | $202,480 |
Deed and Sales History
| 1 | 01/21/2025 | WD | Warranty Deed | TZUN GROUP LLC | GAILEY, BRETT KORBIN | | | $540,000.00 | 62374 | 4581530 |
| 2 | 03/15/2024 | WD | Warranty Deed | OLBU, LAURA A | TZUN GROUP LLC | | | $262,000.00 | 59455 | 4570480 |
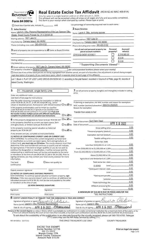
| 3 | 04/15/2022 | QCD | Quit Claim Deed | OBLU, LEO S | OLBU, LAURA A | | | $0.00 | 52736 | 4543472 |
| 4 | 11/13/2002 | WD | Warranty Deed | KINGMA, VERNON R | OBLU, LEO S | | | $155,000.00 | 24986 | 4040509 |
| 5 | 06/01/1992 | WD | Warranty Deed | RAPP, LAURA L | KINGMA, VERNON R | | | $25,000.00 | 22638 | 92012732 |
| 6 | 03/01/1990 | WD | Warranty Deed | GUSTAFSON, ELIZABETH | RAPP, LAURA L | | | $10,500.00 | 1294 | 90004126 |
| 7 | 09/01/1980 | TRUSTEED | Trustee's Deed | GUSTAFSON, ELIZABETH | GUSTAFSON, ELIZABETH | | | $9,000.00 | 3184 | 0 |
| 8 | 09/01/1980 | WD | Warranty Deed | MITCHELL, MAURICE L | GUSTAFSON, ELIZABETH | | | $0.00 | 3343 | 374747 |
| 9 | 10/01/1979 | OTHER | Other - Misc. Documents | MITCHELL, ELEANOR L | MITCHELL, MAURICE L | | | $0.00 | 95913 | 0 |
| 10 | 10/01/1979 | OTHER | Other - Misc. Documents | MITCHELL, MAURICE L | MITCHELL, ELEANOR L | | | $0.00 | 95913 | 0 |
| 11 | 01/01/1900 | OTHER | Other - Misc. Documents | MITCHELL, MAURICE L | MITCHELL, MAURICE L | | | $0.00 | 0 | 0 |
| 12 | 01/01/1900 | OTHER | Other - Misc. Documents | Unknown | MITCHELL, MAURICE L | | | $0.00 | 0 | 0 |
Payout Agreement
| No payout information available.. |