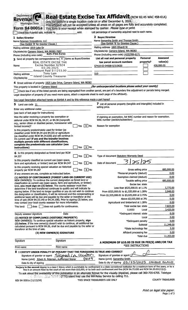
Property
Account |
| Property ID: | 310620 | Abbreviated Legal Description: | LOST LK GRV 2 LOT 8 BLK 4 |
| Geographic ID: | S7410-02-04008-0 | Agent Code: | |
| Type: | Real | | |
| Tax Area: | 510 - APPRAISER-Stan/Cam Schl Dist, improved & 1 acre or less | Land Use Code | 11 |
| Open Space: | N | DFL | N |
| Historic Property: | N | Remodel Property: | N |
| Multi-Family Redevelopment: | N | | |
| Township: | | Section: | |
| Range: | |
Location |
| Address: | 1825 LAKE DR CAMANO ISLAND, WA 98282 | Mapsco: | |
| Neighborhood: | Cycle 5 | Map ID: | 505 |
| Neighborhood CD: | 5 |
Owner |
| Name: | SMITH, SAMANTHA | Owner ID: | 315923 |
| Mailing Address: | THOMAS SMITH 1825 LAKE DR CAMANO ISLAND, WA 98282 | % Ownership: | 100.0000000000% |
| | | Exemptions: | |
Taxes and Assessment Details
Values
| (+) Improvement Homesite Value: | + | $0 | |
| (+) Improvement Non-Homesite Value: | + | $431,312 | |
| (+) Land Homesite Value: | + | $0 | |
| (+) Land Non-Homesite Value: | + | $290,000 | |
| (+) Curr Use (HS): | + | $0 | $0 |
| (+) Curr Use (NHS): | + | $0 | $0 |
| | | -------------------------- | |
| (=) Market Value: | = | $721,312 | |
| (–) Productivity Loss: | – | $0 | |
| | | -------------------------- | |
| (=) Subtotal: | = | $721,312 | |
| (+) Senior Appraised Value: | + | $0 | |
| (+) Non-Senior Appraised Value: | + | $721,312 | |
| | | -------------------------- | |
| (=) Total Appraised Value: | = | $721,312 | |
| (–) Senior Exemption Loss: | – | $0 | |
| (–) Exemption Loss: | – | $0 | |
| | | -------------------------- | |
| (=) Taxable Value: | = | $721,312 | |
Taxing Jurisdiction
| Owner: | SMITH, SAMANTHA | | |
| % Ownership: | 100.0000000000% | | |
| Total Value: | $721,312 | | |
| Tax Area: | 510 - APPRAISER-Stan/Cam Schl Dist, improved & 1 acre or less |
| CF | Conservation Futures | 0.0313996660 | $721,312 | $721,312 | $22.65 | | |
| EMS1 | Fire & Rescue Dist #1 Camano GEN (EMS) | 0.4998471806 | $721,312 | $721,312 | $360.55 | | |
| FIRE1 | Fire & Rescue Dist #1 Camano GEN | 1.2496603404 | $721,312 | $721,312 | $901.39 | | |
| FIRE1BOND | Fire & Rescue Dist #1 Camano BOND | 0.1630371212 | $721,312 | $721,312 | $117.60 | | |
| CE | County Current Expense | 0.3674210519 | $721,312 | $721,312 | $265.03 | | |
| CR | County Roads | 0.4614296361 | $721,312 | $721,312 | $332.83 | | |
| LIB | Library Sno-Isle GEN | 0.3039084203 | $721,312 | $721,312 | $219.21 | | |
| SCH205_401 | School 205-401 Enrichment | 1.3697998934 | $721,312 | $721,312 | $988.05 | | |
| SCH205BOND | School 205-401 BOND | 0.9354199323 | $721,312 | $721,312 | $674.73 | | |
| ST | State School | 1.4761226122 | $721,312 | $721,312 | $1,064.74 | | |
| ST2 | State School Part 2 | 0.7953803475 | $721,312 | $721,312 | $573.72 | | |
| | Total Tax Rate: | 7.6534262019 | | | | | |
| | | | | Taxes w/Current Exemptions: | $5,520.50 | | |
| | | | | Taxes w/o Exemptions: | $5,520.50 | | |
Improvement / Building
| Improvement #1: | RESIDENTIAL | State Code: | Y | 2864.7 sqft | Value: | $431,312 |
| Bathrooms: | 3 | Bedrooms: | 2 | | Ceiling: | DRYWALL PAINTED | Cooling: | HEAT PUMP/CONV/V | | Exterior Wall/Cover: | CEMENT FIBER | Floor Covering: | (NONE) | | Floor Structure: | WOOD W/SUBFLOOR | Foundation: | SLAB | | Interior Finish: | DRYWALL PAINT | Plumbing Fixture Cnt: | 16 | | Roof Slope: | FLAT | Roof Structure/Cover: | CJ ALUMINIUM HEAVY |
|
| | Type | Description | Class CD | Sub Class CD | Year Built | Area |
| | BAS | BASE/MAIN FLOOR | 3 | 0 | 2024 | 1175.0 |
| | UPS | UPPER STORY | 3 | 0 | 2024 | 1269.2 |
| | DWN | DOWNSTAIRS LIVING AREA | 3 | 0 | 2024 | 420.5 |
| | OP4 | OPEN PORCH W/CEILING-ROOF | 3 | 0 | 2024 | 180.0 |
| | UB8 | BASEMENT UNFINISHED 8" | 3 | 0 | 2024 | 674.0 |
| | OP4 | OPEN PORCH W/CEILING-ROOF | 3 | 0 | 2024 | 169.0 |
| | OP1 | OPEN PORCH SLAB | 3 | 0 | 2024 | 396.0 |
Sketch
Property Image
Land
| 1 | 15 | SQ (12001-21780) | 0.0000 | 0.00 | 0.00 | 0.00 | 1.00 | $290,000 | $0 |
Roll Value History
| 2026 | N/A | N/A | N/A | N/A | N/A |
| 2025 | $431,312 | $290,000 | $0 | $721,312 | $721,312 |
| 2024 | $308,080 | $130,000 | $0 | $438,080 | $438,080 |
| 2023 | $0 | $130,000 | $0 | $130,000 | $130,000 |
| 2022 | $0 | $115,000 | $0 | $115,000 | $115,000 |
| 2021 | $0 | $80,000 | $0 | $80,000 | $80,000 |
| 2020 | $0 | $80,000 | $0 | $80,000 | $80,000 |
| 2019 | $0 | $80,000 | $0 | $80,000 | $80,000 |
| 2018 | $0 | $80,000 | $0 | $80,000 | $80,000 |
| 2017 | $0 | $80,000 | $0 | $80,000 | $80,000 |
| 2016 | $0 | $60,000 | $0 | $60,000 | $60,000 |
| 2015 | $0 | $45,000 | $0 | $45,000 | $45,000 |
| 2014 | $0 | $45,000 | $0 | $45,000 | $45,000 |
| 2013 | $0 | $65,000 | $0 | $65,000 | $65,000 |
| 2012 | $0 | $65,000 | $0 | $65,000 | $65,000 |
| 2011 | $0 | $65,000 | $0 | $65,000 | $65,000 |
| 2010 | $0 | $65,000 | $0 | $65,000 | $65,000 |
| 2009 | $0 | $70,000 | $0 | $70,000 | $70,000 |
| 2008 | $0 | $70,000 | $0 | $70,000 | $70,000 |
| 2007 | $0 | $70,000 | $0 | $70,000 | $70,000 |
Deed and Sales History
| 1 | 03/25/2025 | WD | Warranty Deed | PETERSEN INNOVATIONS LLC | SMITH, SAMANTHA | | | $685,000.00 | 62924 | 4583663 |
| 2 | 05/11/2021 | WD | Warranty Deed | REINER, WENDY | PETERSEN INNOVATIONS LLC | | | $110,000.00 | 48289 | 4519619 |
| 3 | 10/05/2020 | QCD | Quit Claim Deed | REINER, WENDY | REINER, WENDY | | | $0.00 | 45205 | 4499226 |
| 4 | 09/07/2004 | WD | Warranty Deed | CRAMER, DALE A | REINER, WENDY | | | $30,000.00 | 44377 | 4113187 |
| 5 | 08/15/2003 | ESTSEPPROP | Establish Separate Property | DAMMANN, GARY W | CRAMER, DALE A | | | $0.00 | 33956 | 4073787 |
| 6 | 02/14/1977 | DECREE | Divorce Decree/Legal Separation | CRAMER, DALE A | DAMMANN, GARY W | | | $0.00 | 33955 | 4073786 |
| 7 | 01/01/1900 | OTHER | Other - Misc. Documents | Unknown | CRAMER, DALE A | | | $0.00 | 0 | 0 |
Payout Agreement
| No payout information available.. |